Trong xu hướng kiến trúc hiện đại, những ngôi nhà không chỉ là nơi che mưa che nắng mà còn là tác phẩm nghệ thuật thể hiện gu thẩm mỹ của gia chủ. Đặc biệt, xu hướng thiết kế nhà cấp 4 mái Nhật đang “làm mưa làm gió” tại các vùng nông thôn và ngoại ô nhờ vẻ đẹp thanh thoát, sang trọng nhưng vẫn giữ được nét gần gũi.
Hôm nay, Kiến trúc & Xây dựng TechHome xin giới thiệu đến quý khách hàng một siêu phẩm thiết kế nhà cấp 4 mái Nhật vừa được chúng tôi hoàn thiện hồ sơ cho gia đình anh Phong tại Nghệ An. Đây là mẫu nhà điển hình cho sự kết hợp hoàn hảo giữa công năng sử dụng khoa học và kiến trúc ngoại thất tinh tế.
1. Tổng quan dự án thiết kế nhà cấp 4 mái Nhật tại Nghệ An
Trước khi đi sâu vào chi tiết bản vẽ và phối cảnh, TechHome xin gửi tới quý khách hàng bảng thông tin tổng quan của dự án này:
| Hạng mục | Thông tin chi tiết |
| Chủ đầu tư |
Anh Phong |
| Địa điểm xây dựng |
Nghệ An |
| Loại hình kiến trúc |
Nhà ở gia đình (Nhà cấp 4 mái Nhật) |
| Đơn vị thiết kế |
CTCP Kiến trúc và Xây dựng TechHome |
| KTS chủ trì |
KTS. Nguyễn Văn Phước |
| Diện tích xây dựng |
~160m2 (Kích thước phủ bì: 11.55m x 14.07m) |
| Công năng chính | Phòng khách, Phòng thờ, Bếp + Ăn, 3 Phòng ngủ, WC, Sân ướt. |
Việc lựa chọn thiết kế nhà cấp 4 mái Nhật cho mảnh đất tại Nghệ An là một quyết định vô cùng sáng suốt của anh Phong. Kiểu mái này có độ dốc vừa phải, giúp thoát nước mưa tốt – điều cực kỳ quan trọng với khí hậu miền Trung khắc nghiệt, đồng thời tạo nên khối kiến trúc cân đối, hài hòa.

2. Vẻ đẹp ngoại thất: Đỉnh cao của thiết kế nhà cấp 4 mái Nhật hiện đại
Nhìn vào phối cảnh 3D tổng thể, ngôi nhà của anh Phong hiện lên với vẻ đẹp bề thế và vững chãi. Đây là minh chứng rõ nét cho thấy thiết kế nhà cấp 4 mái Nhật không hề đơn điệu mà ngược lại rất sang trọng nếu biết cách phối màu và hình khối.
Hệ mái Nhật màu xanh than đẳng cấp
Điểm nhấn đầu tiên thu hút mọi ánh nhìn chính là hệ mái Nhật màu xanh than nổi bật trên nền sơn trắng chủ đạo. Khác với mái Thái có độ dốc lớn, thiết kế nhà cấp 4 mái Nhật của TechHome sử dụng độ dốc nhẹ hơn, mở rộng ra các hướng khác nhau, tạo cảm giác ngôi nhà rộng rãi và bề thế hơn. Hệ mái được bo viền bê tông và lợp ngói sóng, đảm bảo tính thẩm mỹ và khả năng chống nóng tuyệt vời cho không gian bên trong.
Phối màu và vật liệu hiện đại
Các kiến trúc sư của TechHome đã khéo léo sử dụng tông màu trắng sứ làm chủ đạo, kết hợp với các đường kẻ chỉ âm tường chạy ngang để giảm bớt sự nhàm chán của các mảng tường lớn. Chân tường được ốp đá thẻ màu ghi xám sẫm, không chỉ tạo điểm nhấn vững chãi cho phần đế công trình mà còn giúp bảo vệ tường khỏi rêu mốc, bụi bẩn – một giải pháp kỹ thuật thường thấy trong các bản thiết kế nhà cấp 4 mái Nhật cao cấp.
Hệ thống cửa kính lấy sáng tối đa
Để ngôi nhà luôn tràn ngập ánh sáng tự nhiên, chúng tôi đã bố trí hệ thống cửa chính và cửa sổ bằng nhôm hệ kính cường lực (Xingfa) với kích thước lớn.
-
Cửa chính: Là loại cửa trượt quay 4 cánh rộng, giúp kết nối không gian phòng khách với sảnh hiên, tạo sự thông thoáng tối đa.
-
Cửa sổ: Được bố trí dày đặc quanh các mặt diện tường, đảm bảo tất cả các phòng ngủ đều có view nhìn ra sân vườn thoáng đãng.
Sự kết hợp giữa kính, nhôm hệ và sơn trắng tạo nên một tổng thể thiết kế nhà cấp 4 mái Nhật mang đậm hơi thở thời đại, trẻ trung nhưng không kém phần trang nhã.

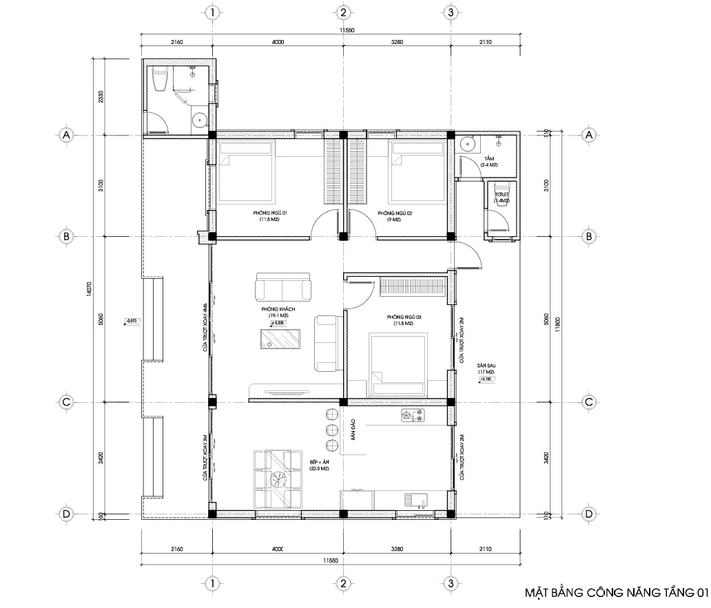
3. Phân tích mặt bằng công năng: Bài toán tối ưu diện tích
Một bản thiết kế nhà cấp 4 mái Nhật thành công không chỉ đẹp ở vẻ ngoài mà còn phải khoa học ở bên trong. Dựa trên nhu cầu sinh hoạt của gia đình anh Phong, KTS và các cộng sự đã đưa ra phương án mặt bằng “tỷ lệ vàng” như sau :
Phòng khách và Phòng thờ liên thông
Từ sảnh chính bước vào là không gian Phòng Khách rộng 19.1 m2. Đây là “trái tim” của ngôi nhà, nơi gia chủ tiếp đón khách khứa. Ngay bên cạnh, được ngăn cách ước lệ bằng lam gỗ hoặc vách CNC (thường thấy trong thiết kế hiện đại) là Phòng Thờ trang nghiêm. Việc đặt phòng thờ ngay tại vị trí trung tâm, hướng ra cửa chính giúp đảm bảo yếu tố phong thủy, mang lại vượng khí cho gia chủ.
Khu vực Bếp và Phòng ăn ấm cúng
Đi sâu vào bên trong là khu vực Bếp + Ăn có diện tích lên tới 22.5 m2. Với diện tích này, gia đình có thể thoải mái bố trí tủ bếp chữ L hoặc chữ I hiện đại cùng bộ bàn ăn 6-8 người. Khu vực bếp có cửa phụ mở ra sảnh phụ hoặc sân ướt phía sau, giúp mùi thức ăn không bị ám vào phòng khách – một chi tiết nhỏ nhưng rất tinh tế trong thiết kế nhà cấp 4 mái Nhật của TechHome.
Hệ thống 3 Phòng ngủ riêng tư
Ngôi nhà được bố trí 3 phòng ngủ bao quanh khu vực sinh hoạt chung, đảm bảo sự riêng tư nhưng vẫn kết nối các thành viên:
-
Phòng ngủ 01: Diện tích 11.5 m2, rộng rãi, phù hợp cho vợ chồng gia chủ.
-
Phòng ngủ 02: Diện tích 9 m2, phòng cho con, có thể bố trí thêm bàn học .
-
Phòng ngủ 03: Diện tích 11.5 m2, ấm cúng, dành cho con cái hoặc khách.
Tất cả các phòng ngủ đều được trổ cửa sổ lớn hướng ra sân vườn, đón gió và ánh sáng tự nhiên. Đây là ưu điểm vượt trội của các mẫu thiết kế nhà cấp 4 mái Nhật sân vườn so với nhà ống phố thị bí bách.
Khu vực vệ sinh và sân ướt
Nhà vệ sinh chung được thiết kế tách biệt gồm khu vực tắm (2.4m2) và toilet (1.4m2) riêng biệt. Phía cuối nhà là khu vực sân sau (sân ướt) rộng 17m2, thuận tiện cho việc giặt giũ, phơi phóng.

4. Giải pháp kỹ thuật và kết cấu trong bản vẽ thi công
Để hiện thực hóa bản thiết kế nhà cấp 4 mái Nhật này, TechHome đã cung cấp bộ hồ sơ kỹ thuật thi công vô cùng chi tiết. Dưới đây là một số điểm nhấn kỹ thuật quan trọng:
-
Kết cấu móng và mái: Ngôi nhà sử dụng hệ thống tường chịu lực kết hợp cột bê tông cốt thép. Phần mái được đổ bê tông bằng hoặc lợp vì kèo thép nhẹ, sau đó dán ngói. Bản vẽ mặt bằng mái cho thấy độ dốc và hướng thoát nước được tính toán kỹ lưỡng để tránh thấm dột.
-
Chiều cao tầng: Chiều cao thông thủy của ngôi nhà được thiết kế là 3.9m (từ cốt 0.00 đến dạ dầm mái). Đây là chiều cao lý tưởng cho thiết kế nhà cấp 4 mái Nhật, giúp không gian bên trong luôn cao ráo, mát mẻ, chống lại cái nóng của miền Trung. Đỉnh mái cao tới 7.07m, tạo nên độ dốc thoát nước hoàn hảo và dáng vẻ cao ráo cho công trình.
-
Hệ thống cửa: Chi tiết cửa đi cho thấy việc sử dụng kính dày 8.38mm an toàn 2 lớp. Kích thước cửa được lựa chọn theo thước Lỗ Ban phong thủy, ví dụ cửa đi 4 cánh rộng 4600mm x cao 2700mm, mang lại tài lộc cho gia chủ.

5. Tại sao thiết kế nhà cấp 4 mái Nhật lại được ưa chuộng tại Nghệ An?
Không phải ngẫu nhiên mà anh Phong và rất nhiều gia chủ tại Nghệ An lại lựa chọn phong cách này. Dưới đây là những lý do khiến thiết kế nhà cấp 4 mái Nhật trở thành “quốc dân”:
-
Phù hợp khí hậu: Nghệ An có mùa hè nắng nóng gay gắt và mùa mưa bão nhiều. Hệ mái Nhật với khả năng tản nhiệt chống nóng tốt và độ dốc thoát nước nhanh là “khắc tinh” của thời tiết khắc nghiệt này.
-
Thẩm mỹ trường tồn: Khác với các kiểu mái cầu kỳ dễ lỗi mốt, kiến trúc mái Nhật đề cao sự tối giản, thanh lịch. Một bản thiết kế nhà cấp 4 mái Nhật chuẩn mực sẽ giữ được vẻ đẹp sang trọng qua hàng chục năm.
-
Tối ưu chi phí: So với nhà cao tầng hay biệt thự cổ điển, chi phí xây dựng nhà cấp 4 mái Nhật “mềm” hơn khá nhiều do thời gian thi công nhanh, kết cấu móng không quá phức tạp, phù hợp với tài chính của nhiều gia đình trẻ.
-
Gần gũi thiên nhiên: Kiểu nhà này thường đi kèm với sân vườn, tạo nên không gian sống xanh, thư thái, rất tốt cho sức khỏe của người già và trẻ nhỏ.

6. TechHome – Đơn vị thiết kế nhà cấp 4 mái Nhật uy tín hàng đầu
Để sở hữu một ngôi nhà đẹp như mơ ước của anh Phong, việc lựa chọn đơn vị thiết kế là yếu tố then chốt. Công ty Cổ phần Kiến trúc và Xây dựng TechHome tự hào là đơn vị tiên phong trong lĩnh vực tư vấn thiết kế nhà cấp 4 mái Nhật và thi công trọn gói.
Tại sao nên chọn TechHome?
-
Đội ngũ KTS tài năng: Với sự dẫn dắt của các KTS giàu kinh nghiệm, mỗi bản vẽ đều là một giải pháp tối ưu hóa không gian và phong thủy.
-
Hồ sơ chi tiết: Bộ hồ sơ bàn giao cho khách hàng bao gồm đầy đủ Kiến trúc, Kết cấu, Điện nước, Dự toán… chi tiết đến từng viên gạch, giúp gia chủ dễ dàng quản lý quá trình xây dựng.
-
Hỗ trợ tận tâm: Chúng tôi luôn đồng hành cùng gia chủ từ khâu lên ý tưởng đến khi hoàn thiện, sẵn sàng giải đáp mọi thắc mắc kỹ thuật.

7. Dự toán chi phí xây dựng
Nhiều khách hàng thắc mắc chi phí để hoàn thiện một mẫu thiết kế nhà cấp 4 mái Nhật như nhà anh Phong là bao nhiêu?
Với diện tích sàn khoảng 160m2, chi phí xây dựng trọn gói (tại thời điểm hiện tại và tùy thuộc vào vật liệu hoàn thiện) thường dao động trong khoảng từ 6 triệu – 7 triệu VNĐ/m2. Như vậy, với ngân sách khoảng từ 900 triệu đến hơn 1 tỷ đồng, quý khách hoàn toàn có thể sở hữu một cơ ngơi khang trang, bền đẹp và đầy đủ tiện nghi như thiết kế này.
Lưu ý: Đây chỉ là mức chi phí ước tính. Để nhận được báo giá chính xác và chi tiết nhất cho công trình của bạn, vui lòng liên hệ trực tiếp với chúng tôi. Hoặc để tìm hiểu rõ hơn về tiêu chuẩn vật liệu xây dựng và các yếu tố ảnh hưởng đến chi phí, bạn có thể tham khảo thêm tại các bài viết chuyên sâu về vật liệu xây dựng cao cấp trên Wikipedia.
Kết luận
Mẫu nhà của anh Phong tại Nghệ An là một ví dụ điển hình cho xu hướng thiết kế nhà cấp 4 mái Nhật hiện đại: Đẹp – Sang – Tiện nghi – Tiết kiệm. Ngôi nhà không chỉ đáp ứng nhu cầu sinh hoạt của gia đình 4-5 thành viên mà còn là niềm tự hào của gia chủ với xóm giềng.
Nếu bạn đang ấp ủ dự định xây dựng tổ ấm và yêu thích phong cách thiết kế nhà cấp 4 mái Nhật, đừng ngần ngại liên hệ với TechHome ngay hôm nay để được tư vấn miễn phí và nhận những ưu đãi hấp dẫn nhất.
CÔNG TY CỔ PHẦN KIẾN TRÚC VÀ XÂY DỰNG TECHHOME
-
Hotline/Zalo: 0364.04.2222 – 0387.60.3333
- Xem thêm các dự án nổi bật khác của Techhome tại https://nhadeptechhome.vn/
Hãy để TechHome kiến tạo nên ngôi nhà mơ ước của bạn!
