Khám phá mẫu nhà 2 tầng mái Nhật đẹp xuất sắc tại Phúc Thọ, Hà Nội. Techhome giới thiệu giải pháp kiến trúc tân cổ điển sang trọng, công năng 5 phòng ngủ tiện nghi của gia đình anh Bằng. Hotline: 0364.04.2222.
1. Sự lên ngôi của các mẫu nhà 2 tầng mái Nhật đẹp tại vùng ven đô
Trong bức tranh kiến trúc đa dạng của Việt Nam hiện nay, những mẫu nhà 2 tầng mái Nhật đẹp đang dần khẳng định vị thế độc tôn, đặc biệt là tại các khu vực ngoại thành Hà Nội như Phúc Thọ. Không quá phô trương như các lâu đài cổ điển, cũng không quá đơn điệu như nhà mái bằng, kiến trúc mái Nhật mang đến một hơi thở mới: thanh lịch, bề thế nhưng vẫn vô cùng gần gũi.
Dự án thiết kế và thi công trọn gói cho gia đình anh Bằng tại Phúc Thọ, Hà Nội là minh chứng rõ nét nhất cho xu hướng này. Dưới bàn tay tài hoa của đội ngũ kiến trúc sư Techhome, ngôi nhà không chỉ là chốn đi về mà còn là một tác phẩm nghệ thuật, khẳng định gu thẩm mỹ tinh tế của gia chủ. Hãy cùng chúng tôi giải mã sức hút của công trình này.

2. Phân tích mặt bằng: Đỉnh cao công năng của mẫu nhà 2 tầng mái Nhật đẹp
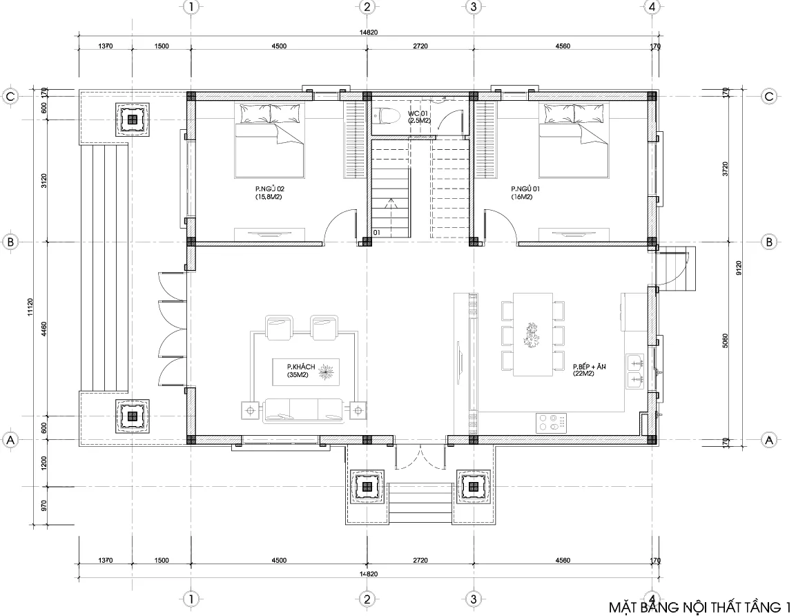
Một mẫu nhà 2 tầng mái Nhật đẹp thực sự không chỉ nằm ở vẻ hào nhoáng bên ngoài mà phải tối ưu hóa được trải nghiệm sống bên trong. Với diện tích xây dựng sàn tầng 1 khoảng 11,1m x 14,8m (bao gồm cả sảnh) , KTS đã kiến tạo nên một không gian sống lý tưởng cho gia đình đông thành viên.
3.1. Tầng 1: Không gian kết nối sang trọng
Bước qua sảnh chính bề thế với hệ cột vuông vắn, chúng ta tiến vào không gian sinh hoạt chung:
-
Phòng khách (35m²): Đây là trái tim của ngôi nhà, nơi thể hiện sự hiếu khách của gia chủ. Với diện tích rộng lớn, phòng khách được bố trí nội thất sang trọng, tạo ấn tượng mạnh mẽ ngay từ cái nhìn đầu tiên.
-
Bếp và Phòng ăn (22m²): Được thiết kế liên thông nhưng vẫn giữ được sự riêng tư cần thiết. Khu vực này có cửa phụ mở ra sân ướt, giúp lưu thông không khí và thuận tiện cho việc chế biến thực phẩm.
-
Khu vực nghỉ ngơi: Điểm đặc biệt của bản vẽ này là sự xuất hiện của 02 phòng ngủ tại tầng 1 (Phòng ngủ 01 – 16m² và Phòng ngủ 02 – 15.8m²). Đây là thiết kế nhân văn dành cho ông bà và người lớn tuổi, giúp hạn chế việc leo cầu thang, đảm bảo an toàn tuyệt đối.

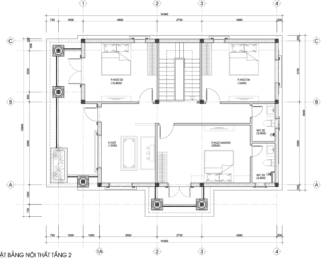
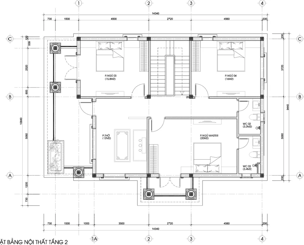
3.2. Tầng 2: Chốn riêng tư đẳng cấp
Không gian tầng 2 của mẫu nhà 2 tầng mái Nhật đẹp này được dành trọn vẹn cho sự nghỉ ngơi và tĩnh tại:
-
Phòng ngủ Master (20m²): Dành riêng cho vợ chồng anh Bằng, được tích hợp nhà vệ sinh khép kín (WC 03) và lối ra ban công rộng thoáng, mang đến trải nghiệm như tại các khu nghỉ dưỡng cao cấp.
-
02 Phòng ngủ phụ: Phòng ngủ 03 (15.8m²) và Phòng ngủ 04 (16m²) được bố trí khoa học, đảm bảo không gian học tập và nghỉ ngơi thoải mái cho các con.
-
Phòng thờ (12m²): Đặt tại vị trí trang trọng nhất, hướng ra mặt tiền (hướng cát), thể hiện lòng thành kính của con cháu đối với tổ tiên.

3. Phối cảnh kiến trúc: Bản giao hưởng của hình khối và màu sắc
Khi tìm kiếm một mẫu nhà 2 tầng mái Nhật đẹp, điều đầu tiên thu hút ánh nhìn chính là sự hài hòa trong tỷ lệ kiến trúc. Ngôi nhà của anh Bằng sở hữu mặt tiền rộng rãi, được thiết kế theo phong cách Tân cổ điển nhẹ nhàng, lược bỏ các chi tiết rườm rà để tập trung vào hình khối vững chãi.
2.1. Hệ mái Nhật “Bánh Ú” bề thế
Điểm nhấn đắt giá nhất của công trình chính là hệ mái Nhật màu xanh ghi. Với độ dốc vừa phải, hệ mái này mở rộng ra các hướng, tạo nên cảm giác che chở và vững chãi. Không chỉ đẹp về thẩm mỹ, mái Nhật còn cực kỳ phù hợp với khí hậu nhiệt đới gió mùa tại miền Bắc, giúp thoát nước mưa nhanh chóng và tạo lớp đệm không khí cách nhiệt hiệu quả cho tầng 2.
2.2. Sự phối hợp vật liệu cao cấp
Để tạo nên một mẫu nhà 2 tầng mái Nhật đẹp bền bỉ với thời gian, Techhome đã tư vấn cho anh Bằng sử dụng những vật liệu ngoại thất tuyển chọn:
-
Màu sắc: Tông màu trắng sứ chủ đạo làm nền tảng tôn lên vẻ đẹp của các đường phào chỉ tinh tế và hệ cột trụ vững chãi.
-
Điểm nhấn chân tường: Phần chân tường được ốp đá thẻ và đá granite sẫm màu, không chỉ tạo cảm giác kiên cố cho khối đế mà còn bảo vệ công trình khỏi rêu mốc, bụi bẩn theo thời gian.
-
Hệ thống cửa: Sự kết hợp giữa cửa chính gỗ Lim Nam Phi pano đặc và hệ thống cửa sổ nhôm hệ kính cường lực mang lại vẻ đẹp vừa truyền thống, vừa hiện đại, đảm bảo lấy sáng tự nhiên tối đa.

4. Tại sao mẫu nhà 2 tầng mái Nhật đẹp lại được ưa chuộng?
Không phải ngẫu nhiên mà anh Bằng tại Phúc Thọ lại lựa chọn phong cách này. Dưới đây là những lý do khiến mẫu nhà 2 tầng mái Nhật đẹp trở thành xu hướng dẫn đầu:
-
Thẩm mỹ vượt thời gian: Sự kết hợp giữa mái Nhật và phong cách tân cổ điển tạo nên vẻ đẹp sang trọng, không bị lỗi mốt theo thời gian.
-
Phù hợp phong thủy: Thiết kế hình khối vuông vắn, cân đối của nhà mái Nhật được đánh giá cao trong phong thủy, tượng trưng cho sự sung túc và viên mãn.
-
Công năng linh hoạt: Với hệ mái cao, gia chủ có thể tận dụng không gian áp mái để làm kho chứa đồ hoặc phòng kỹ thuật, giúp tối ưu diện tích sử dụng.

5. Giải pháp kỹ thuật và Vật liệu thi công
Techhome cam kết mang đến chất lượng xây dựng tốt nhất cho mẫu nhà 2 tầng mái Nhật đẹp của khách hàng. Trong hồ sơ kỹ thuật thi công của nhà anh Bằng, chúng tôi chú trọng đến từng chi tiết:
-
Kết cấu: Sử dụng móng băng hoặc móng cọc bê tông cốt thép tùy theo địa chất, đảm bảo sự bền vững cho công trình. Sàn và dầm được đổ bê tông toàn khối chắc chắn.
-
Cửa gỗ cao cấp: Hệ thống cửa đi D1 kích thước 3000x2700mm sử dụng gỗ Lim Nam Phi dày 30mm cho pano, kết hợp kính an toàn 8.38mm, tạo nên sự bề thế cho mặt tiền.
-
Cửa nhôm kính hiện đại: Các cửa sổ sử dụng nhôm hệ kính an toàn 6.38mm, vừa đảm bảo an ninh (có khung sắt bảo vệ 12x12mm) vừa giúp ngôi nhà luôn tràn ngập ánh sáng.
-
Sàn và Cầu thang: Sàn nhà lát gạch Granite vân đá cao cấp kích thước 800×800. Cầu thang được ốp đá Granite đen cổ trắng, lan can tay vịn gỗ, tạo điểm nhấn sang trọng cho nội thất.

6. Chi phí xây dựng mẫu nhà 2 tầng mái Nhật đẹp là bao nhiêu?
Để sở hữu một mẫu nhà 2 tầng mái Nhật đẹp và tiện nghi như nhà anh Bằng, chi phí đầu tư sẽ phụ thuộc vào diện tích xây dựng và mức độ hoàn thiện vật liệu.
Với tổng diện tích sàn xây dựng khoảng 320m² (bao gồm cả sảnh và mái), mức đầu tư dự kiến năm 2025 tại khu vực Hà Nội như sau:
-
Chi phí thiết kế: 100.000/m2.
-
Xây dựng phần thô: Dao động từ 4.000.000đ – 4.500.000đ/m².
-
Thi công trọn gói (Chìa khóa trao tay): Từ 6.000.000đ – 7.500.000đ/m² (Tùy thuộc vào việc gia chủ chọn gỗ Lim, nhôm Xingfa hay các vật liệu cao cấp khác).
Lưu ý: Đây chỉ là mức chi phí ước tính. Để nhận được báo giá chính xác và chi tiết nhất cho công trình của bạn, vui lòng liên hệ trực tiếp với chúng tôi. Hoặc để tìm hiểu rõ hơn về tiêu chuẩn vật liệu xây dựng và các yếu tố ảnh hưởng đến chi phí, bạn có thể tham khảo thêm tại các bài viết chuyên sâu về vật liệu xây dựng cao cấp trên Wikipedia.

7. Techhome – Đơn vị kiến tạo những mẫu nhà 2 tầng mái Nhật đẹp
Dự án nhà anh Bằng tại Phúc Thọ là một trong hàng trăm công trình tiêu biểu mà Techhome đã thực hiện. Chúng tôi tự hào là đơn vị hàng đầu trong lĩnh vực thiết kế và thi công trọn gói, chuyên kiến tạo những mẫu nhà 2 tầng mái Nhật đẹp và đẳng cấp.
Tại sao nên chọn Techhome?
-
Hồ sơ chi tiết: Bộ hồ sơ thiết kế của anh Bằng bao gồm đầy đủ các hạng mục từ Kiến trúc (KT), Kết cấu, Điện nước, được kiểm duyệt kỹ càng bởi KS đảm bảo thi công chính xác tuyệt đối.
-
Đội ngũ chuyên nghiệp: Các kiến trúc sư tài năng luôn lắng nghe và hiện thực hóa ý tưởng của gia chủ.
-
Hỗ trợ 24/7: Chúng tôi luôn đồng hành cùng khách hàng, hỗ trợ tư vấn kỹ thuật xây dựng mọi lúc mọi nơi qua Hotline 0364.04.2222.

8. Kết luận
Mẫu nhà 2 tầng mái Nhật đẹp của gia đình anh Bằng không chỉ là một chốn an cư lý tưởng mà còn là biểu tượng của sự thành đạt và hạnh phúc. Sự kết hợp hoàn hảo giữa kiến trúc ngoại thất sang trọng và mặt bằng công năng khoa học đã tạo nên một không gian sống đáng mơ ước.
Nếu bạn đang ấp ủ dự định xây dựng một ngôi nhà tương tự, hãy để Techhome đồng hành cùng bạn. Chúng tôi cam kết mang đến những giải pháp thiết kế tối ưu nhất, biến ngôi nhà trong mơ của bạn thành hiện thực.
Liên hệ ngay với chúng tôi để nhận tư vấn miễn phí về các mẫu nhà 2 tầng mái Nhật đẹp nhất hiện nay!
CÔNG TY CỔ PHẦN KIẾN TRÚC VÀ XÂY DỰNG TECHHOME
-
Địa chỉ: B1.1 LK17 – Ô số 4, KĐT Thanh Hà, Thanh Oai, Hà Nội.
-
Hotline/Zalo: 0364.04.2222 – 0387.60.3333
- Xem thêm các dự án nổi bật khác của Techhome tại https://nhadeptechhome.vn/
Techhome – Kiến tạo không gian, Vun đắp hạnh phúc!
