Bạn đã bao giờ mơ về một ngôi nhà vừa là nơi trú ẩn bình yên, vừa là biểu tượng tự hào giữa lòng thành phố chưa? Hôm nay, Techhome muốn dẫn bạn ghé thăm một công trình tâm huyết mà đội ngũ kiến trúc sư (KTS) Techhome vừa hoàn thiện phương án cho anh Thanh. Đây là một dự án thiết kế nhà phố 5 tầng tại Lai Châu mang phong cách tân cổ điển đầy hơi thở thời đại.
1. Cái “duyên” với mảnh đất Lai Châu và yêu cầu của anh Thanh
Lai Châu – vùng đất của những dãy núi trùng điệp và khí hậu đặc trưng – luôn mang lại cho các KTS Techhome những cảm hứng rất riêng. Khi anh Thanh tìm đến tụi mình, anh chia sẻ: “Anh muốn một ngôi nhà nhìn từ xa phải vững chãi, sang trọng nhưng bên trong phải tối ưu cho cả gia đình đông thành viên và có thể kết hợp kinh doanh hoặc làm văn phòng nếu cần”.
Dựa trên đề bài đó, phương án thiết kế nhà phố 5 tầng tại Lai Châu đã ra đời. Với diện tích sàn tầng 1 là 178m2 và tổng diện tích sử dụng hơn 1000m2, đây thực sự là một bài toán thú vị về cả thẩm mỹ lẫn công năng.

2. Ngoại thất: Sự lên ngôi của những đường cong Arches
Nhìn vào phối cảnh, bạn sẽ thấy ngay điểm nhấn của ngôi nhà chính là hệ thống cửa sổ vòm (Arch) xuyên suốt các tầng. Phong cách tân cổ điển không cần quá rườm rà phào chỉ, mà tập trung vào sự cân đối và nhịp điệu.
-
Tầng 1 ấn tượng: Toàn bộ mặt tiền tầng 1 được ốp đá marble vân vàng sang trọng. Điều này không chỉ giúp bảo vệ công trình trước tác động của thời tiết vùng cao mà còn tạo cảm giác vững chãi, bề thế ngay từ cái nhìn đầu tiên.
-
Màu sắc chủ đạo: Tông trắng sứ chủ đạo kết hợp với hệ cửa nhôm kính đen tạo nên sự tương phản hiện đại. Đây là lựa chọn thông minh cho các mẫu thiết kế nhà phố 5 tầng tại Lai Châu để công trình luôn trông như mới sau nhiều năm.
-
Điểm nhấn xanh: Các KTS đã khéo léo bố trí hệ thống cây xanh ở khu vực ban công và tầng tum, giúp ngôi nhà “thở” giữa phố thị.
3. Giải mã công năng “khủng” bên trong ngôi nhà 1028m2
Để một ngôi nhà cao tầng vận hành trơn tru, việc bố trí mặt bằng là quan trọng nhất. Hãy cùng mình soi chi tiết bản vẽ mà Techhome đã thực hiện:
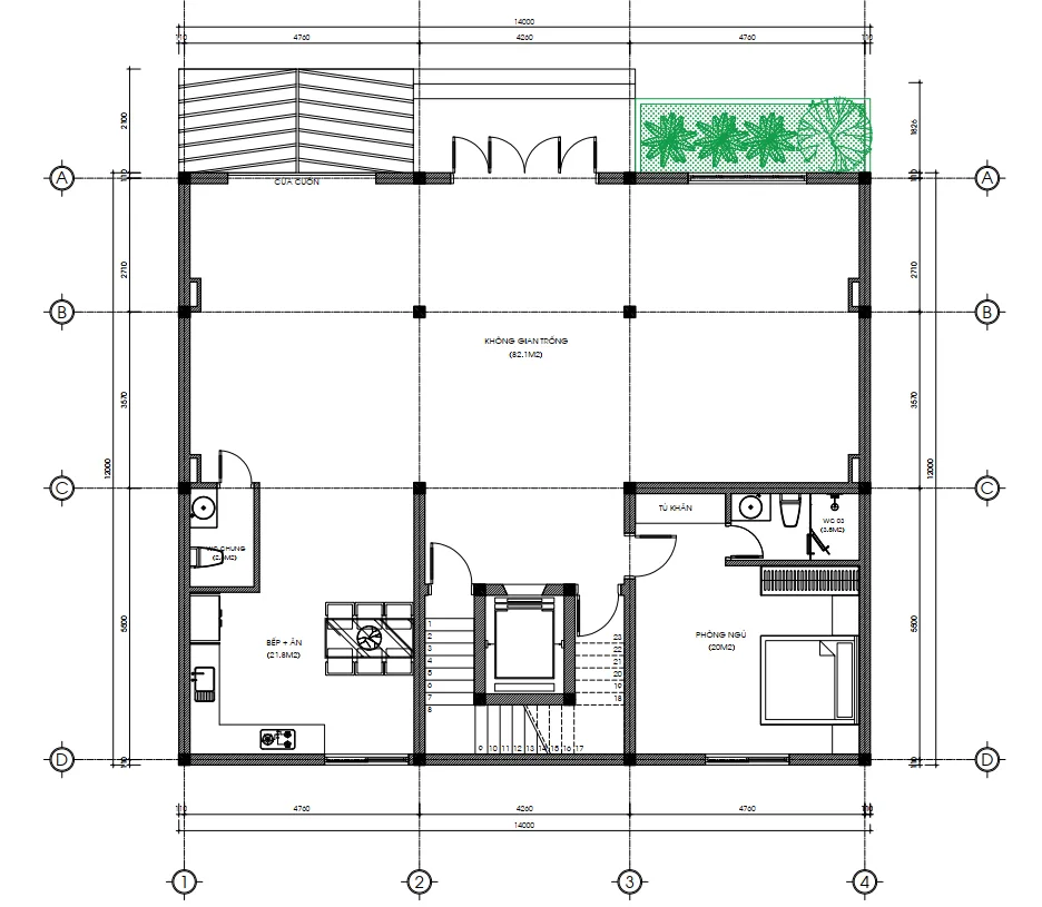
Tầng 1: Không gian mở và tiện ích
-
Diện tích: 178m2.
-
Công năng: Khu vực tầng 1 được thiết kế với một khoảng trống lớn (hơn 80m2), rất phù hợp để làm showroom hoặc phòng khách rộng mênh mông.
-
1 Phòng ngủ : Bố trí 01 phòng ngủ phía cuối nhà dành cho người trong nhà hoặc khách.
- 1 bếp ăn 21.8m2 và 1 WC chung.
-
Thang máy: Điểm sáng là hệ thống thang máy 550kg (sức chứa tối đa 8 người) đặt cạnh thang bộ, đảm bảo việc di chuyển giữa 5 tầng lầu trở nên nhẹ nhàng.

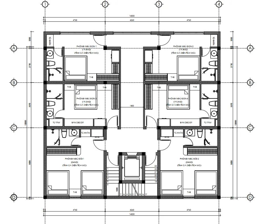
Tầng 2, 3, 4, 5: Không gian riêng tư tối ưu
-
Diện tích mỗi sàn: 185m2.
-
Bố trí: Mỗi tầng là một “vương quốc” riêng với các phòng ngủ đơn và phòng ngủ đôi được thiết kế khép kín (có WC riêng). Việc thiết kế nhà phố 5 tầng tại Lai Châu với nhiều phòng ngủ như thế này đòi hỏi sự tính toán kỹ về thông gió và ánh sáng tự nhiên cho từng phòng qua hệ cửa sổ lớn.

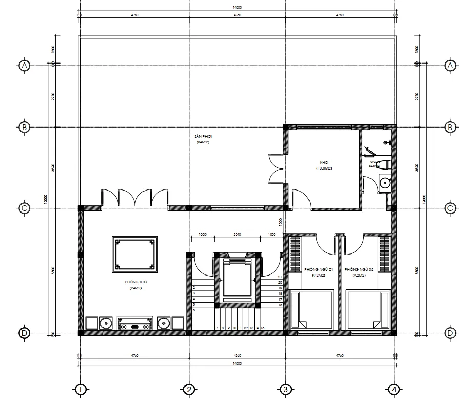
Tầng Tum: Nơi giao thoa đất trời
-
Diện tích: 98m2.
-
Công năng: Bao gồm phòng thờ trang nghiêm hướng mặt tiền , kho để đồ và khu vực sân phơi rộng rãi. Phía trên cùng là hệ mái pergola cách điệu, nơi anh Thanh có thể trồng cây, làm vườn trà cực chill vào mỗi buổi chiều.

4. Tại sao bạn nên chọn Techhome cho dịch vụ thiết kế nhà phố 5 tầng tại Lai Châu?
Làm nhà ở tỉnh xa như Lai Châu, chủ đầu tư thường lo lắng về việc giám sát và tính thực tế của bản vẽ. Techhome cam kết:
-
Sát sao kỹ thuật: Mọi thông số từ hố Pit thang máy đến chiều cao bậc thang (171mm) đều được tính toán chuẩn xác để chủ nhà dễ dàng thi công.
-
Hỗ trợ 24/7: Như trong bản vẽ có ghi, Techhome luôn có hotline tư vấn kỹ thuật trực tuyến: 0364042222.
-
Tư duy thực tế: Techhome không vẽ “trên mây”. Bản vẽ thiết kế nhà phố 5 tầng tại Lai Châu của Techhome luôn dựa trên khảo sát thực địa và năng lực thi công tại địa phương.

5. Báo giá tham khảo thiết kế và thi công (Cập nhật 2026)
Mức giá sẽ phụ thuộc vào phong cách kiến trúc và chủng loại vật liệu. Dưới đây là bảng giá cơ bản để bạn dễ hình dung:
| Hạng mục | Đơn giá tham khảo (VNĐ/m2) |
| Thiết kế kiến trúc | 108.000 |
| Thi công phần thô | 3.800.000 – 4.500.000 |
| Thi công trọn gói (Chìa khóa trao tay) | 6.500.000 – 8.500.000 |
Lưu ý: Đây chỉ là mức chi phí ước tính. Để nhận được báo giá chính xác và chi tiết nhất cho công trình của bạn, vui lòng liên hệ trực tiếp với chúng tôi. Hoặc để tìm hiểu rõ hơn về tiêu chuẩn vật liệu xây dựng và các yếu tố ảnh hưởng đến chi phí, bạn có thể tham khảo thêm tại các bài viết chuyên sâu về vật liệu xây dựng cao cấp trên Wikipedia.
6. “Tâm tình” của người làm nghề
Khi thực hiện thiết kế nhà phố 5 tầng tại Lai Châu cho anh Thanh, đội ngũ KTS đã phải chỉnh sửa phương án nhiều lần để đảm bảo: Nhà cao nhưng không “ngợp”, sang nhưng không “sến”.
Techhome hiểu rằng, ở Lai Châu, một ngôi nhà 5 tầng là một khối tài sản lớn. Vì thế, mỗi viên gạch, mỗi đường vòm đều phải mang giá trị bền vững. Nếu bạn đang tìm kiếm một đơn vị thực sự hiểu mảnh đất này để gửi gắm dự án thiết kế nhà phố 5 tầng tại Lai Châu, đừng ngần ngại gọi cho Techhome.
Thông tin liên hệ:
-
Website: https://nhadeptechhome.vn/
-
Hotline: 0364.042.222 / 0387.603.333
-
Địa chỉ: B1.1 LK18 Ô 3 – KĐT Thanh Hà – Cienco 5 – Thanh Oai- Hà Nội.




