Biệt thự 2 tầng tân cổ điển tại Quảng Oai: Tuyệt phẩm sang trọng từ Kiến trúc TechHome

Bạn đang sở hữu một mảnh đất rộng và mơ ước về một không gian sống vừa mang hơi thở quý tộc châu Âu, vừa ấm cúng, phù hợp với nếp sinh hoạt của gia đình Việt? Mẫu thiết kế biệt thự 2 tầng tân cổ điển của gia đình anh Hùng tại Quảng Oai, Hà Nội chính là câu trả lời hoàn hảo mà bạn đang tìm kiếm.

Tại nhadeptechhome.vn, chúng tôi tin rằng mỗi ngôi nhà không chỉ là gạch đá, mà là nơi lưu giữ những giá trị hạnh phúc của một đời người. Hãy cùng tôi khám phá chi tiết “siêu phẩm” có tổng diện tích sàn 245m² này để hiểu tại sao phong cách này lại chiếm trọn trái tim của các chủ đầu tư đến vậy.


1. Câu chuyện về mẫu biệt thự 2 tầng tân cổ điển tại Quảng Oai

Anh Hùng tìm đến TechHome với một mong muốn giản đơn nhưng đầy thách thức: “Tôi muốn một ngôi nhà nhìn vào phải thấy sự bề thế, vững chãi nhưng không được quá nặng nề, sến súa. Nó phải là nơi các con tôi thích trở về và là niềm tự hào của tôi với bà con lối xóm tại Quảng Oai.”

Sau nhiều buổi trao đổi, phương án biệt thự 2 tầng tân cổ điển đã được lựa chọn. Đây là sự kết hợp tinh tế giữa những đường phào chỉ thanh mảnh, hệ cột bề thế và công năng hiện đại. Với diện tích tầng 1 là 120m² và tầng 2 là 125m², chúng tôi đã tối ưu từng mét vuông để tạo ra một không gian sống xứng tầm.

Phối cảnh mặt tiền chính diện mẫu biệt thự 2 tầng tân cổ điển sang trọng tại Quảng Oai Hà Nội.
Phối cảnh mặt tiền chính diện mẫu biệt thự 2 tầng tân cổ điển sang trọng tại Quảng Oai Hà Nội.

2. Phân tích kiến trúc ngoại thất: Sự giao thoa của nghệ thuật và đẳng cấp

Nhìn từ bên ngoài, mẫu biệt thự 2 tầng tân cổ điển này gây ấn tượng mạnh bởi hệ cột thông tầng cực kỳ uy nghi. Những hoa văn đắp nổi ở đầu cột được các nghệ nhân lành nghề thực hiện tỉ mỉ, tạo nên điểm nhấn không thể rời mắt.

Hệ mái Nhật sang trọng

Thay vì sử dụng mái Thái nhọn cao, chúng tôi lựa chọn hệ mái Nhật màu xanh đen thanh lịch. Mái Nhật với độ dốc vừa phải không chỉ giúp thoát nước mưa tốt trong điều kiện khí hậu miền Bắc mà còn mang lại vẻ đẹp cân đối, hài hòa cho tổng thể công trình.

Màu sắc và chất liệu

Tông màu chủ đạo là trắng kem kết hợp với đá ốp vàng hoàng gia ở các mảng tường trang trí. Sự kết hợp này giúp mẫu biệt thự 2 tầng tân cổ điển luôn trông như mới và bền bỉ với thời gian. Đặc biệt, hệ thống lan can nhôm đúc nghệ thuật mạ vàng là chi tiết “đắt giá”, khẳng định gu thẩm mỹ thượng lưu của gia chủ.

Góc nghiêng biệt thự 2 tầng tân cổ điển


3. Giải pháp mặt bằng công năng: Tối ưu đến từng milimet

Một ngôi nhà đẹp trước hết phải là một ngôi nhà tiện dụng. Tại dự án nhà anh Hùng, đội ngũ kiến trúc sư TechHome đã tính toán rất kỹ lưỡng dựa trên thói quen sinh hoạt thực tế.

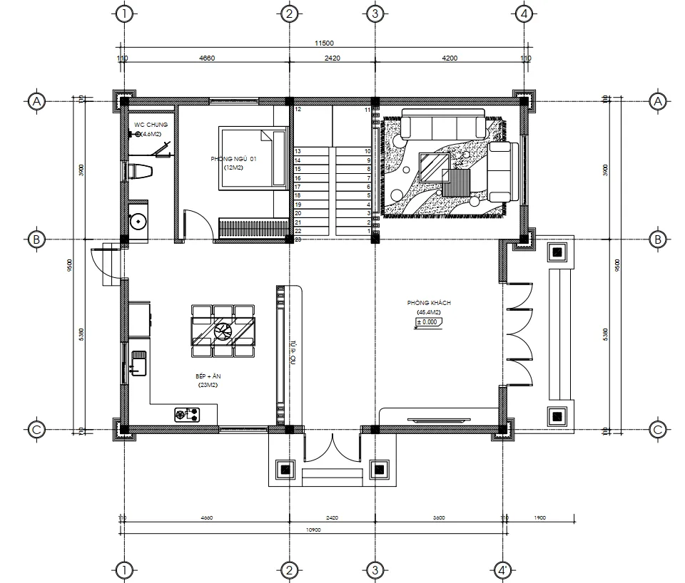
Tầng 1: Không gian kết nối và tiếp đãi (120m²)

Ngay khi bước qua cánh cửa gỗ đại hội sang trọng, bạn sẽ choáng ngợp bởi phòng khách rộng tới 45.4m². Đây là trung tâm của ngôi nhà, nơi đón tiếp khách khứa và phô diễn sự đẳng cấp của nội thất.

  • Phòng bếp + ăn (23m²): Được thiết kế mở nhưng vẫn có sự ngăn cách tinh tế với phòng khách, giúp không gian luôn thông thoáng.

  • Phòng ngủ 01 (12m²): Dành riêng cho người lớn tuổi hoặc khách nghỉ lại, hạn chế việc phải leo cầu thang.

  • Khu vực vệ sinh: Được bố trí kín đáo nhưng vô cùng thuận tiện cho sinh hoạt chung.

Bản vẽ chi tiết công năng tầng 1 diện tích 120m2 với phòng khách 45.4m2 mẫu biệt thự 2 tầng tân cổ điển.
Bản vẽ chi tiết công năng tầng 1 diện tích 120m2 với phòng khách 45.4m2 mẫu biệt thự 2 tầng tân cổ điển.

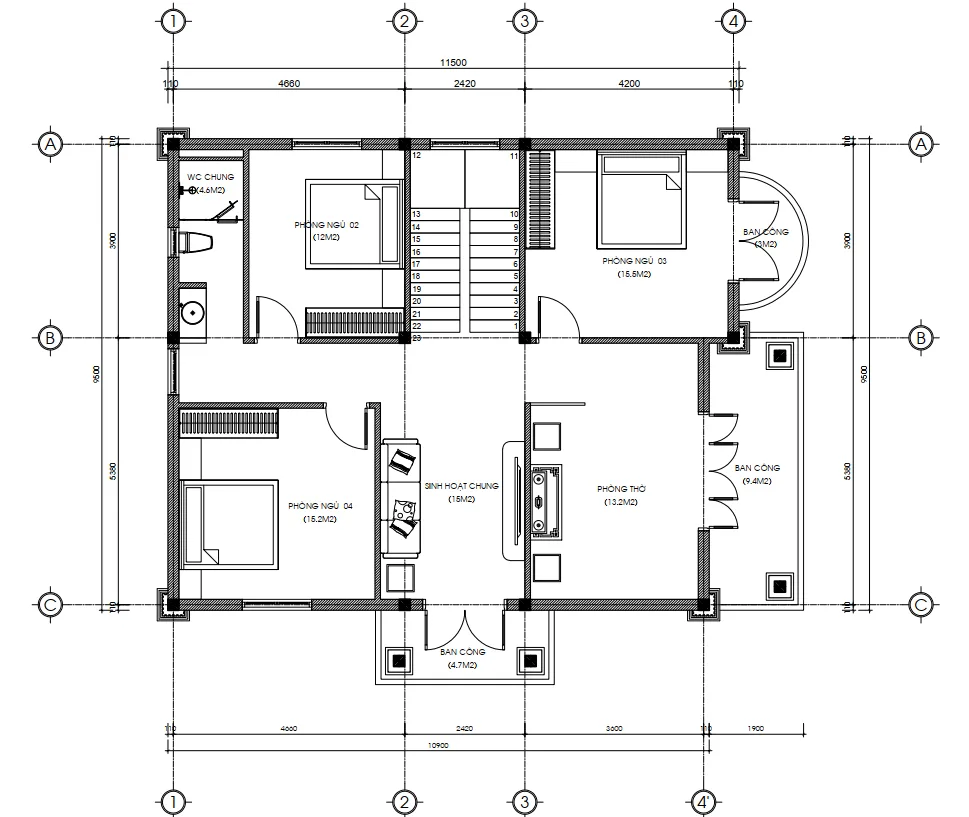
Tầng 2: Không gian riêng tư và tâm linh (125m²)

Nếu tầng 1 là nơi náo nhiệt thì tầng 2 của mẫu biệt thự 2 tầng tân cổ điển này lại là chốn bình yên cho mỗi thành viên.

  • Phòng ngủ 02, 03, 04: Có diện tích từ 12m² đến hơn 15m², đảm bảo mỗi thành viên đều có không gian riêng tư lý tưởng.

  • Phòng thờ (13.2m²): Được đặt ở vị trí trang trọng nhất, hướng ra ban công thoáng đãng, đảm bảo yếu tố phong thủy và sự tôn nghiêm.

  • Phòng sinh hoạt chung (15m²): Nơi cả gia đình quây quần xem phim, trò chuyện mỗi tối trước khi đi ngủ.

  • Hệ thống ban công: Với tổng diện tích ban công cộng lại lên đến gần 20m², gia chủ có thể thư giãn, trồng cây xanh và ngắm nhìn toàn cảnh khu vực Quảng Oai.

Bản vẽ chi tiết công năng tầng 2 diện tích 125m2 mẫu biệt thự 2 tầng tân cổ điển.
Bản vẽ chi tiết công năng tầng 2 diện tích 125m2 mẫu biệt thự 2 tầng tân cổ điển.

4. Ý nghĩa phong thủy trong thiết kế biệt thự 2 tầng tân cổ điển

Chúng tôi hiểu rằng người Việt rất coi trọng phong thủy khi xây nhà. Trong công trình này, hệ thống cầu thang được thiết kế với 23 bậc. Theo quan niệm “Sinh – Lão – Bệnh – Tử”, bậc thứ 23 rơi vào cung “Sinh”, mang lại sức khỏe và tài lộc cho gia đình anh Hùng. Chiều cao bậc 169mm cũng là con số vàng giúp việc di chuyển thoải mái, không gây mỏi chân.

Mẫu biệt thự 2 tầng tân cổ điển này còn được bố trí nhiều cửa sổ lớn hình vòm, không chỉ tạo vẻ đẹp thẩm mỹ mà còn giúp đón gió tự nhiên và ánh sáng mặt trời, giúp luồng khí trong nhà luôn lưu thông, tốt cho sức khỏe.

Góc nghiêng biệt thự 2 tầng tân cổ điển


5. Báo giá thi công trọn gói biệt thự 2 tầng tân cổ điển (Tham khảo)

Tại TechHome, chúng tôi minh bạch về tài chính để khách hàng yên tâm chuẩn bị ngân sách. Với mẫu biệt thự 2 tầng tân cổ điển có tổng diện tích sàn 245m², mức đầu tư dự kiến như sau:

Hạng mục Đơn giá dự kiến Thành tiền (Ước tính)
Thiết kế kiến trúc  108.000 đ/m² 26.460.000 đ
Thi công phần thô 3.800.000 – 4.200.000 đ/m² 930.000.000 – 1.030.000.000 đ
Hoàn thiện (Chưa nội thất rời) 2.500.000 – 3.500.000 đ/m² 612.000.000 – 857.000.000 đ
Tổng cộng xây dựng 7.000.000 – 9.000.000 đ/m² 1.7 tỷ – 2.2 tỷ đ

Lưu ý: Đây chỉ là mức chi phí ước tính. Để nhận được báo giá chính xác và chi tiết nhất cho công trình của bạn, vui lòng liên hệ trực tiếp với chúng tôi. Hoặc để tìm hiểu rõ hơn về tiêu chuẩn vật liệu xây dựng và các yếu tố ảnh hưởng đến chi phí, bạn có thể tham khảo thêm tại các bài viết chuyên sâu về vật liệu xây dựng cao cấp trên Wikipedia.

Tổng thể mẫu biệt thự 2 tầng tân cổ điển hệ mái Nhật lợp ngói màu xanh đen bề thế.
Tổng thể mẫu biệt thự 2 tầng tân cổ điển hệ mái Nhật lợp ngói màu xanh đen bề thế.

6. Tại sao bạn nên chọn TechHome để hiện thực hóa ước mơ?

Xây dựng một căn biệt thự 2 tầng tân cổ điển không hề đơn giản. Nếu người kiến trúc sư không có kinh nghiệm, ngôi nhà rất dễ trở nên “nửa mùa” hoặc gặp các lỗi về kết cấu, chống thấm.

  • Chuyên môn sâu: Chúng tôi có đội ngũ kiến trúc sư giàu kinh nghiệm, am hiểu tường tận về tỷ lệ vàng trong kiến trúc cổ điển.

  • Hỗ trợ kỹ thuật 24/7: Như đã cam kết trong bản vẽ, chúng tôi luôn có hotline hỗ trợ kỹ thuật: 0364.042.222 – 0387.603.333 để giải đáp mọi thắc mắc của chủ nhà và thợ thi công tại công trường.

  • Sự tận tâm: Chúng tôi coi nhà của khách hàng như nhà của chính mình. Mỗi nét vẽ đều chứa đựng sự tâm huyết và trách nhiệm.

Mẫu biệt thự 2 tầng tân cổ điển của anh Hùng tại Quảng Oai là một minh chứng cho sự nỗ lực không ngừng nghỉ của TechHome trong việc kiến tạo những không gian sống đẳng cấp.

Tổng thể mẫu biệt thự 2 tầng tân cổ điển


7. Góc nhìn chuyên gia: Làm sao để có biệt thự 2 tầng tân cổ điển đẹp xuất sắc?

Để ngôi nhà của bạn thực sự nổi bật như mẫu biệt thự 2 tầng tân cổ điển này, tôi có một vài lời khuyên nhỏ:

  1. Đừng tiếc tiền cho hệ thống cửa: Cửa chính bằng gỗ tự nhiên và cửa sổ nhôm kính Xingfa cao cấp sẽ là bộ mặt của ngôi nhà. Hãy chọn loại có độ bền cao và cách âm tốt.

  2. Chú trọng ánh sáng ngoại thất: Việc bố trí các đèn tường cổ điển tại các vị trí cột sẽ giúp căn biệt thự 2 tầng tân cổ điển trở nên lung linh và lộng lẫy như một lâu đài khi màn đêm buông xuống.

  3. Cây xanh và cảnh quan: Một khoảng sân vườn nhỏ với cây tùng hay những bụi hoa hồng leo sẽ làm mềm mại đi những khối bê tông, giúp không gian sống trở nên thư thái hơn.

Phong cách biệt thự 2 tầng tân cổ điển không bao giờ lỗi mốt. Nó đại diện cho sự bền vững, sang trọng và gu thẩm mỹ tinh tế của chủ nhân. Nếu bạn đang có ý định xây dựng tổ ấm tại Hà Nội hay các tỉnh lân cận, đừng ngần ngại liên hệ với chúng tôi.

Tổng thể mẫu biệt thự 2 tầng tân cổ điển


8. Kết luận

Mẫu biệt thự 2 tầng tân cổ điển diện tích 245m² tại Quảng Oai là sự lựa chọn lý tưởng cho những gia đình đa thế hệ. Với công năng 4 phòng ngủ, phòng khách rộng rãi và phòng thờ trang trọng, ngôi nhà này đáp ứng đầy đủ mọi nhu cầu từ tâm linh đến sinh hoạt thường nhật.

Kiến trúc TechHome tự hào là đơn vị đồng hành cùng anh Hùng trong dự án này. Chúng tôi luôn sẵn sàng lắng nghe và biến những ý tưởng của bạn thành hiện thực. Hãy truy cập ngay nhadeptechhome.vn để xem thêm hàng trăm mẫu biệt thự 2 tầng tân cổ điển đẹp khác và nhận tư vấn miễn phí.

Một ngôi nhà đẹp bắt đầu từ một bản vẽ tâm huyết. Đừng để ước mơ của bạn chỉ dừng lại ở ý nghĩ. Hãy cùng TechHome xây dựng căn biệt thự 2 tầng tân cổ điển dành riêng cho gia đình bạn ngay hôm nay!


Thông tin liên hệ:

Để lại một bình luận

Email của bạn sẽ không được hiển thị công khai. Các trường bắt buộc được đánh dấu *

    Vui lòng nhấn nút YÊU CẦU TƯ VẤN và đợi 1 - 2 giây đến khi thấy thông báo thành công

    YÊU CẦU TƯ VẤN