Bạn đang sở hữu một mảnh đất phân lô phố thị và đang loay hoay với bài toán: Làm sao để ngôi nhà vừa đủ công năng cho gia đình đông thành viên, vừa phải thoáng đãng mà nhìn từ ngoài vào phải có “gu”? Dự án mẫu nhà phố 3 tầng hiện đại của gia đình anh Vương tại Lào Cai chính là câu trả lời trọn vẹn nhất mà Techhome muốn giới thiệu đến bạn.
1. Câu chuyện đằng sau bản vẽ “đo ni đóng giày” cho Anh Vương
Khi tìm đến đội ngũ kiến trúc sư (KTS) Techhome, anh Vương chia sẻ một nỗi niềm rất thực tế: “Anh ở vùng cao Lào Cai, khí hậu có lúc khắc nghiệt, nhà lại ngay mặt phố nên vừa muốn kín đáo để tránh bụi bẩn, tiếng ồn, nhưng lại không được bí bách.” Thấu hiểu điều đó, chúng tôi không chọn những chi tiết rườm rà. Mẫu nhà phố 3 tầng hiện đại này được định hình theo phong cách tối giản kết hợp với các mảng xanh kiến trúc. Nhìn vào phối cảnh, bạn sẽ thấy sự kết hợp tinh tế giữa tông màu trắng sứ, xám đá và các thanh lam gỗ nhựa trang trí. Đây không chỉ là thẩm mỹ, mà còn là giải pháp chống nóng và tạo sự riêng tư cho các phòng ngủ phía trước.

2. Phân tích mặt bằng công năng: Tối ưu đến từng cm²
Với diện tích sàn 91.0m², các KTS đã bố trí một không gian sống cực kỳ khoa học. Hãy cùng “dạo” một vòng qua các tầng để xem Techhome giải bài toán không gian như thế nào:
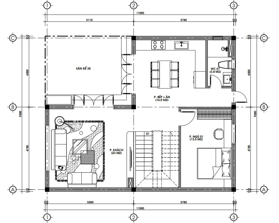
Tầng 1: Không gian kết nối và tiện nghi
-
Sân để xe: Rộng rãi, đảm bảo an toàn cho phương tiện của gia đình.
-
Phòng khách (23m²): Là “bộ mặt” của ngôi nhà, được thiết kế mở để đón sáng tự nhiên.
-
Phòng Bếp + Ăn (16m²): Nơi giữ lửa hạnh phúc, được ngăn cách khéo léo để mùi thức ăn không ám vào phòng khách.
-
Phòng ngủ 01 (13.5m²): Đặc biệt dành cho người lớn tuổi trong nhà hoặc làm phòng ngủ dự phòng, cực kỳ thuận tiện vì không phải leo thang.
-
Chiều cao tầng: 3m9, giúp không gian tầng trệt cực kỳ thoáng đạt.

Tầng 2: Thế giới riêng tư tuyệt đối
Lên đến tầng 2, chúng tôi bố trí tới 3 phòng ngủ để đảm bảo mỗi thành viên đều có không gian riêng:
-
Phòng ngủ 02 (15.5m²) & Phòng ngủ 04 (13.5m²): Đầy đủ ánh sáng nhờ hệ thống cửa sổ lớn.
-
Phòng ngủ 03 (17.5m²): Là phòng Master với ban công rộng, nơi gia chủ có thể nhâm nhi ly trà mỗi sáng.
-
Cầu thang: 25 bậc với độ cao 144mm, được tính toán kỹ lưỡng về mặt phong thủy và nhân trắc học để đi lại không bị mỏi gối.

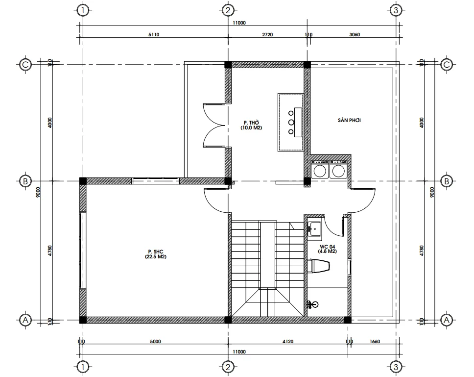
Tầng Tum: Nơi thư giãn và tâm linh
Mẫu nhà phố 3 tầng hiện đại này dành tầng trên cùng cho những giá trị tinh thần:
-
Phòng thờ (10m²): Đặt ở vị trí trang trọng nhất, hướng ra ban công thoáng.
-
Phòng sinh hoạt chung (22.5m²): Nơi cả nhà xem phim, hát karaoke hoặc tụ tập bạn bè cuối tuần.
-
Sân phơi: Rộng rãi, kín đáo.

3. Tại sao mẫu nhà phố 3 tầng hiện đại này lại “gây bão”?
Nếu bạn lướt TikTok hay Pinterest, bạn sẽ thấy kiểu kiến trúc giật khối như nhà anh Vương đang là xu hướng. Điểm nhấn là hệ thống lam gỗ chạy dọc mặt tiền. Giúp ngôi nhà trông hiện đại, sang trọng và làm nổi bật kiến trúc mặt tiền.
Hệ cửa nhôm kính Xingfa bản lớn giúp xóa nhòa ranh giới giữa bên trong và bên ngoài. Đặc biệt, việc sử dụng các vật liệu mới như gạch giả đá và gỗ nhựa ngoài trời giúp ngôi nhà luôn trông như mới dù sau nhiều năm sử dụng dưới thời tiết nắng mưa thất thường của Lào Cai.
4. Gợi ý từ chuyên gia Techhome để có bài viết (và ngôi nhà) chuẩn chỉnh
Dưới góc độ chuyên môn, để một mẫu nhà phố 3 tầng hiện đại thực sự đáng sống, bạn cần lưu ý 3 yếu tố mà Techhome luôn lồng ghép vào bản vẽ:
-
Ánh sáng tự nhiên: Đừng chỉ nhìn mặt tiền. Hãy chú ý đến giếng trời. Tại nhà anh Vương, khu vực cầu thang chính là “buồng phổi” hút sáng cho toàn bộ các phòng phía trong.
-
Phong thủy khoa học: Chúng tôi không mê tín, nhưng việc đặt hướng bếp, hướng bàn thờ hay số bậc cầu thang (25 bậc – rơi vào cung “Sinh”) là cách để gia chủ yên tâm về mặt tâm linh.
-
Vật liệu bền vững: Ưu tiên các loại sơn chống thấm cao cấp và đá tự nhiên cho phần chân tường để tránh ẩm mốc.

5. Báo giá tham khảo thi công mẫu nhà phố 3 tầng hiện đại
Lưu ý: Đơn giá thực tế có thể thay đổi tùy vào thời điểm và chủng loại vật liệu bạn chọn. Dưới đây là mức giá phổ biến tại Techhome:
| Hạng mục | Đơn giá tham khảo |
| Thiết kế kiến trúc | 108.000đ/m² |
| Thi công phần thô & Nhân công hoàn thiện | 3.800.000đ – 4.200.000đ/m² |
| Thi công trọn gói (Chìa khóa trao tay) | 6.000.000đ – 7.500.000đ/m² |
Với diện tích tổng sàn khoảng 273m² , chi phí đầu tư cho một ngôi nhà như của anh Vương dao động từ 1.7 tỷ đến 2.1 tỷ đồng.
Lưu ý: Đây chỉ là mức chi phí ước tính. Để nhận được báo giá chính xác và chi tiết nhất cho công trình của bạn, vui lòng liên hệ trực tiếp với chúng tôi. Hoặc để tìm hiểu rõ hơn về tiêu chuẩn vật liệu xây dựng và các yếu tố ảnh hưởng đến chi phí, bạn có thể tham khảo thêm tại các bài viết chuyên sâu về vật liệu xây dựng cao cấp trên Wikipedia.

6. Kết luận
Xây nhà là việc cả đời. Một mẫu nhà phố 3 tầng hiện đại đẹp không chỉ ở cái mã bên ngoài mà phải tiện trong cách sử dụng, mát vào mùa hè và ấm vào mùa đông. Tại Techhome, chúng tôi không bán bản vẽ, chúng tôi bán giải pháp sống cho gia đình bạn.
Nếu bạn đang có ý định xây dựng tổ ấm tại Lào Cai hay bất cứ đâu, đừng ngần ngại liên hệ với đội ngũ KTS của chúng tôi. Chúng tôi sẽ cùng bạn vẽ nên ngôi nhà trong mơ với mức chi phí tối ưu nhất.

THÔNG TIN LIÊN HỆ:
-
Công ty Cổ phần Kiến trúc và Xây dựng Techhome
-
Website: nhadeptechhome.vn
-
Hotline: 0364.042.222 / 0387.603.333
-
Địa chỉ: B1.1 LK18 Ô 3 – KĐT Thanh Hà – Cienco 5 – Thanh Oai- Hà Nội.


