Có những ngôi nhà khi nhìn vào, ta không chỉ thấy gạch đá, xi măng mà thấy cả một tác phẩm nghệ thuật, một khao khát khẳng định vị thế của gia chủ. Công trình mà Techhome muốn giới thiệu với các bác hôm nay chính là một ví dụ điển hình như thế. Đó là mẫu biệt thự 2 tầng tân cổ điển đầy kiêu hãnh của gia đình anh Long tại mảnh đất Vĩnh Tường, Vĩnh Phúc.
Nếu các bác đang loay hoay tìm kiếm một ý tưởng thiết kế vừa sang trọng, bề thế lại vừa ấm cúng, tiện nghi cho gia đình đông người, thì đừng bỏ qua bài viết này. Techhome sẽ “mổ xẻ” chi tiết từ kiến trúc ngoại thất đến cách bố trí công năng bên trong, và đặc biệt là hé lộ mức chi phí đầu tư để các bác cùng tham khảo.
1. Thông tin tổng quan dự án
Trước khi đi vào chi tiết, mời các bác điểm qua vài thông số kỹ thuật “cứng” của hồ sơ thiết kế này:
-
Chủ đầu tư: Anh Long.
-
Địa điểm xây dựng: Vĩnh Tường – Vĩnh Phúc.
-
Đơn vị thiết kế: Công ty Cổ phần Kiến trúc và Xây dựng Techhome.
-
Loại hình: Mẫu biệt thự 2 tầng tân cổ điển mái Mansard.
-
Diện tích xây dựng: 135m2/sàn.
-
Kích thước mặt tiền: 9.9m.
-
Chiều sâu nhà: 12.5m.
-
Công năng:
-
Tầng 1: Phòng khách + Sảnh, Phòng thờ, Bếp + Ăn, 01 Phòng ngủ, 02 WC.
-
Tầng 2: Phòng sinh hoạt chung, 03 Phòng ngủ, 03 WC.
-

2. Vẻ đẹp ngoại thất: Sự giao thoa giữa quyền lực và tinh tế
Thú thật với các bác, khi cầm bản phối cảnh này trên tay, đội ngũ KTS Techhome cũng phải gật gù tâm đắc. Cái hay của mẫu biệt thự 2 tầng tân cổ điển này nằm ở chỗ nó không quá rườm rà như cổ điển thuần túy, nhưng lại “ăn đứt” các mẫu hiện đại về độ sang trọng.
Hệ mái Mansard – “Vương miện” của ngôi nhà
Điểm nhấn đắt giá nhất chính là hệ mái Mansard màu xanh than quyền lực. Nhìn từ xa, nó như một chiếc vương miện đội lên khối nhà trắng sứ. Không chỉ đẹp, mái Mansard còn là giải pháp chống nóng tuyệt vời cho khí hậu miền Bắc. Với độ cao và kết cấu rỗng bên trong, nó tạo ra một lớp đệm không khí, giúp tầng 2 luôn mát mẻ vào mùa hè. Đây là một mẹo nhỏ mà khi chọn mẫu biệt thự 2 tầng tân cổ điển, các bác nên lưu ý.
Hệ phào chỉ và cột trụ
Nhìn vào mặt tiền, các bác sẽ thấy hệ cột trụ vuông tròn đan xen cực kỳ vững chãi. Các chi tiết phào chỉ, hoa văn phù điêu ở sảnh chính và đầu cột được đắp vẽ tỉ mỉ nhưng không hề rối mắt. Sự tiết chế này làm nên cái “duyên” của kiến trúc Pháp.
Màu sơn trắng chủ đạo kết hợp với lan can nhôm đúc mạ vàng tạo nên độ tương phản cực mạnh. Techhome luôn khuyên khách hàng: “Muốn nhà sang lâu, cứ trắng sứ mà sơn, muốn nhà quyền quý, thêm chút vàng son”. Và mẫu biệt thự 2 tầng tân cổ điển nhà anh Long đã áp dụng triệt để công thức này.

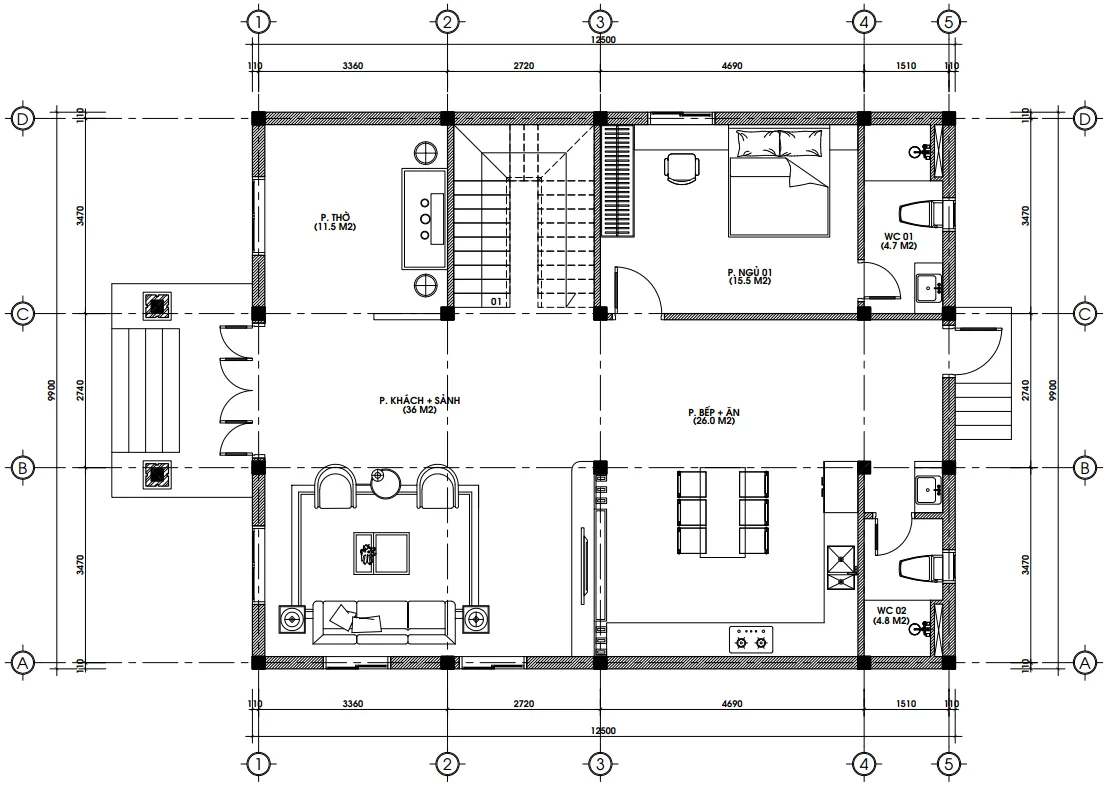
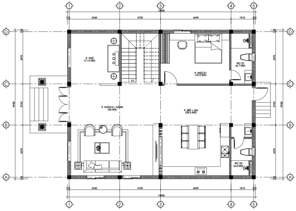
3. “Soi” bản vẽ công năng: Bài toán diện tích và thói quen sinh hoạt
Đẹp bên ngoài là để người ta ngắm, nhưng tiện bên trong mới là để mình sống. Với diện tích 135m2/sàn, KTS Techhome đã giải bài toán công năng cho nhà anh Long như thế nào?
Tầng 1: Không gian kết nối và truyền thống
Bước qua sảnh chính bề thế là không gian Phòng khách + Sảnh rộng tới 36m2. Đây là bộ mặt của gia chủ, nơi anh Long có thể tự hào đón tiếp bạn bè, đối tác. Một điểm cộng rất lớn trong thiết kế này là Phòng thờ (11.5m2) được đặt ngay tại tầng 1, nhìn thẳng ra mặt tiền. Nhiều bác hay thắc mắc: “Tại sao không đưa phòng thờ lên cao nhất?”. Thực tế, với những gia đình có người lớn tuổi, hoặc gia chủ là trưởng nam hay phải cúng giỗ, việc đặt phòng thờ tầng 1 là cực kỳ tiện lợi và ấm cúng, chuẩn phong tục quê mình.
Tiếp đến là khu Bếp + Ăn rộng 26m2. Các bà nội trợ chắc chắn sẽ mê mẩn khu vực này vì có cửa phụ thông ra sân ướt bên hông, giúp nhà luôn thoáng khí, không bị ám mùi thức ăn. Một phòng ngủ khép kín (15.5m2) dành cho ông bà được bố trí kín đáo phía sau, đảm bảo sự yên tĩnh tuyệt đối. 1 Wc chung 4.8m2 tiện lợi.
Với cách bố trí này, mẫu biệt thự 2 tầng tân cổ điển không chỉ là nơi ở, mà là nơi gắn kết các thế hệ.

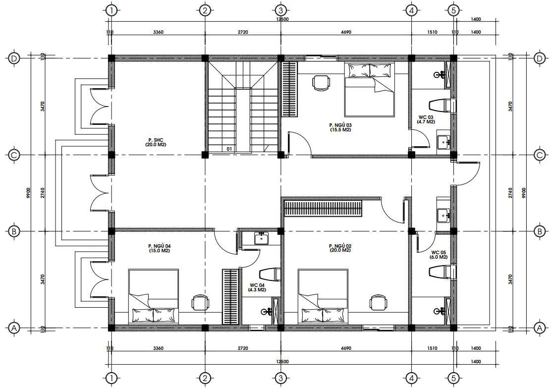
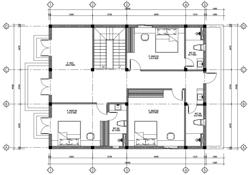
Tầng 2: Thế giới riêng tư và thư giãn
Leo lên 25 bậc cầu thang, chúng ta đến với không gian sinh hoạt riêng tư. Tâm điểm của tầng 2 là Phòng sinh hoạt chung (20m2). Đây là nơi cả nhà quây quần xem tivi, hát karaoke vào mỗi tối mà không ảnh hưởng đến hàng xóm.
Xung quanh là 3 phòng ngủ. Trong đó, Phòng ngủ 02 (20m2) rất rộng rãi. Phòng ngủ 03 (15.5m2) và Phòng ngủ 04 (15m2) đều có WC khép kín rất tiện lợi cho các thành viên trong gia đình. Đặc biệt các phòng đều có cửa sổ lớn đón gió trời.
Việc bố trí tới 3 phòng vệ sinh (2 khép kín, 1 chung) cho thấy anh Long rất chú trọng đến sự tiện nghi cho từng thành viên. Rất hiếm mẫu biệt thự 2 tầng tân cổ điển nào có diện tích sàn 135m2 mà bố trí được tới 4 phòng ngủ rộng rãi như thế này.

4. Tại sao “Mẫu biệt thự 2 tầng tân cổ điển” lại trở thành xu hướng “quốc dân”?
Là người làm nghề lâu năm, tôi thấy không phải ngẫu nhiên mà từ khóa mẫu biệt thự 2 tầng tân cổ điển lại được tìm kiếm nhiều đến vậy. Có 3 lý do chính:
-
Không lỗi mốt: Kiến trúc hiện đại có thể thay đổi theo “trend” từng năm, nhưng tân cổ điển thì 10 năm, 20 năm sau nhìn lại vẫn thấy sang. Nó như bộ vest của một quý ông, bao giờ cũng lịch lãm.
-
Hợp khí hậu: Hệ tường dày, mái cao, nhiều cửa sổ của phong cách này cực kỳ phù hợp với thời tiết nóng ẩm mưa nhiều của Việt Nam.
-
Thể hiện đẳng cấp: Nói gì thì nói, sở hữu một mẫu biệt thự 2 tầng tân cổ điển vẫn là một lời khẳng định ngầm về sự thành đạt của gia chủ với bà con lối xóm.
5. Góc chuyên gia: Những điều KTS thường “giấu” bạn
Ngoài bản vẽ đẹp, để xây được ngôi nhà như ý, Techhome xin mách nhỏ các bác vài kinh nghiệm xương máu mà ít đơn vị nào chia sẻ kỹ:
-
Đừng tiếc tiền cho phần Móng và Mái: Đây là hai phần quan trọng nhất. Với mẫu biệt thự 2 tầng tân cổ điển có hệ mái Mansard nặng, kết cấu móng phải được tính toán cực kỳ kỹ lưỡng. Đừng làm theo kinh nghiệm “áng chừng” của thợ vườn, nứt tường như chơi đấy các bác ạ.
-
Ánh sáng là “vũ khí” bí mật: Ban ngày thì không sao, nhưng ban đêm, để ngôi nhà lung linh như phối cảnh, các bác cần đầu tư hệ thống đèn hắt ngoại thất. Chiếu sáng cột, chiếu sáng phù điêu sẽ làm nổi bật khối kiến trúc.
-
Vật liệu hoàn thiện: Phào chỉ xi măng đắp tay sẽ có hồn hơn phào chỉ nhựa PU đúc sẵn, nhưng thợ phải tay nghề cao. Techhome luôn giám sát chặt chẽ phần này.
-
Phong thủy: Hướng cửa, vị trí bếp, ban thờ phải được tính theo tuổi gia chủ. Như nhà anh Long, kích thước cửa đều được lấy theo thước Lỗ Ban phong thủy để đón tài lộc.

6. Báo giá thiết kế và thi công (Cập nhật 2026)
Đây chắc chắn là phần các bác mong chờ nhất. Chi phí để sở hữu một mẫu biệt thự 2 tầng tân cổ điển như nhà anh Long là bao nhiêu?
Lưu ý: Giá cả có thể thay đổi tùy thời điểm, vị trí và giá vật liệu.
Gói thiết kế kiến trúc: Tại Techhome, chúng tôi đang có mức giá cực kỳ ưu đãi cho bà con.
-
Đơn giá: 108.000đ/m2.
-
Với căn nhà 135m2 x 2 tầng = 270m2, chi phí thiết kế trọn bộ hồ sơ (Kiến trúc, Kết cấu, Điện nước) chỉ khoảng 29 triệu đồng. Một con số quá nhỏ so với tổng giá trị công trình để đổi lấy sự an tâm tuyệt đối.
Gói thi công xây dựng trọn gói: Với phong cách tân cổ điển, mức độ hoàn thiện đòi hỏi cao hơn nhà phố thông thường.
-
Phần thô + Nhân công hoàn thiện: Khoảng 4.5 – 5 triệu đồng/m2.
-
Trọn gói (Chìa khóa trao tay): Khoảng 8 – 9 triệu đồng/m2 (Tùy vật liệu gạch ốp, thiết bị vệ sinh loại trung bình hay cao cấp).
-
Tổng mức đầu tư dự kiến: Để hoàn thiện mẫu biệt thự 2 tầng tân cổ điển này (chưa bao gồm nội thất rời và sân vườn), anh Long cần chuẩn bị khoảng 2 tỷ – 2.5 tỷ đồng.
Tuy nhiên, các bác đừng lo. Techhome luôn có giải pháp “liệu cơm gắp mắm”, cân đối vật liệu để phù hợp với túi tiền của từng gia đình mà vẫn đảm bảo kết cấu và thẩm mỹ.
Lưu ý: Đây chỉ là mức chi phí ước tính. Để nhận được báo giá chính xác và chi tiết nhất cho công trình của bạn, vui lòng liên hệ trực tiếp với chúng tôi. Hoặc để tìm hiểu rõ hơn về tiêu chuẩn vật liệu xây dựng và các yếu tố ảnh hưởng đến chi phí, bạn có thể tham khảo thêm tại các bài viết chuyên sâu về vật liệu xây dựng cao cấp trên Wikipedia.

7. Quy trình làm việc của Techhome: Minh bạch – Tận tâm
Khi làm việc với anh Long tại Vĩnh Phúc, Techhome đã chinh phục gia chủ bằng quy trình làm việc chuyên nghiệp:
-
Khảo sát thực địa: Đo đạc đất, hướng gió, hướng nắng.
-
Lên phương án mặt bằng: Bàn bạc kỹ lưỡng nhu cầu sinh hoạt.
-
Dựng phối cảnh 3D: Để gia chủ hình dung rõ nét ngôi nhà tương lai (như hình các bác đang xem).
-
Triển khai hồ sơ kỹ thuật thi công: Chi tiết đến từng viên gạch, cây thép.
-
Giám sát tác giả: Đồng hành cùng gia chủ trong quá trình xây dựng.
Hồ sơ bàn giao cho anh Long bao gồm đầy đủ các hạng mục: Kiến trúc, Kết cấu, Điện, Nước… được đóng quyển bài bản, giúp thợ xây ở quê nhìn là hiểu, làm là đúng.

8. Lời kết
Xây nhà là chuyện cả đời. Một mẫu biệt thự 2 tầng tân cổ điển không chỉ là chốn đi về mà còn là di sản để lại cho con cháu. Techhome hiểu rõ tâm tư đó của các bác. Chúng tôi không chỉ vẽ nhà, chúng tôi kiến tạo tổ ấm.
Nếu các bác đang sở hữu mảnh đất đẹp và ấp ủ giấc mơ về một cơ ngơi khang trang như nhà anh Long, hay đơn giản là muốn tìm hiểu thêm về mẫu biệt thự 2 tầng tân cổ điển, đừng ngần ngại nhấc máy lên.
Anh em kiến trúc sư Techhome luôn sẵn sàng tư vấn miễn phí, nhiệt tình như người nhà!
CÔNG TY CỔ PHẦN KIẾN TRÚC VÀ XÂY DỰNG TECHHOME
-
Hotline/Zalo: 0364.04.2222 – 0387.60.3333
-
Website: https://nhadeptechhome.vn/
-
Địa chỉ: B1.1 LK18 Ô 3 – KĐT Thanh Hà – Cienco 5 – Thanh Oai- Hà Nội.
Hãy để Techhome hiện thực hóa giấc mơ an cư của bạn bằng những mẫu biệt thự 2 tầng tân cổ điển đẳng cấp nhất!
