Siêu Phẩm Thiết Kế Nhà Phố 3 Tầng Mái Thái Đẳng Cấp Tại Kim Động – Hưng Yên

Techhome giới thiệu mẫu thiết kế nhà phố 3 tầng mái thái tuyệt đẹp của anh Long tại Hưng Yên. Công trình sở hữu 6 phòng ngủ, kiến trúc tân cổ điển sang trọng, tối ưu công năng và phong thủy. Xem ngay bản vẽ chi tiết!


1. Giới thiệu chung: Xu hướng thiết kế nhà phố 3 tầng mái thái lên ngôi

Trong bức tranh kiến trúc đô thị hiện đại tại Việt Nam, những ngôi nhà ống mái bằng vuông vức đang dần nhường chỗ cho sự trở lại đầy ngoạn mục của phong cách mái Thái. Đặc biệt, tại các khu vực đang phát triển mạnh mẽ như huyện Kim Động, tỉnh Hưng Yên, nhu cầu về một không gian sống vừa tiện nghi, vừa mang tính thẩm mỹ nghệ thuật ngày càng cao. Dự án thiết kế nhà phố 3 tầng mái thái của gia đình anh Long chính là một minh chứng sống động cho xu hướng này.

Công trình được thực hiện bởi Công ty Cổ phần Kiến trúc và Xây dựng Techhome, không chỉ giải quyết bài toán về diện tích đất đặc trưng của nhà phố (mặt tiền hẹp, chiều sâu dài) mà còn kiến tạo nên một diện mạo bề thế, sang trọng nhờ hệ mái Thái cao ráo kết hợp cùng ngôn ngữ kiến trúc Tân cổ điển .

Với kích thước xây dựng mặt tiền 6m và chiều sâu 13m, anh Long mong muốn một ngôi nhà phải đảm bảo đủ không gian sinh hoạt cho đại gia đình nhiều thế hệ nhưng không được bí bách. Giải pháp thiết kế nhà phố 3 tầng mái thái mà Techhome đưa ra đã hoàn toàn chinh phục chủ đầu tư ngay từ những bản vẽ sơ phác đầu tiên. Hãy cùng chúng tôi đi sâu phân tích vẻ đẹp và giải pháp kỹ thuật của công trình này qua bộ hồ sơ thi công chi tiết.

thiết kế nhà phố 3 tầng mái thái

2. Phối cảnh ngoại thất: Đỉnh cao của nghệ thuật thiết kế nhà phố 3 tầng mái thái

Điểm nhấn quan trọng nhất khiến mẫu thiết kế nhà phố 3 tầng mái thái này trở nên nổi bật chính là sự kết hợp hài hòa giữa hình khối kiến trúc vững chãi và sự mềm mại của các chi tiết trang trí.

Kiến trúc mặt tiền sang trọng

Nhìn vào phối cảnh, ngôi nhà hiện lên với vẻ đẹp thanh thoát. Hệ thống cột trụ vuông vắn tại sảnh chính và ban công các tầng được thiết kế theo thức cột cổ điển nhưng đã được lược bỏ các chi tiết rườm rà, thay vào đó là những đường phào chỉ chạy dọc thân cột, tạo cảm giác cao ráo cho công trình.

Màu sắc chủ đạo được lựa chọn là gam màu trắng sứ hoặc kem nhẹ, làm nền hoàn hảo để tôn lên màu xanh than hoặc đỏ của hệ mái Thái. Tại tầng 1, mặt tiền được ốp đá Granite vân mây màu vàng hoàng gia, không chỉ tạo điểm nhấn sang trọng mà còn giúp bảo vệ tường khỏi rêu mốc, bụi bẩn – một đặc điểm ưu việt trong các bản vẽ thiết kế nhà phố 3 tầng mái thái của Techhome.

Hệ mái Thái ưu việt

Mái Thái không chỉ đẹp mà còn là giải pháp khí hậu tuyệt vời cho miền Bắc Việt Nam. Hệ mái được thiết kế với độ dốc chữ A lý tưởng. Điều này giúp:

  • Thoát nước nhanh: Vào mùa mưa, nước sẽ trôi tuột nhanh chóng, không gây ứ đọng, thấm dột cho trần nhà.

  • Chống nóng hiệu quả: Lớp mái ngói cùng khoảng không đệm khí phía dưới giúp tản nhiệt tốt, giữ cho tầng 3 và tầng áp mái luôn mát mẻ vào mùa hè.

  • Tăng chiều cao thẩm mỹ: Hệ mái chóp nhọn giúp mẫu thiết kế nhà phố 3 tầng mái thái trông cao hơn, bề thế hơn rất nhiều so với mái bằng, xóa tan cảm giác “nhà ống” chật hẹp.

thiết kế nhà phố 3 tầng mái thái

3. Phân tích mặt bằng công năng: Bài toán không gian được giải mã

Sự thành công của một bản vẽ thiết kế nhà phố 3 tầng mái thái không chỉ nằm ở vẻ ngoài hào nhoáng mà còn ở cách bố trí công năng bên trong. Với diện tích sàn khoảng hơn 80m2/sàn, KTS Techhome đã bố trí khéo léo để đạt được tới 6 phòng ngủ – một con số ấn tượng.

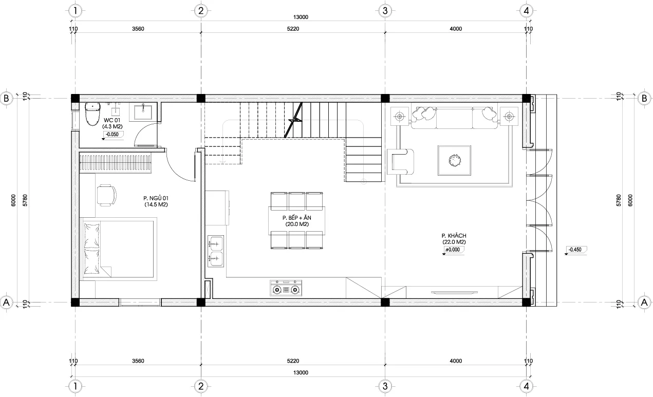
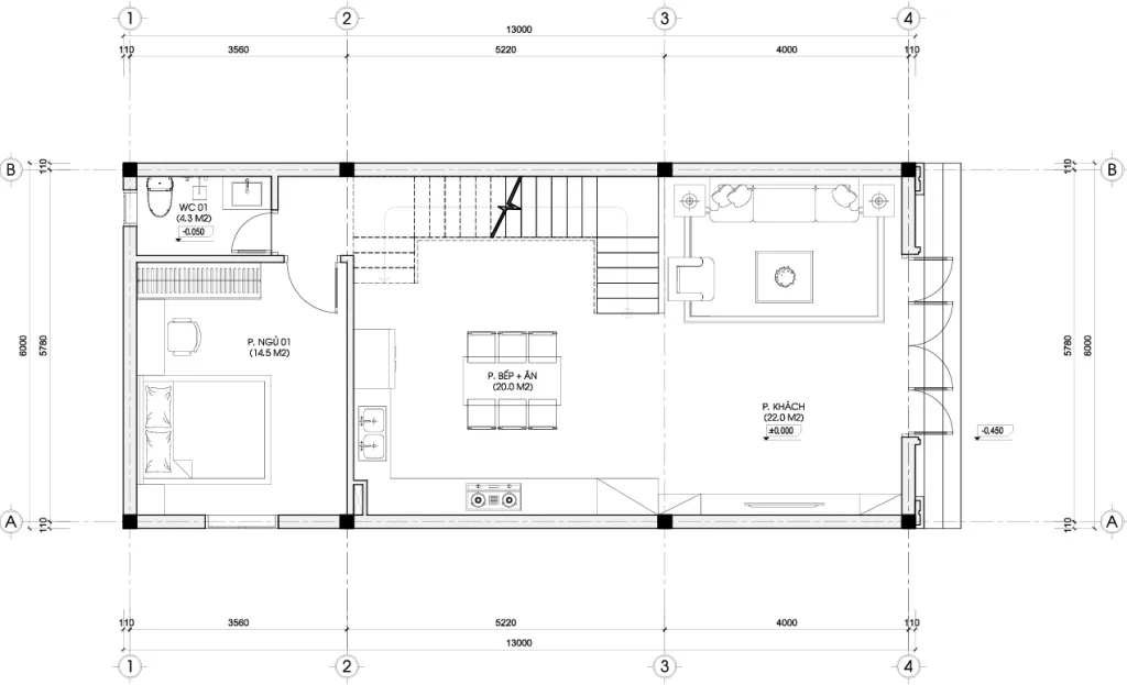
Tầng 1: Sự kết nối và tiện nghi

Từ sảnh chính bước qua hệ cửa gỗ Pano 4 cánh rộng lớn (Kích thước 3000x2700mm), chúng ta tiến vào không gian tầng 1:

  • Phòng khách (22m2): Không gian tiếp khách rộng rãi, vuông vắn. Hệ thống trần thạch cao giật cấp kết hợp đèn chùm tạo nên sự lộng lẫy.

  • Phòng bếp + Ăn (20m2): Được ngăn cách ước lệ với phòng khách qua khu vực cầu thang, đảm bảo sự riêng tư nhưng vẫn thông thoáng.

  • Phòng ngủ 01 (14.5m2): Đây là điểm tinh tế trong mẫu thiết kế nhà phố 3 tầng mái thái này. Phòng ngủ tầng 1 dành riêng cho người lớn tuổi, giúp ông bà hạn chế việc leo cầu thang, đảm bảo an toàn tuyệt đối.

  • WC 01 (4.3m2): Bố trí kín đáo, tận dụng diện tích gầm cầu thang nhưng vẫn đảm bảo tiện nghi.

mặt bằng thiết kế nhà phố 3 tầng mái thái

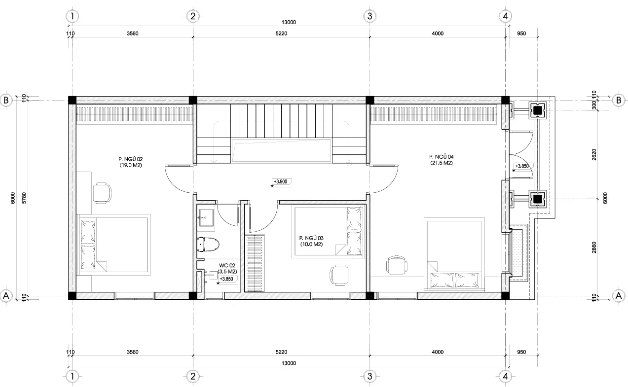
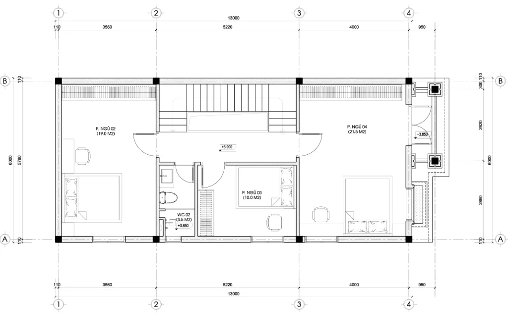
Tầng 2: Không gian nghỉ ngơi riêng tư

Tầng 2 được dành trọn vẹn cho nhu cầu nghỉ ngơi với mật độ phòng cao:

  • Phòng ngủ 02 (19m2): Phòng ngủ lớn, có cửa mở ra thoáng mát.

  • Phòng ngủ 04 (Master – 21.5m2): Phòng ngủ rộng nhất, dành cho vợ chồng gia chủ.

  • Phòng ngủ 03 (10m2): Phòng ngủ nhỏ dành cho con.

  • WC 02 (3.5m2): Nhà vệ sinh chung được đặt ở vị trí trung tâm, thuận tiện cho cả 3 phòng ngủ sử dụng.

mặt bằng thiết kế nhà phố 3 tầng mái thái

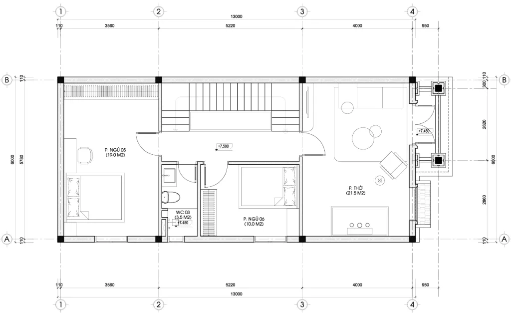
Tầng 3: Tâm linh và mở rộng

Trong văn hóa người Việt, và đặc biệt là trong các mẫu thiết kế nhà phố 3 tầng mái thái, phòng thờ luôn được đặt ở vị trí cao nhất và trang trọng nhất.

  • Phòng thờ (21.5m2): Hướng ra mặt tiền, đón vượng khí. Ban công phía trước giúp không gian thờ cúng luôn thoáng đãng, không bị ám khói hương.

  • Phòng ngủ 05 & 06: Hai phòng ngủ chờ, dùng cho khách hoặc làm kho lưu trữ, phòng làm việc khi cần thiết.

Việc bố trí tới 6 phòng ngủ trong một diện tích nhà phố đòi hỏi sự tính toán cực kỳ khoa học về giao thông và thông gió, điều mà Techhome đã thực hiện xuất sắc.

4. Đánh giá về Kết cấu và Vật liệu: Nền tảng của sự bền vững

Để hiện thực hóa bản vẽ thiết kế nhà phố 3 tầng mái thái này, Techhome đã chỉ định những vật liệu và giải pháp kết cấu tiên tiến nhất trong hồ sơ kỹ thuật thi công.

Kết cấu khung bê tông cốt thép chịu lực

Hệ thống móng, dầm, cột được tính toán để chịu được tải trọng của ngôi nhà 3 tầng cộng thêm tải trọng của hệ mái Thái khá nặng (bao gồm kèo thép, ngói lợp). Bản vẽ mặt bằng định vị cột cho thấy hệ lưới cột được phân bố đều, kích thước cột đảm bảo khả năng chịu lực vượt trội. Sàn các tầng được đổ bê tông toàn khối, đảm bảo không có hiện tượng rung lắc hay nứt trần sau thời gian dài sử dụng.

Hệ thống cửa và vật liệu hoàn thiện

Một yếu tố làm nên vẻ đẹp của các mẫu thiết kế nhà phố 3 tầng mái thái chính là hệ thống cửa:

  • Cửa chính : Sử dụng gỗ tự nhiên (Lim Nam Phi hoặc Gõ Đỏ), pano đặc, trạm khắc hoa văn tinh xảo, kích thước lỗ ban phong thủy.

  • Cửa thông phòng và cửa vệ sinh: Sử dụng cửa gỗ công nghiệp cao cấp hoặc cửa nhựa Composite chịu nước.

  • Cửa sổ : Techhome ưu tiên sử dụng nhôm hệ Xingfa nhập khẩu kết hợp kính cường lực dày 8.38mm hoặc 6.38mm an toàn. Điều này giúp lấy sáng tối đa, đồng thời cách âm, cách nhiệt tốt, rất phù hợp với khí hậu miền Bắc.

Hệ thống Điện – Nước và Trần

Trong gói thiết kế nhà phố 3 tầng mái thái, hệ thống kỹ thuật điện nước được chú trọng đặc biệt:

  • Trần thạch cao khung xương chìm Vĩnh Tường, chống ẩm cho khu vực bếp và vệ sinh.

  • Hệ thống đèn LED Downlight âm trần tiết kiệm điện, tuổi thọ cao.

  • Sàn nhà vệ sinh được chống thấm 2 lớp bằng Sika, lát gạch chống trơn trượt, đảm bảo an toàn cho người già và trẻ nhỏ.

thiết kế nhà phố 3 tầng mái thái

5. Lợi ích và Giá trị khi chọn Techhome cho dự án thiết kế nhà phố 3 tầng mái thái

Tại sao anh Long tại Kim Động – Hưng Yên lại tin tưởng giao phó ngôi nhà mơ ước cho Techhome? Dưới đây là những lý do khiến dịch vụ thiết kế nhà phố 3 tầng mái thái của chúng tôi luôn dẫn đầu thị trường:

  1. Hồ sơ thiết kế chi tiết chuẩn “từng milimet”: Như bạn thấy qua các hình ảnh dự án, bộ hồ sơ của Techhome bao gồm đầy đủ các hạng mục: Kiến trúc, Kết cấu, Điện, Nước, Dự toán. Từng chi tiết phào chỉ, kích thước cửa, cách lát sàn đều được quy định rõ ràng, giúp thợ thi công dễ dàng và chính xác tuyệt đối.

  2. Tối ưu hóa chi phí xây dựng: Nhờ bản vẽ chi tiết, gia chủ có thể bóc tách khối lượng vật tư chính xác, hạn chế tối đa chi phí phát sinh – nỗi lo lớn nhất khi xây nhà. Với kinh nghiệm dày dặn trong việc thiết kế nhà phố 3 tầng mái thái, chúng tôi biết cách lựa chọn vật liệu vừa túi tiền mà vẫn đảm bảo thẩm mỹ.

  3. Am hiểu phong thủy: Chúng tôi không chỉ là KTS, chúng tôi là chuyên gia phong thủy. Hướng bếp, hướng ban thờ, kích thước cửa Lỗ Ban đều được tính toán kỹ lưỡng theo tuổi của anh Long (Chủ đầu tư).

  4. Đồng hành giám sát: Techhome không “bỏ con giữa chợ”. Chúng tôi hỗ trợ giám sát tác quyền (qua hotline 0364.042.222 trên bản vẽ) để giải đáp mọi thắc mắc của thợ thuyền trong quá trình thi công thực tế.

6. Mẫu nhà phố 3 tầng mái thái có giá bao nhiêu?

Đây chắc hẳn là câu hỏi mà quý khách hàng quan tâm nhất sau khi chiêm ngưỡng vẻ đẹp của công trình này. Chi phí để sở hữu một bản vẽ thiết kế nhà phố 3 tầng mái thái và chi phí thi công trọn gói sẽ phụ thuộc vào nhiều yếu tố:

Chi phí thiết kế

Tại Techhome, đơn giá thiết kế là 100.000 VNĐ/m2. Đây là mức giá cực kỳ cạnh tranh cho một bộ hồ sơ chất lượng cao, đầy đủ các bộ môn.

Chi phí thi công xây dựng

Đối với mẫu thiết kế nhà phố 3 tầng mái thái như nhà anh Long (Tổng diện tích sàn khoảng 260m2), chi phí xây dựng ước tính như sau:

  • Xây dựng phần thô và nhân công hoàn thiện: Khoảng 3.800.000đ – 4.200.000đ/m2.

  • Xây nhà trọn gói (Chìa khóa trao tay): Dao động từ 7.000.000đ – 8.500.000đ/m2. (Mức giá này phụ thuộc vào chất lượng vật liệu hoàn thiện như: Gạch ốp lát, thiết bị vệ sinh, loại cửa nhôm kính, loại ngói lợp mái Thái…).

Việc đầu tư cho một bản vẽ thiết kế nhà phố 3 tầng mái thái bài bản ngay từ đầu sẽ giúp bạn tiết kiệm hàng trăm triệu đồng tiền sửa chữa sai sót và lãng phí vật liệu trong quá trình thi công.

Lưu ý: Đây chỉ là mức chi phí ước tính. Để nhận được báo giá chính xác và chi tiết nhất cho công trình của bạn, vui lòng liên hệ trực tiếp với chúng tôi. Hoặc để tìm hiểu rõ hơn về tiêu chuẩn vật liệu xây dựng và các yếu tố ảnh hưởng đến chi phí, bạn có thể tham khảo thêm tại các bài viết chuyên sâu về vật liệu xây dựng cao cấp trên Wikipedia.

7. Kết luận 

Dự án nhà ở gia đình của anh Long tại Kim Động – Hưng Yên là một tác phẩm tâm huyết của đội ngũ Techhome. Nó không chỉ đáp ứng nhu cầu ở thực tế với 6 phòng ngủ tiện nghi mà còn là một điểm nhấn kiến trúc tại địa phương nhờ phong cách thiết kế nhà phố 3 tầng mái thái sang trọng, bề thế. Ngôi nhà là sự kết hợp hoàn hảo giữa công năng khoa học, kết cấu bền vững và thẩm mỹ vượt thời gian.

Nếu bạn đang sở hữu một mảnh đất phố và mong muốn xây dựng một cơ ngơi khang trang, đẳng cấp như thế này, hãy để Techhome hiện thực hóa giấc mơ của bạn. Chúng tôi cam kết mang đến những giải pháp thiết kế nhà phố 3 tầng mái thái tối ưu nhất, phù hợp nhất với ngân sách và gu thẩm mỹ của gia đình bạn.

Đừng chần chừ, hãy liên hệ ngay với Techhome để nhận tư vấn miễn phí và báo giá ưu đãi nhất!


CÔNG TY CỔ PHẦN KIẾN TRÚC VÀ XÂY DỰNG TECHHOME

  • Dịch vụ: Tư vấn thiết kế kiến trúc – nội thất, Thi công xây dựng trọn gói.

  • Hotline hỗ trợ kỹ thuật: 0364.042.222 – 0387.603.333

  • Địa chỉ: B1.1 LK17 – Ô số 4, KĐT Thanh Hà, Thanh Oai, Hà Nội.

  • Xem thêm các dự án nổi bật khác của Techhome tại https://nhadeptechhome.vn/

Techhome – Kiến tạo không gian, Vun đắp hạnh phúc!

Để lại một bình luận

Email của bạn sẽ không được hiển thị công khai. Các trường bắt buộc được đánh dấu *

    Vui lòng nhấn nút YÊU CẦU TƯ VẤN và đợi 1 - 2 giây đến khi thấy thông báo thành công

    YÊU CẦU TƯ VẤN