Mẫu thiết kế nhà phố 3 tầng hiện đại 5x17m tại Hưng Yên – Chị Hiệp

Bạn đang sở hữu một mảnh đất phân lô nhưng chưa biết làm sao để căn nhà của mình vừa nổi bật, vừa tối ưu công năng sử dụng? Hãy cùng Techhome khám phá hồ sơ thiết kế nhà phố 3 tầng đầy ấn tượng của gia đình chị Hiệp tại Hưng Yên. Đây là minh chứng rõ nét cho việc kết hợp hoàn hảo giữa thẩm mỹ hiện đại và tư duy kiến trúc thông minh.


1. Phân tích kiến trúc ngoại thất: Sự phá cách từ những đường cong

Nhìn vào phối cảnh 3D, điểm nhấn đầu tiên chính là sự kết hợp giữa các khối hình học vuông vức và những đường bo góc mềm mại. Trong bản thiết kế nhà phố 3 tầng này, các kiến trúc sư Techhome đã khéo léo sử dụng mảng tường trắng làm chủ đạo, điểm xuyết bằng các hệ nan gỗ và mảng tường đá xám tạo chiều sâu.

Hệ thống cửa kính cường lực khung nhôm xingfa bản lớn không chỉ giúp đón trọn ánh sáng tự nhiên mà còn tạo diện mạo sang trọng. Đặc biệt, ô cửa sổ tròn tại tầng 2 là một nét chấm phá đầy nghệ thuật, giúp xóa tan sự đơn điệu của những bức tường phẳng thường thấy trong các mẫu thiết kế nhà phố 3 tầng hiện nay.

Phối cảnh chính diện mặt tiền mẫu thiết kế nhà phố 3 tầng phong cách hiện đại tại Hưng Yên.
Phối cảnh chính diện mặt tiền mẫu thiết kế nhà phố 3 tầng phong cách hiện đại tại Hưng Yên.

2. Mặt bằng công năng chi tiết: Tối ưu đến từng cm2

Một ngôi nhà đẹp trước hết phải là một ngôi nhà tiện nghi. Với diện tích sàn xây dựng khoảng 85m290m2, phương án bố trí mặt bằng được Techhome tính toán cực kỳ kỹ lưỡng.

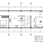
Tầng 1: Không gian sinh hoạt chung ấm cúng (85m2)

  • Phòng khách (25m2): Nằm ngay sau sảnh chính, rộng rãi và thoáng đạt.

  • Bếp & Phòng ăn (20m2): Thiết kế mở liên thông với phòng khách, tạo sự kết nối giữa các thành viên.

  • Phòng ngủ 01 (11m2): Dành cho người lớn tuổi hoặc làm phòng ngủ dự phòng cho khách.

  • WC 01 (4.5m2): Bố trí kín đáo cuối nhà để đảm bảo thẩm mỹ.

  • Cầu thang: 25 bậc, cao độ mỗi bậc 156mm, rất thuận tiện cho việc di chuyển.

Bản vẽ kỹ thuật mặt bằng tầng 1 mẫu thiết kế nhà phố 3 tầng diện tích 85m2 gồm phòng khách liên thông bếp.
Bản vẽ kỹ thuật mặt bằng tầng 1 mẫu thiết kế nhà phố 3 tầng diện tích 85m2 gồm phòng khách liên thông bếp.

Tầng 2: Không gian nghỉ ngơi riêng tư (90m2)

Trong bản thiết kế nhà phố 3 tầng này, tầng 2 là “vương quốc” nghỉ ngơi với:

  • Phòng ngủ Master 04 (19m2): Có ban công rộng, tích hợp nhà vệ sinh riêng (4.5m2).

  • Phòng ngủ 02 & 03 (đồng diện tích 11m2): Phù hợp cho con cái, sử dụng chung một nhà vệ sinh cuối tầng.

Chi tiết bản vẽ mặt bằng tầng 2 mẫu thiết kế nhà phố 3 tầng với 3 phòng ngủ tiện nghi.
Chi tiết bản vẽ mặt bằng tầng 2 mẫu thiết kế nhà phố 3 tầng với 3 phòng ngủ tiện nghi.

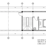
Tầng 3: Nơi thờ tự và thư giãn (40m2)

  • Phòng thờ (17m2): Đặt ở vị trí trang trọng nhất, hướng ra ban công trước nhà thoáng đãng.

  • Sân thượng: Khoảng không gian lý tưởng để gia chủ trồng cây xanh, thưởng trà và tổ chức các buổi tiệc BBQ nhỏ.

Bản vẽ kỹ thuật mặt bằng tầng 3 mẫu thiết kế nhà phố 3 tầng diện tích 40m2 gồm phòng thờ
Bản vẽ kỹ thuật mặt bằng tầng 3 mẫu thiết kế nhà phố 3 tầng diện tích 40m2 gồm phòng thờ

3. Tại sao nên chọn thiết kế nhà phố 3 tầng tại Techhome?

Việc tìm kiếm một đơn vị thiết kế nhà phố 3 tầng uy tín tại Hưng Yên hay các tỉnh lân cận không khó, nhưng để tìm được người hiểu “gu” và tối ưu được chi phí thì Techhome tự tin là lựa chọn hàng đầu.

Chúng tôi không chỉ bán bản vẽ, chúng tôi mang đến giải pháp sống. Mỗi mét vuông trong căn nhà đều được tính toán dựa trên thói quen sinh hoạt thực tế của khách hàng. Khi thực hiện thiết kế nhà phố 3 tầng, yếu tố phong thủy, hướng gió và ánh sáng luôn được đặt lên hàng đầu.

Góc nghiêng mẫu thiết kế nhà phố 3 tầng phong cách hiện đại với không gian mở
Góc nghiêng mẫu thiết kế nhà phố 3 tầng phong cách hiện đại với không gian mở

4. Báo giá tham khảo thiết kế và thi công (Cập nhật 2026)

Techhome hiểu rằng ngân sách là điều quý khách quan tâm nhất. Dưới đây là bảng giá công khai, minh bạch cho dịch vụ thiết kế nhà phố 3 tầng:

Hạng mục Đơn giá (VNĐ/m2) Ghi chú
Thiết kế kiến trúc 108.000 Bản vẽ 3D, kiến trúc, kết cấu, điện nước
Thiết kế nội thất 150.000  Phối cảnh 3D nội thất, chi tiết đồ gỗ
Gói thi công thô 3.800.000 – 4.200.000 Bao gồm vật tư thô và nhân công hoàn thiện
Gói hoàn thiện (Chìa khóa trao tay) 6.500.000 – 7.500.000 Tùy vào mức độ cao cấp của vật liệu

Lưu ý: Đơn giá thực tế có thể thay đổi tùy thuộc vào vị trí thi công và thời điểm ký hợp đồng. Để có báo giá chính xác nhất cho mẫu thiết kế nhà phố 3 tầng của riêng bạn, hãy liên hệ Hotline: 0364.042.222.

Để tìm hiểu rõ hơn về tiêu chuẩn vật liệu xây dựng và các yếu tố ảnh hưởng đến chi phí, bạn có thể tham khảo thêm tại các bài viết chuyên sâu về vật liệu xây dựng cao cấp trên Wikipedia.

Góc nghiêng mẫu thiết kế nhà phố 3 tầng


5. Những lưu ý “vàng” khi thiết kế nhà phố 3 tầng

Là những chuyên gia lâu năm trong ngành, Techhome muốn chia sẻ với bạn vài kinh nghiệm khi bắt tay vào làm nhà:

  1. Thông gió tự nhiên: Đừng cố xây kín mít. Hãy dành một khoảng nhỏ làm giếng trời. Trong bản thiết kế nhà phố 3 tầng của chị Hiệp, giếng trời giữa nhà giúp không khí luôn lưu thông.

  2. Lựa chọn vật liệu: Nhà phố thường tiếp xúc nhiều với nắng bụi. Hãy chọn sơn ngoại thất chống thấm tốt và kính hộp cách âm, cách nhiệt.

  3. Đồng bộ phong cách: Đã chọn thiết kế nhà phố 3 tầng hiện đại thì nội thất bên trong cũng nên tối giản, tránh rườm rà gây chật chội.


6. Cảm nhận của khách hàng về Techhome

Chị Hiệp (Chủ đầu tư tại Hưng Yên) chia sẻ: “Lúc đầu mình rất lo lắng vì diện tích ngang 5m hơi khó để làm gì đó khác biệt. Nhưng khi nhận bản thiết kế nhà phố 3 tầng từ Techhome, mình hoàn toàn bất ngờ. Ngôi nhà trông rất sang, hiện đại mà công năng lại vô cùng hợp lý cho gia đình 3 thế hệ.”

Lời khen của khách hàng chính là động lực để đội ngũ kiến trúc sư không ngừng sáng tạo trong từng sản phẩm thiết kế nhà phố 3 tầng.

Tổng thể từ trên cao mẫu thiết kế nhà phố 3 tầng mái bằng hiện đại có sân thượng thoáng đãng.
Tổng thể từ trên cao mẫu thiết kế nhà phố 3 tầng mái bằng hiện đại có sân thượng thoáng đãng.

7. Hình ảnh thực tế và hồ sơ kỹ thuật

Hồ sơ thiết kế nhà phố 3 tầng của chúng tôi luôn bao gồm đầy đủ:

  • Bản vẽ kiến trúc chi tiết.

  • Bản vẽ kết cấu thép bền vững.

  • Sơ đồ điện, nước, internet chuẩn kỹ thuật.

  • Dự toán chi tiết để gia chủ kiểm soát dòng tiền.

Việc chuẩn bị một bản thiết kế nhà phố 3 tầng bài bản giúp bạn tránh được 90% các phát sinh không đáng có trong quá trình xây dựng.

Tổng thể mẫu thiết kế nhà phố 3 tầng


8. Kết luận

Mẫu thiết kế nhà phố 3 tầng tại Hưng Yên của chị Hiệp không chỉ là một công trình nhà ở, mà còn là tâm huyết của cả gia chủ và đội ngũ Techhome. Nếu bạn đang tìm kiếm ý tưởng cho tổ ấm tương lai, đừng ngần ngại nhấc máy gọi cho chúng tôi.

Hãy để Techhome biến ước mơ về một không gian sống đẳng cấp thành hiện thực. Chúng tôi cam kết mang lại dịch vụ thiết kế nhà phố 3 tầng chất lượng nhất với giá thành cạnh tranh nhất thị trường.

Thông tin liên hệ:

Để lại một bình luận

Email của bạn sẽ không được hiển thị công khai. Các trường bắt buộc được đánh dấu *

    Vui lòng nhấn nút YÊU CẦU TƯ VẤN và đợi 1 - 2 giây đến khi thấy thông báo thành công

    YÊU CẦU TƯ VẤN