Bạn đang ấp ủ dự định xây dựng tổ ấm cho gia đình nhưng chưa biết bắt đầu từ đâu? Bạn muốn tìm kiếm một không gian sống vừa tiện nghi, sang trọng lại vừa gần gũi với thiên nhiên? Hãy cùng Kiến trúc Techhome ghé thăm mảnh đất Sóc Sơn, Hà Nội để chiêm ngưỡng một siêu phẩm thiết kế nhà 3 tầng hiện đại mà chúng tôi vừa hoàn thiện hồ sơ cho gia đình anh Hòa. Đây không chỉ là một ngôi nhà, mà là câu chuyện về sự lắng nghe, thấu hiểu và hiện thực hóa giấc mơ an cư bằng ngôn ngữ kiến trúc tinh tế nhất.
1. Tổng quan dự án thiết kế nhà 3 tầng hiện đại – MS 526
Trước khi đi sâu vào chi tiết vẻ đẹp ngoại thất và công năng, Techhome xin gửi đến quý khách hàng những thông số cơ bản nhất của dự án này. Đây là minh chứng cho sự làm việc chuyên nghiệp, minh bạch của chúng tôi ngay từ những bước đầu tiên.
-
Chủ đầu tư: Anh Hòa.
-
Địa điểm xây dựng: Sóc Sơn – Hà Nội.
-
Đơn vị tư vấn thiết kế: Công ty Cổ phần Kiến trúc và Xây dựng Techhome.
-
Loại hình công trình: Nhà ở gia đình (Biệt thự phố/Nhà phố hiện đại).
-
Phong cách: Thiết kế nhà 3 tầng hiện đại, mái bằng, không gian mở.
-
Tổng diện tích thiết kế: 250m2.
-
Diện tích tầng 1 và tầng 2: 99m2.
-
Diện tích tầng 3: 52m2.
-
Với diện tích đất rộng rãi và vuông vắn, bài toán anh Hòa đặt ra cho Techhome là phải tạo nên một thiết kế nhà 3 tầng hiện đại tối ưu hóa công năng cho gia đình đa thế hệ, đồng thời đảm bảo tính thẩm mỹ vượt thời gian.

2. Vẻ đẹp ngoại thất: Sự lên ngôi của kiến trúc hình khối
Ấn tượng đầu tiên khi nhìn vào phối cảnh của căn nhà chính là sự khỏe khoắn, mạch lạc trong từng đường nét. Khác với những ngôi nhà mái thái cầu kỳ hay tân cổ điển rườm rà, thiết kế nhà 3 tầng hiện đại của anh Hòa lựa chọn lối đi riêng với kiến trúc mái bằng và các hình khối giật cấp đầy nghệ thuật.
Sự phối hợp màu sắc và vật liệu tinh tế
Mặt tiền ngôi nhà là bản giao hưởng của các gam màu trung tính. Màu trắng sứ chủ đạo làm nền, tôn lên màu nâu trầm ấm của hệ lam giả gỗ và màu ghi xám. Việc sử dụng vật liệu lam gỗ tại các ban công không chỉ giúp chắn nắng gắt hướng Tây (nếu có) mà còn tạo nên hiệu ứng thị giác bắt mắt, giúp ngôi nhà trông “tình” hơn, mềm mại hơn giữa những khối bê tông cứng nhắc.
Trong các mẫu thiết kế nhà 3 tầng hiện đại hiện nay, việc sử dụng cửa kính lớn khung nhôm Xingfa đen tuyền là xu hướng không thể bỏ qua. Tại công trình nhà anh Hòa, hệ thống cửa kính được bố trí dày đặc từ tầng 1 lên tầng 3, giúp thu trọn ánh sáng tự nhiên vào từng ngóc ngách, biến ngôi nhà thành một thực thể “biết thở”, giao hòa tuyệt đối với thiên nhiên Sóc Sơn trong lành.
Điểm nhấn không gian xanh
Dù là nhà phố nhưng yếu tố “Xanh” chưa bao giờ bị Techhome bỏ quên. Tại các ban công tầng 2 và sân thượng tầng 3, các kiến trúc sư đã khéo léo bố trí những bồn cây xanh tiểu cảnh. Màu xanh của lá cây nổi bật trên nền sơn trắng, tạo cảm giác thư thái, bình yên mỗi khi gia chủ trở về nhà sau một ngày làm việc căng thẳng. Đây chính là giá trị cốt lõi mà một thiết kế nhà 3 tầng hiện đại cần mang lại: Sự chữa lành.

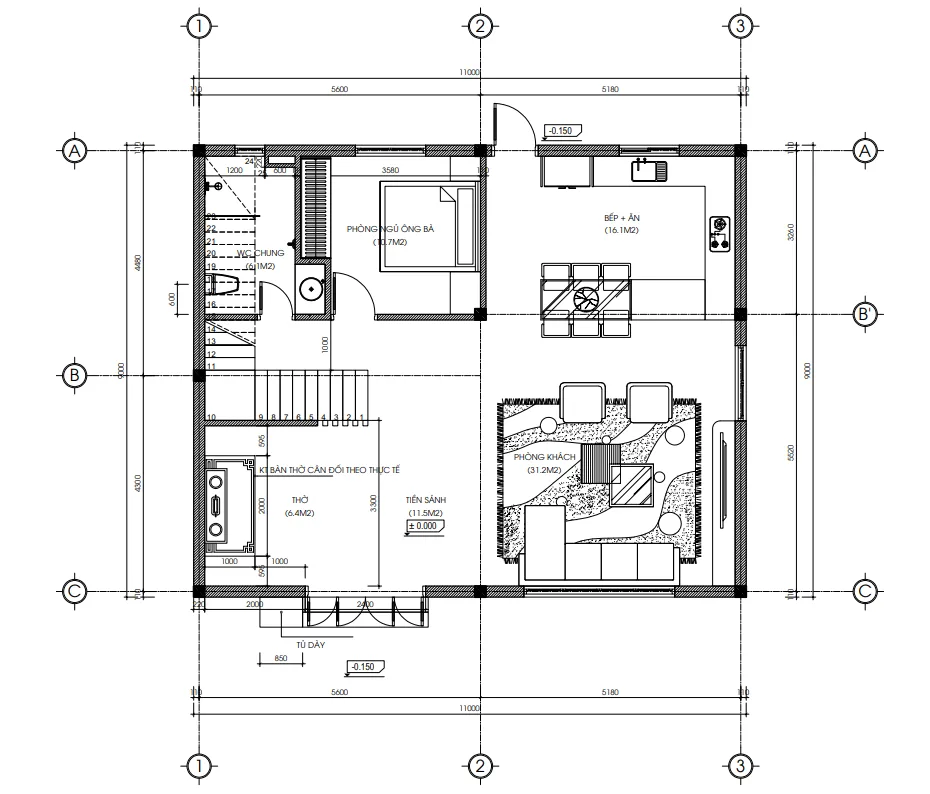
3. Khám phá “trái tim” ngôi nhà: Bản vẽ mặt bằng công năng chi tiết
Một ngôi nhà đẹp không chỉ ở “lớp áo” bên ngoài mà quan trọng nhất là “nội thất” bên trong phải phục vụ tối đa nhu cầu sinh hoạt. Với tổng diện tích thiết kế 250m2 , các KTS Techhome đã tính toán kỹ lưỡng từng centimet.
Tầng 1: Không gian kết nối (Diện tích 99m2)
Bước vào cửa chính là phòng thờ 6.4m2 cùng tiền sảnh rộng 11.5m2: Được đặt ở vị trí trang trọng nhất. Tiếp đến chúng ta đến với không gian phòng khách sang trọng rộng 31.2m2. Đây là bộ mặt của ngôi nhà, nơi anh Hòa tiếp đón bạn bè, người thân.
Liên thông với phòng khách là khu vực Bếp ăn rộng 16.1m2. Điểm đặc biệt trong thiết kế nhà 3 tầng hiện đại này là sự bố trí một phòng ngủ dành cho ông bà ngay tại tầng 1 (Phòng ngủ ông bà 10.7m2 ). Việc này cực kỳ tinh tế, giúp người lớn tuổi hạn chế việc leo cầu thang, đảm bảo an toàn và sức khỏe. Một nhà vệ sinh chung được bố trí khéo léo dưới gầm cầu thang để tiết kiệm diện tích.

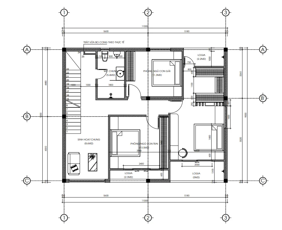
Tầng 2: Không gian riêng tư và nghỉ ngơi
Di chuyển lên tầng 2 qua cầu thang 21 bậc (cao độ chuẩn phong thủy), chúng ta đến với khu vực nghỉ ngơi chính của cả gia đình.
-
Phòng ngủ Master: Dành cho vợ chồng anh Hòa, rộng rãi với 2 ban công trước và sau, đảm bảo thông thoáng và mát mẻ nhờ hệ thống cửa đối lưu không khí.
-
02 Phòng ngủ con: Một phòng ngủ con trai rộng 13.5m2 và một phòng ngủ con gái rộng 11.3m2. Cả hai phòng đều có cửa sổ lớn và logia thoáng mát.
-
Sinh hoạt chung: Một không gian sinh hoạt chung 8.6m2 nằm ở trung tâm, là nơi cả nhà cùng xem phim, trò chuyện mỗi tối trước khi đi ngủ. Cách bố trí này rất phổ biến trong các thiết kế nhà 3 tầng hiện đại, đề cao sự gắn kết giữa các thành viên.

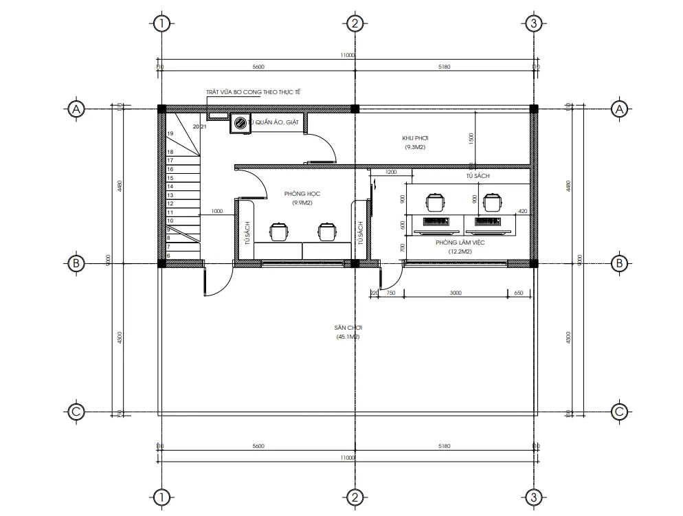
Tầng 3: Không gian học tập, làm việc và thư giãn (Diện tích 52m2)
Tầng cao nhất của ngôi nhà được dành cho công việc, học tập và tiện ích mở rộng.
-
Phòng làm việc/học tập: Diện tích 12.2m2, nơi cần sự yên tĩnh tuyệt đối. Ngoài ra còn có phòng học riêng 9.9m2.
-
Sân chơi: Điểm nhấn đắt giá nhất của tầng 3 chính là khu vực sân chơi rộng tới 45.1m2. Đây là nơi lý tưởng để tổ chức những bữa tiệc BBQ cuối tuần, trồng rau sạch hoặc đơn giản là đặt một bộ bàn ghế nhỏ để thưởng trà ngắm trăng.

4. Báo giá thiết kế và thi công nhà 3 tầng hiện đại (Tham khảo)
Rất nhiều khách hàng khi tìm kiếm mẫu thiết kế nhà 3 tầng hiện đại đều băn khoăn về chi phí. Hiểu được điều đó, Techhome xin đưa ra bảng dự toán sơ bộ dựa trên mức đầu tư phổ biến năm 2024 – 2025 để bạn tham khảo. Lưu ý: Giá thực tế sẽ phụ thuộc vào thời điểm thi công, vị trí đất và chủng loại vật liệu gia chủ lựa chọn.
| Hạng mục | Đơn giá tham khảo (VNĐ/m2) | Diễn giải |
| Thiết kế kiến trúc | 108.000đ | Bao gồm phối cảnh 3D, hồ sơ kỹ thuật thi công, điện nước, kết cấu. |
| Thiết kế nội thất | 150.000đ | Phối cảnh 3D nội thất, bản vẽ bổ kỹ thuật đồ gỗ. |
| Thi công phần thô | 3.800.000đ – 4.500.000đ | Bao gồm vật tư thô (sắt, thép, xi măng…) và nhân công hoàn thiện trát, ốp lát. |
| Thi công trọn gói | 6.500.000đ – 7.500.000đ | Chìa khóa trao tay (bao gồm cả thiết bị vệ sinh, cửa, sơn bả, trần thạch cao…). |
Với công trình nhà anh Hòa có tổng diện tích sàn khoảng 250m2, chi phí xây dựng trọn gói (mức khá) sẽ dao động trong khoảng từ 1.7 tỷ đến 1.9 tỷ đồng. Đây là mức đầu tư rất hợp lý để sở hữu một cơ ngơi khang trang, bền đẹp.
Lưu ý: Đây chỉ là mức chi phí ước tính. Để nhận được báo giá chính xác và chi tiết nhất cho công trình của bạn, vui lòng liên hệ trực tiếp với chúng tôi. Hoặc để tìm hiểu rõ hơn về tiêu chuẩn vật liệu xây dựng và các yếu tố ảnh hưởng đến chi phí, bạn có thể tham khảo thêm tại các bài viết chuyên sâu về vật liệu xây dựng cao cấp trên Wikipedia.

5. Tại sao anh Hòa và hàng trăm khách hàng chọn Techhome?
Giữa hàng ngàn đơn vị cung cấp dịch vụ thiết kế nhà 3 tầng hiện đại, Techhome vẫn luôn là cái tên được các gia chủ tại Hà Nội và các tỉnh lân cận “chọn mặt gửi vàng”. Điều này không đến từ những lời quảng cáo hoa mỹ, mà đến từ chính quy trình làm việc tận tâm:
-
Khảo sát thực tế kỹ lưỡng: Trước khi đặt bút vẽ, KTS của chúng tôi luôn về tận nơi đo đạc, xem hướng nắng, hướng gió để đưa ra phương án tối ưu nhất. Như trong bản vẽ, chúng tôi luôn lưu ý khách hàng kiểm tra kích thước thực tế so với sổ đỏ.
-
Hồ sơ minh bạch, chi tiết: Mỗi bộ hồ sơ bàn giao đều đầy đủ các hạng mục Kiến trúc, Kết cấu, Điện nước, Dự toán… giúp gia chủ dễ dàng quản lý thợ và vật tư.
-
Đồng hành trọn đời: Techhome hỗ trợ tư vấn kỹ thuật xây dựng qua Hotline 0364.04.2222 – 0387.60.3333 xuyên suốt quá trình thi công, đảm bảo ngôi nhà khi hoàn thiện giống hệt bản vẽ 3D.

6. Những lưu ý vàng khi xây nhà 3 tầng bạn cần biết
Là những người trong nghề, khi tư vấn thiết kế nhà 3 tầng hiện đại, chúng tôi luôn khuyên gia chủ:
-
Chú trọng giếng trời: Với nhà phố dạng ống, giếng trời là “lá phổi” giúp đối lưu không khí.
-
Đừng tham chi tiết: Phong cách hiện đại đề cao sự tối giản. Đừng cố nhồi nhét quá nhiều phào chỉ hay đồ nội thất rườm rà, sẽ khiến không gian bị bí bách.
-
Phong thủy: Hãy chia sẻ tuổi của gia chủ ngay từ đầu để KTS bố trí hướng bếp, hướng ban thờ, hướng giường ngủ chuẩn phong thủy, mang lại tài lộc và sức khỏe.

7. Lời kết
Mẫu thiết kế nhà 3 tầng hiện đại của gia đình anh Hòa tại Sóc Sơn là một ví dụ điển hình cho xu hướng nhà ở tiện nghi, gần gũi thiên nhiên hiện nay. Một ngôi nhà đẹp không chỉ để ngắm, mà là để sống hạnh phúc mỗi ngày.
Nếu bạn cũng đang sở hữu một mảnh đất và mơ ước về một ngôi nhà mang đậm dấu ấn cá nhân, đừng ngần ngại liên hệ với Techhome. Chúng tôi không chỉ vẽ nhà, chúng tôi vẽ nên tổ ấm của bạn.
CÔNG TY CỔ PHẦN KIẾN TRÚC VÀ XÂY DỰNG TECHHOME
-
Địa chỉ: B1.1 LK18 Ô 3 – KĐT Thanh Hà – Cienco 5 – Thanh Oai- Hà Nội.
-
Hotline tư vấn kỹ thuật & thiết kế: 0364.04.2222 – 0387.60.3333.
-
Website: https://nhadeptechhome.vn/
Hãy để lại bình luận hoặc gọi ngay cho chúng tôi để nhận được báo giá ưu đãi nhất cho mẫu thiết kế nhà 3 tầng hiện đại trong tháng này nhé!
