Biệt Thự Tân Cổ Điển Mái Mansard 2 Tầng 1 Tum Tại Phú Thọ: Đẳng Cấp Từ Bản Vẽ Đến Thực Tế

Bạn đang sở hữu một mảnh đất rộng và mơ ước về một không gian sống không chỉ để ở, mà còn để khẳng định vị thế? Mẫu biệt thự Tân cổ điển mái Mansard mà Techhome vừa bàn giao hồ sơ cho gia đình anh Hưng tại Hạ Hòa, Phú Thọ chính là câu trả lời hoàn hảo cho sự sang trọng, tinh tế và bền bỉ với thời gian.

1. Thông tin chung về dự án

  • Chủ đầu tư: Anh Hưng.

  • Địa điểm: Hạ Hòa – Phú Thọ.

  • Đơn vị thiết kế: Công ty Cổ phần Kiến trúc và Xây dựng Techhome.

  • Loại hình: Nhà ở gia đình (Biệt thự phố).

  • Phong cách: Tân cổ điển Pháp kết hợp mái Mansard.

Phối cảnh mặt tiền chính diện mẫu biệt thự Tân cổ điển mái Mansard sang trọng tại Phú Thọ.
Phối cảnh mặt tiền chính diện mẫu biệt thự Tân cổ điển mái Mansard sang trọng tại Phú Thọ.

2. Nghệ thuật kiến trúc ngoại thất: Sự giao thoa giữa cổ điển và hiện đại

Nhìn vào phối cảnh 3D, điểm nhấn đầu tiên chính là hệ mái Mansard màu xanh than quyền quý. Trong thiết kế biệt thự Tân cổ điển mái Mansard, phần mái không chỉ có tác dụng chống nóng mà còn tạo ra một tầng tum rộng rãi, giúp ngôi nhà trông bề thế như một tòa lâu đài thu nhỏ.

Mặt tiền ngôi nhà được lược bỏ các chi tiết phù điêu rườm rà, thay vào đó là hệ cột trụ tròn uyển chuyển và các đường phào chỉ tinh tế. Tone màu trắng chủ đạo giúp làm nổi bật hệ cửa nhôm kính xingfa hiện đại và lan can ban công bằng nhôm đúc nghệ thuật mạ vàng, tạo nên vẻ đẹp vương giả cho căn biệt thự Tân cổ điển mái Mansard.

Góc nghiêng biệt thự Tân cổ điển mái Mansard với hệ cột trụ tròn uyển chuyển và các đường phào chỉ tinh tế.
Góc nghiêng biệt thự Tân cổ điển mái Mansard với hệ cột trụ tròn uyển chuyển và các đường phào chỉ tinh tế.

3. Giải pháp công năng: Tối ưu đến từng m2

Với diện tích sàn khoảng 100m2, các kiến trúc sư Techhome đã bố trí không gian cực kỳ khoa học, đáp ứng nhu cầu sinh hoạt cho gia đình đông thành viên.

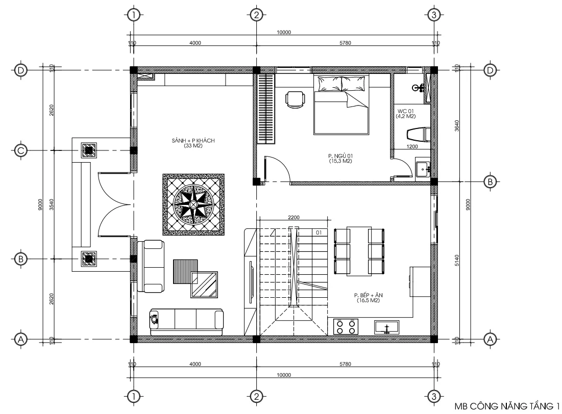
Tầng 1: Không gian kết nối (100m2)

  • Sảnh & Phòng khách (33m2): Rộng rãi, là bộ mặt của gia chủ với hệ gạch thảm trang trí ngay chính giữa.

  • Phòng bếp + Ăn (16.5m2): Được ngăn cách tinh tế, đảm bảo sự riêng tư nhưng vẫn thông thoáng.

  • Phòng ngủ 01 (15.3m2): Dành cho người lớn tuổi để thuận tiện di chuyển, có cửa sổ lớn đón ánh sáng kết hợp vệ sinh khép kín WC 01 (4.2m2)

Bản vẽ bố trí công năng tầng 1 biệt thự Tân cổ điển mái Mansard diện tích 100m2.
Bản vẽ bố trí công năng tầng 1 biệt thự Tân cổ điển mái Mansard diện tích 100m2.

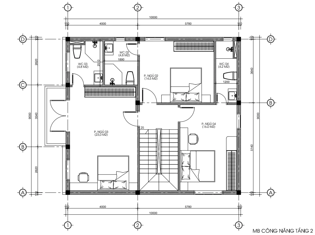
Tầng 2: Không gian nghỉ ngơi riêng tư (95m2)

Đây là khu vực nghỉ ngơi chính của gia đình anh Hưng với 3 phòng ngủ:

  • Phòng ngủ 03 (23m2): Phòng Master rộng lớn, có ban công view trực diện mặt tiền, kết hợp với vệ sinh khép kín WC 03 4,8m2.

  • Phòng ngủ 02 (14.5m2) & Phòng ngủ 04 (16m2): Tất cả các phòng đều có cửa sổ đón gió và vệ sinh khép kín riêng.

  • Hệ thống 3 WC: Đảm bảo mỗi phòng 1 vệ sinh riêng, đều có sự tiện nghi tuyệt đối.

Bản vẽ bố trí công năng tầng 2 biệt thự Tân cổ điển mái Mansard diện tích 95m2.
Bản vẽ bố trí công năng tầng 2 biệt thự Tân cổ điển mái Mansard diện tích 95m2.

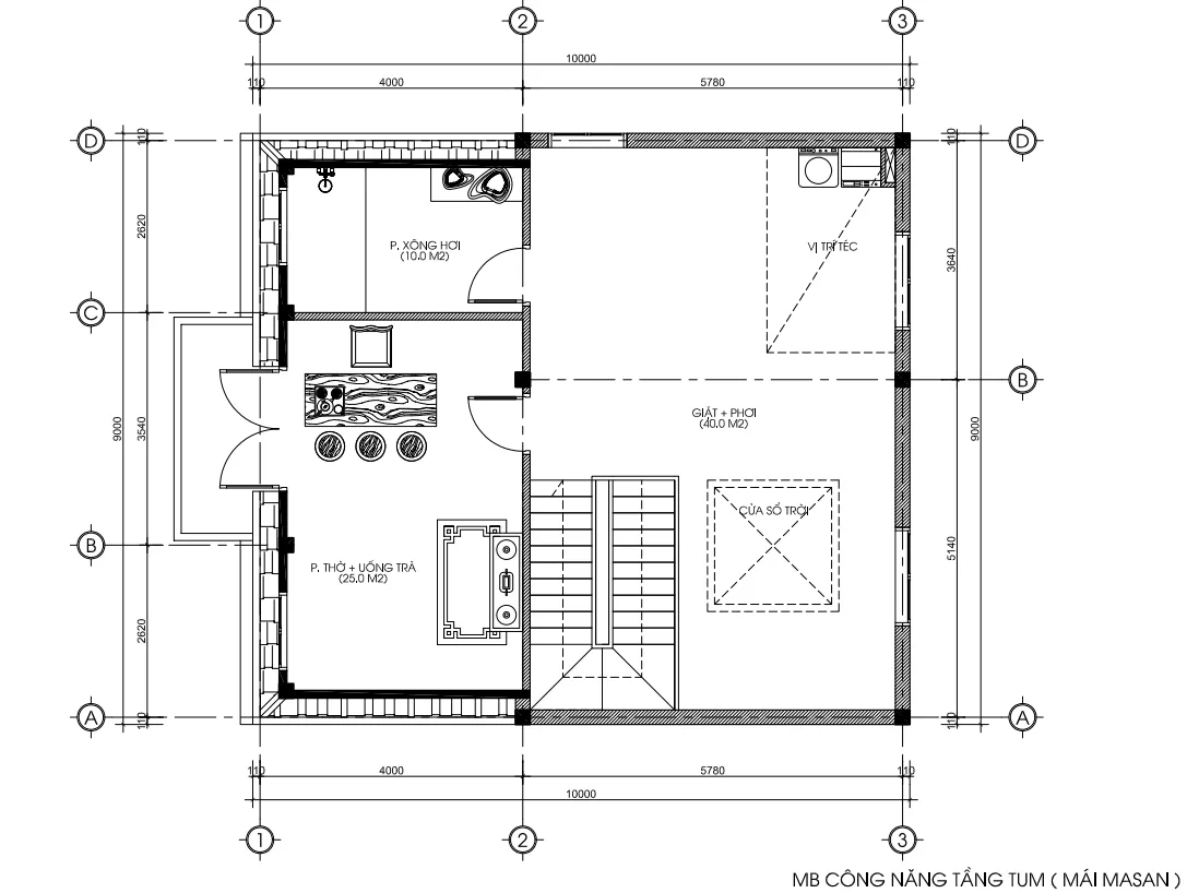
Tầng tum (Mái Mansard): Tiện ích mở rộng

Mẫu biệt thự Tân cổ điển mái Mansard này tận dụng tối đa không gian mái để làm:

  • Phòng thờ & Uống trà (25m2): Không gian tâm linh yên tĩnh.

  • Phòng xông hơi (10m2): Khu vực thư giãn chuẩn spa tại gia.

  • Sân giặt phơi (40m2): Rất rộng rãi, kết hợp làm sân chơi hoặc trồng cây xanh.

Bản vẽ bố trí công năng tầng tum biệt thự Tân cổ điển mái Mansard diện tích 95m2.
Bản vẽ bố trí công năng tầng tum biệt thự Tân cổ điển mái Mansard diện tích 95m2.

4. Tại sao mẫu biệt thự Tân cổ điển mái Mansard lại được ưa chuộng?

Nhiều khách hàng hỏi Techhome rằng tại sao lại chọn mái Mansard thay vì mái Thái hay mái Nhật? Thực tế, biệt thự Tân cổ điển mái Mansard mang lại 3 giá trị cốt lõi:

  1. Chống nóng, chống lạnh: Hệ mái như một lớp đệm không khí giúp nhiệt độ trong nhà luôn ổn định.

  2. Tăng không gian sử dụng: Bạn có thêm một tầng sử dụng thực thụ mà không làm ngôi nhà quá cao so với quy hoạch.

  3. Vẻ đẹp vượt thời gian: Kiến trúc này không bao giờ lỗi mốt, luôn giữ được giá trị thẩm mỹ sau hàng chục năm.

Góc nghiêng biệt thự Tân cổ điển mái Mansard với lan can ban công bằng nhôm đúc nghệ thuật mạ vàng
Góc nghiêng biệt thự Tân cổ điển mái Mansard với lan can ban công bằng nhôm đúc nghệ thuật mạ vàng.

5. Báo giá thiết kế và thi công (Tham khảo)

Tại Techhome ( nhadeptechhome.vn ), chúng tôi minh bạch về chi phí để bạn dễ dàng dự toán cho căn biệt thự Tân cổ điển mái Mansard của mình:

Hạng mục Đơn giá (VNĐ/m2) Ghi chú
Thiết kế kiến trúc 108.000 Bao gồm 3D, hồ sơ kỹ thuật, điện nước
Thiết kế nội thất 150.000 Bản vẽ 3D và hồ sơ thi công chi tiết
Thi công phần thô 4.000.000 – 4.500.000 Tùy vào thời điểm và vật liệu
Thi công trọn gói 7.000.000 – 9.000.000 “Chìa khóa trao tay” cao cấp

Lưu ý: Đơn giá thực tế của biệt thự Tân cổ điển mái Mansard phụ thuộc vào mức độ chi tiết của phào chỉ và vật liệu hoàn thiện.

Để nhận được báo giá chính xác và chi tiết nhất cho công trình của bạn, vui lòng liên hệ trực tiếp với chúng tôi. Hoặc để tìm hiểu rõ hơn về tiêu chuẩn vật liệu xây dựng và các yếu tố ảnh hưởng đến chi phí, bạn có thể tham khảo thêm tại các bài viết chuyên sâu về vật liệu xây dựng cao cấp trên Wikipedia.


6. Lời khuyên từ chuyên gia Techhome cho bạn

Khi xây dựng biệt thự Tân cổ điển mái Mansard, có một vài lưu ý nhỏ nhưng cực kỳ quan trọng:

  • Tỉ lệ mái: Phần mái Mansard phải có độ cao tương xứng với phần thân nhà (thường bằng 2/3 hoặc 1/2 chiều cao một tầng).

  • Hệ thống thoát nước: Mái Mansard cần được xử lý chống thấm và thoát nước cực tốt ở các khe rãnh.

  • Ánh sáng cho tầng tum: Hãy bố trí các cửa sổ nhỏ (cửa sổ vòm) để tầng tum luôn khô ráo và sáng sủa.

Tổng thể mẫu biệt thự Tân cổ điển mái Mansard với hệ mái xanh đen bề thế.
Tổng thể mẫu biệt thự Tân cổ điển mái Mansard với hệ mái xanh đen bề thế.

Ngôi nhà không chỉ là gạch đá, nó là nơi lưu giữ hạnh phúc. Một bản thiết kế biệt thự Tân cổ điển mái Mansard chỉn chu sẽ giúp bạn tránh được những lãng phí không đáng có trong quá trình thi công.

Hãy để Techhome đồng hành cùng bạn kiến tạo nên những công trình để đời. Nếu bạn yêu thích mẫu biệt thự Tân cổ điển mái Mansard tại Phú Thọ này, đừng ngần ngại liên hệ với chúng tôi.

KIẾN TRÚC VÀ XÂY DỰNG TECHHOME

Để lại một bình luận

Email của bạn sẽ không được hiển thị công khai. Các trường bắt buộc được đánh dấu *

    Vui lòng nhấn nút YÊU CẦU TƯ VẤN và đợi 1 - 2 giây đến khi thấy thông báo thành công

    YÊU CẦU TƯ VẤN