Trong bối cảnh quỹ đất đô thị ngày càng hạn hẹp, đặc biệt là tại các thành phố cảng sầm uất như Hải Phòng, nhu cầu xây dựng không gian sống vừa tiện nghi, vừa thẩm mỹ đang trở nên cấp thiết hơn bao giờ hết. Giải pháp tối ưu nhất hiện nay chính là các mẫu thiết kế nhà phố 3 tầng hiện đại. Đây không chỉ là xu hướng kiến trúc chủ đạo của năm 2025 mà còn là chìa khóa giải quyết bài toán về công năng cho những lô đất có mặt tiền hẹp.
Hôm nay, TechHome xin giới thiệu chi tiết về dự án nhà ở gia đình của anh Tùng tại Hải Phòng. Đây là một minh chứng xuất sắc cho phong cách thiết kế nhà phố 3 tầng hiện đại, nơi sự tinh tế gặp gỡ công năng hoàn hảo.
1. Xu Hướng Thiết Kế Nhà Phố 3 Tầng Hiện Đại Năm 2025
Tại sao thiết kế nhà phố 3 tầng hiện đại lại trở thành từ khóa được tìm kiếm nhiều nhất trong lĩnh vực xây dựng dân dụng? Câu trả lời nằm ở khả năng thích ứng tuyệt vời của nó. Với diện tích đất phổ biến là 6m x 12m hoặc 5m x 15m, việc chồng tầng là bắt buộc để gia tăng diện tích sử dụng. Tuy nhiên, nếu không khéo léo, ngôi nhà dễ trở thành một “cái hộp” bí bách.
Phong cách hiện đại tập trung vào việc lược bỏ các chi tiết rườm rà của kiến trúc cổ điển, thay vào đó là các mảng khối vuông vức, đường nét dứt khoát và ưu tiên không gian mở. Một bản vẽ thiết kế nhà phố 3 tầng hiện đại chuẩn mực sẽ tận dụng tối đa ánh sáng tự nhiên thông qua hệ thống cửa kính lớn, giếng trời và các khoảng thông tầng. Điều này giúp ngôi nhà luôn tràn ngập sinh khí, mang lại cảm giác rộng rãi hơn so với diện tích thực.

2. Tổng Quan Dự Án Nhà Phố TechHome Thực Hiện Tại Hải Phòng
Trước khi đi sâu vào chi tiết kiến trúc, hãy cùng điểm qua các thông số kỹ thuật của dự án này. Đây là cơ sở quan trọng để TechHome triển khai phương án thiết kế nhà phố 3 tầng hiện đại cho gia đình anh Tùng.
-
Chủ đầu tư: Anh Tùng.
-
Địa điểm: Hải Phòng.
-
Đơn vị thiết kế & thi công: Công ty Cổ phần Kiến trúc và Xây dựng TechHome.
-
Diện tích xây dựng: 6m x 12m (72m2/sàn).
-
Tổng diện tích sàn: Khoảng 210m2 (bao gồm cả ban công đua ra).
-
Quy mô: 3 tầng.
-
Phong cách: Hiện đại, trẻ trung.
Dựa trên yêu cầu của anh Tùng về một không gian sống thoáng đãng, đầy đủ tiện nghi cho gia đình 4 thành viên, đội ngũ KTS TechHome đã nhanh chóng lên ý tưởng và hoàn thiện hồ sơ thiết kế nhà phố 3 tầng hiện đại chỉ trong thời gian ngắn.

3. Phân Tích Vẻ Đẹp Kiến Trúc Mặt Tiền: Dấu Ấn Của Sự Hiện Đại
Mặt tiền chính là “bộ mặt” của gia chủ. Với dự án này, ngôn ngữ thiết kế nhà phố 3 tầng hiện đại được thể hiện rõ nét qua cách xử lý hình khối và vật liệu.
3.1. Sự phá cách trong hình khối
Nhìn vào phối cảnh, bạn sẽ thấy ngôi nhà không phải là một mặt phẳng đơn điệu. TechHome đã sử dụng thủ pháp giật cấp, đua khối thông minh. Tầng 2 và tầng 3 được thiết kế đua ra so với tầng 1, tạo thành một khối hộp vững chãi bao bọc lấy ban công. Khối kiến trúc này không chỉ có tác dụng che nắng mưa cho tầng dưới mà còn tạo chiều sâu thị giác, khiến ngôi nhà trông bề thế hơn. Đây là đặc trưng tiêu biểu của các mẫu thiết kế nhà phố 3 tầng hiện đại.
3.2. Vật liệu và màu sắc thời thượng
Màu sắc chủ đạo được lựa chọn là trắng sứ kết hợp với màu xám ghi của đá ốp và màu nâu gỗ của hệ lam trang trí.
-
Tầng 1: Toàn bộ mặt tiền tầng 1 được ốp đá tự nhiên vân mây màu tối. Điều này giúp phần đế của công trình luôn sạch sẽ, dễ vệ sinh và tạo cảm giác kiên cố, sang trọng.
-
Tầng 2 & 3: Sử dụng sơn ngoại thất màu trắng cao cấp, làm nền cho các chi tiết cửa nhôm kính Xingfa màu đen nổi bật.
-
Hệ lam che nắng: Trên tầng thượng, hệ lam bê tông sơn giả gỗ vừa có tác dụng trang trí, giảm bức xạ nhiệt, vừa tạo hiệu ứng đổ bóng đẹp mắt. Chi tiết này thường thấy trong các thiết kế nhà phố 3 tầng hiện đại hướng tới kiến trúc xanh.

4. Giải Pháp Công Năng Thông Minh Cho Nhà 6x12m
Thách thức lớn nhất của nhà phố là chiều ngang hẹp và chiều sâu dài. Do đó, việc bố trí công năng trong thiết kế nhà phố 3 tầng hiện đại đòi hỏi sự tính toán kỹ lưỡng để đảm bảo sự thông thoáng. Dưới đây là cách TechHome giải bài toán này cho nhà anh Tùng:
4.1. Tầng 1: Không gian kết nối (S=72m2)
Tầng 1 được dành trọn vẹn cho không gian sinh hoạt chung, tuân thủ nguyên tắc “không gian mở” của thiết kế nhà phố 3 tầng hiện đại.
-
Phòng Khách (25m2): Bước qua cửa chính là phòng khách rộng rãi. Với chiều ngang 5m, gia chủ có thể thoải mái bố trí sofa kích thước lớn.
-
Cầu thang bộ: Đặt ở giữa nhà, đóng vai trò như vách ngăn ước lệ phân chia không gian nhưng không làm cản trở tầm nhìn.
-
Phòng Bếp & Ăn (12.5m2): Khu vực bếp được đẩy về phía cuối nhà để mùi thức ăn không ảnh hưởng đến phòng khách. Hệ tủ bếp được thiết kế kịch trần để tối ưu không gian lưu trữ.
-
Vệ sinh chung (4m2): đẩy về phía cuối nhà, vừa tiết kiệm diện tích vừa đảm bảo thẩm mỹ.

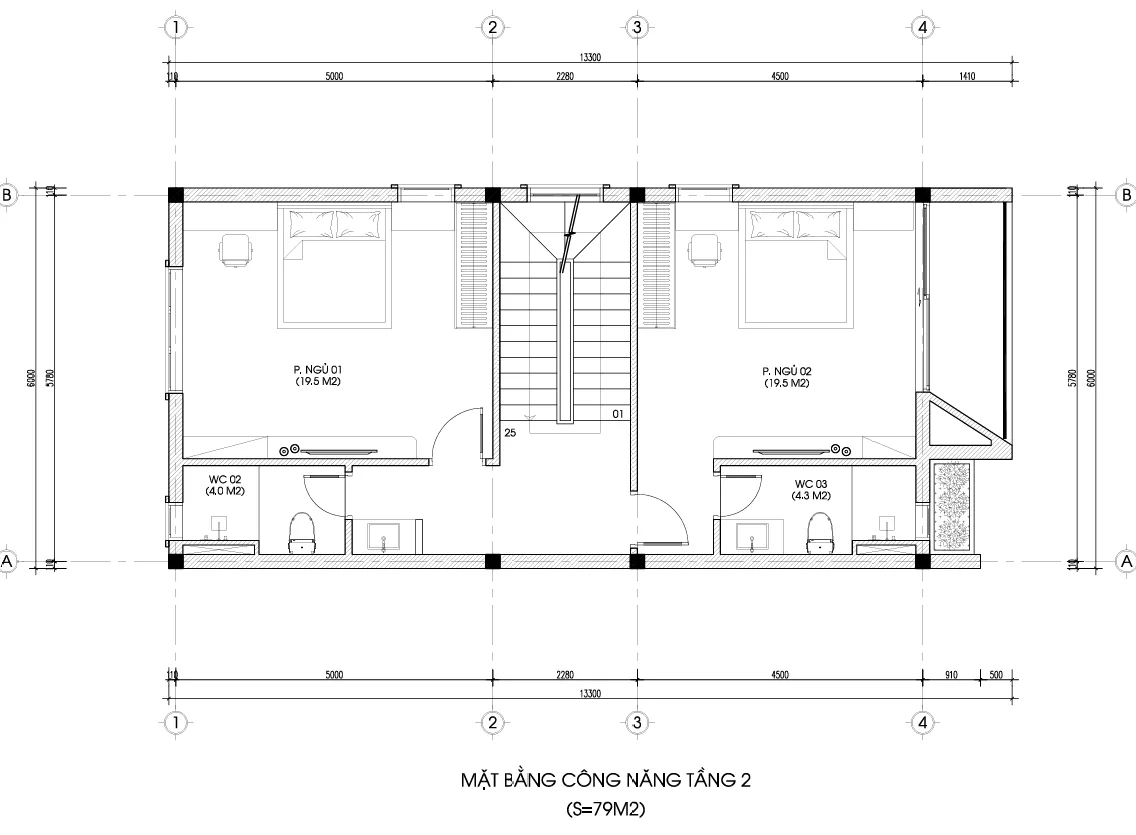
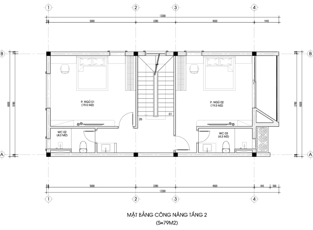
4.2. Tầng 2: Sự riêng tư tuyệt đối (S=79m2)
Tầng 2 là nơi nghỉ ngơi của các thành viên. Trong bản vẽ thiết kế nhà phố 3 tầng hiện đại này, TechHome ưu tiên thiết kế phòng ngủ Master.
-
Phòng Ngủ 02 (19.5m2): Nằm phía trước nhà, sở hữu ban công lớn giúp đón gió và ánh sáng tự nhiên. Đây là không gian lý tưởng để thư giãn sau một ngày làm việc. Kết hợp nhà vệ sinh riêng biệt ngay trong phòng. Điều này mang lại sự tiện nghi tối đa, chuẩn mực của cuộc sống hiện đại.
-
Phòng Ngủ 01 (19.5m2): Nằm phía sau, đảm bảo sự yên tĩnh.
-
WC chung: 4m2

4.3. Tầng 3: Tâm linh và Thư giãn (S=53m2)
Tầng cao nhất trong thiết kế nhà phố 3 tầng hiện đại thường được bố trí các không gian phụ trợ nhưng rất quan trọng.
-
Phòng Thờ (11.5m2): Đặt ở vị trí trang trọng nhất phía trước nhà, hướng ra sân thượng, đảm bảo sự tôn nghiêm và phong thủy.
- 1 phòng ngủ thêm
-
Sân phơi: Bố trí phía sau nhà, kín đáo và đón nắng tốt.
-
Sân thượng: Phía trước phòng thờ là khoảng sân rộng, gia chủ có thể bố trí bàn trà, trồng cây cảnh, tạo nên một khu vườn trên cao xanh mát.

5. Yếu Tố Kỹ Thuật Trong Thiết Kế Nhà Phố 3 Tầng Hiện Đại
Để hiện thực hóa bản vẽ 3D thành ngôi nhà bền vững, phần kỹ thuật kết cấu và điện nước đóng vai trò then chốt. TechHome áp dụng các tiêu chuẩn khắt khe nhất trong quá trình thực hiện hồ sơ thiết kế nhà phố 3 tầng hiện đại này.
5.1. Kết cấu vững chắc
Với địa chất tại Hải Phòng, hệ móng cọc bê tông cốt thép thường được ưu tiên sử dụng để đảm bảo khả năng chịu lực cho công trình 3 tầng. Hệ khung cột, dầm sàn được tính toán để hạn chế các cột giữa nhà, giúp không gian nội thất liền mạch, dễ dàng bố trí đồ đạc – một yêu cầu quan trọng của thiết kế nhà phố 3 tầng hiện đại.
5.2. Hệ thống điện nước thông minh
Hồ sơ thiết kế kỹ thuật của TechHome thể hiện chi tiết sơ đồ cấp thoát nước, sơ đồ nguyên lý điện.
-
Hệ thống đèn chiếu sáng sử dụng đèn LED âm trần (Downlight) kết hợp đèn hắt khe trần thạch cao, tạo ánh sáng sang trọng và tiết kiệm điện năng.
-
Vị trí các ổ cắm, công tắc được bố trí dựa trên kịch bản sinh hoạt thực tế của gia đình, đảm bảo thuận tiện nhất khi sử dụng.
5.3. Chi tiết cửa và hoàn thiện
Trong thiết kế nhà phố 3 tầng hiện đại, hệ thống cửa đóng vai trò quan trọng. TechHome sử dụng nhôm hệ Xingfa kết hợp kính dán an toàn 8.38mm hoặc kính cường lực cho toàn bộ cửa đi và cửa sổ. Loại vật liệu này không chỉ bền bỉ trước khí hậu khắc nghiệt miền biển mà còn cách âm, cách nhiệt cực tốt.
Các chi tiết lan can cầu thang sử dụng kính cường lực tay vịn gỗ, mặt bậc ốp đá Granite tự nhiên màu đen, tạo nên sự tương phản mạnh mẽ và sang trọng.

6. Lợi Ích Khi Chọn TechHome Thiết Kế Nhà Phố 3 Tầng Hiện Đại
Giữa hàng trăm đơn vị thiết kế, tại sao anh Tùng và nhiều khách hàng tại Hải Phòng lại chọn TechHome để gửi gắm ngôi nhà mơ ước?
-
Chuyên môn sâu: Chúng tôi chuyên sâu về mảng thiết kế nhà phố 3 tầng hiện đại, luôn cập nhật những xu hướng vật liệu và công nghệ thi công mới nhất.
-
Hồ sơ chi tiết: Bộ hồ sơ thiết kế của TechHome bao gồm đầy đủ Kiến trúc, Kết cấu, Điện nước, Dự toán… giúp gia chủ quản lý tốt chi phí và chất lượng thi công.
-
Tư vấn phong thủy: Không chỉ đẹp, ngôi nhà còn phải chuẩn phong thủy. Chúng tôi tư vấn kỹ lưỡng về hướng nhà, hướng bếp, kích thước cửa Lỗ Ban để mang lại tài lộc cho gia chủ.
-
Hỗ trợ giám sát: TechHome cam kết đồng hành cùng chủ đầu tư, hỗ trợ giải đáp thắc mắc kỹ thuật 24/7 trong suốt quá trình xây dựng.

7. Chi Phí Thiết Kế Và Thi Công Nhà Phố 3 Tầng Hiện Đại
Một câu hỏi mà TechHome thường xuyên nhận được là: “Chi phí để sở hữu một bản thiết kế nhà phố 3 tầng hiện đại là bao nhiêu?”.
Thực tế, chi phí thiết kế chỉ chiếm một phần rất nhỏ (khoảng 2-3%) trong tổng mức đầu tư nhưng lại quyết định đến 90% vẻ đẹp và công năng của ngôi nhà. Việc đầu tư vào một bản vẽ chất lượng sẽ giúp bạn tránh được những lãng phí không đáng có khi thi công sai, phải đập đi xây lại.
Đối với chi phí xây dựng trọn gói cho mẫu nhà phố 3 tầng 6x12m như nhà anh Tùng, mức đầu tư sẽ dao động tùy thuộc vào chủng loại vật liệu hoàn thiện mà gia chủ lựa chọn. TechHome luôn có bảng dự toán chi tiết, minh bạch từng hạng mục để khách hàng dễ dàng cân đối tài chính.
Lưu ý: Đây chỉ là mức chi phí ước tính. Để nhận được báo giá chính xác và chi tiết nhất cho công trình của bạn, vui lòng liên hệ trực tiếp với chúng tôi. Hoặc để tìm hiểu rõ hơn về tiêu chuẩn vật liệu xây dựng và các yếu tố ảnh hưởng đến chi phí, bạn có thể tham khảo thêm tại các bài viết chuyên sâu về vật liệu xây dựng cao cấp trên Wikipedia.

8. Lời Kết
Ngôi nhà của anh Tùng tại Hải Phòng là một ví dụ điển hình cho sự thành công của phong cách thiết kế nhà phố 3 tầng hiện đại. Với sự kết hợp hài hòa giữa thẩm mỹ kiến trúc, công năng sử dụng và giải pháp kỹ thuật tiên tiến, TechHome đã kiến tạo nên một không gian sống lý tưởng, nơi mỗi thành viên đều tìm thấy sự thoải mái và hạnh phúc.
Nếu bạn đang sở hữu một lô đất phố và ấp ủ dự định xây dựng tổ ấm, hãy để TechHome giúp bạn hiện thực hóa giấc mơ đó bằng một bản thiết kế nhà phố 3 tầng hiện đại độc bản và đẳng cấp.
Liên hệ ngay với chúng tôi để được tư vấn miễn phí!
CÔNG TY CỔ PHẦN KIẾN TRÚC VÀ XÂY DỰNG TECHHOME
-
Địa chỉ: B1.1 LK17 – Ô số 4, KĐT Thanh Hà, Thanh Oai, Hà Nội.
-
Hotline hỗ trợ kỹ thuật: 0364.042.222 – 0387.603.333.
- Xem thêm các dự án nổi bật khác của Techhome tại https://nhadeptechhome.vn/
