Khám phá mẫu nhà phố tân cổ điển 3 tầng sang trọng của gia đình anh Nam tại Đông Anh. Thiết kế mặt tiền 5.8m đẳng cấp, công năng 4 phòng ngủ tiện nghi. Liên hệ Techhome 0364.04.2222 tư vấn trọn gói.
Giới thiệu chung về dự án
Trong xu hướng kiến trúc hiện nay, nhà phố tân cổ điển 3 tầng luôn là sự lựa chọn hàng đầu cho các gia chủ yêu thích vẻ đẹp sang trọng, bền vững với thời gian. Dự án nhà ở gia đình do Techhome thiết kế và thi công cho chủ đầu tư là Anh Nam tại Đông Anh – Hà Nội là một minh chứng xuất sắc cho phong cách này.
Với diện tích xây dựng khoảng 85m2/sàn, công trình nhà phố tân cổ điển 3 tầng không chỉ giải quyết bài toán về không gian sống tiện nghi cho gia đình nhiều thế hệ mà còn khẳng định gu thẩm mỹ tinh tế của gia chủ thông qua ngôn ngữ kiến trúc tân cổ điển đầy mê hoặc.

Phân tích mặt bằng công năng tối ưu
Với kích thước đất đặc thù, các Kiến trúc sư Techhome đã tính toán kỹ lưỡng để tối ưu hóa diện tích sử dụng cho mẫu nhà phố tân cổ điển 3 tầng này.
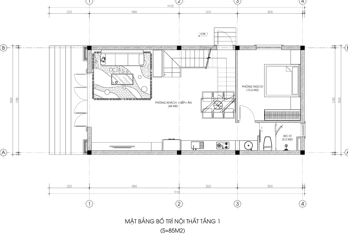
Tầng 1: Không gian sinh hoạt chung rộng mở
-
Phòng Khách và Bếp: Điểm nhấn là không gian liên thông giữa phòng khách và bếp ăn với tổng diện tích lên tới 44m2, tạo cảm giác thông thoáng và rộng rãi.
-
Phòng ngủ người lớn tuổi: Một phòng ngủ khép kín (Phòng ngủ 01) diện tích 13.6m2 được bố trí phía sau, thuận tiện cho sinh hoạt của người lớn tuổi.
-
Tiện ích: Vệ sinh chung (WC 01) rộng 5.2m2 được đặt gọn gàng cạnh cầu thang.

Tầng 2: Không gian nghỉ ngơi riêng tư
-
Phòng ngủ Master: Phòng ngủ 02 rộng 27m2 chiếm trọn mặt tiền, có lối ra ban công thoáng mát, là không gian nghỉ dưỡng lý tưởng cho vợ chồng gia chủ.
-
Phòng ngủ con: Phòng ngủ 03 diện tích 13.6m2 nằm phía sau yên tĩnh.
-
Khu vệ sinh: Tầng 2 sử dụng chung một WC rộng 5.2m2 với đầy đủ tiện nghi.

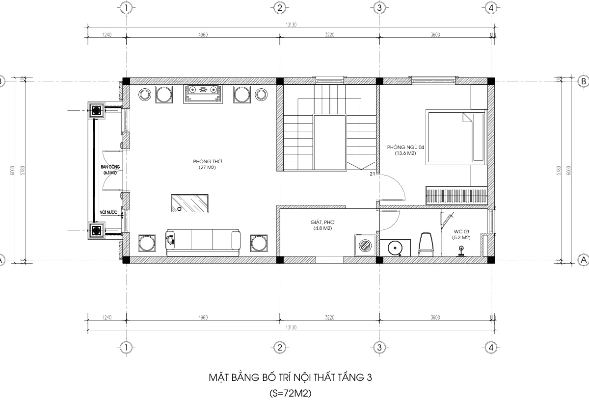
Tầng 3: Không gian tâm linh và thư giãn
-
Phòng thờ trang nghiêm: Phòng thờ rộng 27m2 đặt tại vị trí trang trọng nhất hướng ra ban công sân thượng rộng 6.3m2, đảm bảo yếu tố phong thủy.
-
Phòng ngủ khách: Thêm một phòng ngủ 04 diện tích 13.6m2 dự phòng cho khách hoặc thành viên mới.
-
Sân phơi: Khu vực giặt phơi riêng biệt rộng 4.8m2 được bố trí kín đáo.

Phối cảnh ngoại thất ấn tượng: Vẻ đẹp vượt thời gian
Mặt tiền của ngôi nhà phố tân cổ điển 3 tầng được Techhome xử lý khéo léo để tạo nên sự bề thế, xóa bỏ cảm giác chật hẹp thường thấy của nhà ống.
-
Kiến trúc mặt tiền đẳng cấp: Tầng 1 được ốp đá màu vàng hoàng gia sang trọng, tạo khối đế vững chãi và sạch sẽ. Các tầng trên sử dụng tông màu sơn trắng sứ chủ đạo, làm nền cho các đường phào chỉ và hoa văn phù điêu (chương) đắp nổi tinh xảo ở đầu cột và mái.
-
Điểm nhấn nghệ thuật: Hệ thống ban công được trang bị lan can nhôm đúc nghệ thuật với họa tiết cầu kỳ mạ vàng, kết hợp hài hòa với hệ cửa nhôm kính lớn giúp đón sáng tự nhiên tối đa.
-
Hệ mái giả Mansard: Phần đỉnh mái được thiết kế tường xây cao trang trí vát nhẹ, tạo cảm giác như một hệ mái Mansard quyền quý, giúp công trình trông cao ráo và thanh thoát hơn.

Đánh giá về Kết cấu và Vật liệu xây dựng
Để đảm bảo độ bền và vẻ đẹp cho mẫu nhà phố tân cổ điển 3 tầng, Techhome đã tư vấn sử dụng các vật liệu hoàn thiện cao cấp:
-
Sàn nhà: Toàn bộ không gian sinh hoạt chung được lát gạch Granite vân đá kích thước lớn 800x800mm, mang lại vẻ đẹp sang trọng và cảm giác rộng rãi. Khu vực vệ sinh sử dụng gạch Granite chống trơn 300x300mm an toàn.
-
Cầu thang: Mặt bậc được ốp đá Granite tự nhiên màu đen, kết hợp với lan can tay vịn gỗ kính hiện đại, tạo điểm nhấn thẩm mỹ cho luồng giao thông đứng.
-
Hệ thống cửa: Sử dụng cửa nhôm hệ cao cấp kết hợp kính dán an toàn dày 8.38mm và 6.38mm, đảm bảo cách âm, cách nhiệt và an toàn tuyệt đối.
-
Kết cấu: Công trình sử dụng hệ kết cấu bê tông cốt thép kiên cố, với trần bê tông trát vữa xi măng và lăn sơn 3 nước màu trắng, đảm bảo tuổi thọ lâu dài.
Để tìm hiểu rõ hơn về tiêu chuẩn vật liệu xây dựng và các yếu tố ảnh hưởng đến chi phí, bạn có thể tham khảo thêm tại các bài viết chuyên sâu về vật liệu xây dựng cao cấp trên Wikipedia.

Lợi ích và Giá trị khi chọn Techhome
Khi lựa chọn Techhome làm đơn vị thiết kế và thi công, gia đình anh Nam đã nhận được:
-
Hồ sơ thiết kế chi tiết: Bộ hồ sơ kỹ thuật thi công đầy đủ từ kiến trúc, kết cấu đến điện nước, đảm bảo thợ thi công chính xác tuyệt đối.
-
Đội ngũ chuyên gia: Dự án được chủ trì bởi KTS và kiểm duyệt bởi các kỹ sư giàu kinh nghiệm.
-
Tư vấn phong thủy & Thẩm mỹ: Sự kết hợp hoàn hảo giữa công năng hiện đại và vẻ đẹp tân cổ điển sang trọng.
-
Hỗ trợ kỹ thuật 24/7: Techhome luôn sẵn sàng hỗ trợ tư vấn kỹ thuật trong suốt quá trình xây dựng qua hotline 0364.04.2222.

Nhà phố tân cổ điển 3 tầng có giá bao nhiêu?
Chi phí xây dựng trọn gói cho một căn nhà phố tân cổ điển 3 tầng như nhà anh Nam phụ thuộc vào mức độ cầu kỳ của phào chỉ và vật liệu hoàn thiện.
-
Phần thô: Đơn giá xây dựng phần thô thường dao động tùy thuộc vào kết cấu móng và vật liệu đầu vào.
-
Phần hoàn thiện: Với các vật liệu cao cấp như đá ốp mặt tiền, cửa nhôm hệ kính an toàn, lan can nhôm đúc, chi phí sẽ cao hơn so với phong cách hiện đại đơn giản.
Để có bảng dự toán chi tiết và chính xác nhất cho diện tích đất của bạn, hãy liên hệ ngay với Techhome để được bóc tách khối lượng miễn phí.
Kết luận
Mẫu nhà phố tân cổ điển 3 tầng của gia đình anh Nam tại Đông Anh là một gợi ý tuyệt vời cho những ai đang tìm kiếm một không gian sống đẳng cấp, tiện nghi trên quỹ đất phố.
Bạn muốn sở hữu một ngôi nhà đẹp như thế này? Hãy để Techhome hiện thực hóa giấc mơ của bạn!
👉 Liên hệ ngay để được tư vấn thiết kế – thi công trọn gói:
-
Công ty Cổ phần Kiến trúc và Xây dựng Techhome
-
Hotline/Zalo: 0364.04.2222 – 0387.60.3333
-
Địa chỉ: B1.1 LK17 – Ô số 4, KĐT Thanh Hà, Thanh Oai, Hà Nội
Xem thêm các dự án nổi bật khác của Techhome tại https://nhadeptechhome.vn/


