Khám phá mẫu nhà phố 2 tầng 1 tum 5x20m đẹp hiện đại của gia đình anh Đại tại Mỹ Đức. Thiết kế 5 phòng ngủ tối ưu, chi phí hợp lý. Liên hệ Techhome 0364.042.222.
1. Giới thiệu chung về xu hướng thiết kế nhà phố 5x20m
Trong nhịp sống đô thị hiện đại, quỹ đất ngày càng trở nên khan hiếm, đặc biệt là tại các khu vực đang phát triển như Hà Nội. Chính vì vậy, mẫu nhà phố 2 tầng 1 tum 5x20m đang trở thành “từ khóa vàng” được rất nhiều gia chủ săn đón. Với diện tích sàn 100m2 (5x20m), đây là kích thước lý tưởng để các kiến trúc sư thỏa sức sáng tạo, vừa đảm bảo tính thẩm mỹ của mặt tiền, vừa giải quyết bài toán công năng cho những gia đình đa thế hệ.
Hiểu được nhu cầu đó, Công ty Cổ phần Kiến trúc và Xây dựng Techhome đã dành nhiều tâm huyết để nghiên cứu và cho ra mắt giải pháp thiết kế tối ưu nhất. Dự án tiêu biểu mà chúng tôi muốn giới thiệu hôm nay là ngôi nhà của gia đình anh Đại , tọa lạc tại Mỹ Đức – Hà Nội. Đây không chỉ là một nơi để ở, mà còn là một tác phẩm nghệ thuật kiến trúc, một mẫu nhà phố 2 tầng 1 tum 5x20m điển hình cho phong cách hiện đại, tiện nghi và sang trọng.

2. Phân tích mặt bằng công năng: Đỉnh cao của sự tối ưu
Điều làm nên giá trị thực sự của mẫu nhà phố 2 tầng 1 tum 5x20m nhà anh Đại chính là bản vẽ mặt bằng công năng được tính toán tỉ mỉ đến từng centimet. Với chiều dài 20m, Techhome đã bố trí thành công 5 phòng ngủ – một con số ấn tượng cho quy mô nhà phố, đáp ứng hoàn hảo nhu cầu của gia đình đông thành viên.
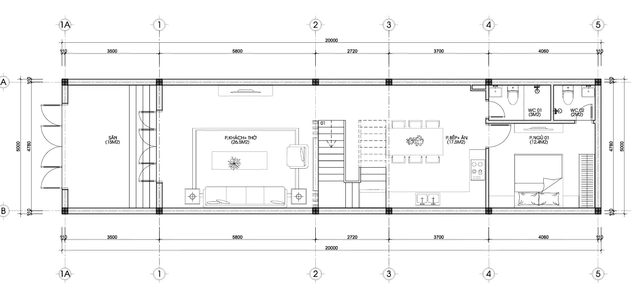
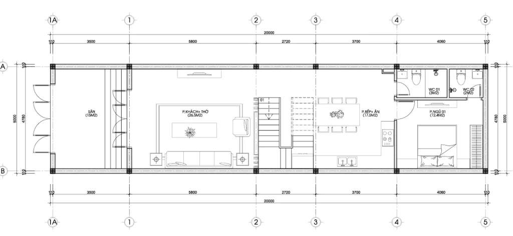
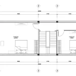
Tầng 1: Không gian kết nối và sinh hoạt chung
Mặt bằng tầng 1 của mẫu nhà phố 2 tầng 1 tum 5x20m được thiết kế theo không gian mở liên thông, tạo cảm giác rộng rãi và thoáng đãng:
-
Phòng Khách kết hợp Phòng Thờ: Ngay từ sảnh chính bước vào là không gian phòng khách rộng rãi, tích hợp khéo léo với khu vực thờ cúng trang trọng. Đây là nét văn hóa truyền thống của người Việt, được Techhome gìn giữ và phát huy.
-
Cầu thang và Sảnh đệm: Khu vực cầu thang nằm ở vị trí trung tâm, đóng vai trò như xương sống giao thông của ngôi nhà.
-
Phòng Bếp Ăn: Với diện tích lên tới 17.5m2, khu bếp ăn được bố trí tiện nghi với hệ tủ bếp chữ L hiện đại, bàn ăn 6 ghế, là nơi giữ lửa hạnh phúc cho gia đình.
-
Phòng Ngủ 01: Nằm ở cuối nhà với diện tích 12.4m2, đây là không gian yên tĩnh, rất phù hợp cho người lớn tuổi để hạn chế việc di chuyển cầu thang.
-
Vệ sinh chung (WC 01): Có diện tích 3m2, được bố trí kín đáo dưới gầm cầu thang hoặc khu vực cuối nhà, đảm bảo thẩm mỹ và sự tiện dụng.

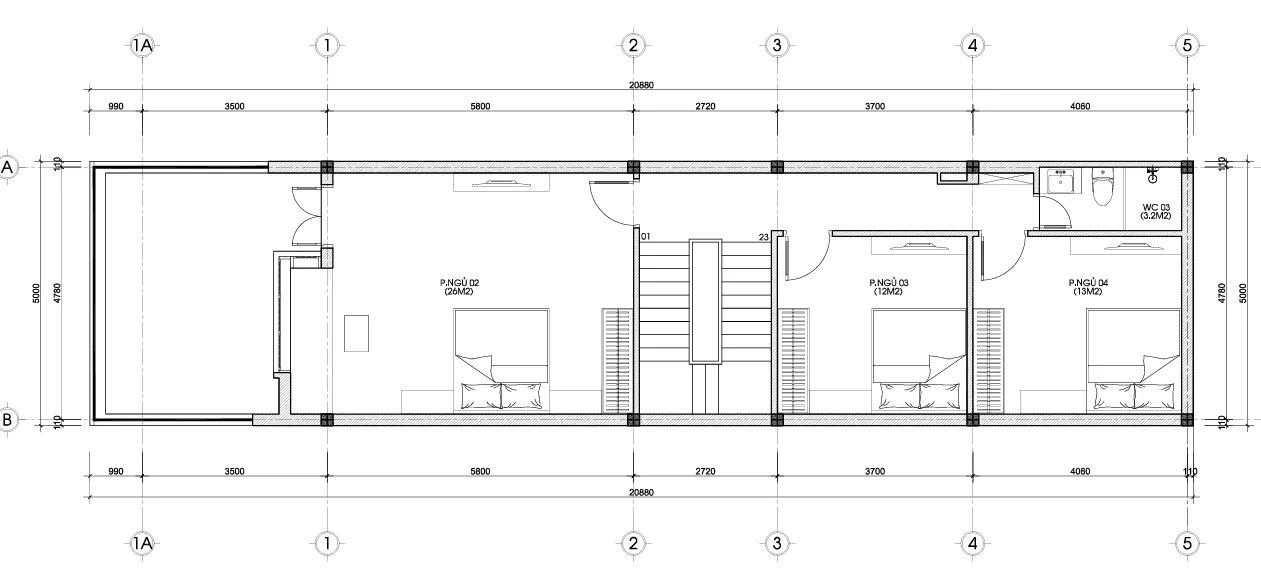
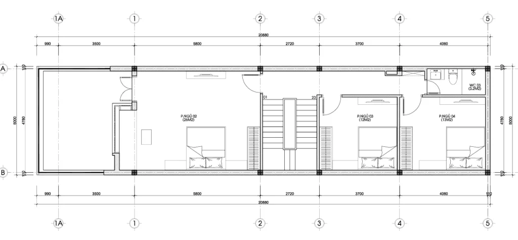
Tầng 2: Không gian nghỉ ngơi riêng tư
Bước lên tầng 2 của mẫu nhà phố 2 tầng 1 tum 5x20m, chúng ta sẽ thấy sự phân chia không gian cực kỳ hợp lý cho các thành viên:
-
Phòng Ngủ 02 (Master): Chiếm trọn không gian phía trước với diện tích “khủng” 26m2. Căn phòng sở hữu ban công rộng thoáng, lấy sáng tối đa, mang lại trải nghiệm nghỉ dưỡng ngay tại nhà.
-
Phòng Ngủ 03 & 04: Phía sau nhà là 2 phòng ngủ nhỏ hơn với diện tích lần lượt là 12m2 và 13m2. Dù diện tích khiêm tốn hơn nhưng nhờ cách bố trí nội thất thông minh, các phòng vẫn đảm bảo đầy đủ tiện nghi.
-
Vệ sinh (WC 03): Một phòng vệ sinh chung rộng 3.2m2 phục vụ cho nhu cầu sinh hoạt của cả tầng.

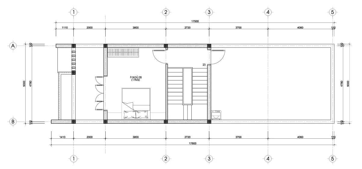
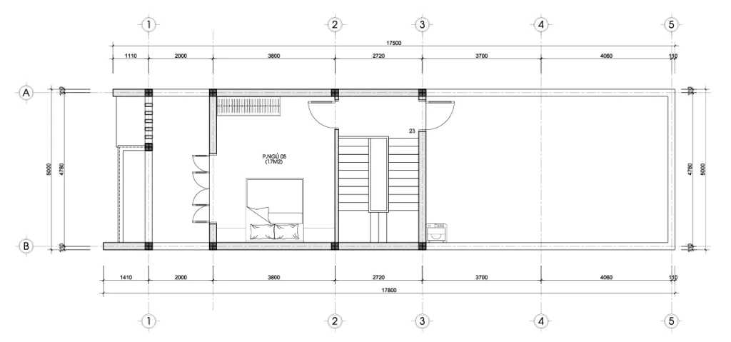
Tầng Tum: Mở rộng không gian sống
Tầng tum là mảnh ghép hoàn hảo cho mẫu nhà phố 2 tầng 1 tum 5x20m, giúp gia tăng diện tích sử dụng mà vẫn tiết kiệm chi phí xây dựng so với lên tầng 3 toàn phần:
-
Phòng Ngủ 05: Diện tích 17m2, có thể linh hoạt sử dụng làm phòng ngủ cho khách, phòng kho hoặc phòng giải trí/làm việc tùy theo nhu cầu gia chủ.
-
Sân phơi và Sân chơi: Khoảng sân thượng rộng rãi phía trước và sau là nơi lý tưởng để trồng cây, làm vườn trên mái hoặc tổ chức các bữa tiệc BBQ ngoài trời.

3. Phối cảnh ngoại thất: Vẻ đẹp hiện đại của mẫu nhà phố 2 tầng 1 tum 5x20m
Ấn tượng đầu tiên khi chiêm ngưỡng mẫu nhà phố 2 tầng 1 tum 5x20m này chính là sự khỏe khoắn và thanh thoát trong ngôn ngữ thiết kế. Mặt tiền ngôi nhà được Techhome xử lý khéo léo bằng các hình khối vuông vức, đan xen nhau tạo nên chiều sâu và sự vững chãi.
Màu sắc và vật liệu kiến trúc
Kiến trúc sư và đội ngũ Techhome đã lựa chọn gam màu trắng sứ làm chủ đạo, kết hợp tinh tế với các mảng tường ốp đá màu ghi xám và màu gỗ ấm áp tại khu vực trần ban công và lam chắn nắng. Sự phối hợp này giúp mẫu nhà phố 2 tầng 1 tum 5x20m luôn giữ được vẻ đẹp tươi mới, không bị lỗi thời theo thời gian.
Mặt tiền tầng 1 được ốp đá tự nhiên sang trọng, tạo cảm giác bề thế và sạch sẽ. Hệ thống cửa cổng sắt sơn tĩnh điện với các nan gỗ ngang vừa đảm bảo an ninh, vừa tạo độ thoáng cần thiết cho không gian bên trong.
Thiết kế không gian mở và lấy sáng
Điểm nhấn đắt giá của mẫu nhà phố 2 tầng 1 tum 5x20m này là hệ thống ban công kính cường lực trong suốt chạy dài ở tầng 2 và tầng tum. Lan can kính không chỉ giúp mở rộng tầm nhìn mà còn đón trọn ánh sáng tự nhiên vào các phòng chức năng. Bên cạnh đó, các bồn cây xanh được bố trí khéo léo tại ban công tầng 2 và khu vực tầng tum, mang lại sinh khí và sự gần gũi với thiên nhiên cho ngôi nhà phố vốn dĩ thường bị coi là bí bách.
Trên tầng mái, hệ thống năng lượng mặt trời và bồn nước được bố trí gọn gàng, khoa học, vừa đảm bảo công năng sử dụng vừa không làm ảnh hưởng đến thẩm mỹ chung của công trình.

4. Kết cấu vững chắc và Vật liệu hoàn thiện cao cấp
Để tạo nên một mẫu nhà phố 2 tầng 1 tum 5x20m bền vững trường tồn, Techhome luôn đặt tiêu chuẩn kỹ thuật lên hàng đầu.
Hệ thống cửa nhôm kính cao cấp
Toàn bộ hệ thống cửa đi và cửa sổ của công trình đều sử dụng nhôm hệ kết hợp kính an toàn. Cụ thể:
-
Cửa đi chính D1 là cửa 4 cánh mở quay, kích thước 2700x2700mm, sử dụng kính dày 8.38mm.
-
Cửa đi thông phòng D2, D3, D4 và cửa vệ sinh DW đều sử dụng kính an toàn 6.38mm hoặc 8.38mm, đảm bảo khả năng cách âm, cách nhiệt và độ bền cao trước tác động của thời tiết.
-
Cửa sổ S1 kích thước 2200x1800mm, thiết kế 2 cánh mở quay kết hợp vách kính cố định (fix), giúp đón gió và ánh sáng tối đa cho phòng ngủ.
Vật liệu ốp lát và Trần thạch cao
Sự sang trọng của mẫu nhà phố 2 tầng 1 tum 5x20m còn đến từ vật liệu hoàn thiện nội thất:
-
Sàn nhà: Sử dụng gạch Granite kích thước lớn 800x800mm với màu sắc theo chỉ định, tạo cảm giác không gian rộng hơn và dễ dàng vệ sinh.
-
Cầu thang: Bậc thang được lát đá Granite tự nhiên, cổ bậc lát đá hoặc gạch tùy chọn, đảm bảo độ cứng và thẩm mỹ.
-
Trần nhà: Hệ thống trần thạch cao khung xương chìm kết hợp sơn trắng được thiết kế giật cấp tinh tế. Hệ thống chiếu sáng bao gồm đèn downlight âm trần, đèn LED hắt và đèn ốp trần, tạo nên hiệu ứng ánh sáng lung linh, ấm cúng.

5. Tại sao nên chọn Techhome thiết kế mẫu nhà phố 2 tầng 1 tum 5x20m?
Giữa hàng trăm đơn vị thiết kế, Techhome tự hào là điểm đến tin cậy của khách hàng khi muốn sở hữu mẫu nhà phố 2 tầng 1 tum 5x20m hoàn hảo:
-
Hồ sơ chi tiết, minh bạch: Chúng tôi cung cấp bộ hồ sơ thiết kế kỹ thuật thi công đầy đủ , bao gồm: Kiến trúc, Kết cấu, Điện nước, Chi tiết cửa, Chi tiết vệ sinh, Mặt bằng lát sàn, Mặt bằng trần đèn…. Điều này giúp gia chủ dễ dàng quản lý chất lượng và khối lượng thi công.
-
Đội ngũ chuyên nghiệp: Với sự chủ trì của KTS và KS , mỗi bản vẽ đều được kiểm duyệt kỹ càng trước khi ban hành.
-
Hỗ trợ kỹ thuật 24/7: Techhome cam kết hỗ trợ tư vấn kỹ thuật xây dựng xuyên suốt quá trình thi công qua Hotline: 0364.042.222 – 0387.603.333.

6. Mẫu nhà phố 2 tầng 1 tum 5x20m có giá bao nhiêu?
Chi phí xây dựng luôn là mối quan tâm hàng đầu. Đối với mẫu nhà phố 2 tầng 1 tum 5x20m như nhà anh Đại, tổng diện tích xây dựng (bao gồm móng, mái, ban công) dao động khoảng 250m2 – 280m2.
-
Chi phí thiết kế: 100.000/m2
-
Chi phí xây dựng phần thô: Dự kiến từ 900 triệu – 1.2 tỷ đồng (tùy thuộc vào kết cấu móng và vật liệu thô).
-
Chi phí hoàn thiện: Dự kiến từ 1.5 tỷ đồng trở lên (tùy thuộc vào chất lượng gạch ốp lát, thiết bị vệ sinh, cửa nhôm kính, sơn bả…).
Lưu ý: Đây chỉ là mức chi phí ước tính. Để nhận được báo giá chính xác và chi tiết nhất cho công trình của bạn, vui lòng liên hệ trực tiếp với chúng tôi. Hoặc để tìm hiểu rõ hơn về tiêu chuẩn vật liệu xây dựng và các yếu tố ảnh hưởng đến chi phí, bạn có thể tham khảo thêm tại các bài viết chuyên sâu về vật liệu xây dựng cao cấp trên Wikipedia.

7. Kết luận
Mẫu nhà phố 2 tầng 1 tum 5x20m của gia đình anh Đại tại Mỹ Đức là minh chứng rõ nét cho năng lực thiết kế của Techhome: Hiện đại – Tiện nghi – Khoa học. Ngôi nhà không chỉ giải quyết bài toán về diện tích mà còn mang đến không gian sống chất lượng cao cho gia đình đa thế hệ.
Nếu bạn đang sở hữu mảnh đất có kích thước tương tự và mong muốn xây dựng một mẫu nhà phố 2 tầng 1 tum 5x20m đẹp như mơ, hãy để Techhome đồng hành cùng bạn kiến tạo tổ ấm.
CÔNG TY CỔ PHẦN KIẾN TRÚC VÀ XÂY DỰNG TECHHOME
-
Chủ đầu tư: Anh Đại
-
Địa điểm: Mỹ Đức – Hà Nội
-
Hotline hỗ trợ kỹ thuật: 0364.042.222 – 0387.603.333
Hãy liên hệ ngay hôm nay để nhận tư vấn miễn phí về mẫu nhà phố 2 tầng 1 tum 5x20m!
Xem thêm các dự án nổi bật khác của Techhome tại https://nhadeptechhome.vn/
