Nếu bạn đang sở hữu một mảnh đất mặt tiền 5m và đau đầu không biết làm sao để ngôi nhà vừa thoáng, vừa đẹp lại không bị “đụng hàng”, thì bài viết này dành cho bạn. Hôm nay, tôi muốn chia sẻ sâu hơn về một bộ hồ sơ thiết kế nhà ống 3 tầng hiện đại mà đội ngũ TechHome vừa hoàn thiện cho gia đình chị Hương tại Gia Lộc, Hải Phòng.
Đây không chỉ là những bản vẽ vô hồn, mà là câu chuyện về cách chúng tôi giải bài toán công năng cho gia đình nhiều thế hệ trên diện tích đất phố điển hình.
1. Thông tin tổng quan dự án
Trước khi đi sâu vào chi tiết, mời mọi người điểm qua vài thông số kỹ thuật chính của công trình này để dễ hình dung:
-
Chủ đầu tư: Chị Hương.
-
Địa điểm xây dựng: Gia Lộc – Hải Phòng.
-
Đơn vị thiết kế: Công ty Cổ phần Kiến trúc và Xây dựng TechHome.
-
Loại hình: Nhà ở gia đình (Nhà ống/Nhà phố).
-
Kích thước xây dựng: Mặt tiền 5m, chiều sâu 15.6m.
-
Phong cách: Thiết kế nhà ống 3 tầng hiện đại.

2. Mặt tiền: Sự phá cách từ những đường cong
Điều đầu tiên đập vào mắt chúng ta khi nhìn vào phối cảnh 3D của ngôi nhà này chính là sự mềm mại. Thông thường, các mẫu thiết kế nhà ống 3 tầng hiện đại hay bị mắc lỗi là quá vuông vức, tạo cảm giác như những chiếc hộp xếp chồng lên nhau.
Tuy nhiên, với ngôi nhà của chị Hương, các kiến trúc sư TechHome đã khéo léo sử dụng ngôn ngữ đường cong. Hãy nhìn vào phần ban công tầng 2 và tầng 3, những mảng tường bo tròn ôm lấy góc ban công kính cường lực tạo nên một dòng chảy thị giác rất mượt mà.
Màu sắc chủ đạo là tông trắng sứ, kết hợp với màu giả gỗ của trần ban công và hệ lam chắn nắng trên tầng tum. Đây là “công thức” kinh điển trong thiết kế nhà ống 3 tầng hiện đại: Trắng để tạo cảm giác rộng rãi, Gỗ để tạo sự ấm cúng và sang trọng. Hệ cửa nhôm kính Xingfa màu xám đen là điểm nhấn khỏe khoắn, cân bằng lại sự mềm mại của kiến trúc.

3. Phân tích công năng: Bài toán diện tích và nhu cầu sử dụng
Cái đẹp bên ngoài chỉ là lớp áo, cái “chất” của một thiết kế nhà ống 3 tầng hiện đại nằm ở cách bố trí bên trong. Với chiều dài đất hơn 16m, việc bố trí sao cho thoáng khí là cực kỳ quan trọng.
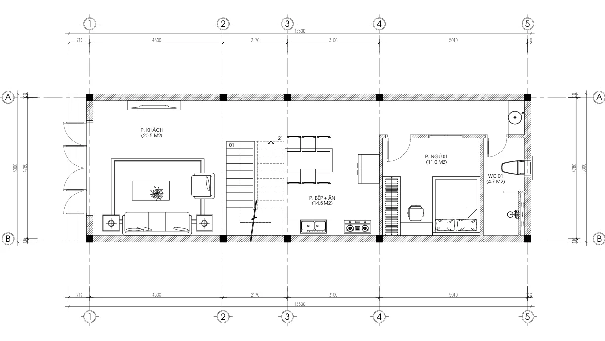
Tầng 1: Không gian kết nối và sự tiện lợi
Bước vào từ sảnh chính, chúng ta có một phòng khách rộng 20.5m2. Đây là kích thước tiêu chuẩn, đủ để bố trí bộ sofa lớn và kệ tivi mà vẫn còn lối đi lại thoải mái.
Điểm tôi thích ở bản vẽ này là cách xử lý cầu thang. Cầu thang được đặt ở giữa nhà, đóng vai trò như vách ngăn tự nhiên giữa phòng khách và khu bếp ăn. Khu vực bếp và phòng ăn rộng 14.5m2 nằm kế tiếp, đảm bảo sự riêng tư cho bữa cơm gia đình khi có khách đến chơi nhà đột xuất.
Đặc biệt, tầng 1 còn bố trí được một phòng ngủ (Phòng ngủ 01) rộng 11.0m2 và một nhà vệ sinh chung (WC 01) rộng 4.7m2. Trong thiết kế nhà ống 3 tầng hiện đại cho gia đình có người lớn tuổi, việc có phòng ngủ tầng 1 là một điểm cộng cực lớn, giúp ông bà hạn chế leo trèo cầu thang.

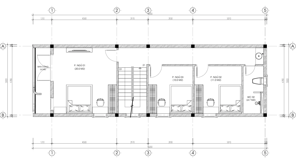
Tầng 2: Khu vực nghỉ ngơi tập trung
Lên đến tầng 2, không gian được chia nhỏ để tối ưu hóa số lượng phòng ngủ. Bản vẽ mặt bằng công năng tầng 2 cho thấy sự sắp xếp rất khéo léo:
-
Phòng ngủ Master: Nằm phía trước nhà, rộng 20.0m2, có ban công thoáng mát. Đây là nơi nghỉ ngơi lý tưởng cho vợ chồng gia chủ.
-
Hai phòng ngủ phụ: Phòng ngủ 02 (11.0m2) và Phòng ngủ 03 (10.0m2) nằm phía sau.
-
Vệ sinh: Một WC chung rộng 4.7m2.
Nhiều người sẽ thắc mắc tại sao thiết kế nhà ống 3 tầng hiện đại này lại chỉ có 1 WC ở tầng 2 cho 3 phòng ngủ? Thực tế, đây là sự đánh đổi để mở rộng diện tích phòng ngủ trên một mặt sàn 5x16m. Nếu gia đình sinh hoạt nề nếp, việc dùng chung 1 WC lớn vẫn hoàn toàn khả thi và tiết kiệm chi phí thi công đường ống nước.

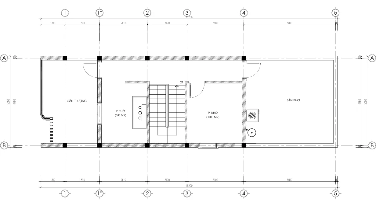
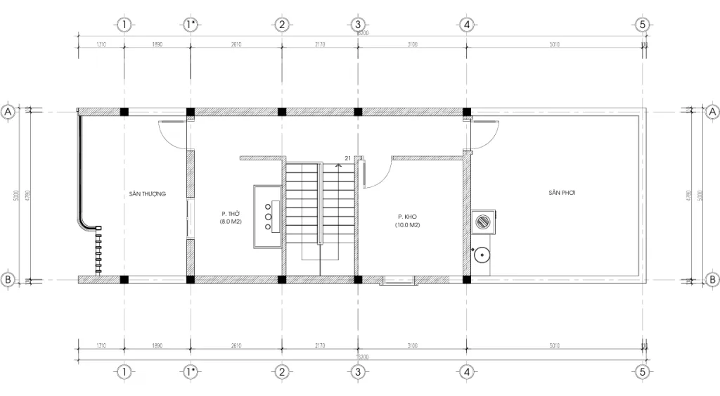
Tầng Tum (Tầng 3): Không gian tâm linh và thư giãn
Tầng cao nhất của mẫu thiết kế nhà ống 3 tầng hiện đại này dành cho không gian tĩnh tại. Phòng thờ rộng 8.0m2 được đặt trang trọng phía trước, hướng ra sân thượng (sân thông). Phía sau là một phòng kho 10.0m2 và khu vực sân phơi.
Cách bố trí này rất chuẩn phong thủy và thói quen sinh hoạt của người Việt: Phòng thờ cần cao ráo, sạch sẽ; sân phơi cần kín đáo phía sau nhưng vẫn đón được nắng gió.

4. Những chi tiết kỹ thuật đắt giá
Là người trong nghề, khi nhìn vào hồ sơ kỹ thuật thi công của TechHome, tôi đánh giá cao sự tỉ mỉ. Một thiết kế nhà ống 3 tầng hiện đại đẹp không chỉ ở hình khối mà còn ở độ bền vững.
-
Kết cấu tường: Bản vẽ mặt bằng tường xây cho thấy hệ thống cột và tường 220mm bao quanh kiên cố, đảm bảo cách âm, cách nhiệt tốt cho ngôi nhà.
-
Hệ thống cửa: Các bản vẽ chi tiết cửa đi, cửa sổ đều sử dụng nhôm hệ kính an toàn 8.38mm hoặc 6.38mm. Điều này cực kỳ quan trọng đối với một thiết kế nhà ống 3 tầng hiện đại, giúp lấy sáng tối đa nhưng vẫn đảm bảo an ninh.
-
Cầu thang: Mặt bậc ốp đá Granite đen, cổ bậc ốp đá trắng. Sự tương phản đen – trắng này không chỉ đẹp mà còn giúp người đi dễ dàng phân biệt các bậc thang, tránh vấp ngã, một chi tiết nhỏ nhưng rất tinh tế.

5. Tại sao nên chọn phong cách hiện đại cho nhà ống?
Nhìn vào công trình của chị Hương, bạn sẽ thấy rõ ưu điểm của phong cách này. Thiết kế nhà ống 3 tầng hiện đại lược bỏ hoàn toàn các phào chỉ rườm rà của phong cách tân cổ điển. Thay vào đó, nó tập trung vào hình khối, vật liệu và công năng.
-
Tiết kiệm chi phí: Ít chi tiết trang trí cầu kỳ đồng nghĩa với việc giảm nhân công đắp vẽ.
-
Không lỗi thời: Vẻ đẹp của sự đơn giản luôn trường tồn với thời gian.
-
Dễ dàng vệ sinh: Ít ngóc ngách, bụi bẩn khó bám, giúp ngôi nhà luôn mới.

6. Kinh nghiệm xây nhà ống 3 tầng từ thực tế công trình này
Nếu bạn đang ấp ủ một dự định xây thiết kế nhà ống 3 tầng hiện đại tương tự nhà chị Hương, hãy lưu ý vài điểm sau:
-
Giếng trời là bắt buộc: Dù trong bản vẽ này chúng ta thấy sự thông thoáng nhờ chiều dài nhà và sân sau, nhưng nếu đất của bạn ngắn hơn, hãy hy sinh 1-2m2 để làm giếng trời giữa nhà (khu vực cầu thang). Nó là lá phổi của cả ngôi nhà.
-
Chú trọng chống thấm: Tầng tum và sân thượng là nơi tiếp xúc trực tiếp với mưa nắng. Bản vẽ lát sàn tầng tum của TechHome đã chỉ rõ độ dốc về phễu thu sàn, đây là điều bắt buộc phải giám sát kỹ khi thi công.
-
Lựa chọn vật liệu mặt tiền: Phần gỗ ốp trần ban công nên sử dụng gỗ nhựa ngoài trời (Conwood hoặc Smartwood) thay vì gỗ tự nhiên để tránh cong vênh, mối mọt do thời tiết miền Bắc khắc nghiệt.

7. Chi phí đầu tư cho mẫu nhà này khoảng bao nhiêu?
Đây là câu hỏi tôi nhận được nhiều nhất khi tư vấn thiết kế nhà ống 3 tầng hiện đại. Với tổng diện tích sàn xây dựng khoảng 220m2 – 240m2 (bao gồm cả móng và mái), và mức đầu tư vật liệu hoàn thiện ở mức khá (Cửa nhôm kính, đá ốp lát, thiết bị vệ sinh Inax/Toto…), chi phí xây dựng trọn gói cho một ngôi nhà như thế này tại khu vực Hải Phòng hay các tỉnh lân cận sẽ dao động trong khoảng 1.3 – 1.6 tỷ đồng (tùy thời điểm giá vật liệu).
Tất nhiên, con số này có thể thay đổi. Nhưng với một bản thiết kế nhà ống 3 tầng hiện đại chi tiết như bộ hồ sơ của chị Hương, bạn sẽ hạn chế được tối đa các chi phí phát sinh do đập đi xây lại hay sai sót kỹ thuật.
Lưu ý: Đây chỉ là mức chi phí ước tính. Để nhận được báo giá chính xác và chi tiết nhất cho công trình của bạn, vui lòng liên hệ trực tiếp với chúng tôi. Hoặc để tìm hiểu rõ hơn về tiêu chuẩn vật liệu xây dựng và các yếu tố ảnh hưởng đến chi phí, bạn có thể tham khảo thêm tại các bài viết chuyên sâu về vật liệu xây dựng cao cấp trên Wikipedia.

Kết luận
Ngôi nhà của chị Hương tại Gia Lộc, Hải Phòng là một minh chứng điển hình cho thấy: Không cần đất quá rộng, không cần trang trí quá cầu kỳ, bạn vẫn có thể sở hữu một không gian sống đẳng cấp. Mẫu thiết kế nhà ống 3 tầng hiện đại này đã giải quyết xuất sắc bài toán cân bằng giữa thẩm mỹ và công năng sử dụng cho gia đình Việt.
Hy vọng những phân tích chân thực từ hồ sơ thiết kế thực tế này đã giúp bạn có thêm ý tưởng cho ngôi nhà tương lai của mình. Đừng ngần ngại để lại bình luận hoặc liên hệ với chúng tôi nếu bạn cần tư vấn thêm về các mẫu thiết kế nhà ống 3 tầng hiện đại nhé!
Xem thêm các dự án nổi bật khác của Techhome tại https://nhadeptechhome.vn/
