Khám phá dự án thiết kế nhà 2 tầng tại Thái Bình ấn tượng của gia đình Anh Lâm tại Quỳnh Phụ Thái Bình. Với phong cách hiện đại, mặt tiền 7.7m và công năng 3 phòng ngủ tiện nghi, Techhome đã kiến tạo nên không gian sống lý tưởng.
1. Xu hướng thiết kế nhà 2 tầng tại Thái Bình trong kỷ nguyên mới
Trong những năm gần đây, bộ mặt nông thôn và đô thị tại tỉnh Thái Bình đang thay đổi nhanh chóng. Nhu cầu về không gian sống không chỉ dừng lại ở việc “che mưa che nắng” mà còn phải đảm bảo tính thẩm mỹ, công năng khoa học và thể hiện được gu thẩm mỹ của gia chủ. Chính vì thế, dịch vụ thiết kế nhà 2 tầng tại Thái Bình đang trở thành từ khóa được tìm kiếm hàng đầu, đặc biệt là các mẫu nhà phố hiện đại, mái bằng trẻ trung.
Giữa hàng trăm đơn vị kiến trúc, Công ty Cổ phần Kiến trúc và Xây dựng Techhome tự hào là đơn vị được gia đình anh Lâm tại Quỳnh Phụ tin tưởng “chọn mặt gửi vàng”. Dự án nhà ở gia đình của anh Lâm không chỉ là một công trình xây dựng, mà là minh chứng cho tư duy thiết kế đột phá trên quỹ đất nhà phố điển hình.
Bài viết này sẽ phân tích chi tiết hồ sơ thiết kế, từ phối cảnh ngoại thất đến bản vẽ kỹ thuật, giúp các gia chủ đang có ý định thiết kế nhà 2 tầng tại Thái Bình có thêm góc nhìn thực tế và sâu sắc nhất.

2. Tổng quan dự án và bài toán thiết kế của Anh Lâm
Trước khi đi sâu vào chi tiết, chúng ta cùng điểm qua các thông số vàng của công trình này. Đây là cơ sở quan trọng để Techhome đưa ra phương án thiết kế nhà 2 tầng tại Thái Bình tối ưu nhất:
-
Chủ đầu tư: Anh Lâm.
-
Địa điểm xây dựng: Huyện Quỳnh Phụ, Tỉnh Thái Bình.
-
Đơn vị tư vấn thiết kế: Techhome.
-
Kích thước xây dựng: Mặt tiền rộng 7.7m, chiều sâu 8.8m.
-
Diện tích sàn: Khoảng 68m2/sàn.
-
Loại hình: Nhà phố 2 tầng, mái bằng, phong cách hiện đại (Minimalism).
Với kích thước đất khá vuông vắn (gần như hình vuông), thách thức đặt ra cho đội ngũ KTS Techhome khi thực hiện dự án thiết kế nhà 2 tầng tại Thái Bình này là làm sao bố trí đủ 03 phòng ngủ, 01 phòng thờ trang trọng mà các không gian sinh hoạt chung vẫn phải rộng rãi, thông thoáng.

3. Phối cảnh ngoại thất: Vẻ đẹp của sự tinh tế và hình khối
Điểm nhấn đầu tiên khi nhìn vào công trình này chính là ngôn ngữ kiến trúc hiện đại, gãy gọn nhưng đầy cảm xúc. Đối với các dự án thiết kế nhà 2 tầng tại Thái Bình, gia chủ thường lo ngại mái bằng sẽ gây cảm giác đơn điệu. Tuy nhiên, Techhome đã xử lý hình khối vô cùng khéo léo.
Sự giao thoa giữa đường thẳng và đường cong
Mặt tiền ngôi nhà sử dụng các mảng khối bê tông đua ra thụt vào hợp lý để tạo chiều sâu. Điểm đắt giá nhất nằm ở phần mái và ban công tầng 2 được bo cong mềm mại ở góc. Chi tiết này phá vỡ sự cứng nhắc thường thấy của bê tông cốt thép, tạo nên nét duyên dáng, mềm mại cho tổng thể công trình. Đây là xu hướng “Hot” nhất trong thị trường thiết kế nhà 2 tầng tại Thái Bình năm nay.
Bản hòa ca của vật liệu hiện đại
Techhome không lạm dụng quá nhiều màu sắc. Chúng tôi sử dụng màu trắng sứ làm nền chủ đạo, giúp ngôi nhà trông thanh thoát và lớn hơn so với diện tích thực. Nổi bật trên nền trắng là:
-
Đá ốp tường trang trí: Màu ghi xám sang trọng ở các mảng tường trụ cột, tạo cảm giác vững chãi.
-
Gỗ nhựa (Conwood): Được ốp tại trần ban công và bồn hoa, mang lại sự ấm áp và gần gũi với thiên nhiên.
-
Hệ thống cửa nhôm kính: Sử dụng nhôm hệ màu ghi đen kết hợp kính an toàn, vừa bền bỉ trước khí hậu gió mùa, vừa lấy sáng tối đa.
Sự kết hợp này tạo nên một diện mạo ngoại thất bền vững với thời gian, giúp công trình của anh Lâm trở thành tâm điểm chú ý tại Quỳnh Phụ và là mẫu tham khảo lý tưởng cho ai muốn thiết kế nhà 2 tầng tại Thái Bình.

4. Phân tích mặt bằng công năng: Đỉnh cao của sự tối ưu
Giá trị cốt lõi của một bản vẽ thiết kế nằm ở mặt bằng công năng. Dựa trên hồ sơ kỹ thuật thi công, hãy cùng xem Techhome đã giải bài toán diện tích như thế nào trong dự án thiết kế nhà 2 tầng tại Thái Bình này.
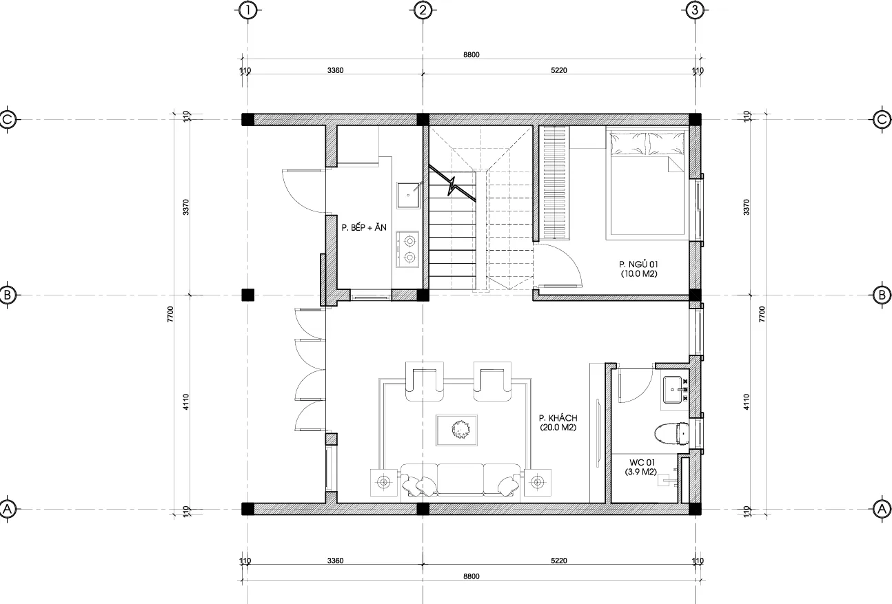
Tầng 1: Sự kết nối không gian mở
Với diện tích khoảng 68m2, việc phân chia không gian cần sự tính toán tỉ mỉ:
-
Phòng Khách (20.0 m2): Ngay từ sảnh chính bước vào là phòng khách rộng rãi, cho phép bố trí bộ sofa lớn và kệ tivi hiện đại. Đây là không gian bộ mặt của ngôi nhà, thể hiện sự hiếu khách của người dân Thái Bình.
-
Phòng Bếp + Ăn: Nằm liên thông nhưng được khéo léo che chắn bởi cầu thang, giúp ngăn mùi khi nấu nướng mà vẫn giữ được sự liền mạch.
-
Phòng Ngủ 01 (10.0 m2): Việc bố trí phòng ngủ ngay tầng 1 là cực kỳ cần thiết cho các gia đình có người lớn tuổi, giúp hạn chế việc leo cầu thang, đảm bảo an toàn.
-
WC 01 (3.9 m2): Được đặt kín đáo ở cuối nhà, tối ưu diện tích triệt để.
Cách bố trí này rất phổ biến và được ưa chuộng trong các yêu cầu thiết kế nhà 2 tầng tại Thái Bình hiện nay nhờ tính thực dụng cao.

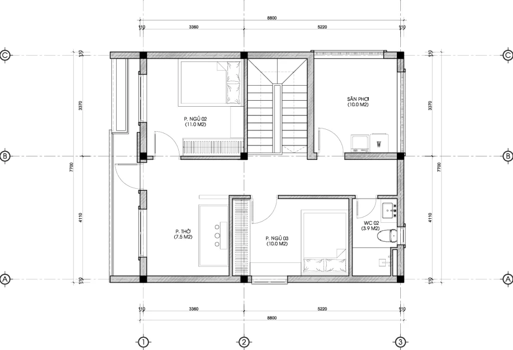
Tầng 2: Không gian riêng tư và tâm linh
Di chuyển lên tầng 2 qua cầu thang 23 bậc được ốp đá Granite sang trọng, chúng ta đến với không gian nghỉ ngơi:
-
Phòng thờ (7.5 m2): Được ưu tiên đặt ở vị trí trang trọng nhất phía mặt tiền, hướng ra ban công thoáng đãng. Trong văn hóa của người Thái Bình, phòng thờ luôn là nơi quan trọng nhất, và Techhome đã đáp ứng trọn vẹn yếu tố phong thủy này.
-
Phòng ngủ 02 (11.0 m2) và Phòng ngủ 03 (10.0 m2): Dành cho vợ chồng anh Lâm và con cái. Các phòng đều có cửa sổ lớn đón gió trời.
-
Sân phơi & WC 02: Khu vực giặt phơi được bố trí phía sau nhà, đảm bảo thẩm mỹ cho mặt tiền.

5. Giải pháp kỹ thuật và Vật liệu xây dựng bền vững
Yếu tố then chốt giúp các công trình thiết kế nhà 2 tầng tại Thái Bình của Techhome luôn bền đẹp chính là hồ sơ kết cấu và điện nước chi tiết.
Kết cấu vững chắc
Công trình sử dụng hệ khung bê tông cốt thép chịu lực. Sàn và mái đều được đổ bê tông cốt thép toàn khối. Đặc biệt, phần móng được tính toán kỹ lưỡng dựa trên địa chất khu vực Quỳnh Phụ, đảm bảo không sụt lún, nứt gãy theo thời gian.
Hệ thống Điện – Nước thông minh
Hồ sơ thiết kế của Techhome bao gồm chi tiết mặt bằng trần đèn. Chúng tôi sử dụng kết hợp đèn Downlight âm trần, đèn LED hắt khe trần thạch cao và đèn chùm trang trí. Điều này không chỉ cung cấp đủ ánh sáng mà còn tạo hiệu ứng thị giác lung linh cho ngôi nhà vào ban đêm.
Vật liệu hoàn thiện cao cấp
Trong dự án thiết kế nhà 2 tầng tại Thái Bình này, Techhome chỉ định sử dụng các vật liệu chất lượng:
-
Sàn nhà: Lát gạch Granite vân đá kích thước 800×800 hoặc 600×600, mang lại vẻ đẹp sang trọng và dễ vệ sinh.
-
Cửa: Toàn bộ cửa đi và cửa sổ sử dụng nhôm hệ kính dày 6.38mm đến 8.38mm. Đây là giải pháp cách âm, cách nhiệt tuyệt vời cho nhà phố.
-
Trần: Sử dụng trần thạch cao khung xương chìm chống ẩm, kết hợp tấm nhựa vân gỗ tạo điểm nhấn.

6. Tại sao nên chọn Techhome để thiết kế nhà 2 tầng tại Thái Bình?
Thị trường xây dựng đang bão hòa, nhưng Techhome vẫn khẳng định vị thế vững chắc. Dưới đây là những lý do khiến anh Lâm và hàng trăm khách hàng khác lựa chọn chúng tôi khi cần thiết kế nhà 2 tầng tại Thái Bình:
-
Hồ sơ thiết kế chi tiết, minh bạch: Bộ hồ sơ bàn giao cho anh Lâm bao gồm đầy đủ các hạng mục và nhiều hơn nữa. Từ mặt bằng định vị, chi tiết lát sàn, chi tiết cửa, đến sơ đồ điện nước. Điều này giúp gia chủ quản lý được vật tư, tránh phát sinh chi phí và thợ thi công dễ dàng thực hiện chính xác 100%.
-
Am hiểu địa phương: Với kinh nghiệm thực chiến dày dặn tại Thái Bình, Techhome hiểu rõ đặc điểm khí hậu, địa chất và văn hóa sinh hoạt nơi đây. Do đó, các bản vẽ thiết kế nhà 2 tầng tại Thái Bình của chúng tôi luôn có tính ứng dụng thực tế cao nhất.
-
Hỗ trợ kỹ thuật 24/7: Dù bạn chỉ thuê thiết kế hay thi công trọn gói, Techhome luôn cam kết hỗ trợ tư vấn kỹ thuật xây dựng qua Hotline 0364.04.2222 trong suốt quá trình thi công. Đây là sự an tâm tuyệt đối mà ít đơn vị nào cam kết được.
-
Chi phí hợp lý: Chúng tôi cung cấp các gói thiết kế đa dạng, phù hợp với ngân sách của từng gia đình mà vẫn đảm bảo chất lượng 5 sao.

7. Báo giá thiết kế và thi công nhà 2 tầng tại Thái Bình
Một trong những câu hỏi lớn nhất khi khách hàng tìm kiếm dịch vụ thiết kế nhà 2 tầng tại Thái Bình chính là chi phí. Đối với mẫu nhà hiện đại diện tích khoảng 140m2 sàn như nhà anh Lâm:
-
Chi phí thiết kế: Đơn giá thiết kế kiến trúc và nội thất tại Techhome luôn cạnh tranh nhất thị trường.
-
Chi phí xây dựng phần thô: Dao động tùy thuộc vào thời điểm giá vật liệu (sắt, thép, xi măng) tại địa phương.
-
Chi phí hoàn thiện: Phụ thuộc vào chủng loại vật tư (gạch ốp lát, thiết bị vệ sinh, cửa, sơn bả…) mà gia chủ lựa chọn.
Để có bảng dự toán chính xác nhất cho khu đất của mình, quý khách hàng đang có nhu cầu thiết kế nhà 2 tầng tại Thái Bình hãy liên hệ trực tiếp để được KTS khảo sát và bóc tách khối lượng chi tiết.
8. Những lưu ý vàng khi xây nhà 2 tầng tại Thái Bình
Từ kinh nghiệm thực tế dự án nhà anh Lâm, Techhome xin chia sẻ một số kinh nghiệm quý báu cho các gia chủ đang chuẩn bị thiết kế nhà 2 tầng tại Thái Bình:
-
Chú trọng chống thấm: Thái Bình là vùng có khí hậu nồm ẩm và mưa nhiều. Việc xử lý chống thấm mái, ban công và chân tường (ốp gạch chân tường cao) là bắt buộc để bảo vệ công trình.
-
Tận dụng ánh sáng tự nhiên: Đất nhà phố thường bí bách. Hãy yêu cầu KTS mở tối đa cửa sổ và sử dụng giếng trời hoặc ô cầu thang rộng để lấy sáng và gió, giúp tiết kiệm điện năng.
-
Lựa chọn nhà thầu uy tín: Một bản vẽ đẹp cần một bàn tay thi công chuẩn xác. Hãy chọn đơn vị có năng lực đọc hiểu bản vẽ tốt để hiện thực hóa ý tưởng của kiến trúc sư.

9. Kết luận
Ngôi nhà của anh Lâm tại Quỳnh Phụ không chỉ là chốn đi về, mà là một tác phẩm nghệ thuật kiến trúc, cân bằng hoàn hảo giữa thẩm mỹ và công năng. Dự án này một lần nữa khẳng định năng lực của Techhome trong lĩnh vực thiết kế nhà 2 tầng tại Thái Bình.
Nếu bạn đang sở hữu một mảnh đất và ấp ủ giấc mơ về một ngôi nhà hiện đại, tiện nghi, hãy để Techhome đồng hành cùng bạn. Chúng tôi cam kết mang đến những giải pháp thiết kế nhà 2 tầng tại Thái Bình tối ưu nhất, tiết kiệm nhất và đẳng cấp nhất.
Đừng ngần ngại, hãy liên hệ ngay với chúng tôi để nhận tư vấn miễn phí và tham khảo thêm nhiều mẫu nhà đẹp khác!
CÔNG TY CỔ PHẦN KIẾN TRÚC VÀ XÂY DỰNG TECHHOME
-
Hotline tư vấn kỹ thuật: 0364.04.2222 – 0387.60.3333.
- Xem thêm các dự án nổi bật khác của Techhome tại https://nhadeptechhome.vn/
Hãy biến ngôi nhà mơ ước thành hiện thực ngay hôm nay với Techhome – Đơn vị hàng đầu về thiết kế nhà 2 tầng tại Thái Bình!
