Giữa nhịp sống hối hả của thành phố cảng, việc tìm kiếm một chốn đi về vừa tiện nghi, vừa thư thái là mơ ước của bao người. Công trình thiết kế nhà ống 3 tầng của gia đình anh Hoàng An tại An Dương, Hải Phòng do Tech Home thực hiện chính là một ví dụ điển hình cho xu hướng kiến trúc hiện đại: tối giản nhưng không đơn điệu, mạnh mẽ nhưng vẫn đầy cảm xúc.
Hãy cùng chúng tôi khám phá từng ngóc ngách của ngôi nhà này để thấy sự tinh tế trong cách bố trí công năng và thẩm mỹ mặt tiền.
1. Vẻ đẹp ngoại thất: Sự phá cách từ những đường cong
Ấn tượng đầu tiên khi nhìn vào bản phối cảnh 3D của ngôi nhà này chính là sự mềm mại đến ngạc nhiên. Khác với những khối bê tông vuông vức thường thấy trong các mẫu thiết kế nhà ống 3 tầng truyền thống, Tech Home đã khéo léo lồng ghép ngôn ngữ kiến trúc “Soft Architecture” (Kiến trúc mềm).
Phần ban công tầng 2 và tầng 3 không đi theo lối mòn góc cạnh mà được bo tròn mềm mại. Chi tiết này kết hợp với tông màu trắng chủ đạo và màu nâu cam đất của các mảng tường nhấn tạo nên một tổng thể vừa thanh lịch, vừa ấm áp. Hệ lam chắn nắng bằng gỗ nhựa phía trên mái không chỉ giúp giảm bức xạ nhiệt mà còn tạo hiệu ứng đổ bóng đẹp mắt khi nắng chiều buông xuống, làm cho thiết kế nhà ống 3 tầng này trở nên sống động hơn bao giờ hết.

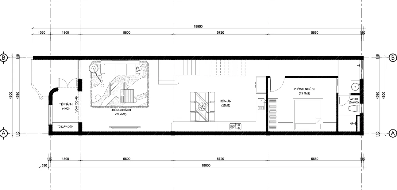
2. Bài toán không gian trên diện tích 4.8m x 19.9m
Với kích thước mặt tiền 4.8m và chiều sâu gần 20m, thách thức đặt ra cho các kiến trúc sư là làm sao để ngôi nhà không bị hun hút như một “cái ống” đúng nghĩa. Giải pháp thiết kế nhà ống 3 tầng ở đây là phân chia không gian thông minh và tận dụng giếng trời.
Tầng 1: Sự kết nối liền mạch
Bước qua khoảng sân trước rộng rãi dùng để xe và vùng đệm tiền sảnh, chúng ta tiến vào phòng khách rộng 24.4m2. Tại đây, thiết kế nhà ống 3 tầng ưu tiên sự liên thông. Phòng khách được nối liền với khu vực bếp ăn rộng 22m2 qua sảnh thang.
Điểm đắt giá của tầng 1 là phòng ngủ 01 (13.4m2) được bố trí phía cuối nhà. Đây là giải pháp cực kỳ tâm lý trong thiết kế nhà ống 3 tầng dành cho gia đình đa thế hệ, nơi người lớn tuổi có thể nghỉ ngơi yên tĩnh, hạn chế leo cầu thang .

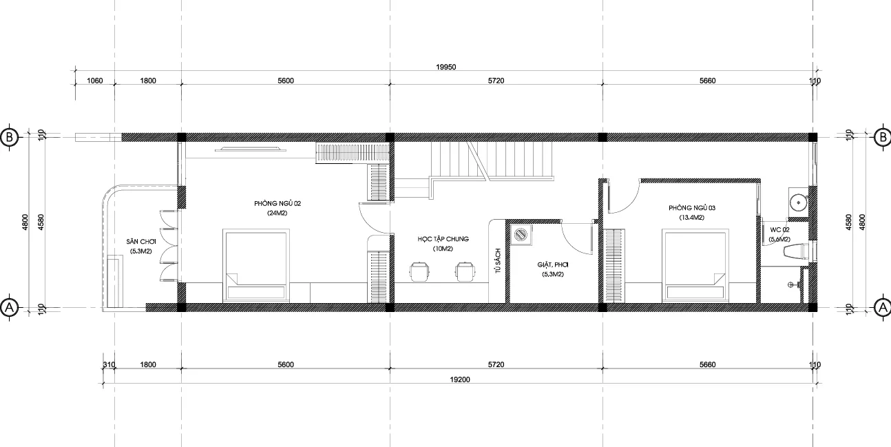
Tầng 2: Không gian riêng tư và gắn kết
Di chuyển lên tầng 2, bạn sẽ thấy sự ưu việt trong thiết kế nhà ống 3 tầng của Tech Home. Thay vì chỉ có các phòng ngủ đóng kín, kiến trúc sư đã bố trí một khu vực “Học tập chung” rộng 10m2 ngay tại sảnh thang. Đây là nơi cha mẹ có thể kèm con học bài hoặc cả nhà cùng đọc sách, tăng tính gắn kết gia đình.
Hai phòng ngủ tại tầng này được bố trí tách biệt. Phòng ngủ Master (phòng ngủ 02) phía trước rộng tới 24m2, sở hữu ban công riêng. Phòng ngủ 03 phía sau rộng 13.4m2 đảm bảo sự riêng tư tuyệt đối. Cách bố trí này là tiêu chuẩn vàng cho các mẫu thiết kế nhà ống 3 tầng hiện nay.

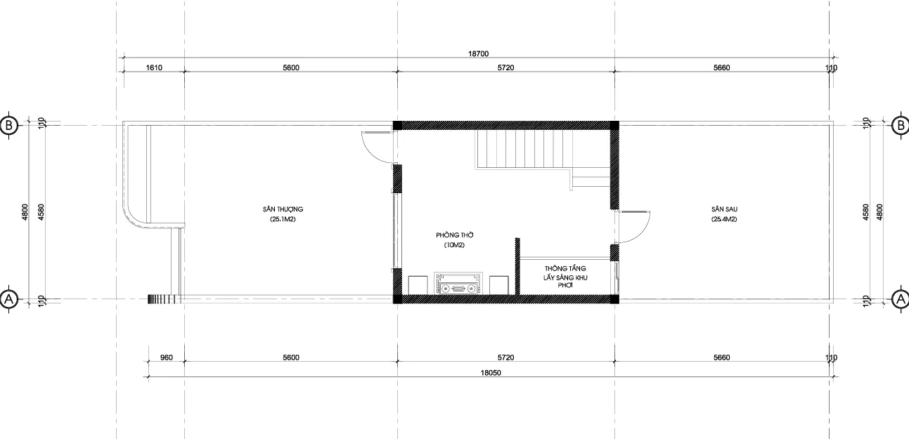
Tầng 3: Góc “Chill” giữa lòng phố thị
Tầng 3 là nơi thể hiện rõ nhất phong cách sống của gia chủ. Ngoài phòng thờ trang nghiêm rộng 10m2 , điểm nhấn của thiết kế nhà ống 3 tầng này là sân thượng phía trước rộng 25.1m2.
Nhìn vào phối cảnh, khu vực này được thiết kế mái kính khung thép hiện đại, kết hợp với sàn lát gạch giả gỗ và bồn cây xanh. Đây sẽ là nơi lý tưởng cho những bữa tiệc BBQ cuối tuần hay đơn giản là một tách cafe sáng. Phía sau là sân sau rộng 25.4m2, gia chủ có thể trồng thêm rau sạch, đảm bảo sức khỏe gia đình.

3. Ánh sáng và sự thông thoáng – “Lá phổi” của ngôi nhà
Một nỗi lo lớn nhất khi xây nhà phố là thiếu sáng. Tuy nhiên, trong bản vẽ kỹ thuật của công trình này, hệ thống giếng trời và khoảng thông tầng được tính toán rất kỹ.
Thiết kế nhà ống 3 tầng của anh Hoàng An sử dụng hệ cửa kính lớn (hệ nhôm kính dày 6.38mm – 8.38mm) để lấy sáng tối đa cho mặt tiền. Khu vực cầu thang và hành lang không bị tối nhờ ánh sáng từ giếng trời rọi xuống, giúp luân chuyển không khí, tránh cảm giác bí bách thường thấy.
Hệ thống trần thạch cao khung xương chìm kết hợp đèn LED downlight và đèn hắt âm trần được bố trí dọc theo các tầng, không chỉ cung cấp ánh sáng mà còn định hình phong cách sang trọng cho nội thất.

4. Vật liệu hiện đại và bền vững
Để hiện thực hóa một thiết kế nhà ống 3 tầng đẹp, vật liệu đóng vai trò then chốt.
-
Sàn: Tầng 1 sử dụng gạch Granite vân đá kích thước 800×800 tạo cảm giác rộng rãi. Các tầng trên sử dụng gạch lát sàn giả gỗ hoặc gạch chống trơn, vừa ấm cúng vừa an toàn.
-
Cầu thang: Mặt bậc lát đá Granite, cổ bậc đá trắng, kết hợp tay vịn gỗ và lan can kính hoặc con tiện gỗ, tạo sự vững chãi nhưng thanh thoát.
-
Sơn ngoại thất: Sử dụng sơn hiệu ứng giả đá và sơn màu ghi nhấn, giúp công trình bền màu trước thời tiết khắc nghiệt của miền Bắc.
Việc lựa chọn vật liệu này cho thấy sự đầu tư chỉn chu của Tech Home trong từng chi tiết của bản thiết kế nhà ống 3 tầng.
Để tìm hiểu rõ hơn về tiêu chuẩn vật liệu xây dựng và các yếu tố ảnh hưởng đến chi phí, bạn có thể tham khảo thêm tại các bài viết chuyên sâu về vật liệu xây dựng cao cấp trên Wikipedia.
5. Tại sao nên chọn thiết kế nhà ống 3 tầng phong cách này?
Mẫu nhà của anh An tại Hải Phòng là minh chứng cho thấy thiết kế nhà ống 3 tầng không nhất thiết phải cầu kỳ, rườm rà mới đẹp. Vẻ đẹp thực sự đến từ:
-
Công năng tối ưu: Không có “góc chết”, mọi mét vuông đều phục vụ nhu cầu sống.
-
Thẩm mỹ tinh tế: Các đường cong mềm mại (Bo cong) giúp ngôi nhà nổi bật nhưng không phô trương.
-
Gần gũi thiên nhiên: Sân vườn, ban công, sân thượng là những khoảng “thở” quý giá.
Nếu bạn đang sở hữu một mảnh đất phân lô có kích thước tương tự (khoảng 4-5m mặt tiền) và đang phân vân chưa biết chọn phong cách nào, thì mẫu thiết kế nhà ống 3 tầng mái bằng hiện đại này là một gợi ý không thể bỏ qua.
6. Lời kết
Ngôi nhà không chỉ là nơi che mưa che nắng, đó là tổ ấm, là nơi thể hiện cá tính của gia chủ. Bản thiết kế nhà ống 3 tầng tại An Dương, Hải Phòng của gia đình anh Hoàng An đã giải quyết xuất sắc bài toán về không gian sống tiện nghi trên nền đất phố.
Từ bản vẽ mặt bằng kỹ thuật chi tiết đến những hình ảnh phối cảnh sống động, Tech Home đã chứng minh năng lực sáng tạo trong lĩnh vực thiết kế nhà ống 3 tầng. Hy vọng bài viết này đã mang đến cho bạn những ý tưởng mới mẻ cho ngôi nhà tương lai của mình.
Bạn đang ấp ủ dự định xây dựng tổ ấm? Đừng ngần ngại liên hệ với Tech Home để sở hữu một bản thiết kế nhà ống 3 tầng đậm chất riêng và tối ưu chi phí ngay hôm nay.
Thông tin công trình:
-
Chủ đầu tư: Anh Hoàng An
-
Địa điểm: An Dương, Hải Phòng
-
Đơn vị thiết kế: Công ty Cổ phần Kiến trúc và Xây dựng Tech Home
Xem thêm các dự án nổi bật khác của Techhome tại https://nhadeptechhome.vn/




