Chào các bác, lại là Techhome đây!
Hôm nay, em muốn mời mọi người cùng “về thăm” mảnh đất Nam Định hiếu khách để chiêm ngưỡng một công trình mà đội ngũ Techhome vừa hoàn thiện hồ sơ thiết kế. Thú thật, trong hàng trăm bộ hồ sơ đi qua tay mình mỗi năm, có những ngôi nhà khiến mình phải dừng lại ngắm nhìn lâu hơn một chút vì sự hài hòa đến lạ lùng. Và ngôi nhà của anh Duy tại xã Đoàn Kết là một trong số đó.
Nếu bạn đang ấp ủ dự định xây dựng tổ ấm cho gia đình đa thế hệ, vừa muốn sang trọng nhưng không quá phô trương, thì mẫu nhà 2 tầng mái Nhật này chính là “chân ái” mà bạn đang tìm kiếm. Hãy cùng Techhome “mổ xẻ” chi tiết xem ngôi nhà này có gì đặc biệt nhé!
1. Tổng quan công trình: Khi “duyên” gặp “đẹp”
Cơ duyên anh Duy tìm đến Techhome cũng rất tình cờ qua Website. Anh chia sẻ rằng anh thích sự nhẹ nhàng, không quá cầu kỳ như lâu đài, nhưng cũng không được quá đơn điệu như nhà hộp. Anh muốn một mẫu nhà 2 tầng mái Nhật nhìn vào là thấy sự vững chãi, ấm áp.
Dưới đây là thông tin tổng quan của dự án:
| Hạng mục | Thông tin chi tiết |
| Chủ đầu tư | Anh Duy |
| Địa điểm | Xã Đoàn Kết – Huyện Vụ Bản – Tỉnh Nam Định |
| Đơn vị thiết kế | Công ty Cổ phần Kiến trúc và Xây dựng Techhome |
| Loại hình | Biệt thự 2 tầng mái Nhật (Tân cổ điển nhẹ) |
| Diện tích xây dựng | Khoảng 135m2/sàn (Kích thước phủ bì ~10m x 13.4m) |
| Công năng chính | 01 P.Khách , 01 Bếp ăn, 04 P.Ngủ, 03 WC |
| Năm thực hiện | 2025 – 2026 |

2. Phối cảnh ngoại thất: Vẻ đẹp đi cùng năm tháng
Các bạn hãy nhìn vào phối cảnh mặt tiền của ngôi nhà. Cảm nhận đầu tiên của bạn là gì? Với em, đó là sự “Vừa vặn”.
Kiến trúc Tân cổ điển lược giản
Techhome không chọn những phù điêu đắp nổi rườm rà cho mẫu nhà 2 tầng mái Nhật này. Thay vào đó, chúng tôi sử dụng hệ phào chỉ chạy dọc thân cột và các đường gờ bao quanh cửa sổ. Những chi tiết này tạo nên sự khỏe khoắn nhưng vẫn rất mềm mại.
Hệ cột sảnh chính vuông vức, to bản, ốp đá chân cột màu tối tạo cảm giác cực kỳ vững chãi đỡ lấy phần mái sảnh bên trên. Đây là điểm nhấn quan trọng giúp ngôi nhà trông bề thế hơn so với diện tích thực.
Hệ mái Nhật – Linh hồn của ngôi nhà
Không phải ngẫu nhiên mà mẫu nhà 2 tầng mái Nhật lại “làm mưa làm gió” tại Việt Nam vài năm gần đây. Nhìn vào công trình của anh Duy, bạn sẽ thấy hệ mái Nhật có độ dốc vừa phải (thấp hơn mái Thái), mở rộng ra các hướng khác nhau.
Điều này không chỉ đẹp về thẩm mỹ (tạo khối nhà cân đối) mà còn cực kỳ phù hợp với khí hậu miền Bắc: thoát nước mưa nhanh vào mùa hè và chống nóng, giữ ấm vào mùa đông. Màu xanh than của ngói Fuji kết hợp với nền sơn trắng sứ tạo nên độ tương phản kinh điển, không bao giờ lỗi mốt.
Hệ thống cửa và ban công
Để tận dụng tối đa ánh sáng tự nhiên, Techhome sử dụng hệ nhôm kính Xingfa cao cấp cho toàn bộ cửa sổ. Đặc biệt, ở tầng 2, chúng tôi thiết kế một cửa vòm lớn ngay mặt tiền. Chi tiết uốn cong này làm “mềm” đi các khối bê tông cứng nhắc, biến mẫu nhà 2 tầng mái Nhật trở nên nghệ thuật hơn rất nhiều.
Lan can ban công sử dụng sắt nghệ thuật sơn tĩnh điện màu vàng đồng (hoặc đen tùy sở thích gia chủ), uốn cong nhẹ nhàng, tạo ra một khoảng không gian thư giãn cực “chill” cho gia đình vào mỗi buổi sáng.

3. “Soi” chi tiết công năng: Bài toán diện tích và thói quen sinh hoạt
Đẹp bên ngoài là chưa đủ, một ngôi nhà đáng sống phải được bố trí công năng khoa học bên trong. Với kích thước xây dựng khoảng 10m x 13.4m, các kiến trúc sư Techhome đã giải bài toán không gian cho mẫu nhà 2 tầng mái Nhật này như thế nào?
Mặt bằng tầng 1: Ấm cúng và Kết nối
Nhìn vào bản vẽ mặt bằng nội thất tầng 1, chúng ta thấy rõ sự ưu tiên cho không gian sinh hoạt chung:
-
Phòng khách : Đây là nét văn hóa đặc trưng của người Việt, đặc biệt là ở Nam Định. Từ sảnh chính bước vào là không gian phòng khách rộng rãi kết nối trực tiếp với bàn thờ trang trọng. Cách bố trí này giúp không gian tầng 1 cực kỳ thoáng đãng, không bị chia vụn.
-
Phòng bếp + Ăn (21m2): Được đặt phía bên tay trái, ngăn cách nhẹ với phòng khách bằng hệ lam gỗ trang trí (vách ngăn). Có sảnh phụ dẫn thẳng vào bếp, cực tiện lợi khi các bà, các mẹ đi chợ về không cần xách đồ tươi sống đi qua phòng khách.
-
Phòng ngủ 01 (16m2): Dành cho ông bà hoặc người lớn tuổi. Việc bố trí phòng ngủ người già ở tầng 1 là tiêu chuẩn bắt buộc trong các mẫu nhà 2 tầng mái Nhật hiện đại để đảm bảo an toàn, hạn chế leo cầu thang.
-
Vệ sinh chung: Đặt kín đáo phía cuối nhà, cạnh cầu thang, đảm bảo thẩm mỹ và phong thủy.

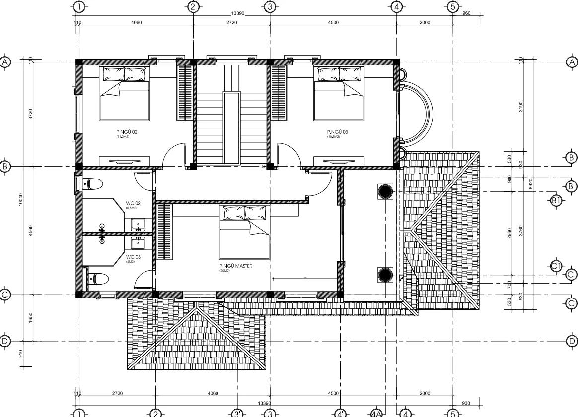
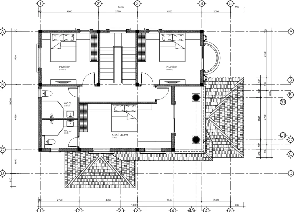
Mặt bằng tầng 2: Riêng tư và Tiện nghi
Di chuyển lên tầng 2 , không gian được chia nhỏ để đảm bảo sự riêng tư cho từng thành viên:
-
Phòng ngủ Master (20m2): Dành cho vợ chồng anh Duy. Phòng này nằm ở vị trí đẹp nhất (hướng ra mặt tiền có cửa vòm), có vệ sinh khép kín (WC 03), đảm bảo không gian riêng tư tuyệt đối.
-
02 Phòng ngủ con (P.Ngủ 02 và P.Ngủ 03): Diện tích lần lượt là 14.2m2 và 15.8m2. Diện tích này là vừa đủ để bố trí giường, tủ quần áo và bàn học cho các bé.
-
Vệ sinh chung (WC 02): Phục vụ cho 2 phòng ngủ con.
-
Sân chơi/Ban công: Một khoảng không gian đệm để gia chủ có thể trồng cây cảnh, đặt bàn trà.
Rõ ràng, với cách bố trí này, mẫu nhà 2 tầng mái Nhật của anh Duy đã tận dụng triệt để từng mét vuông đất, không có góc chết, không có diện tích thừa.
4. Tại sao bạn nên chọn mẫu nhà 2 tầng mái Nhật?
Techhome nhận được rất nhiều câu hỏi: “Tại sao không làm mái Thái cho cao ráo?” hay “Tại sao không làm mái bằng cho rẻ?”. Dưới góc nhìn chuyên môn, mẫu nhà 2 tầng mái Nhật có những ưu điểm vượt trội sau:
-
Tiết kiệm chi phí hơn mái Thái: Mái Nhật có độ dốc thấp hơn, nên diện tích mái và chi phí vật liệu, nhân công thường thấp hơn so với mái Thái khoảng 10-15%.
-
Phù hợp với khổ đất rộng: Nếu bạn có mặt tiền từ 8m trở lên như nhà anh Duy, mái Nhật sẽ giúp ngôi nhà trông bè ra, vững chãi và cân đối hơn.
-
Dễ dàng thi công: Kết cấu mái Nhật đơn giản hơn, thời gian thi công nhanh hơn.
-
Tính thẩm mỹ: Nó mang lại vẻ đẹp thanh lịch, không quá “gắt” nhưng lại rất sang trọng, phù hợp với cả cảnh quan nông thôn lẫn thành thị.

5. Báo giá thiết kế và thi công (Tham khảo 2026)
Đây chắc hẳn là phần mà các bạn quan tâm nhất. Techhome xin đưa ra một bảng dự toán chi phí để các bạn dễ hình dung khi muốn xây dựng một mẫu nhà 2 tầng mái Nhật tương tự nhà anh Duy.
(Lưu ý: Đây là mức giá tham khảo tại thời điểm viết bài, giá thực tế phụ thuộc vào vật liệu, địa điểm và thời điểm thi công).
Chi phí thiết kế kiến trúc
Tại Techhome, chúng tôi đang áp dụng mức giá cho năm 2026:
-
Đơn giá thiết kế kiến trúc: 108.000đ/m2.
-
Với tổng diện tích sàn khoảng 270m2 (2 tầng + mái), chi phí thiết kế trọn bộ hồ sơ (Kiến trúc, Kết cấu, Điện nước) rơi vào khoảng 29 – 30 triệu đồng.
Chi phí thi công xây dựng (Chìa khóa trao tay)
Đối với mẫu nhà 2 tầng mái Nhật phong cách tân cổ điển nhẹ:
-
Gói xây thô và nhân công hoàn thiện:
-
Đơn giá: 4.200.000đ – 4.500.000đ/m2.
-
Tổng chi phí xây thô: Khoảng 1.1 – 1.2 tỷ đồng.
-
-
Gói hoàn thiện trọn gói (Vật tư khá):
-
Bao gồm: Sơn bả, gạch ốp lát, thiết bị vệ sinh, cửa nhôm kính, điện nước, trần thạch cao… (chưa bao gồm đồ gỗ nội thất rời như giường, tủ, bàn ghế).
-
Đơn giá: 6.500.000đ – 7.500.000đ/m2.
-
Tổng chi phí hoàn thiện: Khoảng 1.7 – 2,1 tỷ đồng.
-
Techhome cam kết minh bạch vật tư, không phát sinh chi phí vô lý trong quá trình thi công.
Lưu ý: Đây chỉ là mức chi phí ước tính. Để nhận được báo giá chính xác và chi tiết nhất cho công trình của bạn, vui lòng liên hệ trực tiếp với chúng tôi. Hoặc để tìm hiểu rõ hơn về tiêu chuẩn vật liệu xây dựng và các yếu tố ảnh hưởng đến chi phí, bạn có thể tham khảo thêm tại các bài viết chuyên sâu về vật liệu xây dựng cao cấp trên Wikipedia.

6. Chất liệu làm nên đẳng cấp
Để mẫu nhà 2 tầng mái Nhật đẹp bền vững, Techhome đã tư vấn cho anh Duy sử dụng những vật liệu tuyển chọn:
-
Sơn ngoại thất: Dòng sơn cao cấp chống thấm, chống bám bụi, giữ màu trắng sứ luôn tươi mới trước nắng gió miền biển Nam Định.
-
Đá ốp chân tường: Đá thẻ hoặc đá rối tự nhiên, vừa sạch sẽ, chống rêu mốc, vừa tạo điểm nhấn màu sắc cho phần đế công trình.
-
Cửa gỗ Lim Nam Phi (Cửa chính): Mang lại sự sang trọng, ấm cúng và an toàn tuyệt đối.
-
Ngói lợp: Khung kèo thép nhẹ mạ hợp kim nhôm kẽm siêu nhẹ, lợp ngói màu Fuji hoặc Romantic, giảm tải trọng cho móng nhà rất nhiều so với phương pháp dán ngói truyền thống.
7. Phong thủy trong thiết kế nhà anh Duy
Anh Duy rất chú trọng đến phong thủy. Khi thiết kế mẫu nhà 2 tầng mái Nhật này, chuyên gia phong thủy của Techhome đã tính toán kỹ lưỡng:
-
Hướng nhà & Hướng ban thờ: Quay về hướng tốt hợp tuổi gia chủ (Phước Đức, Sinh Khí) để đón tài lộc.
-
Bếp: Đặt tại cung xấu nhìn về hướng tốt (“Tọa hung hướng cát”) để thiêu đốt những điều không may mắn.
-
Cầu thang: Số bậc cầu thang được tính theo quy luật Sinh – Lão – Bệnh – Tử (thường rơi vào các số 17, 21, 25…). Trong bản vẽ chi tiết cầu thang , Techhome thiết kế 25 bậc (cung Sinh) cho tầng 1 lên tầng 2. Đây là một chi tiết nhỏ nhưng thể hiện sự tận tâm của người thiết kế.

8. Quy trình làm việc tại Techhome
Bạn có thắc mắc tại sao anh Duy ở tận Nam Định mà lại tin tưởng Techhome (trụ sở Hà Nội) không? Đó là nhờ quy trình làm việc chuyên nghiệp, xóa nhòa khoảng cách địa lý:
-
Tư vấn sơ bộ: Qua Zalo/Điện thoại, nắm bắt nhu cầu và khổ đất.
-
Khảo sát thực địa: KTS Techhome về tận nơi đo đạc, kiểm tra nền đất, hướng gió, hướng nắng .
-
Lên phương án mặt bằng: Bàn bạc, chỉnh sửa đến khi gia chủ ưng ý về công năng của mẫu nhà 2 tầng mái Nhật.
-
Dựng phối cảnh 3D: Giúp khách hàng nhìn thấy ngôi nhà tương lai của mình “bằng xương bằng thịt”.
-
Triển khai hồ sơ kỹ thuật: Chi tiết điện, nước, kết cấu sắt thép.
-
Bàn giao và Giám sát tác giả: Hỗ trợ giải đáp thắc mắc cho thợ xây trong suốt quá trình thi công.
9. Cảm nhận của khách hàng
Khi cầm bộ hồ sơ trên tay, anh Duy đã nói với chúng tôi: “Thực sự anh rất bất ngờ vì sự chi tiết của các chú. Từ cái phào chỉ, cái kích thước cửa sổ, đến viên gạch lát nền đều được chỉ định rõ ràng. Nhìn vào đây thợ quê anh làm được ngay, không sợ sai sót. Cảm ơn Techhome đã giúp anh hiện thực hóa mẫu nhà 2 tầng mái Nhật mơ ước này.”
Lời động viên của anh Duy chính là động lực để đội ngũ Techhome cố gắng mỗi ngày. Chúng tôi hiểu rằng, xây nhà là chuyện cả đời, và mỗi bản vẽ gửi đi đều mang theo tâm huyết và trách nhiệm.

Lời kết
Vậy là Techhome đã giới thiệu xong đến các bạn mẫu nhà 2 tầng mái Nhật của gia đình anh Duy tại Nam Định. Một ngôi nhà không quá phô trương nhưng đủ đầy, ấm áp và tinh tế trong từng đường nét.
Nếu bạn cũng đang sở hữu một mảnh đất tương tự và yêu thích phong cách này, đừng ngần ngại liên hệ với Techhome. Chúng tôi không chỉ vẽ nhà, chúng tôi vẽ nên tổ ấm.
Hy vọng bài viết này đã mang lại cho bạn nhiều thông tin hữu ích. Đừng quên ghé thăm Website Techhome thường xuyên để cập nhật những mẫu nhà đẹp nhất 2026 nhé!
Bạn muốn nhận báo giá chi tiết cho ngôi nhà của mình?
👉 Hãy để lại Comment hoặc liên hệ ngay với Techhome:
-
Hotline/Zalo: 0364.04.2222 – 0387.60.3333 (Tư vấn miễn phí 24/7)
-
Website: https://nhadeptechhome.vn/
-
Địa chỉ: B1.1 LK18 Ô 3 – KĐT Thanh Hà – Cienco 5 – Thanh Oai- Hà Nội.
Techhome – Kiến tạo không gian, Vun đắp hạnh phúc!
