Chủ đầu tư: Anh Lợi
Địa điểm: Vĩnh Phúc
Đơn vị thực hiện: Kiến trúc Techhome
Bạn đang sở hữu một mảnh đất không được vuông vức? Bạn lo lắng làm sao để xây dựng một tổ ấm vừa đẹp, vừa tiện nghi lại hợp phong thủy trên thế đất “đầu voi đuôi chuột” hoặc hình thang? Câu chuyện về hành trình thiết kế nhà ống 2 tầng cho gia đình anh Lợi tại Vĩnh Phúc dưới đây chính là câu trả lời hoàn hảo nhất mà Techhome muốn gửi đến bạn.
Không chạy theo những chi tiết cầu kỳ, rườm rà, căn nhà của anh Lợi là minh chứng cho vẻ đẹp của phong cách hiện đại, nơi công năng được tối ưu hóa từng centimet và thẩm mỹ mặt tiền khiến ai đi qua cũng phải ngước nhìn.

1. Duyên nợ với mảnh đất “Nở Hậu” và bài toán của Anh Lợi
Khi tìm đến với Techhome, anh Lợi mang theo khá nhiều trăn trở. Mảnh đất của anh tại Vĩnh Phúc có đặc điểm là đất hình thang, mặt tiền hẹp hơn so với phía sau (theo thuật ngữ xây dựng và phong thủy gọi là đất “nở hậu”). Mặc dù trong phong thủy, đất nở hậu được coi là đại cát, giúp tích tụ tài lộc, nhưng về mặt thiết kế nhà ống 2 tầng, nó lại đặt ra bài toán khó về việc bố trí công năng sao cho các phòng được vuông vắn, không bị góc chết.
Yêu cầu của anh rất rõ ràng: “Anh muốn một ngôi nhà nhìn phải sang, hiện đại nhưng không được lỗi mốt. Quan trọng nhất là bên trong phải thoáng, bố trí đủ phòng cho các thành viên và xử lý được các góc chéo của đất.”
Hiểu được tâm tư đó, đội ngũ KTS Techhome đã bắt tay vào thực hiện bản vẽ thiết kế nhà ống 2 tầng với giải pháp kiến trúc hiện đại, mái bằng, tập trung vào hình khối khỏe khoắn và vật liệu bền vững.

2. Phân tích vẻ đẹp kiến trúc ngoại thất: Hiện đại và Tinh tế
Nhìn vào phối cảnh 3D mặt tiền, bạn sẽ thấy ngay sự cuốn hút của mẫu thiết kế nhà ống 2 tầng này. Techhome không sử dụng quá nhiều màu sắc sặc sỡ. Thay vào đó, chúng tôi chọn tông màu trắng chủ đạo kết hợp với màu xám ghi của đá ốp và màu nâu gỗ của hệ trần ban công.
Sự phối hợp vật liệu thông minh
Mặt tiền tầng 1 được ốp đá Marble vân mây màu xám sáng. Đây là chi tiết “đắt giá” giúp ngôi nhà trông vững chãi và sạch sẽ hơn rất nhiều so với việc chỉ sơn tường thông thường. Đá ốp không chỉ tăng tính thẩm mỹ mà còn giúp bảo vệ tường khỏi rêu mốc, bụi bẩn – một yếu tố cực kỳ quan trọng với khí hậu nóng ẩm tại Vĩnh Phúc.
Lên đến tầng 2, điểm nhấn của bản thiết kế nhà ống 2 tầng này nằm ở ban công rộng với lan can kính cường lực trong suốt. Lan can kính giúp mở rộng tầm nhìn, phô diễn được vẻ đẹp của nội thất bên trong và tạo cảm giác ngôi nhà nhẹ nhàng, thanh thoát hơn.
Hệ mái và trần
Phần trần ban công tầng 2 và mái hiên được ốp gỗ nhựa ngoài trời (Plastic Wood). Hệ thống đèn downlight âm trần được bố trí khéo léo, đảm bảo khi màn đêm buông xuống, ngôi nhà sẽ trở nên lung linh và ấm cúng. Phần mái trên cùng được thiết kế thu nước về phía sau, đảm bảo thoát nước tốt và chống nóng hiệu quả cho tầng 2.

3. “Mổ xẻ” công năng: Đỉnh cao của sự tối ưu hóa
Điều làm nên thành công của một bản thiết kế nhà ống 2 tầng không chỉ là cái vỏ đẹp đẽ bên ngoài, mà là sự tiện nghi bên trong. Hãy cùng Techhome đi sâu vào bản vẽ mặt bằng để thấy cách chúng tôi xử lý mảnh đất hình thang này nhé.
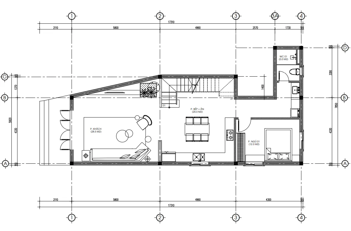
Tầng 1: Không gian kết nối chung
Với diện tích sàn xây dựng khoảng 85m2, tầng 1 được bố trí như một không gian mở liên hoàn:
-
Phòng khách (28.5m2): Bước qua hệ cửa đại hội 4 cánh nhôm Xingfa rộng rãi, bạn sẽ gặp ngay phòng khách sang trọng. Diện tích gần 30m2 là con số lý tưởng để bố trí bộ sofa lớn, kệ tivi và vẫn còn dư không gian cho trẻ con vui đùa.
-
Phòng Bếp + Ăn (20m2): Được ngăn cách nhẹ nhàng với phòng khách bằng cầu thang bộ. Bếp được thiết kế hình chữ L bám sát tường, giúp tối ưu hóa diện tích di chuyển. Bàn ăn đặt giữa tâm điểm, tạo sự quây quần ấm cúng.
-
Phòng ngủ 01 (12m2): Nằm ở phía cuối nhà. Đây là vị trí yên tĩnh nhất, rất thích hợp cho người lớn tuổi hoặc gia chủ cần sự riêng tư nghỉ ngơi sau ngày dài.
-
Vệ sinh chung (WC01 – 5m2): Đặt kín đáo ở góc cuối cùng, tận dụng phần đất xéo để làm khu vực này, giúp các không gian chính như phòng ngủ và bếp được vuông vắn.
Điểm hay của thiết kế nhà ống 2 tầng này là hệ thống cầu thang 21 bậc được tính toán theo cung “Sinh” trong phong thủy, mang lại sức khỏe và may mắn.

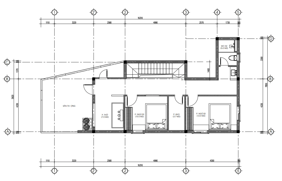
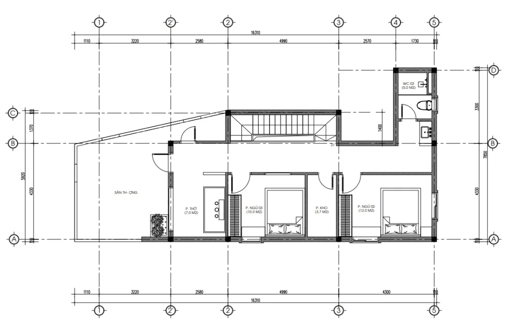
Tầng 2: Không gian nghỉ ngơi và tâm linh
Lên đến tầng 2 với diện tích khoảng 70m2, không gian được chia nhỏ hơn để phục vụ nhu cầu riêng tư:
-
Phòng thờ (7m2): Hướng ra mặt tiền, có cửa mở ra ban công sân thượng. Đây là vị trí trang trọng nhất, đảm bảo sự thông thoáng và tôn nghiêm.
-
Sân thượng/Ban công: Một khoảng sân rộng phía trước phòng thờ là nơi anh Lợi có thể đặt bàn trà, trồng cây cảnh, tạo nên một “góc chill” đúng nghĩa giữa lòng phố thị.
-
02 Phòng ngủ (Ngủ 02 – 12m2 và Ngủ 03 – 10m2): Dành cho các con. Dù diện tích không quá lớn nhưng nhờ việc trổ cửa sổ hợp lý, các phòng đều tràn ngập ánh sáng tự nhiên.
-
Phòng kho (3.7m2): Một chi tiết nhỏ nhưng cực kỳ quan trọng trong thiết kế nhà ống 2 tầng. Nhà nào cũng cần một cái kho để cất đồ mùa đông, quạt, vali… giúp nhà cửa luôn gọn gàng.
-
WC: Được bố trí phía sau cùng, đảm bảo thẩm mỹ cho mặt tiền ngôi nhà.

4. Giải mã kỹ thuật: Vì sao mẫu nhà này bền vững?
Trong hồ sơ thiết kế nhà ống 2 tầng của Techhome, yếu tố kỹ thuật luôn được đặt lên hàng đầu.
-
Hệ thống cửa: Chúng tôi sử dụng toàn bộ hệ nhôm hệ (Xingfa) kết hợp kính an toàn 8.38mm. Cửa chính 4 cánh mở quay giúp lấy gió tối đa. Cửa sổ sử dụng hệ cửa mở hất hoặc mở trượt để tiết kiệm diện tích và tránh hắt mưa.
-
Kết cấu sàn và tường: Tường xây gạch chỉ, trát vữa xi măng mác 75 đảm bảo độ cứng cáp và chống thấm. Sàn lát gạch Granite kích thước 800x800mm tạo cảm giác rộng rãi, sang trọng.
-
Chi tiết hoa sắt: Để đảm bảo an ninh nhưng không làm xấu ngôi nhà, các cửa sổ đều được thiết kế hoa sắt bảo vệ bằng thép đặc 12x12mm sơn tĩnh điện, vừa mảnh mai thẩm mỹ lại vừa chắc chắn.
Việc chú trọng vào chi tiết kỹ thuật trong bản thiết kế nhà ống 2 tầng giúp gia chủ an tâm tuyệt đối trong quá trình sử dụng, hạn chế tối đa việc sửa chữa vặt sau này.
5. Phong thủy trong thiết kế nhà ống 2 tầng của Anh Lợi
Như đã đề cập, mảnh đất của anh Lợi là đất nở hậu. Trong thiết kế nhà ống 2 tầng, việc xử lý đất nở hậu cần sự tinh tế. Techhome đã khéo léo đẩy các không gian phụ (cầu thang, vệ sinh, kho) vào các góc chéo hoặc phần đất thừa ra. Điều này giúp các phòng chức năng chính (Phòng khách, Ngủ, Thờ) luôn vuông vức – yếu tố cốt lõi để dòng khí lưu thông tốt, mang lại sức khỏe cho gia chủ.
Bếp được đặt tại vị trí “tọa hung hướng cát”, nhìn về hướng tốt của gia chủ. Số bậc cầu thang là 21 (rơi vào cung Sinh) cũng là một điểm cộng lớn về mặt phong thủy.

6. Tại sao “Thiết kế nhà ống 2 tầng” đang là xu hướng?
Không phải ngẫu nhiên mà anh Lợi và hàng ngàn khách hàng khác tại Vĩnh Phúc lại lựa chọn thiết kế nhà ống 2 tầng.
-
Tiết kiệm chi phí: So với nhà mái thái hay biệt thự, nhà ống mái bằng có chi phí xây dựng phần thô thấp hơn do kết cấu đơn giản hơn.
-
Tối ưu diện tích: Với những mảnh đất mặt tiền 4m-6m, nhà ống là giải pháp duy nhất để có đủ công năng sống.
-
Dễ dàng nâng cấp: Với kết cấu mái bằng, sau này nếu có điều kiện, gia đình anh Lợi hoàn toàn có thể cải tạo lên thêm tầng 3 hoặc làm tum thang máy mà không ảnh hưởng quá nhiều đến kết cấu cũ.
7. Báo giá thiết kế và thi công nhà ống 2 tầng (Cập nhật 2026)
Rất nhiều bạn đọc thắc mắc về chi phí để sở hữu một mẫu thiết kế nhà ống 2 tầng đẹp như của anh Lợi. Techhome xin đưa ra bảng khái toán chi phí (tham khảo) dựa trên mức giá thị trường hiện tại để bạn dễ hình dung:
| Hạng mục | Đơn giá (VNĐ/m2) | Diễn giải |
| Thiết kế kiến trúc | 108.000 | Bao gồm 3D, bổ kỹ thuật, điện nước, kết cấu. |
| Thiết kế nội thất | 150.000 | Phối cảnh 3D nội thất, chi tiết đồ gỗ. |
| Thi công phần thô | 3.800.000 – 4.500.000 | Bao gồm vật tư thô (sắt, thép, xi măng…) và nhân công. |
| Thi công trọn gói | 6.000.000 – 7.000.000 | Chìa khóa trao tay (đã bao gồm ốp lát, thiết bị vệ sinh cơ bản, cửa, sơn bả…). |
Lưu ý: Đơn giá trên chỉ mang tính chất tham khảo tại thời điểm viết bài. Giá thực tế phụ thuộc vào thời điểm thi công, vị trí đất (ngõ nhỏ hay đường lớn) và chủng loại vật liệu gia chủ lựa chọn.
Để có báo giá chính xác nhất cho ngôi nhà của mình, đừng ngần ngại liên hệ Hotline 0364.04.2222 của Techhome nhé!
Hoặc để tìm hiểu rõ hơn về tiêu chuẩn vật liệu xây dựng và các yếu tố ảnh hưởng đến chi phí, bạn có thể tham khảo thêm tại các bài viết chuyên sâu về vật liệu xây dựng cao cấp trên Wikipedia.

8. Quy trình làm việc tại Techhome
Để ra được bộ hồ sơ thiết kế nhà ống 2 tầng chất lượng cho anh Lợi, Techhome tuân thủ quy trình 6 bước nghiêm ngặt:
-
Tiếp nhận thông tin: Lắng nghe mong muốn, khảo sát hiện trạng đất tại Vĩnh Phúc.
-
Tư vấn phương án: Lên mặt bằng công năng, định hướng phong cách.
-
Ký kết hợp đồng: Thống nhất chi phí và tiến độ.
-
Triển khai 3D: Dựng phối cảnh mặt tiền và nội thất.
-
Triển khai kỹ thuật: Bổ chi tiết hồ sơ thi công (Điện, nước, kết cấu…).
-
Bàn giao & Giám sát: Bàn giao hồ sơ và hỗ trợ giám sát tác giả trong quá trình thi công.
9. Lời kết
Ngôi nhà của anh Lợi tại Vĩnh Phúc không chỉ là một công trình xây dựng, đó là tâm huyết của cả một đội ngũ và là niềm hạnh phúc của gia chủ. Mẫu thiết kế nhà ống 2 tầng này đã giải quyết triệt để bài toán đất méo, mang lại không gian sống lý tưởng với chi phí hợp lý.
Nếu bạn cũng đang sở hữu một mảnh đất “khó nhằn” hay đơn giản là muốn tìm kiếm một mẫu thiết kế nhà ống 2 tầng đẹp, hiện đại, hãy để Techhome đồng hành cùng bạn kiến tạo nên tổ ấm. Chúng tôi không chỉ vẽ nhà, chúng tôi vẽ nên những giấc mơ!
CÔNG TY CỔ PHẦN KIẾN TRÚC VÀ XÂY DỰNG TECHHOME
-
Hotline: 0364.04.2222 – 0387.60.3333
-
Địa chỉ: B1.1 LK18 Ô 3 – KĐT Thanh Hà – Cienco 5 – Thanh Oai- Hà Nội.
-
Website: https://nhadeptechhome.vn/
