Khám phá mẫu nhà cấp 4 mái Nhật 4 phòng ngủ hiện đại, tiện nghi tại Lào Cai. Thiết kế 3 gian, có sập gỗ, không gian thờ cúng trang trọng. Xem ngay báo giá xây dựng 2026 từ Techhome!
1. Mở đầu: Xu hướng tìm về sự bình yên
Có bao giờ bạn mơ về một ngôi nhà không cần quá cao tầng, không cần cầu thang leo trèo mỏi gối, mà chỉ cần rộng rãi, thoáng mát, nơi cả đại gia đình có thể quây quần bên nhau? Đó chính là lý do mà mẫu nhà cấp 4 mái Nhật 4 phòng ngủ đang làm mưa làm gió trên thị trường kiến trúc Việt Nam những năm gần đây.
Hôm nay, Techhome xin mời bạn ghé thăm vùng đất Yên Bình, Lào Cai để chiêm ngưỡng một “siêu phẩm” mà chúng tôi vừa hoàn thiện hồ sơ thiết kế cho gia đình chị Nga. Đây không chỉ là một ngôi nhà, đó là câu chuyện về sự kết hợp hoàn hảo giữa nét đẹp truyền thống và kiến trúc hiện đại. Nếu bạn đang tìm kiếm một mẫu nhà cấp 4 mái Nhật 4 phòng ngủ cho lô đất rộng của mình, thì đây chính xác là bài viết dành cho bạn.

2. Thông tin tổng quan dự án
Trước khi đi sâu vào chi tiết, hãy cùng điểm qua những “con số biết nói” của công trình này để thấy quy mô của một mẫu nhà cấp 4 mái Nhật 4 phòng ngủ tiêu chuẩn là như thế nào nhé:
-
Chủ đầu tư: Chị Nga
-
Địa điểm xây dựng: Yên Bình – Lào Cai.
-
Đơn vị thiết kế: Công ty Cổ phần Kiến trúc và Xây dựng Techhome.
-
Loại hình: Nhà ở gia đình (Biệt thự vườn 1 tầng).
-
Kích thước xây dựng: Mặt tiền khoảng 11.5m x Chiều sâu 15.7m (Tính cả sảnh).
-
Công năng chính: 1 Phòng khách, 1 Phòng thờ, 1 Bếp + Ăn, 4 Phòng ngủ, 2 WC, Khu vực sập gỗ.
Với diện tích sàn sử dụng rộng rãi, mẫu nhà cấp 4 mái Nhật 4 phòng ngủ này giải quyết triệt để bài toán không gian cho gia đình đông thành viên (từ 3 thế hệ trở lên) cùng sinh sống.

3. Đánh giá vẻ đẹp ngoại thất: Sự giao thoa giữa hiện đại và thanh lịch
3.1. Hệ mái Nhật – Linh hồn của ngôi nhà
Nhìn vào phối cảnh 3D, điểm thu hút nhất của mẫu nhà cấp 4 mái Nhật 4 phòng ngủ nhà chị Nga chính là hệ mái màu xanh than cực kỳ sang trọng. Khác với mái Thái cao vút, mái Nhật (hay còn gọi là mái lùn) có độ dốc vừa phải, mở rộng ra các hướng, tạo cảm giác ngôi nhà “đầm” hơn, vững chãi hơn trước khí hậu khắc nghiệt của vùng núi phía Bắc.
Hệ mái này không chỉ đẹp mà còn giúp thoát nước mưa nhanh, chống nóng hiệu quả vào mùa hè Lào Cai oi bức. Techhome đã khéo léo thiết kế thêm các hệ phào chỉ chạy dọc viền mái, tạo nên sự mềm mại, xóa tan cảm giác thô cứng của bê tông cốt thép.
3.2. Màu sắc và hình khối
Gia chủ yêu thích sự tinh tế, nên mẫu nhà cấp 4 mái Nhật 4 phòng ngủ này khoác lên mình “chiếc áo” màu trắng sứ chủ đạo, điểm xuyết bằng các mảng tường ốp gạch thẻ màu ghi xám ở chân tường và cổ trần.
Hệ thống cột sảnh vuông vức, to khỏe với phần chân cột ốp đá đen, tạo sự uy nghi cho mặt tiền. Đặc biệt, Techhome sử dụng hệ cửa gỗ Lim Nam Phi cho cửa chính để tăng phần sang trọng, trong khi toàn bộ hệ cửa sổ dùng nhôm hệ kính cường lực để lấy sáng tối đa, giúp không gian bên trong luôn tràn ngập năng lượng tự nhiên.

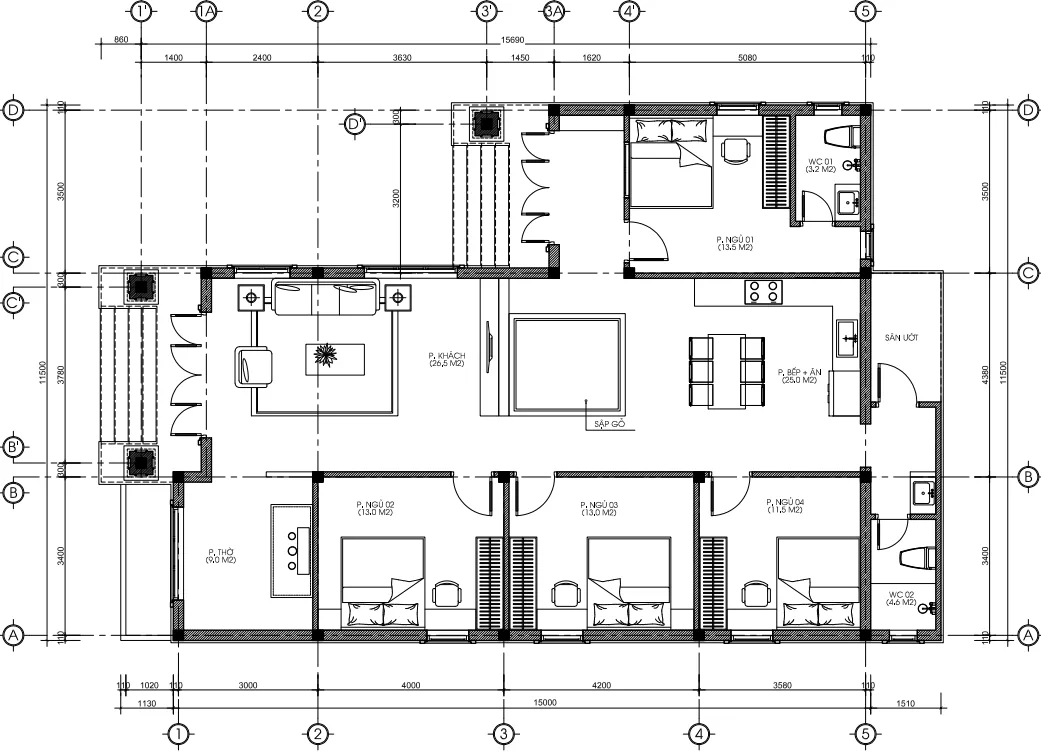
4. “Mổ xẻ” công năng: Bố trí mặt bằng thông minh đến từng centimet
Điều khiến mẫu nhà cấp 4 mái Nhật 4 phòng ngủ này trở nên đáng giá không nằm ở vẻ hào nhoáng bên ngoài, mà nằm ở cách các kiến trúc sư Techhome sắp xếp công năng bên trong. Dựa trên hồ sơ thiết kế kỹ thuật thi công, chúng ta hãy cùng đi tour một vòng quanh nhà nhé:
4.1. Phòng khách và Không gian đệm “Sập Gỗ”
Từ sảnh chính bước vào là phòng khách rộng 26.5 m2. Đây là “bộ mặt” của gia chủ, nơi tiếp đón khách khứa. Nhưng điểm độc đáo nhất của mẫu nhà cấp 4 mái Nhật 4 phòng ngủ này là khu vực kê “Sập Gỗ” được ngăn cách bằng kệ tivi, được đặt cạnh phòng bếp.
Với văn hóa người Việt, đặc biệt ở các vùng quê, sập gỗ là nơi các cụ ngồi uống trà, đàm đạo, hoặc là nơi ngả lưng trưa hè mát rượi. Việc kết hợp phòng khách hiện đại và sập gỗ truyền thống tạo nên một không gian sinh hoạt chung vừa tiện nghi, vừa hoài cổ.
4.2. Phòng thờ trang nghiêm
Phòng thờ được bố trí 9.0 m2, nằm ở vị trí trang trọng, nhìn thẳng ra hướng mặt tiền nhưng vẫn đảm bảo sự yên tĩnh. Trong các thiết kế mẫu nhà cấp 4 mái Nhật 4 phòng ngủ, việc tách biệt phòng thờ giúp việc hương khói, cúng bái không ảnh hưởng đến sinh hoạt ồn ào bên ngoài.
4.3. Bếp và Phòng ăn – Trái tim của gia đình
Khu vực Bếp + Ăn có diện tích 25.0 m2. Techhome đã thiết kế một lối đi phụ dẫn thẳng ra sảnh ướt bên hông nhà. Đây là chi tiết cực kỳ tinh tế: khi đi chợ về, các mẹ các chị có thể đi lối này để sơ chế thực phẩm tươi sống mà không cần xách đồ đi qua phòng khách sạch sẽ. Một điểm cộng lớn cho mẫu nhà cấp 4 mái Nhật 4 phòng ngủ này về mặt tiện dụng.
4.4. Hệ thống 4 phòng ngủ riêng tư
Với yêu cầu của chị Nga về không gian nghỉ ngơi cho đại gia đình, chúng tôi bố trí:
-
Phòng ngủ 01 (Master): Diện tích 13.5 m2, có nhà vệ sinh khép kín (WC 01) rộng 3.2 m2. Đây là phòng dành cho vợ chồng gia chủ hoặc ông bà để tiện sinh hoạt đêm hôm.
-
Phòng ngủ 02 & 03: Đồng diện tích 13.0 m2, rộng rãi, vuông vức, dễ kê giường tủ.
-
Phòng ngủ 04: Diện tích 11.5 m2, nhỏ xinh, thích hợp cho con trẻ.
Cả 4 phòng ngủ đều được bố trí cửa sổ hướng ra vườn, giúp đối lưu không khí. Rõ ràng, mẫu nhà cấp 4 mái Nhật 4 phòng ngủ là lựa chọn tối ưu để mỗi thành viên đều có thế giới riêng của mình mà vẫn sống chung dưới một mái nhà.
4.5. Khu vệ sinh chung
Ngoài WC khép kín, nhà còn có 1 WC chung (WC 02) rộng 4.6 m2 được đặt ở vị trí khuất, kín đáo gần khu vực bếp và phòng ngủ cuối nhà, đảm bảo tế nhị trong sinh hoạt.

5. Tại sao bạn nên chọn xây dựng mẫu nhà cấp 4 mái Nhật 4 phòng ngủ?
Nếu bạn vẫn đang phân vân, hãy nghe Techhome phân tích những lợi ích thực tế mà mẫu nhà cấp 4 mái Nhật 4 phòng ngủ mang lại:
-
Tiết kiệm chi phí hơn nhà cao tầng: Bạn không tốn tiền làm móng cọc quá sâu, không tốn chi phí đổ mái nhiều tầng, không tốn tiền làm cầu thang. Mọi chi phí được tập trung vào việc hoàn thiện nội thất và sân vườn.
-
Gắn kết tình cảm gia đình: Trong mẫu nhà cấp 4 mái Nhật 4 phòng ngủ, mọi hoạt động đều diễn ra trên một mặt sàn. Ông bà dễ dàng chơi đùa với cháu, cha mẹ dễ dàng quan sát con cái. Không còn cảnh “mạnh ai nấy lên phòng đóng cửa” như nhà phố.
-
An toàn cho người già và trẻ nhỏ: Không cầu thang nghĩa là không có rủi ro té ngã. Đây là tiêu chí số 1 khi xây nhà dưỡng già.
-
Dễ dàng thi công: Thời gian thi công mẫu nhà cấp 4 mái Nhật 4 phòng ngủ thường ngắn hơn (khoảng 3-4 tháng), giúp gia chủ sớm về nhà mới.
6. Góc chuyên gia: Lưu ý khi xây nhà tại Lào Cai và vùng cao
Với kinh nghiệm thực chiến nhiều dự án tại Yên Bình – Lào Cai, Techhome khuyên bạn:
-
Về móng: Địa hình đồi núi có thể nền đất không đều. Cần khảo sát kỹ để chọn móng băng hoặc móng bè phù hợp, tránh sụt lún.
-
Về vật liệu mái: Nên chọn ngói tráng men cao cấp hoặc ngói sóng bê tông loại tốt cho mẫu nhà cấp 4 mái Nhật 4 phòng ngủ để chịu được mưa đá hoặc gió lốc bất thường.
-
Chống thấm: Sàn mái bê tông cốt thép cần được xử lý chống thấm kỹ càng trước khi lợp ngói vì độ ẩm vùng cao rất lớn.

7. Dự toán chi phí xây dựng (Tham khảo 2026)
Đây chắc chắn là phần bạn quan tâm nhất. Để xây dựng một mẫu nhà cấp 4 mái Nhật 4 phòng ngủ với diện tích sàn khoảng 170m2 – 180m2 như nhà chị Nga, bạn có thể tham khảo bảng giá ước tính sau
(Lưu ý: Giá có thể thay đổi tùy thời điểm và vật liệu địa phương):
-
Chi phí thiết kế: Khoảng 108.000đ/m2 .
-
Chi phí xây dựng phần thô + nhân công: Khoảng 4.000.000đ – 4.500.000đ/m2.
-
Tạm tính: 180m2 x 4.200.000đ = ~756 triệu đồng.
-
-
Chi phí hoàn thiện (Cửa, gạch ốp lát, sơn bả, thiết bị vệ sinh…): Khoảng 2.500.000đ – 3.500.000đ/m2 tùy mức độ đầu tư.
-
Tạm tính: 180m2 x 3.000.000đ = ~540 triệu đồng.
-
-
Tổng chi phí trọn gói chìa khóa trao tay: Dao động từ 1.3 tỷ đến 1.5 tỷ đồng cho một mẫu nhà cấp 4 mái Nhật 4 phòng ngủ hoàn chỉnh, đẹp long lanh như phối cảnh.
Lưu ý: Chi phí trên chưa bao gồm nội thất rời (giường, tủ, bàn ghế, sập gỗ…) và sân vườn cổng rào.
8. Quy trình làm việc của Techhome
Để ra đời được bộ hồ sơ thiết kế chi tiết như nhà chị Nga, Techhome tuân thủ quy trình nghiêm ngặt:
-
Khảo sát: Kiến trúc sư và kỹ sư trực tiếp đo đạc, xem hướng đất, hướng gió.
-
Lên phương án: Phác thảo mặt bằng công năng, chỉnh sửa đến khi chủ nhà ưng ý
-
Triển khai 3D & Kỹ thuật: Dựng phối cảnh, bổ kỹ thuật điện nước, kết cấu.
-
Bàn giao & Giám sát: Bàn giao hồ sơ in ấn đầy đủ và hỗ trợ giám sát tác giả từ xa qua Zalo/Điện thoại

9. Lời kết
Công trình nhà chị Nga tại Yên Bình, Lào Cai là minh chứng rõ nét cho thấy: Một ngôi nhà đẹp không cần phải quá cao sang, cầu kỳ. Chỉ cần một thiết kế hợp lý, một mẫu nhà cấp 4 mái Nhật 4 phòng ngủ cũng đủ để trở thành tổ ấm bình yên nhất mà ai đi xa cũng muốn trở về.
Cảm ơn bạn đã theo dõi bài viết. Nếu bạn cũng đang ấp ủ giấc mơ về một ngôi nhà vườn như thế này, đừng ngần ngại liên hệ với chúng tôi. Techhome không chỉ vẽ nhà, chúng tôi vẽ nên hạnh phúc của bạn.
BÁO GIÁ THIẾT KẾ & THI CÔNG TECHHOME (Cập nhật 2026)
Để thuận tiện cho quý khách hàng cân đối tài chính khi muốn sở hữu mẫu nhà cấp 4 mái Nhật 4 phòng ngủ, Techhome gửi tới bảng báo giá dịch vụ:
| Hạng mục dịch vụ | Đơn giá (VNĐ/m2) | Ghi chú |
| Thiết kế kiến trúc | 108.000 | Bao gồm 3D, Bản vẽ kỹ thuật, Điện nước, Kết cấu |
| Thiết kế nội thất | 150.000 | Phối cảnh 3D nội thất, bổ chi tiết đồ gỗ |
| Thi công phần thô | 3.800.000 – 4.500.000 | Bao vật tư thô + Nhân công hoàn thiện |
| Thi công trọn gói | 6.500.000 – 7.500.000 | Chìa khóa trao tay (Vật tư khá – tốt) |
Lưu ý: Đây chỉ là mức chi phí ước tính. Để nhận được báo giá chính xác và chi tiết nhất cho công trình của bạn, vui lòng liên hệ trực tiếp với chúng tôi. Hoặc để tìm hiểu rõ hơn về tiêu chuẩn vật liệu xây dựng và các yếu tố ảnh hưởng đến chi phí, bạn có thể tham khảo thêm tại các bài viết chuyên sâu về vật liệu xây dựng cao cấp trên Wikipedia.
CÔNG TY CỔ PHẦN KIẾN TRÚC VÀ XÂY DỰNG TECHHOME
-
Địa chỉ: B1.1 LK18 Ô 3 – KĐT Thanh Hà – Cienco 5 – Thanh Oai- Hà Nội.
-
Hotline/Zalo: 0364.04.2222 – 0387.60.3333
-
Website: nhadeptechhome.vn
Bạn đang có lô đất kích thước tương tự? Bạn muốn một mẫu nhà cấp 4 mái Nhật 4 phòng ngủ nhưng đổi vị trí bếp? Hãy để lại bình luận hoặc gọi ngay cho Techhome để được tư vấn miễn phí nhé!
