Khách hàng: Chị Hà | Địa điểm: Kim Thành, Hải Dương | Đơn vị thực hiện: Kiến Trúc Techhome
Bạn đang sở hữu một mảnh đất tại Kim Thành và đang loay hoay tìm kiếm ý tưởng cho tổ ấm tương lai? Bạn muốn tìm một đơn vị thiết kế nhà phố tại Hải Dương thực sự có tâm, có tầm để gửi gắm ước mơ? Câu chuyện về ngôi nhà của chị Hà mà chúng tôi chia sẻ dưới đây chắc chắn sẽ là một nguồn cảm hứng tuyệt vời, đồng thời giúp bạn có cái nhìn cận cảnh nhất về quy trình làm việc và chất lượng sản phẩm của Techhome.
Hải Dương những năm gần đây phát triển rất mạnh, nhu cầu về nhà ở không chỉ dừng lại ở việc “che mưa che nắng” mà còn phải đẹp, sang và tiện nghi. Giữa một “rừng” các đơn vị thiết kế nhà phố tại Hải Dương, chị Hà đã chọn Techhome. Và để đáp lại sự tin tưởng đó, chúng tôi đã tạo nên một công trình mang đậm dấu ấn cá nhân, vừa hiện đại, phóng khoáng lại rất đỗi bình yên.
1. Tổng Quan Về Dự Án Thiết Kế Nhà Phố Tại Hải Dương – Nhà Chị Hà
Trước khi đi vào chi tiết, Techhome xin cung cấp những thông tin cơ bản nhất trích xuất từ hồ sơ kỹ thuật thi công để quý khách hàng nắm rõ:
-
Chủ đầu tư: Chị Hà.
-
Địa điểm: Huyện Kim Thành, Tỉnh Hải Dương.
-
Đơn vị tư vấn: Công ty Cổ phần Kiến trúc và Xây dựng Techhome.
-
Diện tích đất: 5m x 20.5m.
-
Diện tích xây dựng: 5m x 15m (75m2/sàn).
-
Quy mô: 2 tầng 1 tum.
-
Phong cách: Hiện đại (Modern), điểm nhấn đường cong Soft-Design.
Trong quá trình tư vấn thiết kế nhà phố tại Hải Dương, chúng tôi nhận thấy kích thước 5x15m hay 5x16m là cực kỳ phổ biến. Tuy nhiên, làm sao để xử lý không gian cho thoáng, cho “tình” thì không phải đơn vị nào cũng làm tốt. Với công trình này, Techhome tự tin đã giải quyết bài toán đó một cách xuất sắc.

2. Vẻ Đẹp Ngoại Thất: Sự Khác Biệt Của Thiết Kế Nhà Phố Tại Hải Dương
Nếu đi dọc các con phố ở Kim Thành, bạn sẽ dễ dàng bắt gặp những ngôi nhà ống vuông vức, “trăm cái như một”. Nhưng với mẫu thiết kế nhà phố tại Hải Dương của chị Hà, chúng tôi muốn tạo ra một sự khác biệt nhẹ nhàng.
Nhìn vào phối cảnh 3D mặt tiền, điểm “ăn tiền” nhất chính là ngôn ngữ thiết kế đường cong. Thay vì những khối bê tông góc cạnh, KTS đã khéo léo bo tròn phần ban công tầng 2, tạo nên sự mềm mại, duyên dáng như một dải lụa vắt ngang công trình. Đây là xu hướng “Soft-Design” đang rất thịnh hành trong làng kiến trúc thế giới, và Techhome đã tiên phong áp dụng vào thiết kế nhà phố tại Hải Dương.
Vật liệu cũng được chúng tôi lựa chọn rất kỹ lưỡng để phù hợp với khí hậu miền Bắc:
-
Hệ lam nhựa giả gỗ (Conwood): Được ốp trang trí tại trần ban công và bồn hoa, mang lại cảm giác ấm áp, gần gũi với thiên nhiên, khắc phục nhược điểm ẩm mốc của gỗ tự nhiên.
-
Lan can kính cường lực: Giúp ngôi nhà trở nên nhẹ nhàng, thanh thoát và “khoe” được trọn vẹn vẻ đẹp của kiến trúc.
-
Đá ốp mặt tiền: Tầng 1 được ốp đá tự nhiên màu xám ghi sang trọng, sạch sẽ và bền bỉ theo thời gian.
Một bản thiết kế nhà phố tại Hải Dương thành công là khi nó khiến người đi đường phải ngoái nhìn, nhưng người ở trong thì cảm thấy bình yên. Và ngôi nhà này đã làm được điều đó.

3. “Mổ Xẻ” Công Năng: Bài Toán Tối Ưu Diện Tích Của Chuyên Gia
Rất nhiều khách hàng khi tìm đến dịch vụ thiết kế nhà phố tại Hải Dương của Techhome đều lo lắng về việc nhà ống sẽ bị bí bách, thiếu sáng. Nhưng hãy nhìn vào cách chúng tôi bố trí mặt bằng công năng cho nhà chị Hà, bạn sẽ thấy mọi m2 đất đều được tận dụng triệt để.
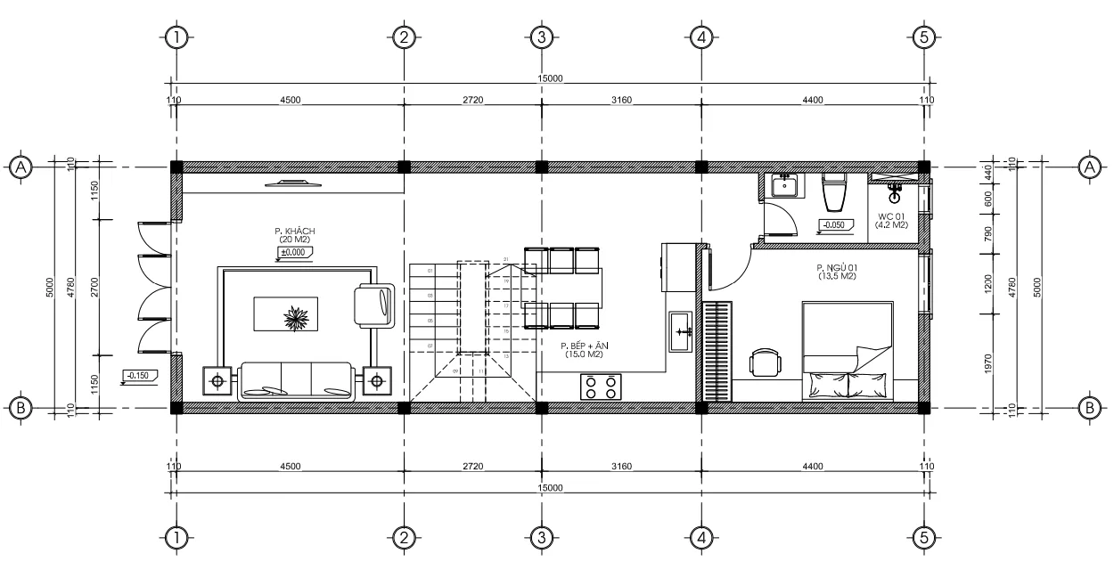
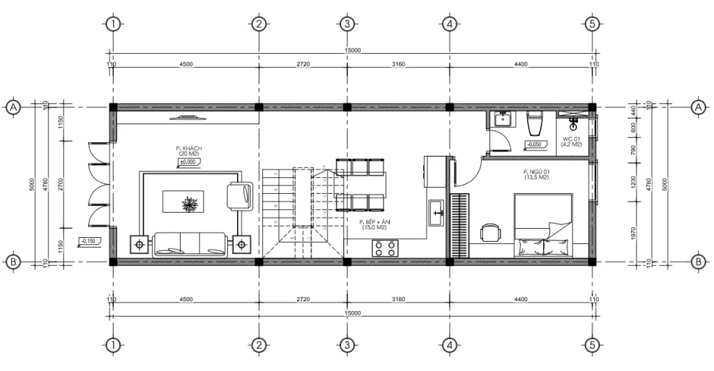
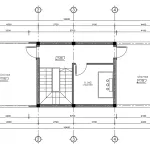
Tầng 1: Sự Kết Nối Không Gian Mở
Tầng 1 được thiết kế lùi vào một khoảng làm sảnh đón, tạo vùng đệm ngăn bụi và tiếng ồn.
-
Phòng Khách (20m2) : Bước qua cửa chính 4 cánh rộng 2.7m, không gian phòng khách hiện ra rộng rãi, thoáng đãng. Đây là bộ mặt của gia chủ, nơi thể hiện sự hiếu khách của người dân Hải Dương.
-
Cầu Thang & Bếp Ăn (15m2): Cầu thang được đặt ở vị trí trung tâm, đóng vai trò như xương sống của ngôi nhà. Khu vực bếp ăn liên thông, tạo sự liền mạch. Mùi thức ăn sẽ được xử lý bằng hệ thống hút mùi , một chi tiết nhỏ nhưng rất quan trọng trong thiết kế nhà phố tại Hải Dương.
-
Phòng Ngủ 01 (13.5m2): Một phòng ngủ nhỏ xinh xắn được bố trí cuối nhà dành cho người lớn tuổi , đảm bảo sự riêng tư tuyệt đối.
-
Vệ Sinh (4.2m2): Đặt kín đáo cuối nhà gần phòng ngủ, để tiết kiệm diện tích.

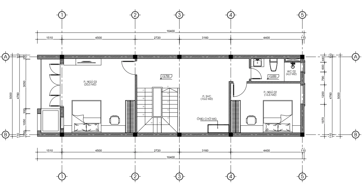
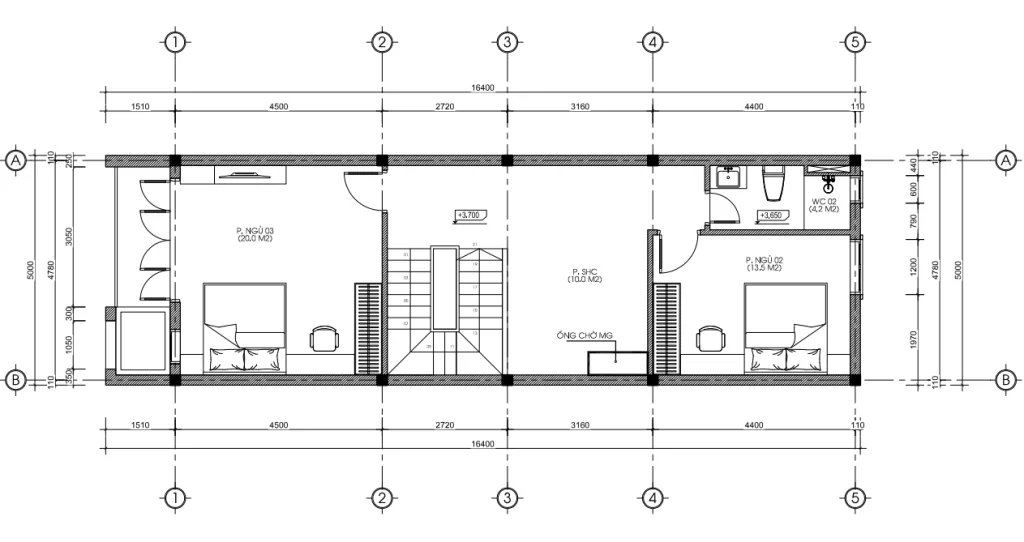
Tầng 2: Nơi Cảm Xúc Thăng Hoa
Lên đến tầng 2, không gian nghỉ ngơi được Techhome chăm chút tỉ mỉ:
-
Phòng Ngủ 03 (20m2): Phòng ngủ Master phía trước nhà với cửa kính lớn đón nắng sớm. Đây là không gian thư giãn lý tưởng sau một ngày làm việc căng thẳng. Trong các dự án thiết kế nhà phố tại Hải Dương, chúng tôi luôn ưu tiên view đẹp nhất cho phòng ngủ chính.
-
Phòng Sinh Hoạt Chung (10m2): Nằm ngay sảnh thang, là nơi cả gia đình quây quần đọc sách, trò chuyện. Văn hóa gia đình người Việt rất coi trọng sự gắn kết, và không gian này chính là chất xúc tác cho tình cảm đó.
-
Phòng Ngủ 02 (13.5m2): Phòng ngủ phía sau yên tĩnh, thích hợp cho con cái học tập và nghỉ ngơi.

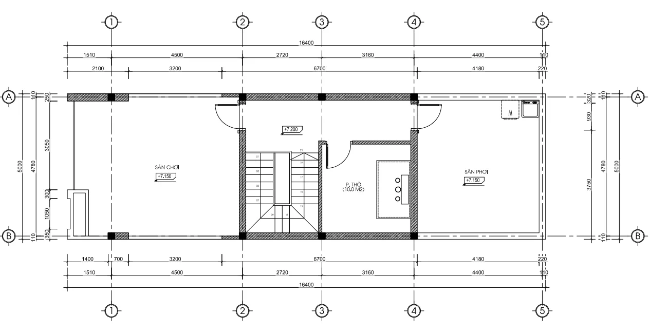
Tầng Tum: Khoảng Trời Riêng
Tầng tum gồm Phòng Thờ (10m2) trang nghiêm hướng ra sân chơi phía trước và sân phơi phía sau. Sân chơi rộng rãi là nơi chị Hà có thể thỏa mãn đam mê trồng cây, tạo nên một “khu vườn trên mây” giữa lòng phố thị. Đây là một điểm cộng lớn cho mẫu thiết kế nhà phố tại Hải Dương này.

4. Giải Pháp Kỹ Thuật: Những Chi Tiết “Đắt Giá” Ít Ai Để Ý
Một ngôi nhà đẹp không chỉ ở hình thức mà còn ở “chất” bên trong. Là đơn vị chuyên sâu về thiết kế nhà phố tại Hải Dương, Techhome cực kỳ chú trọng đến các yếu tố kỹ thuật thi công.
Thứ nhất là Cầu Thang:
Bản vẽ chi tiết thang cho thấy chúng tôi sử dụng mặt bậc đá Granite đen ánh kim dày 20mm, cổ bậc đá trắng. Lan can kính tay vịn gỗ Lim Nam Phi 16 vừa hiện đại, vừa chắc chắn. Chiều cao bậc, độ rộng mặt bậc đều được tính toán theo thước Lỗ Ban phong thủy, đảm bảo đi lại thoải mái, không mỏi chân.
Thứ hai là Hệ Thống Cửa:
Trong hồ sơ thiết kế nhà phố tại Hải Dương này, chúng tôi quy định rõ:
-
Cửa đi chính D1 (2700x2700mm) dùng thép vân gỗ hoặc nhôm hệ cao cấp, kính an toàn 8.38mm.
-
Cửa thông phòng D4 (930x2400mm) dùng nhựa Composite chịu nước tuyệt đối.
- Cửa sổ SW khung Inox chống trộm an toàn.Sự chi tiết này giúp gia chủ dễ dàng quản lý vật tư và giám sát thợ thi công.
Thứ ba là Hệ Thống Điện Nước & Kết Cấu:
Mặt bằng lát sàn chỉ định rõ gạch Granite vân mây 800×800 cho phòng khách và gạch chống trơn 300×600 cho nhà vệ sinh. Trần thạch cao chống ẩm kết hợp đèn LED downlight tạo hiệu ứng ánh sáng sang trọng. Mái được thi công chắc chắn với lớp chống thấm kỹ lưỡng.
Tất cả những chi tiết kỹ thuật khô khan đó, qua bàn tay của Techhome, đã tạo nên một tổng thể công trình bền vững. Đó chính là cam kết chất lượng của chúng tôi khi nhận thiết kế nhà phố tại Hải Dương.

5. Bảng Báo Giá Thiết Kế & Thi Công Nhà Phố Tại Hải Dương (Mới Nhất)
Chúng tôi hiểu rằng, chi phí luôn là mối quan tâm hàng đầu. Để giúp quý khách hàng dễ dàng cân đối tài chính, Techhome xin gửi tới bảng báo giá tham khảo cho dịch vụ thiết kế nhà phố tại Hải Dương và thi công trọn gói.
(Lưu ý: Bảng giá mang tính chất tham khảo, giá thực tế phụ thuộc vào diện tích, phong cách và thời điểm thi công)
| STT | Hạng Mục Dịch Vụ | Đơn Giá (VNĐ/m2) | Ghi Chú |
| 1 | Thiết kế Kiến trúc | 108.000 | Bao gồm: 3D ngoại thất, bổ kỹ thuật kiến trúc, kết cấu, điện nước. |
| 2 | Thiết kế Nội thất | 150.000 | Bao gồm: 3D nội thất, bổ chi tiết đồ gỗ. |
| 3 | Thi công Phần Thô | 3.800.000 – 4.200.000 | Bao gồm: Vật tư thô (Thép Hòa Phát/Việt Úc, Xi măng PC40, Gạch…) + Nhân công. |
| 4 | Thi công Trọn Gói | 6.000.000 – 7.500.000 | Chìa khóa trao tay (Đã bao gồm ốp lát, thiết bị vệ sinh, trần, sơn bả, cửa…). |
Đối với công trình như nhà chị Hà (tổng diện tích sàn khoảng 200m2), chi phí xây dựng hoàn thiện mức khá sẽ rơi vào khoảng 1.3 – 1.5 tỷ đồng. So với mặt bằng chung của thị trường thiết kế nhà phố tại Hải Dương, đây là mức giá cực kỳ cạnh tranh cho một chất lượng thi công chuẩn chỉ.
Lưu ý: Đây chỉ là mức chi phí ước tính. Để nhận được báo giá chính xác và chi tiết nhất cho công trình của bạn, vui lòng liên hệ trực tiếp với chúng tôi. Hoặc để tìm hiểu rõ hơn về tiêu chuẩn vật liệu xây dựng và các yếu tố ảnh hưởng đến chi phí, bạn có thể tham khảo thêm tại các bài viết chuyên sâu về vật liệu xây dựng cao cấp trên Wikipedia.

6. Tại Sao Nên Chọn Techhome Để Thiết Kế Nhà Phố Tại Hải Dương?
Giữa muôn vàn sự lựa chọn, tại sao chị Hà và rất nhiều gia chủ khác lại tin tưởng Techhome?
-
Thấu hiểu địa phương: Chúng tôi là những người con của đất cảng, am hiểu tường tận về địa chất nền đất yếu tại Kim Thành, Thanh Hà hay TP. Hải Dương. Kinh nghiệm thực chiến này giúp bản vẽ kết cấu luôn an toàn và tiết kiệm nhất cho các dự án thiết kế nhà phố tại Hải Dương.
-
Hồ sơ minh bạch, chi tiết: Như bạn thấy đấy, một bộ hồ sơ của chúng tôi dày hàng trăm trang. Từ cái ổ cắm điện, viên gạch lát nền đến kích thước cái cửa sổ đều được quy định rõ ràng. Không có chuyện “làm đến đâu hay đến đó”.
-
Đồng hành trọn đời: Techhome không chỉ thiết kế nhà phố tại Hải Dương rồi “đem con bỏ chợ”. Chúng tôi hỗ trợ giám sát tác quyền, giải đáp thắc mắc cho thợ thi công 24/7 cho đến khi ngôi nhà hoàn thiện và đi vào sử dụng.
-
Tâm huyết trong từng nét vẽ: Mỗi ngôi nhà là một tác phẩm nghệ thuật, là mồ hôi công sức cả đời của gia chủ. Chúng tôi trân trọng điều đó và làm việc bằng cả cái tâm của người làm nghề.

7. Lời Khuyên Của Chuyên Gia Khi Xây Nhà Tại Hải Dương
Với tư cách là chuyên gia có nhiều năm kinh nghiệm thiết kế nhà phố tại Hải Dương, tôi xin gửi đến bạn một vài lời khuyên chân thành:
-
Đừng ham rẻ ở phần kết cấu: Hải Dương có nhiều khu vực đất trũng, đất mượn. Hãy đầu tư khoan khảo sát địa chất và làm móng thật tốt. Tiết kiệm vài chục triệu tiền móng có thể khiến bạn trả giá đắt sau này.
-
Chú trọng chống thấm: Khí hậu nồm ẩm đặc trưng của miền Bắc là kẻ thù của tường sơn. Hãy yêu cầu đơn vị thiết kế nhà phố tại Hải Dương tư vấn kỹ về biện pháp chống thấm ngược chân tường và chống thấm mái/sàn vệ sinh ngay từ đầu.
-
Ánh sáng và Gió: Nhà ống rất dễ bị bí. Đừng tiếc diện tích cho giếng trời hay sân sau. Một ngôi nhà thoáng khí sẽ mang lại sức khỏe và tài lộc cho gia chủ. Như nhà chị Hà, chúng tôi đã bố trí giếng trời ngay cầu thang để đối lưu không khí.

Kết Luận
Ngôi nhà của chị Hà tại Kim Thành không chỉ là một công trình xây dựng, nó là tổ ấm, là nơi bão dừng sau cánh cửa. Thông qua mẫu thiết kế nhà phố tại Hải Dương này, Techhome hy vọng đã mang đến cho bạn một góc nhìn mới mẻ và những ý tưởng hữu ích cho dự định sắp tới của mình.
Nếu bạn đang tìm kiếm một đơn vị thiết kế nhà phố tại Hải Dương uy tín, chuyên nghiệp và tận tâm, đừng ngần ngại liên hệ với Techhome. Chúng tôi luôn sẵn sàng lắng nghe và hiện thực hóa giấc mơ của bạn.
Hãy để lại bình luận hoặc gọi ngay cho chúng tôi để được tư vấn miễn phí nhé!
THÔNG TIN LIÊN HỆ:
-
CÔNG TY CỔ PHẦN KIẾN TRÚC VÀ XÂY DỰNG TECHHOME
-
Hotline: 0364.04.2222 – 0387.60.3333
- Xem thêm các dự án nổi bật khác của Techhome tại https://nhadeptechhome.vn/
