Nếu bạn đang tìm kiếm một mẫu nhà 3 tầng đẹp để xây dựng tổ ấm cho gia đình đông người ngay giữa lòng thủ đô, thì câu chuyện về ngôi nhà của anh Đạt tại Hà Nội mà TechHome vừa hoàn thiện hồ sơ thiết kế dưới đây chính là một ví dụ điển hình nhất. Không chỉ là một nơi để ở, đó là bài toán cân não giữa thẩm mỹ Tân cổ điển sang trọng và công năng sử dụng tối đa trên diện tích đất 6×11.8m.
Hãy cùng TechHome “mổ xẻ” chi tiết bản vẽ này để xem chúng tôi đã giải quyết bài toán “nhà phố đất chật người đông” như thế nào nhé!
https://www.facebook.com/share/r/1AFTYLmGgr/
1. Cơ duyên và bài toán thiết kế từ gia chủ
Gặp anh Đạt vào một buổi chiều Hà Nội, điều anh trăn trở nhất không phải là chi phí, mà là làm sao để bố trí đủ phòng ngủ cho các thành viên nhưng nhà không được bí bách. Anh cần một mẫu nhà 3 tầng đẹp, sang trọng nhưng không quá rườm rà, và quan trọng nhất là phải có tới… 5 phòng ngủ.
Với diện tích sàn tầng 1 khoảng 71m2, việc bố trí đủ công năng mà vẫn đảm bảo yếu tố “đẹp” và “thoáng” là một thách thức. Đội ngũ kiến trúc sư (KTS) đã phải họp bàn rất kỹ để đưa ra phương án cuối cùng: Một kiến trúc Tân cổ điển nhẹ nhàng với hệ mái bằng hiện đại.

2. Vẻ đẹp ngoại thất: Sự giao thoa giữa cổ điển và hiện đại
Nhìn vào phối cảnh mặt tiền, bạn sẽ hiểu tại sao đây được coi là mẫu nhà 3 tầng đẹp tiêu biểu cho xu hướng năm nay.
Điểm nhấn kiến trúc Tân cổ điển
Khác với những mẫu nhà 3 tầng đẹp theo phong cách hiện đại vuông vức, ngôi nhà của anh Đạt mềm mại hơn nhờ hệ vòm uyển chuyển ở tầng 3. Chúng tôi sử dụng tông màu trắng sứ làm chủ đạo – màu sắc “bất tử” với thời gian, giúp ngôi nhà luôn trông như mới.
Hệ thống lan can sắt mỹ thuật màu đen tĩnh điện tương phản mạnh mẽ với nền sơn trắng, tạo nên sự sang trọng, tinh tế mà không hề phô trương. Các chi tiết phào chỉ được tiết chế tối đa, chỉ giữ lại ở đầu cột và viền cửa, giúp mặt tiền 6m trông thanh thoát hơn, không bị nặng nề.
Không gian xanh “chill” giữa phố thị
Một mẫu nhà 3 tầng đẹp đúng nghĩa không thể thiếu mảng xanh. Tại ban công tầng 2 và sân thượng tầng 3 (khu vực giàn hoa), KTS đã khéo léo bố trí các bồn cây. Đặc biệt là giàn lam bê tông giả gỗ trên tầng thượng, nơi sau này gia đình anh Đạt có thể trồng giàn hoa giấy hoặc đặt một bộ bàn ghế nhỏ để thưởng trà ngắm trăng.

3. “Mổ xẻ” công năng: Đỉnh cao của sự tối ưu diện tích
Đây chính là phần quan trọng nhất chứng minh tại sao thiết kế này lại đáng tiền. TechHome đã tính toán từng milimet để tối ưu hóa không gian sinh hoạt.
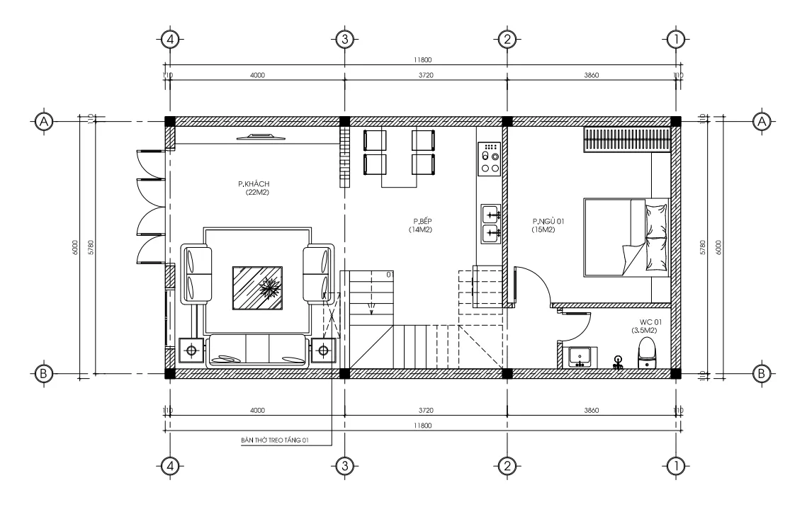
Tầng 1: Sự kết nối ấm cúng (Diện tích 71m2)
Bước qua khoảng sân nhỏ là phòng khách rộng 22m2. Đây là diện tích lý tưởng cho những ngôi nhà phố, đủ để kê một bộ sofa lớn và kệ tivi hoành tráng. Điều đặc biệt là bàn thờ được thiết kế dạng treo ngay tại tầng 1, một nét văn hóa truyền thống tiện lợi cho việc hương khói của người Việt.
Tiếp nối là khu vực cầu thang và phòng bếp ăn rộng 14m2. Dù diện tích không quá lớn, nhưng nhờ thiết kế liên thông, không gian trông rất thoáng. Phía cuối nhà là một phòng ngủ nhỏ (Phòng ngủ 01) diện tích 15m2 dành cho người lớn tuổi để tránh leo trèo, kế bên là nhà vệ sinh chung (WC 01) rộng 3.5m2.
Cách bố trí này biến tầng 1 thành một căn hộ khép kín đầy đủ tiện nghi, là tiêu chuẩn vàng cho các mẫu nhà 3 tầng đẹp dành cho gia đình có ông bà.

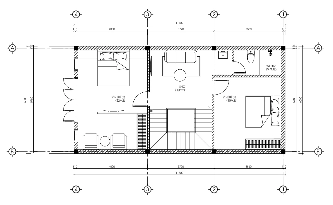
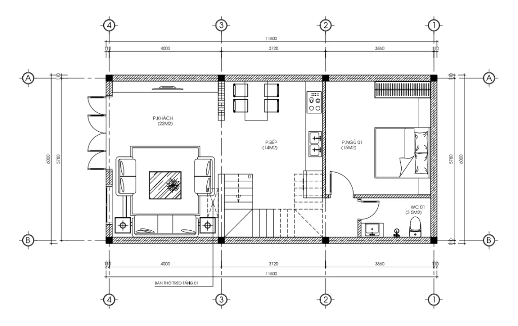
Tầng 2: Không gian nghỉ ngơi riêng tư (Diện tích 75m2)
Lên đến tầng 2, không gian được nới rộng ra một chút nhờ ban công đua ra. Tại đây, chúng tôi bố trí:
-
Phòng ngủ 02 (Master): Rộng tới 22m2, view nhìn thẳng ra mặt tiền qua cửa kính lớn. Đây là không gian sang trọng nhất của vợ chồng anh Đạt.
-
Phòng sinh hoạt chung (SHC): Một khoảng không gian 10m2 nằm giữa tầng, là nơi cả nhà ngồi đọc sách hoặc xem phim cùng nhau trước khi đi ngủ. Đây là điểm cộng lớn giúp gắn kết tình cảm gia đình.
-
Phòng ngủ 03: Diện tích 15m2 nằm phía sau, yên tĩnh và riêng tư.
-
WC 02: Rộng 5.4m2, đầy đủ tiện nghi tắm rửa.
Chiều cao tầng này là 3.6m, một chiều cao lý tưởng để lắp trần thạch cao và đèn chùm mà không lo bị thấp.

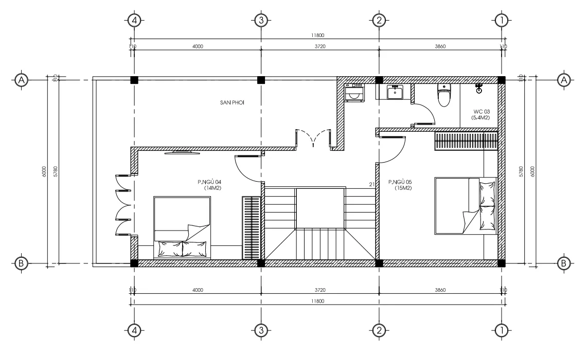
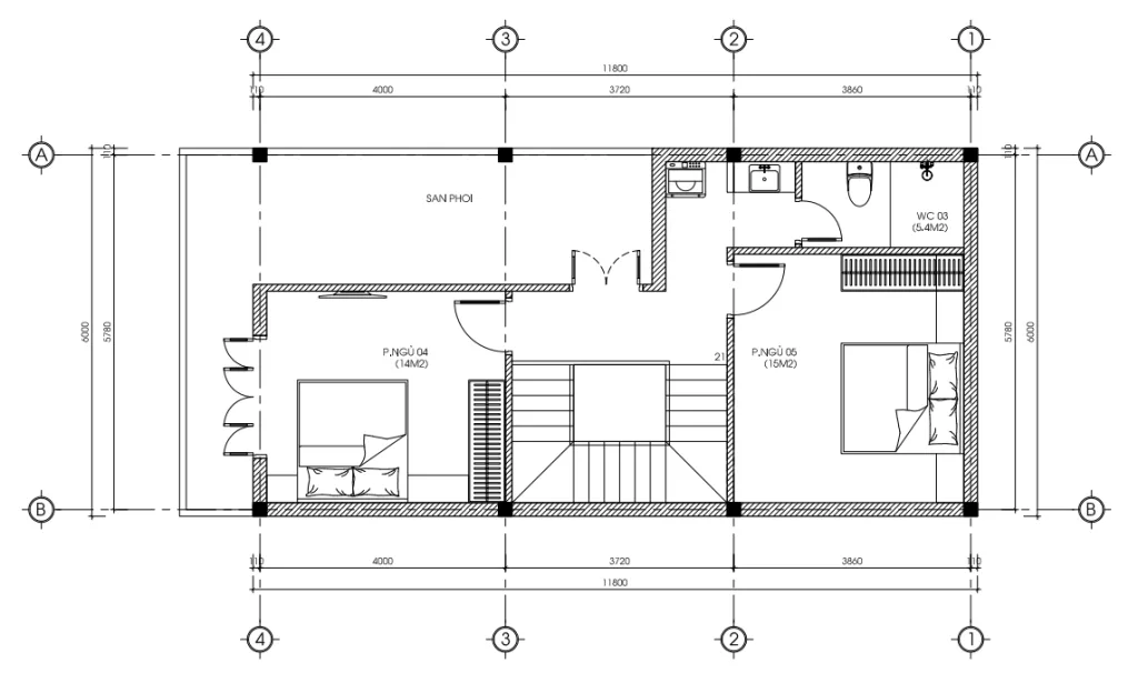
Tầng 3: Giải quyết bài toán số lượng phòng (Diện tích 55m2)
Nhiều người nghĩ tầng 3 chỉ để làm kho hoặc phòng thờ, nhưng với mẫu nhà 3 tầng đẹp của anh Đạt, chúng tôi tận dụng triệt để:
-
Phòng ngủ 04: Rộng 14m2.
-
Phòng ngủ 05: Rộng 15m2.
-
Sân phơi & WC 03: Khu vực sân phơi thoáng gió và một nhà vệ sinh chung 5.4m2.
Tổng cộng ngôi nhà có tới 5 phòng ngủ! Một con số ấn tượng cho diện tích đất này, giải quyết hoàn hảo nhu cầu cho gia đình 3 thế hệ (6-8 người) cùng chung sống thoải mái.

4. Vì sao “Mẫu nhà 3 tầng đẹp” mặt tiền 6m lại là xu hướng?
Khi chia sẻ bản vẽ này lên các hội nhóm, rất nhiều khách hàng đã inbox hỏi TechHome. Lý do đơn giản là kích thước 6×11.8m (diện tích sàn ~70-75m2) là kích thước vàng tại các đô thị lớn như Hà Nội.
Một mẫu nhà 3 tầng đẹp với mặt tiền 6m cho phép KTS thỏa sức sáng tạo hình khối hơn hẳn so với những nhà ống mặt tiền 3m hay 4m. Bạn có thể làm mái vòm, làm ban công lệch, hay bố trí hai cửa sổ song song như nhà anh Đạt mà không sợ bị rối mắt.
Hơn nữa, về mặt phong thủy, nhà mặt tiền rộng 6m được coi là “nở hậu” về tẩm nhìn, đón được nhiều ánh sáng và gió trời, mang lại vượng khí cho gia chủ.
5. Kinh nghiệm xương máu khi xây nhà 3 tầng tại Hà Nội
Là người trong nghề, Techhome khuyên bạn vài điều khi tham khảo mẫu nhà 3 tầng đẹp này:
-
Chú trọng cầu thang: Nhà anh Đạt có 21 bậc mỗi tầng, chiều cao bậc khoảng 171-176mm. Đây là kích thước chuẩn phong thủy (cung Sinh) và an toàn cho khớp gối người già. Đừng vì tiết kiệm diện tích mà làm bậc quá cao.
-
Thông gió: Với nhà ống dài gần 12m, việc bố trí giếng trời hoặc ô thông tầng khu vực cầu thang là bắt buộc để không khí đối lưu.
-
Dự trù ngân sách: Đừng chỉ nhìn vào chi phí xây thô. Hãy tính cả chi phí hoàn thiện nội thất, cổng cửa (như bộ cổng sắt mỹ thuật rất đẹp trong hình 3D), và các thiết bị vệ sinh.

6. Báo giá thiết kế và thi công (Tham khảo 2026)
Rất nhiều bạn đọc thắc mắc để sở hữu một mẫu nhà 3 tầng đẹp như của anh Đạt thì chi phí khoảng bao nhiêu? Dưới đây là bảng ước tính chi phí thi công trọn gói (Chìa khóa trao tay) mang tính chất tham khảo tại thị trường Hà Nội thời điểm này của TechHome:
| Hạng mục | Đơn giá ước tính (VNĐ/m2) | Diễn giải |
| Thiết kế kiến trúc | 108.000đ |
Bao gồm hồ sơ 3D, kỹ thuật điện nước, kết cấu. |
| Thi công phần thô | 3.800.000 – 4.500.000đ | Móng, khung cột, xây trát, điện nước âm tường. |
| Thi công hoàn thiện | 2.500.000 – 3.500.000đ | Ốp lát, sơn bả, thiết bị vệ sinh, cửa, cầu thang… (Tùy vật liệu). |
| Tổng chi phí ước tính | ~ 1.3 tỷ – 1.7 tỷ đồng | Cho tổng diện tích sàn xây dựng khoảng 200m2 (3 tầng). |
Lưu ý: Giá trên chưa bao gồm đồ nội thất rời (giường, tủ, bàn ghế) và có thể thay đổi tùy vào thời điểm vật giá, vị trí ngõ rộng hay hẹp.
Tại TechHome: Chúng tôi luôn cam kết minh bạch về vật liệu. Thép Hòa Phát/Việt Úc, Xi măng Hoàng Thạch/Bỉm Sơn, dây điện Trần Phú… không nhập nhèm chủng loại. Để tìm hiểu rõ hơn về tiêu chuẩn vật liệu xây dựng và các yếu tố ảnh hưởng đến chi phí, bạn có thể tham khảo thêm tại các bài viết chuyên sâu về vật liệu xây dựng cao cấp trên Wikipedia.

7. Góc chuyên gia: Nâng tầm không gian sống
Ngoài việc sao chép y nguyên mẫu nhà 3 tầng đẹp này, bạn có thể cân nhắc nâng cấp một số điểm sau để ngôi nhà trở nên “thông minh” và “chill” hơn:
-
Hệ thống Smarthome: Chỉ cần khoảng 20-30 triệu đồng, bạn có thể điều khiển toàn bộ đèn, rèm cửa, bình nóng lạnh qua điện thoại. Rất tiện khi bạn đang ở tầng 1 mà muốn tắt điện tầng 3.
-
Vật liệu chống nóng: Tầng 3 (áp mái) thường rất nóng vào mùa hè Hà Nội. Hãy đầu tư thêm lớp xốp cách nhiệt XPS dưới trần bê tông hoặc lợp thêm mái tôn lạnh bên trên trần bê tông để làm mát.
-
Biến sân phơi thành Sky Bar: Thay vì chỉ phơi quần áo, hãy dùng giàn phơi thông minh gấp gọn. Khoảng sân còn lại lát gạch giả gỗ, đặt thêm vài chậu cây và đèn dây tóc. Bạn sẽ có ngay một góc “Sky Bar” tại gia cực chất.

Lời kết
Ngôi nhà của anh Đạt là minh chứng cho thấy: Không cần diện tích quá khủng, chỉ cần thiết kế hợp lý, bạn hoàn toàn có thể sở hữu một mẫu nhà 3 tầng đẹp, đầy đủ tiện nghi cho cả đại gia đình.
Cảm ơn TechHome và đội ngũ đã tâm huyết tạo ra sản phẩm này. Hy vọng bài review này giúp bạn có thêm ý tưởng cho ngôi nhà tương lai của mình.
Bạn đang ấp ủ dự định xây nhà?
Đừng ngần ngại, hãy để lại bình luận hoặc liên hệ ngay với TechHome để được tư vấn miễn phí phương án tối ưu nhất cho mảnh đất của bạn.
👉 Liên hệ ngay Hotline: 0364.04.2222 – 0387.60.3333 để nhận báo giá chi tiết và ưu đãi thiết kế trong tháng này!
Xem thêm các mẫu nhà đẹp tại Website: nhadeptechhome.vn
