Nếu bạn đang tìm kiếm một không gian sống vừa vặn, không quá phô trương nhưng lại tinh tế trong từng đường nét, thì câu chuyện về ngôi nhà của anh Dân tại Thái Nguyên mà Techhome vừa hoàn thiện hồ sơ thiết kế chính là nguồn cảm hứng tuyệt vời. Không chỉ là một mẫu nhà 2 tầng đẹp, đây còn là bài toán cân đối tài chính và công năng sử dụng mà rất nhiều gia đình trẻ đang trăn trở.
Hãy cùng Techhome “bóc tách” chi tiết công trình này để xem các kiến trúc sư đã hiện thực hóa ước mơ của gia chủ như thế nào nhé!
1. Tổng quan dự án: Khi “Đẹp” đi đôi với “Tiện”
Trước khi đi sâu vào chi tiết, Techhome xin gửi đến quý khách hàng bảng thông số kỹ thuật tóm tắt của dự án này. Việc minh bạch thông tin giúp bạn dễ dàng hình dung và so sánh với nhu cầu của chính mình.
-
Chủ đầu tư: Anh Dân
-
Địa điểm xây dựng: Thái Nguyên
-
Đơn vị thiết kế: Công ty Cổ phần Kiến trúc và Xây dựng Techhome
-
Kích thước đất/xây dựng: Mặt tiền khoảng 5.5m x Chiều sâu 16m.
-
Quy mô: Nhà phố 2 tầng hiện đại.
-
Diện tích sàn tầng 1: 90.0 m2.
-
Diện tích sàn tầng 2: 64.0 m2.
-
Tổng diện tích sử dụng: ~154 m2.
Có thể thấy, với tổng diện tích hơn 150m2, đây là một mẫu nhà 2 tầng đẹp lý tưởng cho gia đình từ 4-5 thành viên sinh sống thoải mái.

2. Kiến trúc ngoại thất: Vẻ đẹp hiện đại từ những đường cong
Ấn tượng đầu tiên khi nhìn vào mẫu nhà 2 tầng đẹp của anh Dân chính là sự mềm mại, phá vỡ sự thô cứng thường thấy của các khối bê tông nhà phố.
Ngôn ngữ thiết kế Minimalist (Tối giản)
Techhome đã tư vấn cho anh Dân phong cách hiện đại với tông màu trắng chủ đạo, điểm xuyết các mảng tường xám ghi để tạo chiều sâu. Mặt tiền ngôi nhà nổi bật với thiết kế mái vòm ở cả tầng 1 và tầng 2. Những đường cong này không chỉ mang tính thẩm mỹ cao, tạo cảm giác “hạng sang” (luxury) nhẹ nhàng mà còn giúp công trình trông cao ráo và thanh thoát hơn rất nhiều.
Hệ cửa kính lớn chiếm trọn mặt tiền giúp ngôi nhà đón tối đa ánh sáng tự nhiên. Đây là tiêu chí quan trọng để đánh giá một mẫu nhà 2 tầng đẹp trong thời đại 4.0, khi con người ngày càng khao khát kết nối với thiên nhiên.
Giải pháp mái thông minh
Nhìn từ phối cảnh trên cao, bạn sẽ thấy sự tính toán kỹ lưỡng của đội ngũ Techhome. Thay vì đổ mái bằng bê tông toàn bộ gây tốn kém và nóng bức, chúng tôi sử dụng giải pháp mái tôn chống nóng được giấu khéo léo phía sau tường chắn mái (Sê-nô).
-
Phần mái này giúp thoát nước mưa nhanh, chống thấm hiệu quả.
-
Tiết kiệm chi phí xây dựng đáng kể cho gia chủ so với mái Thái hay mái Nhật.
-
Vẫn giữ được vẻ đẹp vuông vức, hiện đại khi nhìn từ mặt tiền đường.
Đây chính là bí quyết để sở hữu một mẫu nhà 2 tầng đẹp mà không lo “vung tay quá trán” về ngân sách.

3. Khám phá công năng: “Trái tim” của ngôi nhà
Một mẫu nhà 2 tầng đẹp không chỉ để ngắm, mà quan trọng nhất là phải “sống” được trong đó. Sự tiện nghi, luân chuyển giao thông trong nhà được KTS tính toán cực kỳ chi tiết.
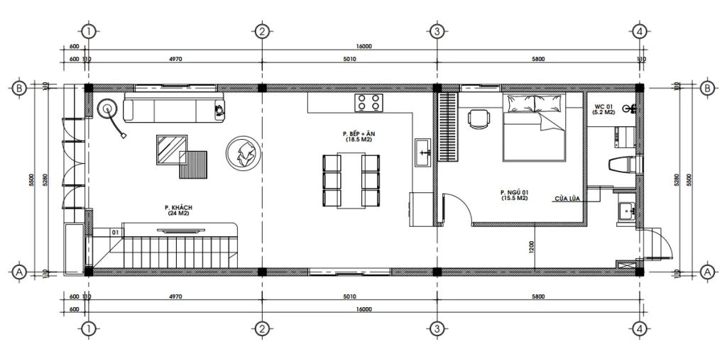
Tầng 1: Không gian kết nối (Diện tích 90m2)
Tầng 1 là nơi sinh hoạt chung, nơi giữ lửa cho gia đình. Với chiều cao tầng là 2.9m, không gian này cực kỳ thoáng đãng.
-
Phòng khách (24m2): Bước qua sảnh chính là phòng khách rộng rãi. Kích thước này đủ để bố trí bộ sofa lớn sang trọng, kệ tivi và cả những chậu cây cảnh phong thủy.
-
Phòng Bếp + Ăn (18.5m2): Nằm liên thông với phòng khách qua khu vực cầu thang, tạo độ sâu cho ngôi nhà. Diện tích này đủ cho bàn ăn 6 người và hệ tủ bếp chữ L hiện đại.
-
Phòng ngủ 01 (15.5m2): Đây là điểm cộng lớn. Việc bố trí phòng ngủ ở tầng 1 rất phù hợp cho người lớn tuổi hoặc khách đến chơi nhà, hạn chế việc leo cầu thang.
-
WC 01 (5.2m2): Đặt kín đáo phía cuối nhà, đảm bảo vệ sinh và thẩm mỹ.

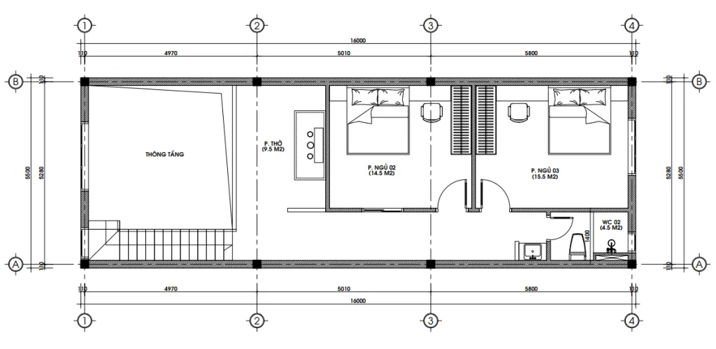
Tầng 2: Không gian riêng tư (Diện tích 64m2)
Lên đến tầng 2, chiều cao trần là 2.7m, tạo cảm giác ấm cúng hơn cho việc nghỉ ngơi. Điểm đặc biệt của mẫu nhà 2 tầng đẹp này là khu vực thông tầng.
-
Phòng thờ (9.5m2): Được đặt ở vị trí trang trọng nhất, hướng ra mặt tiền (ban công), đảm bảo yếu tố tâm linh và phong thủy của người Việt.
-
Khoảng thông tầng: Giúp đối lưu không khí, lấy sáng cho khu vực hành lang và cầu thang. Một mẫu nhà 2 tầng đẹp đúng nghĩa không bao giờ được thiếu ánh sáng và gió trời.
-
2 Phòng ngủ tiện nghi: Phòng ngủ 02 (14.5m2) và Phòng ngủ 03 (15.5m2) được bố trí hợp lý dành cho vợ chồng anh Dân và các con.
-
WC 02 (4.5m2): Sử dụng chung cho cả tầng để tối ưu diện tích phòng ngủ.

4. Tại sao mẫu nhà này lại “Hot” tại Thái Nguyên?
Có rất nhiều lý do khiến mẫu nhà 2 tầng đẹp như của anh Dân trở thành xu hướng tìm kiếm hàng đầu:
-
Tối ưu hóa diện tích đất hẹp: Với mặt tiền 5.5m, thiết kế nhà ống là lựa chọn duy nhất. Tuy nhiên, cách xử lý hình khối vòm cong của Techhome đã xóa tan cảm giác “nhà ống” chật hẹp.
-
Công năng thực dụng: 3 phòng ngủ, 1 phòng thờ là “combo” tiêu chuẩn cho gia đình Việt 3 thế hệ. Không thừa, không thiếu.
-
Chi phí hợp lý: Việc xây dựng tầng 2 với diện tích 64m2 (nhỏ hơn tầng 1 là 90m2) giúp tiết kiệm chi phí đổ bê tông sàn và mái, đồng thời tạo ra khối kiến trúc giật cấp thú vị.
Bạn đang tìm kiếm một mẫu nhà 2 tầng đẹp tương tự? Hãy để lại bình luận hoặc liên hệ ngay với Techhome nhé!
5. Báo giá xây dựng mẫu nhà 2 tầng đẹp (Tham khảo 2025-2026)
Techhome hiểu rằng, bên cạnh tính thẩm mỹ, chi phí là mối quan tâm hàng đầu. Để hoàn thiện một mẫu nhà 2 tầng đẹp như gia đình anh Dân, chúng tôi xin đưa ra bảng dự toán tham khảo (lưu ý: giá có thể thay đổi tùy thời điểm và vật liệu):
| Hạng mục | Đơn giá tham khảo (VNĐ/m2) | Diễn giải |
| Thiết kế kiến trúc | 108.000 | Bản vẽ 3D, kết cấu, điện nước |
| Xây dựng phần thô | 3.800.000 – 4.200.000 | Bao gồm vật tư thô (sắt, xi măng, gạch) và nhân công |
| Thi công hoàn thiện | 2.500.000 – 3.500.000 | Gạch ốp lát, sơn bả, thiết bị vệ sinh, trần thạch cao, cửa… |
| Trọn gói (Chìa khóa trao tay) | 6.500.000 – 7.500.000 | Techhome lo từ A-Z, gia chủ chỉ việc dọn vào ở |
Chi phí dự kiến cho nhà anh Dân (154m2 sàn):
-
Phần thô: ~ 600 – 650 triệu đồng.
-
Hoàn thiện cơ bản: ~ 400 – 550 triệu đồng.
-
Tổng cộng: Khoảng 1 tỷ – 1.2 tỷ đồng cho một mẫu nhà 2 tầng đẹp long lanh, đầy đủ tiện nghi.
Lưu ý: Đây chỉ là mức chi phí ước tính. Để nhận được báo giá chính xác và chi tiết nhất cho công trình của bạn, vui lòng liên hệ trực tiếp với chúng tôi. Hoặc để tìm hiểu rõ hơn về tiêu chuẩn vật liệu xây dựng và các yếu tố ảnh hưởng đến chi phí, bạn có thể tham khảo thêm tại các bài viết chuyên sâu về vật liệu xây dựng cao cấp trên Wikipedia.

6. Lời khuyên từ chuyên gia khi xây nhà 2 tầng
Là người làm nghề lâu năm, tiếp xúc với hàng trăm mẫu nhà 2 tầng đẹp, tôi xin chia sẻ vài kinh nghiệm “xương máu” để bạn có được ngôi nhà ưng ý:
-
Đừng tham lam chi tiết: Với nhà phố diện tích nhỏ, “càng đơn giản càng sang”. Hãy tập trung vào hình khối và vật liệu hơn là các phào chỉ rườm rà.
-
Chú trọng chống thấm: Đặc biệt là phần tiếp giáp giữa mái tôn và tường xây (như thiết kế nhà anh Dân). Techhome luôn xử lý kỹ thuật này bằng các lớp chống thấm chuyên dụng và sê-nô thu nước chuẩn.
-
Phong thủy không phải là mê tín: Việc bố trí bếp, ban thờ, hướng giường ngủ cần hài hòa. Ví dụ, bếp ăn nhà anh Dân được đặt “tọa hung hướng cát” để mang lại tài lộc.
-
Lựa chọn nhà thầu có tâm: Hồ sơ thiết kế dù đẹp đến đâu mà thi công sai lệch thì mẫu nhà 2 tầng đẹp cũng chỉ nằm trên giấy. Độ chi tiết của bản vẽ kỹ thuật mà Techhome cung cấp cho anh Dân, từ mặt bằng lát sàn đến chi tiết cửa, điện nước đều rõ ràng minh bạch.

7. Quy trình làm việc tại Techhome
Để cho ra đời một mẫu nhà 2 tầng đẹp, Techhome áp dụng quy trình 6 bước chuyên nghiệp:
-
Tiếp nhận thông tin & Khảo sát hiện trạng (Techhome đã đến tận Thái Nguyên khảo sát đất nhà anh Dân).
-
Tư vấn phương án mặt bằng & Ký hợp đồng thiết kế.
-
Lên phối cảnh 3D ngoại thất & nội thất.
-
Triển khai hồ sơ kỹ thuật thi công (Kiến trúc, Kết cấu, Điện nước).
-
Bàn giao hồ sơ & Giám sát tác giả (Hỗ trợ tư vấn kỹ thuật qua điện thoại: 0364042222).
-
Thi công trọn gói (nếu gia chủ yêu cầu).
8. Vì sao nên chọn Techhome cho ngôi nhà mơ ước?
Giữa hàng trăm đơn vị thiết kế, Techhome tự hào là nơi kiến tạo nên những mẫu nhà 2 tầng đẹp mang đậm dấu ấn cá nhân của gia chủ.
-
Đội ngũ KTS thực chiến: KTS, KS là những người trực tiếp chắp bút cho công trình này, đảm bảo tính thẩm mỹ đi đôi với sự bền vững của kết cấu.
-
Hỗ trợ tận tình: Số điện thoại hỗ trợ kỹ thuật 0364.04.2222 – 0387.60.3333 luôn sẵn sàng giải đáp mọi thắc mắc của thợ xây trong quá trình thi công. Đây là điều ít đơn vị thiết kế nào làm được.
-
Cam kết chất lượng: Mỗi bản vẽ khi xuất đi đều qua nhiều khâu kiểm duyệt khắt khe.

Kết luận
Ngôi nhà của anh Dân tại Thái Nguyên là minh chứng rõ nét cho việc: Bạn hoàn toàn có thể sở hữu một mẫu nhà 2 tầng đẹp, hiện đại và tiện nghi với mức chi phí hợp lý nếu có sự tư vấn đúng đắn.
Nhà không chỉ là nơi để ở, nhà là nơi bão dừng sau cánh cửa. Nếu bạn đang ấp ủ dự định xây tổ ấm, đừng ngần ngại chia sẻ với chúng tôi. Techhome sẽ cùng bạn vẽ nên giấc mơ đó.
Bạn thích thiết kế này chứ? Hãy chia sẻ bài viết về “Mẫu nhà 2 tầng đẹp” này để lưu lại ý tưởng cho ngôi nhà tương lai của mình nhé!
Thông tin liên hệ Techhome:
-
Hotline/Zalo: 0364.04.2222 / 0387.60.3333
-
Website: https://nhadeptechhome.vn/
-
Địa chỉ: B1.1 LK18 Ô 3 – KĐT Thanh Hà – Cienco 5 – Thanh Oai- Hà Nội.
