Xây nhà là chuyện cả đời. Với người dân Việt Nam mình, ngôi nhà không chỉ là nơi chui ra chui vào, mà là thành quả của bao năm tích cóp, là nơi giữ lửa hạnh phúc gia đình. Hiểu được tâm tư ấy, hôm nay Techhome xin giới thiệu đến các bác một siêu phẩm kiến trúc vừa được chúng tôi hoàn thiện hồ sơ thiết kế: Mẫu nhà cấp 4 mái Nhật hiện đại, sang trọng của gia đình anh Toản tại mảnh đất hiếu học Đức Thọ, Hà Tĩnh.
Nếu bạn đang tìm kiếm một không gian sống tiện nghi, mát mẻ vào mùa hè, ấm áp vào mùa đông và đặc biệt là chi phí hợp lý, thì mẫu nhà cấp 4 mái Nhật này chính là câu trả lời hoàn hảo nhất.
1. Thông tin tổng quan dự án
Trước khi đi sâu vào chi tiết vẻ đẹp của ngôi nhà, Techhome xin tóm tắt các thông số kỹ thuật chính từ hồ sơ thiết kế để mọi người dễ hình dung:
| Hạng mục | Thông tin chi tiết |
| Chủ đầu tư |
Anh Toản |
| Địa điểm xây dựng |
Huyện Đức Thọ, Tỉnh Hà Tĩnh |
| Đơn vị thiết kế |
Công ty CP Kiến trúc và Xây dựng Techhome |
| Loại hình |
Nhà ở gia đình (Nhà vườn 1 tầng) |
| Phong cách | Kiến trúc hiện đại pha chút tân cổ điển nhẹ nhàng, hệ mái Nhật xanh |
| Diện tích xây dựng |
136.0 m2 |
| Kích thước đất |
Mặt tiền 7.7m x Chiều sâu 17m |
| Công năng sử dụng |
1 Phòng khách, 1 Phòng thờ, 1 Bếp ăn, 3 Phòng ngủ, 2 WC |

2. Tại sao mẫu nhà cấp 4 mái Nhật lại trở thành “quốc dân” tại Hà Tĩnh?
Hà Tĩnh quê mình nổi tiếng với khí hậu khắc nghiệt, “chảo lửa túi mưa”. Vì vậy, việc lựa chọn kiến trúc không chỉ cần đẹp mà còn phải bền và phù hợp với thời tiết. Mẫu nhà cấp 4 mái Nhật của anh Toản được Techhome thiết kế giải quyết triệt để các vấn đề này.
Vẻ đẹp ngoại thất: Sang trọng và Bền bỉ
Nhìn vào phối cảnh mặt tiền, bạn sẽ bị thu hút ngay bởi hệ mái màu xanh than cực kỳ nổi bật trên nền sơn tường trắng tinh khôi. Đây là đặc trưng của nhà cấp 4 mái Nhật, với độ dốc vừa phải giúp thoát nước mưa nhanh chóng, chống thấm dột hiệu quả – điều cực kỳ quan trọng trong mùa mưa bão miền Trung.
Hệ cột trụ vuông vức, khỏe khoắn ở sảnh chính được ốp đá chân cột màu đen, tạo cảm giác vững chãi. Cửa chính sử dụng gỗ tự nhiên pano đặc, mang lại vẻ bề thế, ấm cúng, đúng chất nhà của người Việt. Trong khi đó, hệ thống cửa sổ lại sử dụng nhôm kính xingfa hiện đại, giúp lấy sáng tối đa, khiến không gian bên trong luôn thoáng đãng.
Cảnh quan sân vườn rộng rãi
Ưu điểm lớn nhất của các mẫu nhà cấp 4 mái Nhật ở nông thôn là tận dụng được quỹ đất rộng. Nhà anh Toản được quy hoạch lùi về một bên, chừa lại khoảng sân lát gạch xám sạch sẽ cực rộng. Khoảng sân này không chỉ để đậu xe ô tô thoải mái mà còn là nơi để con trẻ vui đùa, hay tổ chức tiệc ngoài trời mỗi dịp giỗ chạp, Lễ Tết.

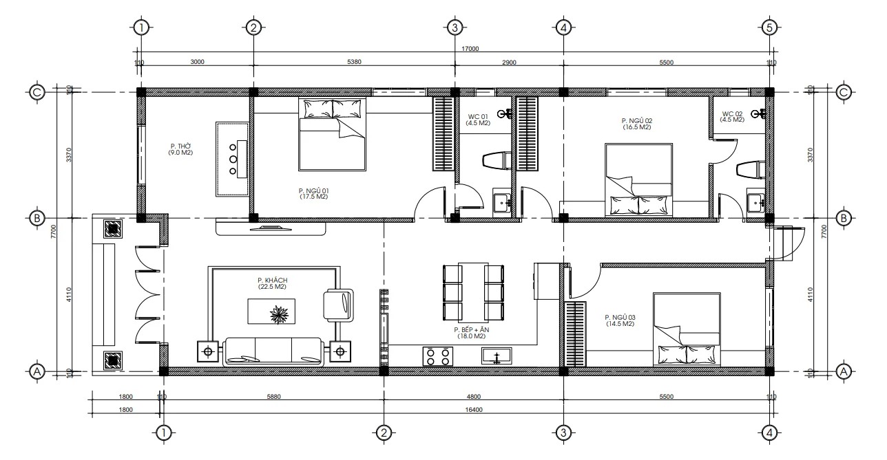
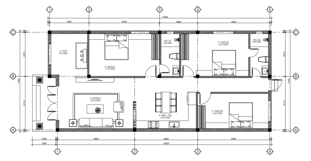
3. “Mổ xẻ” công năng: Bố trí khoa học đến từng centimet
Là một người làm nghề viết và am hiểu kiến trúc, Tôi thực sự ấn tượng với cách các kiến trúc sư Techhome bố trí mặt bằng cho ngôi nhà cấp 4 mái Nhật này. Với diện tích 136m2, mọi ngóc ngách đều được tính toán kỹ lưỡng.
Dưới đây là chi tiết mặt bằng công năng tầng 1:
Phòng khách và Phòng thờ: Sự trang nghiêm và ấm cúng
Bước từ sảnh chính vào là phòng khách rộng 22.5m2. Đây là “bộ mặt” của ngôi nhà, nơi anh Toản tiếp đón bạn bè, hàng xóm. Ngay bên cạnh, được ngăn cách khéo léo là phòng thờ rộng 9.0m2. Việc đặt phòng thờ ở vị trí trang trọng, hướng ra mặt tiền thể hiện lòng hiếu kính với tổ tiên – một nét đẹp văn hóa không thể thiếu của người Việt. Trong thiết kế nhà cấp 4 mái Nhật, sự kết nối giữa phòng khách và phòng thờ tạo nên một không gian sinh hoạt chung rộng rãi nhưng vẫn giữ được sự tôn nghiêm.
Bếp ăn: Nơi giữ lửa yêu thương
Đi sâu vào bên trong là khu vực Bếp + Ăn rộng 18.0m2. Khu vực này được bố trí có cửa phụ ở cuối nhà. Thiết kế này cực kỳ tinh tế: khi nhà có khách, các bà các mẹ đi chợ về có thể đi cửa sau thẳng vào bếp sơ chế mà không cần đi qua phòng khách. Đây là điểm cộng lớn cho mẫu nhà cấp 4 mái Nhật này.
Khu vực nghỉ ngơi: 3 Phòng ngủ riêng tư
Nhu cầu của gia đình anh Toản là cần không gian riêng cho các thành viên. Techhome đã bố trí 3 phòng ngủ chạy dọc theo chiều sâu nhà:
-
Phòng ngủ 01: Diện tích 17.5m2.
-
Phòng ngủ 02: Diện tích 16.5m2.
-
Phòng ngủ 03: Diện tích 14.5m2.
Đặc biệt, phòng ngủ 1 đầu tiên có bố trí một nhà vệ sinh khép kín (WC01) rộng 4.5m2, rất tiện lợi cho sinh hoạt vợ chồng hoặc người già. Cuối nhà là một nhà vệ sinh chung (WC02), đảm bảo sinh hoạt cho cả gia đình mà không phải chờ đợi.
Cách bố trí hành lang giao thông ở giữa giúp luân chuyển không khí, đảm bảo phòng ngủ nào trong mẫu nhà cấp 4 mái Nhật này cũng đón được gió trời.

4. Chiều cao và Kết cấu – Yếu tố kỹ thuật quan trọng
Nhiều người thắc mắc nhà cấp 4 mái Nhật thì có thấp và nóng không?
Xin trả lời là KHÔNG. Theo hồ sơ kỹ thuật, chiều cao tầng của nhà anh Toản là 4.1m. Đây là chiều cao lý tưởng giúp ngôi nhà cực kỳ thoáng mát. Khoảng không gian đệm giữa trần và mái Nhật phía trên đóng vai trò như một lớp cách nhiệt tự nhiên, giúp giảm nhiệt độ đáng kể vào những ngày hè nắng gắt ở Hà Tĩnh.

5. Bảng báo giá xây dựng nhà cấp 4 mái Nhật (Cập nhật 2026)
Đây chắc chắn là phần các bác mong chờ nhất. Chi phí xây dựng một ngôi nhà cấp 4 mái Nhật như nhà anh Toản phụ thuộc vào nhiều yếu tố: giá vật liệu tại địa phương (Hà Tĩnh), thời điểm thi công, và mức độ hoàn thiện.
Tuy nhiên, Techhome xin đưa ra bảng khái toán chi phí xây dựng trọn gói (tham khảo) để quý khách hàng dễ dàng chuẩn bị tài chính.
(Lưu ý: Bảng giá dưới đây mang tính chất tham khảo cho diện tích 136m2, giá thực tế có thể thay đổi tùy thời điểm)
| Hạng mục thi công | Đơn giá tham khảo (VNĐ/m2) | Tổng chi phí ước tính (VNĐ) | Ghi chú |
| Thiết kế kiến trúc | 108.000 | ~15.000.000 | Gồm kiến trúc, kết cấu, điện nước. |
| Thi công phần thô | 3.500.000 – 4.000.000 | ~476.000.000 – 544.000.000 | Bao gồm móng, khung, xây trát, mái |
| Thi công hoàn thiện | 2.000.000 – 3.000.000 | ~272.000.000 – 408.000.000 | Gạch ốp lát, sơn bả, trần thạch cao, điện nước |
| Trọn gói (Chìa khóa trao tay) | 6.500.000 – 7.500.000 | ~884.000.000 – 1.020.000.000 | Vật tư loại khá – tốt |
Với mức đầu tư khoảng 800 triệu – 1 tỷ đồng, bạn hoàn toàn có thể sở hữu một cơ ngơi nhà cấp 4 mái Nhật khang trang, bền đẹp như gia đình anh Toản. Đây là mức giá cực kỳ cạnh tranh so với việc xây nhà tầng hay biệt thự, mà công năng sử dụng lại vô cùng tối ưu cho gia đình 4-6 người.
Lưu ý: Đây chỉ là mức chi phí ước tính. Để nhận được báo giá chính xác và chi tiết nhất cho công trình của bạn, vui lòng liên hệ trực tiếp với chúng tôi. Hoặc để tìm hiểu rõ hơn về tiêu chuẩn vật liệu xây dựng và các yếu tố ảnh hưởng đến chi phí, bạn có thể tham khảo thêm tại các bài viết chuyên sâu về vật liệu xây dựng cao cấp trên Wikipedia.

6. Góc chuyên gia: Lời khuyên vàng khi xây nhà cấp 4 mái Nhật
Là người đồng hành cùng hàng nghìn công trình trên khắp cả nước, Techhome xin gửi đến bạn những lời khuyên tâm huyết để ngôi nhà cấp 4 mái Nhật của bạn hoàn hảo hơn:
-
Lưu ý về độ dốc mái: Mái Nhật có độ dốc thấp hơn mái Thái (thường < 40 độ). Khi thi công tại vùng nhiều mưa như Hà Tĩnh, cần tính toán độ dốc kỹ lưỡng để thoát nước tốt nhưng vẫn giữ được dáng mái đẹp, bè ra bốn góc, tạo sự cân đối.
-
Lựa chọn màu sắc: Nhà cấp 4 thường không quá cao, nên ưu tiên các tông màu sáng (trắng, kem, ghi sáng) làm chủ đạo để ngôi nhà trông cao ráo và rộng hơn. Màu mái xanh hoặc ngói đỏ là điểm nhấn tuyệt vời.
-
Phong thủy: Phòng thờ và Bếp là hai yếu tố cực quan trọng. Như nhà anh Toản, Bếp và Phòng thờ được đặt tách biệt, tránh việc mùi thức ăn ảnh hưởng nơi thờ tự, đồng thời tuân thủ nguyên tắc “tọa hung hướng cát” trong phong thủy.
-
Vật liệu cửa: Nếu kinh phí hạn hẹp, bạn có thể thay cửa gỗ chính bằng cửa thép vân gỗ. Loại này đang rất “hot” cho các mẫu nhà cấp 4 mái Nhật vì độ bền cao, không cong vênh, giá thành rẻ hơn gỗ tự nhiên mà thẩm mỹ đạt 9/10.

7. Quy trình làm việc tại Kiến trúc Techhome
Để ra đời được một bộ hồ sơ chất lượng như nhà anh Toản, Techhome tuân thủ quy trình 6 bước nghiêm ngặt:
-
Tiếp nhận thông tin, tư vấn sơ bộ.
-
Khảo sát thực địa, đo đạc đất (Techhome đã đến tận Đức Thọ – Hà Tĩnh).
-
Lên phương án mặt bằng và phối cảnh 3D.
-
Điều chỉnh theo ý kiến gia chủ (Anh Toản đã rất hài lòng ngay từ phương án đầu).
-
Triển khai hồ sơ kỹ thuật thi công (Điện, nước, kết cấu).
-
Bàn giao hồ sơ và giám sát tác quyền.
Số điện thoại hỗ trợ tư vấn kỹ thuật xây dựng luôn túc trực: 0364.042.222 – 0387.603.333. Đừng ngần ngại gọi cho chúng tôi dù bạn chưa quyết định xây ngay.

8. Lời kết
Mẫu nhà cấp 4 mái Nhật của gia đình anh Toản tại Hà Tĩnh là minh chứng rõ nét cho xu hướng kiến trúc hiện đại: Đơn giản nhưng không đơn điệu, tiện nghi và tiết kiệm. Một ngôi nhà đẹp không cần phải quá cao sang, cầu kỳ, mà quan trọng là sự bố trí hợp lý, mang lại cảm giác bình yên cho gia chủ mỗi khi trở về.
Nếu bạn đã trót yêu thích vẻ đẹp thanh lịch của mẫu nhà cấp 4 mái Nhật này, hay muốn tham khảo thêm nhiều mẫu nhà đẹp khác, hãy liên hệ ngay với Techhome. Chúng tôi không chỉ vẽ nhà, chúng tôi vẽ nên tổ ấm.
CÔNG TY CỔ PHẦN KIẾN TRÚC VÀ XÂY DỰNG TECHHOME
-
Hotline/Zalo: 0364.042.222 / 0387.603.333
-
Website: https://nhadeptechhome.vn/
Cảm ơn anh Toản và gia đình đã tin tưởng lựa chọn Techhome. Chúc anh sớm hoàn thiện ngôi nhà mơ ước và an cư lạc nghiệp!
