Chiêm ngưỡng mẫu thiết kế nhà 1 tầng 3 phòng ngủ mái bằng kiến trúc hiện đại của gia đình chị Trang tại Hà Nội. Techhome tư vấn giải pháp không gian mở, chống nóng sàn mái và tối ưu chi phí xây dựng năm 2025.
1. Mở đầu: Xu hướng kiến trúc hiện đại lên ngôi tại Hà Nội
Trong bối cảnh quỹ đất ngày càng hạn hẹp và chi phí vật liệu xây dựng leo thang, tư duy về không gian sống của người Việt đang có sự chuyển dịch mạnh mẽ. Thay vì những chi tiết rườm rà, cầu kỳ, ngày càng nhiều gia chủ hướng tới sự tối giản, tinh tế và công năng thực dụng. Nắm bắt được xu thế đó, mẫu thiết kế nhà 1 tầng 3 phòng ngủ phong cách mái bằng hiện đại đang trở thành lựa chọn hàng đầu cho các gia đình trẻ và cả những chủ đầu tư yêu thích sự phóng khoáng.
Dự án nhà ở của gia đình chị Trang (Hà Nội) do Techhome thực hiện là minh chứng rõ nét cho vẻ đẹp của kiến trúc hiện đại. Với yêu cầu về một không gian sống tiện nghi, thoáng đãng trên diện tích đất 7m x 10m, đội ngũ kiến trúc sư đã kiến tạo nên một bản thiết kế nhà 1 tầng 3 phòng ngủ đầy ấn tượng, phá vỡ định kiến về những ngôi nhà cấp 4 đơn điệu, mang đến một diện mạo hoàn toàn mới mẻ và đẳng cấp.

2. Phân tích mặt bằng công năng: Giải pháp tách biệt “Tĩnh” và “Động” độc đáo
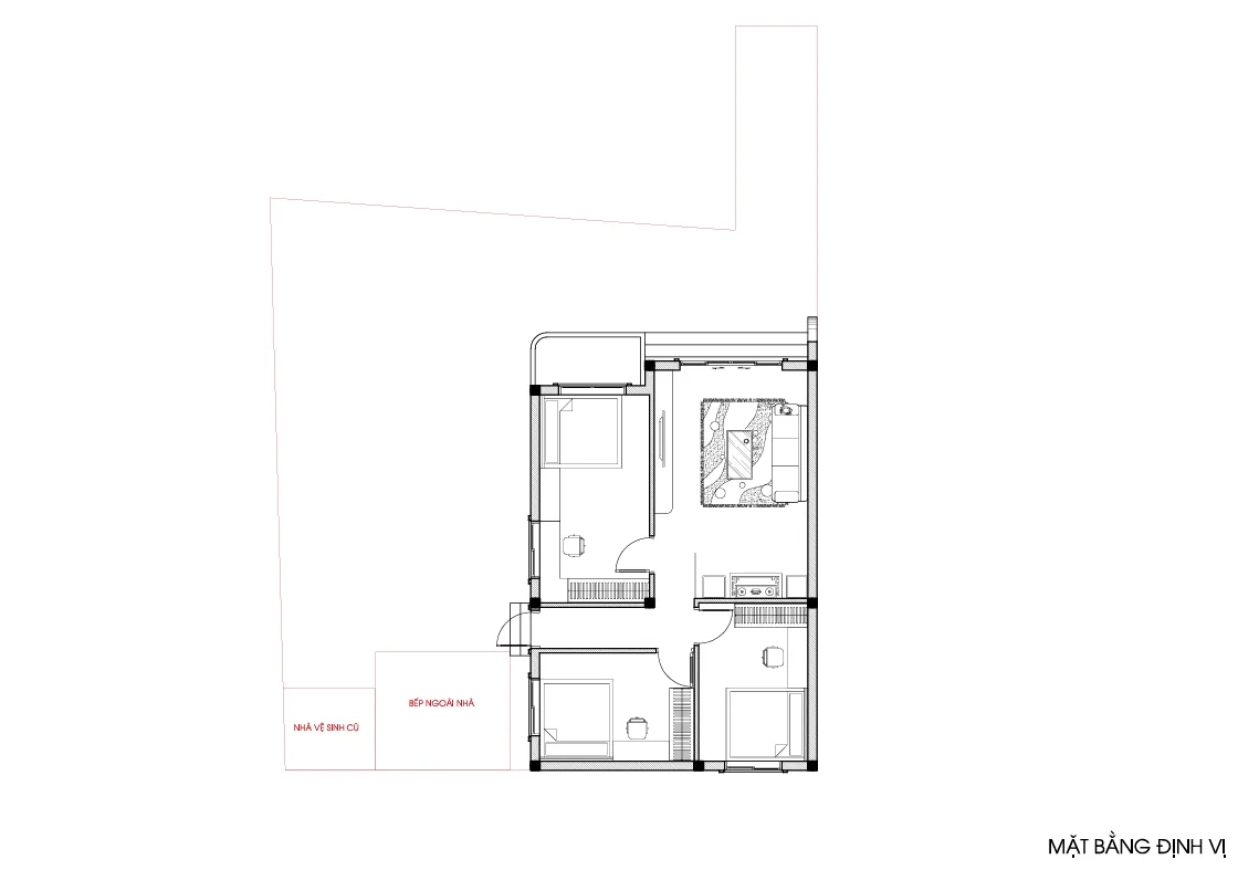
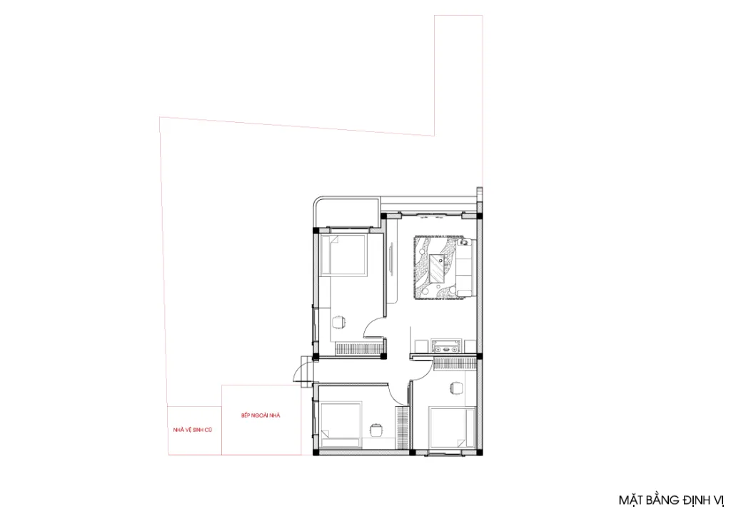
Một trong những điểm đặc biệt nhất của dự án nhà chị Trang chính là sự tách biệt hoàn toàn giữa không gian nghỉ ngơi (Nhà mới) và không gian nấu nướng, vệ sinh (Công trình phụ cũ). Đây là một giải pháp cực kỳ thông minh trong thiết kế nhà 1 tầng 3 phòng ngủ, vừa giúp gia chủ tiết kiệm một khoản chi phí lớn, vừa phù hợp với thói quen sinh hoạt “sạch gọn”, tránh mùi thức ăn ám vào nơi ngủ nghỉ của người Việt.

Dựa trên hiện trạng đất và công trình cũ đã có, Techhome đã quy hoạch mặt bằng nhà chính (nhà xây mới) như sau:
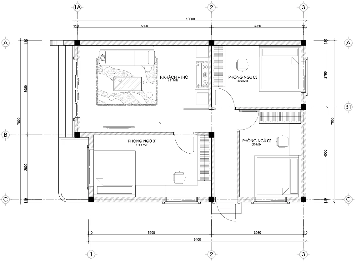
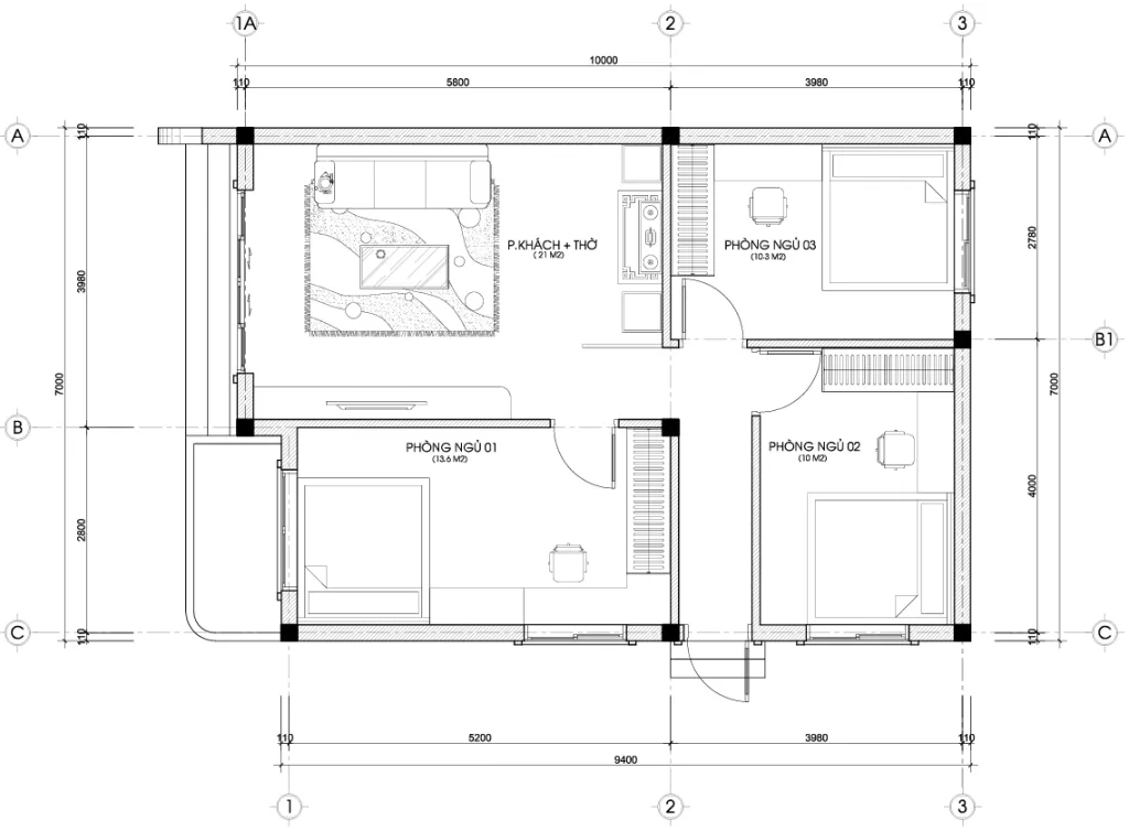
2.1. Không gian trung tâm: Phòng khách kết hợp Phòng thờ
Bước qua bậc tam cấp và sảnh chính rộng rãi là không gian phòng khách kết hợp phòng thờ. Trong bản thiết kế nhà 1 tầng 3 phòng ngủ này, Techhome không sử dụng vách ngăn cứng nhắc mà bố trí bàn thờ gia tiên ở vị trí trang trọng nhất, hướng thẳng ra cửa chính để đón vượng khí.
Việc tích hợp này giúp không gian sinh hoạt chung trở nên cực kỳ rộng rãi và thoáng đãng. Đây là nơi diễn ra các hoạt động tiếp khách, uống trà và sum họp gia đình mà không bị ảnh hưởng bởi sự ồn ào hay mùi khói bếp. Sàn nhà được lát gạch khổ lớn sáng màu, kết hợp với trần thạch cao giật cấp phẳng (đặc trưng của nhà mái bằng), tạo nên sự sang trọng và ấm cúng.
2.2. Bố trí 3 phòng ngủ: Sự yên tĩnh tuyệt đối
Vì đã đưa toàn bộ khu bếp và vệ sinh ra ngoài, diện tích sàn xây dựng được dành trọn vẹn cho không gian nghỉ ngơi. Điều này giúp các phòng ngủ trong mẫu thiết kế nhà 1 tầng 3 phòng ngủ này có diện tích rộng hơn so với các mẫu nhà khép kín thông thường cùng kích thước.
-
Phòng ngủ 01, 02 và 03: Được bố trí khoa học xung quanh trục giao thông chính hoặc chia về hai bên cánh gà của phòng khách.
-
Ưu điểm vượt trội: Vì không có hệ thống đường ống nước hay khu vệ sinh trong nhà chính, không gian phòng ngủ đạt được sự yên tĩnh tuyệt đối, không có tiếng ồn xả nước hay mùi ẩm mốc. Các phòng đều được trổ cửa sổ lớn hướng ra sân vườn, đảm bảo sự thông thoáng và khô ráo cho chăn ga gối đệm.
Đây là lối quy hoạch mặt bằng rất được ưa chuộng trong các thiết kế nhà 1 tầng 3 phòng ngủ tại các vùng ngoại ô, nơi ưu tiên chất lượng giấc ngủ và sức khỏe lên hàng đầu.
2.3. Kết nối thông minh với khu Bếp và WC cũ
Thách thức của Techhome là làm sao kết nối khối nhà mới xây và khối bếp/WC cũ (đã được cải tạo lại cho sạch đẹp) một cách thuận tiện nhất.
Trong bản thiết kế nhà 1 tầng 3 phòng ngủ của chị Trang, chúng tôi đã bố trí một cửa phụ ở bên hông hoặc phía sau nhà, kết nối với khu bếp cũ bằng một hành lang có mái che (mái kính hoặc mái tôn giả ngói).
-
Về công năng: Hành lang này giúp việc di chuyển đi nấu ăn hay đi vệ sinh không bị mưa nắng, tạo thành một luồng giao thông khép kín an toàn.
-
Về vệ sinh: Việc tách biệt này giúp nhà chính lúc nào cũng thơm tho, sạch sẽ. Khu vực Bếp và WC ở riêng biệt cũng dễ dàng cọ rửa, vệ sinh mạnh tay mà không sợ bắn nước làm hỏng sàn gỗ hay nội thất cao cấp trong nhà chính.
Giải pháp quy hoạch này chứng minh rằng: Một bản thiết kế nhà 1 tầng 3 phòng ngủ hoàn hảo không nhất thiết phải đập đi xây lại tất cả, mà là sự kết hợp hài hòa giữa cái mới và cái cũ để tối ưu lợi ích cho gia chủ.

3. Phối cảnh ngoại thất: Vẻ đẹp khỏe khoắn của hình khối
Khác biệt hoàn toàn với sự bề thế của mái Thái hay nét cổ điển của mái Nhật, mẫu thiết kế nhà 1 tầng 3 phòng ngủ mái bằng của chị Trang gây ấn tượng mạnh bởi những đường nét kiến trúc vuông vức, dứt khoát và đầy mạnh mẽ.
Kiến trúc hình khối – Ngôn ngữ của sự hiện đại
Mặt tiền ngôi nhà được thiết kế theo phong cách Hiện đại, tập trung vào các mảng khối bê tông đua ra thụt vào hợp lý để tạo chiều sâu cho thị giác. Techhome đã khéo léo sử dụng các mảng tường ốp gạch thẻ inax màu ghi xám kết hợp với màu sơn trắng chủ đạo, tạo nên sự tương phản sang trọng. Điểm nhấn của thiết kế nhà 1 tầng 3 phòng ngủ này chính là hệ mái sảnh đua rộng, vừa có tác dụng che nắng mưa, vừa tạo hình khối vững chãi cho mặt tiền.
Ưu điểm vượt trội của hệ Mái Bằng
Nhiều người e ngại nhà mái bằng sẽ nóng, nhưng với công nghệ xây dựng hiện đại của Techhome, vấn đề này đã được giải quyết triệt để. Trong bản thiết kế nhà 1 tầng 3 phòng ngủ này, phần mái được đổ bê tông cốt thép kiên cố, bên trên được xử lý chống thấm đa lớp và lát gạch chống nóng (gạch chữ U hoặc xốp EPS).
Đặc biệt, thiết kế mái bằng mang lại lợi thế cực lớn về không gian sử dụng. Gia đình chị Trang có thể tận dụng sân thượng để làm khu vực phơi đồ, trồng cây cảnh, làm khu BBQ ngoài trời hoặc đặt hệ thống thái dương năng, bồn nước cực kỳ gọn gàng và thẩm mỹ – điều mà các mẫu mái dốc khó làm được.
Không gian mở với vật liệu mới
Để bản thiết kế nhà 1 tầng 3 phòng ngủ trở nên thoáng đãng, Techhome sử dụng tối đa chất liệu kính cường lực cho hệ thống cửa sổ và cửa đi. Cửa chính sử dụng khung nhôm Xingfa nhập khẩu màu đen tuyền, kính hộp cách âm cách nhiệt.

4. Giải pháp kỹ thuật và Kết cấu cho nhà mái bằng
Để một bản thiết kế nhà 1 tầng 3 phòng ngủ từ giấy ra thực tế đảm bảo bền vững, Techhome áp dụng các tiêu chuẩn kỹ thuật khắt khe nhất.
Kết cấu chịu lực
Với nhà mái bằng, tải trọng dồn xuống móng là rất lớn do sàn mái bê tông cốt thép. Kỹ sư Techhome đã tính toán sử dụng móng băng (hoặc móng cọc tùy địa chất khu vực nhà chị Trang) để đảm bảo độ ổn định, chống lún nứt. Hệ cột dầm được bố trí hợp lý để giấu cột vào tường, giúp không gian nội thất vuông vức, thẩm mỹ.
Giải pháp chống thấm và chống nóng tuyệt đối
Đây là yếu tố “sống còn” của các mẫu thiết kế nhà 1 tầng 3 phòng ngủ mái bằng. Techhome quy định quy trình thi công nghiêm ngặt:
-
Bê tông mái được đầm dùi kỹ, bảo dưỡng tưới nước đủ ngày để tránh nứt dăm.
-
Quét lớp chống thấm gốc xi măng hoặc Sika Latex 2-3 lớp.
-
Thi công lớp gạch mát/xốp cách nhiệt và láng vữa bảo vệ tạo dốc thoát nước. Nhờ đó, ngôi nhà sẽ “đông ấm, hè mát” và không bao giờ gặp tình trạng thấm dột trần nhà.

5. Tại sao nên chọn thiết kế nhà 1 tầng 3 phòng ngủ Mái Bằng?
Năm 2025 dự báo sẽ là năm bùng nổ của kiến trúc mái bằng. Tại sao mẫu thiết kế nhà 1 tầng 3 phòng ngủ này lại được yêu thích đến vậy?
-
Tiết kiệm chi phí: So với mái Thái hay mái Nhật phải tốn chi phí cho hệ vì kèo, ngói lợp và nhân công lợp ngói phức tạp, nhà mái bằng giúp gia chủ tiết kiệm từ 15-20% chi phí phần mái.
-
Dễ dàng nâng tầng trong tương lai: Đây là ưu điểm lớn nhất. Nếu sau này gia đình chị Trang muốn xây thêm tầng 2, việc cải tạo trên nền tảng thiết kế nhà 1 tầng 3 phòng ngủ mái bằng sẽ đơn giản, nhanh chóng và ít tốn kém hơn nhiều so với việc phải dỡ bỏ mái ngói.
-
Vẻ đẹp trường tồn: Phong cách hiện đại ít bị lỗi mốt theo thời gian. Sự đơn giản luôn mang lại vẻ đẹp tinh tế và sang trọng.
-
Tận dụng diện tích mái: Có thể biến sân thượng thành vườn rau sạch, nơi uống trà chiều chill, tăng diện tích sử dụng cho ngôi nhà.

6. Hồ sơ thiết kế tại Techhome có gì đặc biệt?
Khi chị Trang nhận bộ hồ sơ thiết kế nhà 1 tầng 3 phòng ngủ từ Techhome, chị đã hoàn toàn bị thuyết phục bởi sự chi tiết và chuyên nghiệp.
-
Bộ hồ sơ đầy đủ: Gồm hơn 100 trang A3 bao gồm: Phối cảnh 3D ngoại thất, Kiến trúc chi tiết, Kết cấu tính toán chịu lực, Sơ đồ Điện – Nước – Viễn thông, và Bảng dự toán chi phí.
-
Dự toán chính xác: Techhome bóc tách khối lượng chi tiết từng bao xi măng, viên gạch. Điều này giúp gia chủ quản lý tài chính hiệu quả, không lo phát sinh khi xây dựng mẫu thiết kế nhà 1 tầng 3 phòng ngủ này.
-
Hỗ trợ giám sát: Kỹ sư Techhome sẽ có mặt tại các giai đoạn quan trọng (đổ móng, đổ trần) để nghiệm thu sắt thép, đảm bảo thợ làm đúng bản vẽ.

7. Khái toán chi phí xây dựng (Cập nhật 2025)
Techhome xin gửi tới quý khách hàng bảng khái toán tham khảo cho mẫu thiết kế nhà 1 tầng 3 phòng ngủ mái bằng diện tích sàn ~70m2:
-
Gói thiết kế: Techhome cung cấp đơn giá thiết kế cạnh tranh nhất thị trường: 100.000 VNĐ/m2
-
Phần thô và nhân công hoàn thiện: Với kết cấu mái bằng, đơn giá thi công thường mềm hơn, dao động khoảng 3.600.000đ – 4.000.000đ/m2. Tổng chi phí phần thô khoảng 250 – 280 triệu đồng.
-
Xây nhà trọn gói (Chìa khóa trao tay):
-
Gói tiết kiệm: Khoảng 500 – 550 triệu đồng.
-
Gói khá: Khoảng 600 triệu – 800 triệu đồng (Sử dụng nhôm Xingfa, gạch 80×80, thiết bị vệ sinh Toto/Inax).
-
Để hiện thực hóa bản thiết kế nhà 1 tầng 3 phòng ngủ với mức chi phí tối ưu nhất, Techhome luôn tư vấn gia chủ lựa chọn vật liệu thông minh, “tốt gỗ hơn tốt nước sơn”.
Lưu ý: Đây chỉ là mức chi phí ước tính. Để nhận được báo giá chính xác và chi tiết nhất cho công trình của bạn, vui lòng liên hệ trực tiếp với chúng tôi. Hoặc để tìm hiểu rõ hơn về tiêu chuẩn vật liệu xây dựng và các yếu tố ảnh hưởng đến chi phí, bạn có thể tham khảo thêm tại các bài viết chuyên sâu về vật liệu xây dựng cao cấp trên Wikipedia.

8. Lưu ý khi xây nhà 1 tầng mái bằng 3 phòng ngủ
Để sở hữu ngôi nhà hoàn hảo như gia đình chị Trang, bạn cần lưu ý:
-
Hệ thống thoát nước mái: Mái bằng có độ dốc nhỏ (2-5%), nên hệ thống thoát nước mưa phải được tính toán kỹ trong bản thiết kế nhà 1 tầng 3 phòng ngủ để tránh đọng nước gây thấm.
-
Màu sắc nội ngoại thất: Nên chọn các gam màu sáng, trung tính để làm nổi bật đường nét hiện đại và giúp không gian rộng hơn.
-
Lựa chọn nhà thầu: Nhà mái bằng nhìn đơn giản nhưng yêu cầu kỹ thuật đổ bê tông và chống thấm rất cao. Hãy chọn đơn vị uy tín như Techhome để gửi gắm niềm tin.
9. Kết luận
Mẫu thiết kế nhà 1 tầng 3 phòng ngủ mái bằng hiện đại của chị Trang là một giải pháp nhà ở lý tưởng: Thẩm mỹ cao, công năng tối ưu và chi phí hợp lý. Đây không chỉ là nơi che mưa nắng, mà còn là tổ ấm bình yên, nơi thể hiện gu thẩm mỹ tinh tế của gia chủ.
Nếu bạn đang sở hữu mảnh đất tương tự và yêu thích phong cách hiện đại, phóng khoáng, hãy để Techhome giúp bạn hiện thực hóa giấc mơ. Với kinh nghiệm thực hiện hàng trăm dự án thiết kế nhà 1 tầng 3 phòng ngủ trên toàn quốc, chúng tôi cam kết mang đến chất lượng vàng cho công trình của bạn.
Liên hệ ngay để nhận tư vấn và báo giá miễn phí!
CÔNG TY CỔ PHẦN KIẾN TRÚC VÀ XÂY DỰNG TECHHOME
-
Hotline 24/7: 0364.04.2222 – 0387.60.3333
- Xem thêm các dự án nổi bật khác của Techhome tại https://nhadeptechhome.vn/
