Review Chi Tiết Mẫu Nhà Phố 2 Tầng 1 Tum Hiện Đại 7.5x15m Của Anh Linh Tại Quảng Trị

Cùng Techhome “soi” từng ngóc ngách bản vẽ mẫu nhà phố 2 tầng 1 tum hiện đại của anh Linh tại Quảng Trị. Phân tích công năng thực tế, chi phí và giải pháp thi công tối ưu nhất 2025.


Mở đầu: Khi “gu” thẩm mỹ gặp bài toán công năng

Chuyện làm nhà, xây tổ ấm bao giờ cũng là chuyện đại sự, khiến bao nhiêu gia chủ phải mất ăn mất ngủ. Thời gian gần đây, anh em kiến trúc sư tại Techhome nhận được rất nhiều câu hỏi kiểu như: “Đất nhà anh bề ngang rộng nhưng sâu vừa phải, làm sao để xây nhà vừa thoáng, vừa đẹp mà không bị lỗi mốt?”. Câu trả lời mà chúng tôi thường tư vấn, và cũng là xu hướng “hot” nhất năm nay, chính là mẫu nhà phố 2 tầng 1 tum hiện đại.

Hôm nay, Techhome muốn giới thiệu đến mọi người một hồ sơ thiết kế “người thật việc thật”. Đó là công trình tâm huyết mà chúng tôi thực hiện cho gia đình anh Linh tại Quảng Trị. Cầm bộ bản vẽ trên tay, bạn sẽ hiểu vì sao mẫu nhà phố 2 tầng 1 tum hiện đại lại được lòng các gia chủ khó tính đến thế. Không hoa mỹ, cầu kỳ, ngôi nhà này tập trung vào sự tiện nghi, khoa học và cảm giác “sướng” khi sử dụng.

mẫu nhà phố 2 tầng 1 tum hiện đại

Tại sao mẫu nhà phố 2 tầng 1 tum hiện đại lại “lên ngôi”?

Trước khi đi sâu vào chi tiết nhà anh Linh, chúng ta hãy ngồi lại một chút để bàn về lý do tại sao kiến trúc này lại trở thành “quốc dân”. Khác với những ngôi nhà cao tầng chót vót gây mệt mỏi khi leo cầu thang, hay những căn nhà cấp 4 đôi khi thiếu không gian riêng tư, mẫu nhà phố 2 tầng 1 tum hiện đại giải quyết được bài toán cân bằng.

Thứ nhất, nó vừa đủ cho một gia đình 2-3 thế hệ cùng chung sống. Thứ hai, phần “tum” chính là chìa khóa vàng. Nó không chỉ là nơi che chắn cầu thang mà còn mở ra một khoảng trời riêng: làm sân phơi, phòng thờ, hay “chill” hơn là một khu vườn nướng BBQ cuối tuần. Và quan trọng nhất, chi phí xây dựng mẫu nhà phố 2 tầng 1 tum hiện đại thường “mềm” hơn nhiều so với xây trọn vẹn 3 tầng, giúp gia chủ tiết kiệm một khoản kha khá để đầu tư vào nội thất xịn sò.

mẫu nhà phố 2 tầng 1 tum hiện đại

Phối cảnh và ấn tượng đầu tiên về ngôi nhà của anh Linh

Nhìn vào bản vẽ định vị công trình, ngôi nhà của anh Linh nằm trên khuôn viên đất khá đẹp với kích thước xây dựng khoảng 7.5m x 15m. Đây là một kích thước “vàng” đối với nhà phố, cho phép các kiến trúc sư Techhome thỏa sức sáng tạo mà không bị gò bó như những căn nhà ống hẹp 3-4m.

Mặc dù chúng ta đang xem bản vẽ , nhưng qua các mặt đứng, có thể thấy rõ tinh thần của một mẫu nhà phố 2 tầng 1 tum hiện đại. Các đường nét kiến trúc gãy gọn, vuông vức, không có các chi tiết phào chỉ rườm rà kiểu cổ điển. Sự hiện đại thể hiện ở việc sử dụng các mảng khối đua ra thụt vào hợp lý để chắn nắng và tạo điểm nhấn.

Đặc biệt, hệ thống cửa cho thấy gia chủ rất chú trọng đến ánh sáng. Techhome đã bố trí hệ nhôm kính Xingfa cao cấp với các ô cửa sổ lớn. Điều này giúp ngôi nhà lúc nào cũng ngập tràn ánh sáng tự nhiên, xóa tan cảm giác bí bách thường thấy của nhà phố. Một mẫu nhà phố 2 tầng 1 tum hiện đại đúng nghĩa là phải “thở” được như thế.

mẫu nhà phố 2 tầng 1 tum hiện đại

“Mổ xẻ” mặt bằng công năng: Đỉnh cao của sự tiện nghi

Bây giờ, hãy cùng Techhome đi vào phần quan trọng nhất: “Ruột gan” của ngôi nhà. Để xem với mẫu nhà phố 2 tầng 1 tum hiện đại này, các KTS đã sắp xếp cuộc sống cho gia đình anh Linh như thế nào nhé.

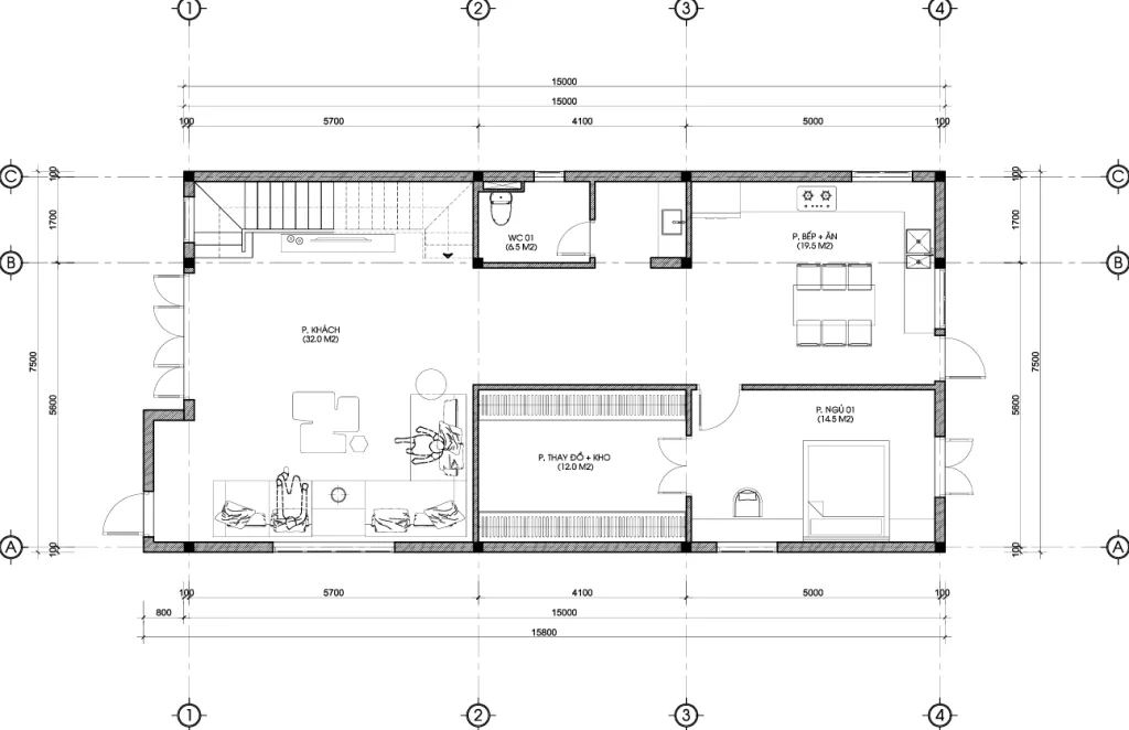
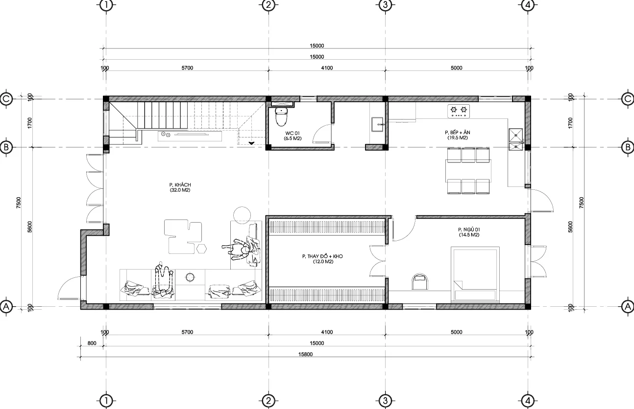
Tầng 1: Không gian kết nối

Bước vào từ sảnh chính là Phòng Khách siêu rộng với diện tích lên tới 32.0 m2. Phải nói là rất rộng! Với không gian này, anh Linh thoải mái bố trí bộ sofa chữ L kích thước lớn, kệ tivi hoành tráng mà vẫn còn dư chỗ cho trẻ con chạy nhảy. Đây chính là điểm cộng lớn của mẫu nhà phố 2 tầng 1 tum hiện đại có bề ngang 7.5m.

Tiếp đến là khu vực Bếp + Ăn (19.5 m2). Các bà nội trợ sẽ rất thích thiết kế này vì bếp được ngăn cách tương đối với phòng khách qua khu vực cầu thang, giúp hạn chế mùi thức ăn bay ra ngoài nhưng vẫn giữ được sự liên thông.

Điểm tinh tế nhất ở tầng 1 chính là Phòng ngủ 01 (14.5 m2) đi kèm với một phòng thay đồ + kho rộng tới 12.0 m2. Thiết kế này cực kỳ phù hợp cho ông bà lớn tuổi, hạn chế việc leo cầu thang, lại có không gian lưu trữ đồ đạc thoải mái. Một nhà vệ sinh chung (WC 01 – 6.5 m2) được đặt khéo léo, đảm bảo kín đáo và lịch sự.

mặt bằng mẫu nhà phố 2 tầng 1 tum hiện đại

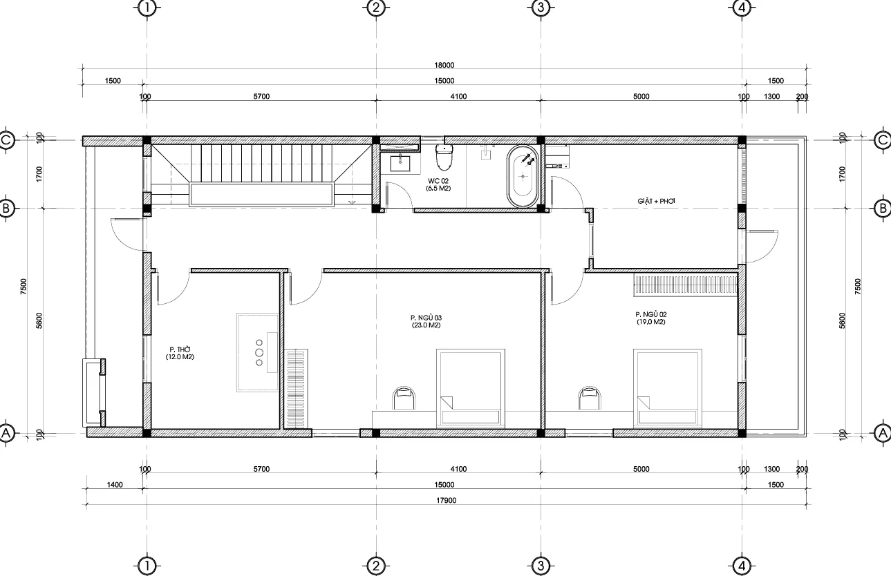
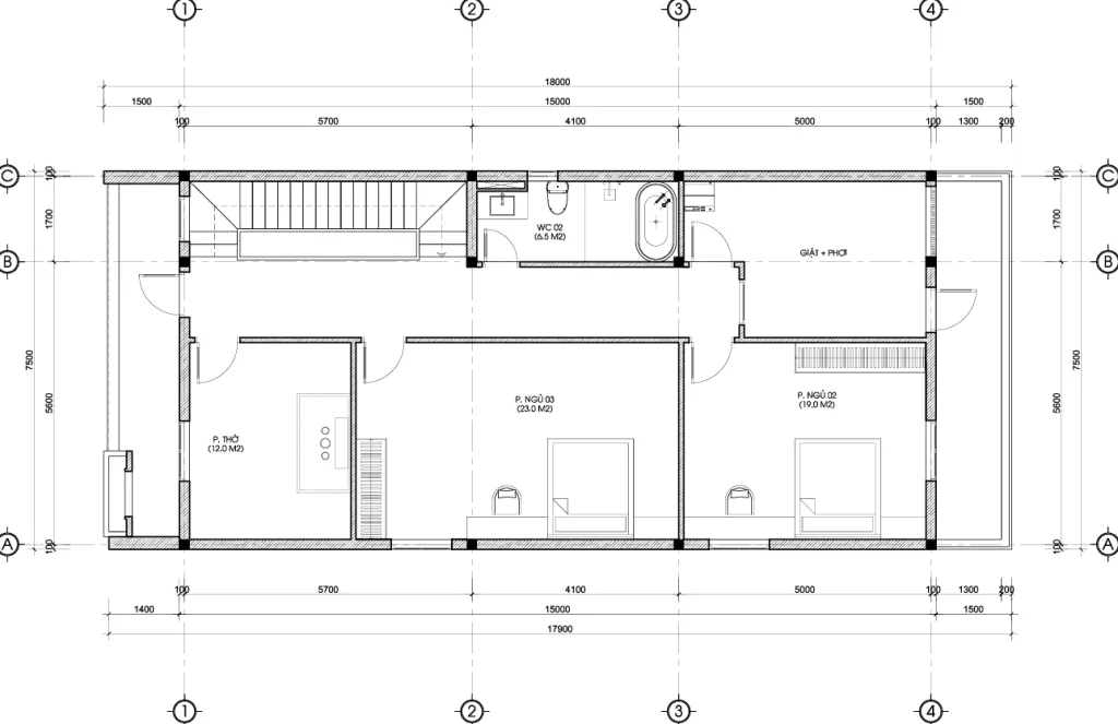
Tầng 2: Sự riêng tư tuyệt đối

Leo lên cầu thang (được ốp đá Granite sang trọng), chúng ta đến với không gian nghỉ ngơi chính. Mẫu nhà phố 2 tầng 1 tum hiện đại của anh Linh bố trí tầng 2 rất khoa học:

  • Phòng Thờ (12.0 m2): Được đặt ở vị trí trang trọng nhất phía trước nhà, có cửa mở ra ban công đón gió. Đây là nét văn hóa tâm linh không thể thiếu của người Việt.

  • Phòng Ngủ 02 (19.0 m2) và Phòng Ngủ 03 (23.0 m2): Hai phòng ngủ này cực kỳ rộng rãi. Đặc biệt phòng ngủ 03 diện tích 23m2 tương đương với một căn hộ studio mini, đủ để bố trí giường King size, bàn làm việc, tủ quần áo lớn.

  • Khu vực Giặt + Phơi: Được Techhome bố trí kín đáo phía sau, đảm bảo mặt tiền ngôi nhà luôn đẹp đẽ, không bị cảnh “quần áo bay phấp phới” làm mất mỹ quan – một lỗi rất hay gặp nếu thiết kế không chuẩn.

mặt bằng mẫu nhà phố 2 tầng 1 tum hiện đại

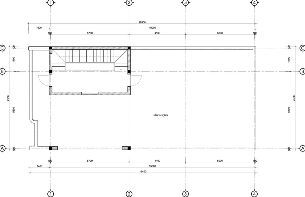
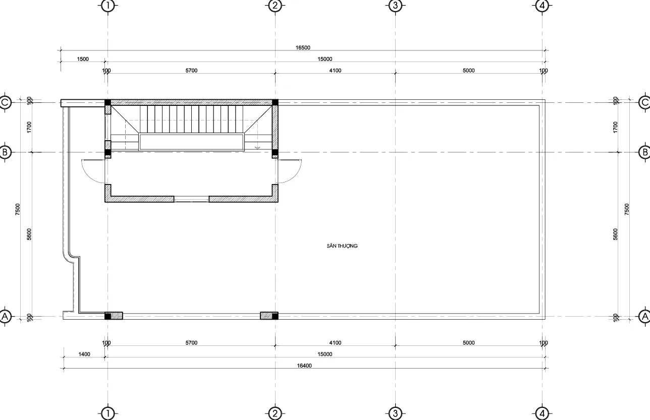
Tầng Tum: Khoảng trời mơ ước

Đây chính là mảnh ghép cuối cùng tạo nên sự hoàn hảo cho mẫu nhà phố 2 tầng 1 tum hiện đại. Tầng tum của nhà anh Linh bao gồm khu vực sảnh thang và một sân thượng (sân chơi) mênh mông.

Với diện tích sân thượng lớn được lát gạch chống trơn, anh Linh hoàn toàn có thể biến nơi đây thành một khu vườn trên cao, đặt vài chậu cây cảnh, một bộ bàn ghế đá để uống trà ngắm trăng, hoặc làm nơi tập thể dục buổi sáng. Chính khoảng không gian này giúp ngôi nhà trở nên “dễ thở” và gần gũi với thiên nhiên hơn hẳn.

Vật liệu và Kết cấu: Sự bền vững ẩn sau vẻ đẹp

Nhiều người nhìn vào ảnh 3D lung linh trên mạng rồi chốt đơn thiết kế, nhưng đến khi xây xong mới thấy nhà nhanh xuống cấp. Tại Techhome, chúng tôi quan niệm mẫu nhà phố 2 tầng 1 tum hiện đại đẹp thôi chưa đủ, mà còn phải “nồi đồng cối đá”.

Nhìn vào bản vẽ lát sàn, chúng tôi tư vấn anh Linh sử dụng gạch Granite vân đá kích thước lớn 800×800 cho phòng khách. Loại gạch này vừa bóng, vừa cứng, giúp không gian sang trọng hơn hẳn. Còn trong phòng ngủ, gạch 600×600 hoặc sàn gỗ là lựa chọn ấm cúng. Khu vực WC và sân thượng bắt buộc phải dùng gạch chống trơn trượt để đảm bảo an toàn.

Hệ thống trần đèn cũng được tính toán kỹ. Trần thạch cao khung xương chìm kết hợp đèn LED downlight và đèn hắt khe là “combo” chuẩn bài cho mẫu nhà phố 2 tầng 1 tum hiện đại. Nó tạo ra ánh sáng gián tiếp, dịu mắt và làm không gian trông cao ráo hơn.

Về cửa, cửa chính 4 cánh rộng 2.5m x 2.7m là điểm nhấn đón tài lộc. Việc sử dụng kính an toàn 8.38mm đảm bảo dù có va đập mạnh cũng không gây nguy hiểm cho người sử dụng.

Giá trị thực tế: Chi phí xây dựng là bao nhiêu?

Đây chắc chắn là câu hỏi mà các bạn đang tò mò nhất. Để sở hữu một mẫu nhà phố 2 tầng 1 tum hiện đại xịn sò như của anh Linh tại Quảng Trị, chi phí sẽ phụ thuộc vào nhiều yếu tố: giá vật liệu tại địa phương, thời điểm thi công và mức độ “chịu chơi” của gia chủ trong phần hoàn thiện.

Tuy nhiên, với kinh nghiệm của Techhome, mô hình nhà 2 tầng 1 tum là giải pháp kinh tế nhất. Bạn tiết kiệm được chi phí đổ trần bê tông cho toàn bộ tầng 3, giảm tải trọng lên móng, và thời gian thi công cũng nhanh hơn.

Thông thường, Techhome sẽ bóc tách dự toán chi tiết từng hạng mục: từ bao nhiêu khối cát, bao nhiêu viên gạch, đến từng cái bóng đèn… như trong hồ sơ kỹ thuật. Điều này giúp gia chủ kiểm soát dòng tiền, không lo phát sinh những khoản “trên trời rơi xuống”. Một mẫu nhà phố 2 tầng 1 tum hiện đại đẹp là phải đẹp cả trong bản vẽ lẫn trong bảng dự toán.

Lưu ý: Đây chỉ là mức chi phí ước tính. Để nhận được báo giá chính xác và chi tiết nhất cho công trình của bạn, vui lòng liên hệ trực tiếp với chúng tôi. Hoặc để tìm hiểu rõ hơn về tiêu chuẩn vật liệu xây dựng và các yếu tố ảnh hưởng đến chi phí, bạn có thể tham khảo thêm tại các bài viết chuyên sâu về vật liệu xây dựng cao cấp trên Wikipedia.

Tại sao anh Linh chọn Techhome cho dự án này?

Giữa hàng trăm đơn vị thiết kế, tại sao anh Linh lại “chọn mặt gửi vàng” cho Techhome để vẽ nên mẫu nhà phố 2 tầng 1 tum hiện đại này?

Câu trả lời nằm ở sự TỈ MỈ. Từ danh mục bản vẽ dày đặc, hay các bản vẽ chi tiết thang , chi tiết cửa. Chúng tôi không vẽ cho có. Chúng tôi vẽ để thợ xây nhìn vào là làm được ngay, không cần hỏi lại. Từng kích thước bậc thang, độ dốc thoát nước nhà vệ sinh đều được KTS tính toán dựa trên trải nghiệm thực tế.

Hơn nữa, Techhome hiểu rõ khí hậu và thổ nhưỡng miền Trung (Quảng Trị). Chúng tôi biết cách xử lý chống thấm cho tầng tum, biết chọn loại cửa nhôm nào chịu được gió Lào cát trắng. Đó là cái “tâm” và cái “tầm” của người làm nghề.

Kết luận

Ngôi nhà của anh Linh tại Quảng Trị là một ví dụ điển hình cho thấy: Không cần phải xây lâu đài nguy nga, chỉ cần một mẫu nhà phố 2 tầng 1 tum hiện đại được thiết kế bài bản, khoa học là đã quá đủ cho một cuộc sống viên mãn.

Bản vẽ đẹp là khởi đầu của một ngôi nhà đẹp. Nếu bạn cũng đang ấp ủ giấc mơ về một tổ ấm như thế, hay đơn giản là muốn tham khảo thêm về mẫu nhà phố 2 tầng 1 tum hiện đại, đừng ngần ngại liên hệ với Techhome. Chúng tôi luôn sẵn sàng lắng nghe và biến ý tưởng của bạn thành hiện thực, trên từng nét vẽ.

Bạn thích thiết kế này chứ? Hãy để lại bình luận hoặc gọi ngay cho Techhome để được tư vấn miễn phí nhé!


CÔNG TY CỔ PHẦN KIẾN TRÚC VÀ XÂY DỰNG TECHHOME

  • Hotline: 0364.04.2222 – 0387.60.3333

  • Xem thêm các dự án nổi bật khác của Techhome tại https://nhadeptechhome.vn/

Để lại một bình luận

Email của bạn sẽ không được hiển thị công khai. Các trường bắt buộc được đánh dấu *

    Vui lòng nhấn nút YÊU CẦU TƯ VẤN và đợi 1 - 2 giây đến khi thấy thông báo thành công

    YÊU CẦU TƯ VẤN