Khám Phá Mẫu Nhà Cấp 4 Mái Bằng Hiện Đại 13×10.6m tại Ứng Hòa – Tối Ưu Chi Phí và Công Năng

Chiêm ngưỡng mẫu nhà cấp 4 mái bằng hiện đại 13×10.6m của Anh Mưu, Ứng Hòa, Hà Nội, do Techhome thiết kế. Giải pháp kiến trúc tối ưu 3 phòng ngủ, phòng thờ, phòng khách 23m² và bếp 15.5m² chỉ trên một sàn, đảm bảo thẩm mỹ và tiện nghi vượt trội.

🏡 Giới Thiệu Chung Về Dự Án Nhà Cấp 4 Mái Bằng Hiện Đại 

Dự án Nhà ở Gia đình Anh Mưu tại Ứng Hòa – Hà Nội là một điển hình tiêu biểu cho xu hướng thiết kế nhà cấp 4 mái bằng hiện đại đang rất được ưa chuộng hiện nay. Với tổng diện tích xây dựng trên mặt bằng là 13m x 10.6m, công trình được đội ngũ kiến trúc sư Techhome tối ưu hóa không gian sống, tạo nên một tổ ấm vừa tiện nghi, sang trọng, vừa khoa học về mặt công năng.

Phong cách kiến trúc hiện đại được lựa chọn với các đường nét dứt khoát, hình khối vuông vắn, mạnh mẽ, cùng sự kết hợp hài hòa của các mảng vật liệu và màu sắc trung tính. Ngôi nhà không chỉ đáp ứng trọn vẹn nhu cầu sinh hoạt của gia đình mà còn thể hiện gu thẩm mỹ tinh tế của gia chủ. Công năng chính bao gồm 3 phòng ngủ (P. Ngủ 01: 14.0m², P. Ngủ 02: 12.5m², P. Ngủ 03: 13.5m²), Phòng Khách rộng 23.0m², Phòng Bếp 15.5m²Phòng Thờ 10.5m², tất cả được bố trí trên cùng một tầng.

Nhà Cấp 4 Mái Bằng Hiện Đại

✨ Phối Cảnh Ngoại Thất Ấn Tượng với Phong Cách Tối Giản

Phối cảnh mặt tiền của căn nhà cấp 4 mái bằng hiện đại chinh phục người nhìn bằng vẻ đẹp của sự tối giản và hiện đại. Ngôi nhà sử dụng tone màu chủ đạo là trắng tinh tế kết hợp với màu xám ghivân đá tối màu, tạo nên sự tương phản sang trọng, bền vững với thời gian .

  • Hình khối kiến trúc: Các khối hình học vuông vắn, phẳng như tường, mái và cổng rào được thiết kế liền mạch, tạo cảm giác bề thế và chắc chắn. Hệ mái bằng (cao độ +3.900) không chỉ tăng tính thẩm mỹ mà còn tối ưu khả năng chống nóng, thoát nước và có thể tận dụng lắp đặt thái dương năng.
  • Vật liệu ngoại thất: Sử dụng các mảng vật liệu ốp tường như gạch ốp lát vân đá hoặc đá granite ở các vị trí nhấn nhá (như cột và mảng tường cửa chính) để tăng độ bền và sự cao cấp. Hệ cửa đi chính kích thước lớn 2500x2700mm bằng nhôm hệ kính dày 8.38mm giúp lấy sáng tối đa và tạo sự thông thoáng cho không gian bên trong .
  • Thiết kế cổng và tường rào: Cổng chính kết hợp vật liệu gỗ hoặc vật liệu giả gỗ với khung kim loại, mang lại vẻ đẹp ấm cúng nhưng vẫn đảm bảo sự riêng tư và an ninh. Tường rào sử dụng các nan hoa văn bê tông hoặc gạch thông gió tạo điểm nhấn nghệ thuật, làm mềm đi sự cứng nhắc của tổng thể .
  • Ánh sáng và cảnh quan: Đèn tường trang trí được bố trí cân xứng ở mặt tiền, tạo hiệu ứng ánh sáng ấm áp vào buổi tối. Cây xanh cảnh quan được sắp xếp hợp lý dọc theo tường rào và chân tường, mang lại không gian xanh mát, cân bằng cho công trình nhà cấp 4 mái bằng hiện đại.

Nhà Cấp 4 Mái Bằng Hiện Đại

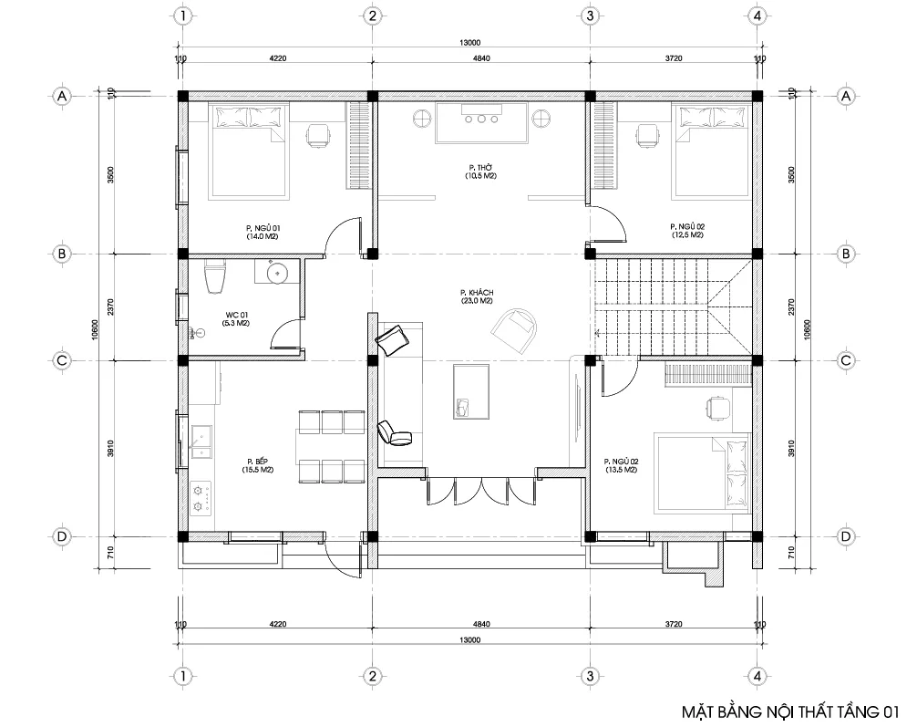
📐 Phân Tích Mặt Bằng Công Năng Tối Ưu Nhà Cấp 4 Mái Bằng Hiện Đại

Mặt bằng nội thất của dự án được thiết kế theo nguyên tắc tối ưu hóa diện tích và luồng giao thông, đảm bảo sự riêng tư và tiện nghi cho gia đình. Tổng kích thước xây dựng 13m x 10.6m được chia thành các khu vực chức năng khoa học:

  • Khu vực tiếp khách và sinh hoạt chung: Từ sảnh chính đi vào là Phòng Khách (23.0m²), là trung tâm kết nối các không gian khác. Nối liền với phòng khách là Phòng Thờ (10.5m²), được bố trí ở vị trí trang trọng, riêng biệt, thuận tiện cho việc cúng bái.
  • Khu vực Bếp và Ăn uống: Phòng Bếp (15.5m²) được đặt ở phía sau, gần cửa ra vào phụ bên hông, đảm bảo thông thoáng và tránh ám mùi ra phòng khách. Khu bếp và khu sinh hoạt chung có sự liên thông nhất định, tạo cảm giác mở và rộng rãi.
  • Khu vực nghỉ ngơi (3 Phòng ngủ): Bố trí 3 phòng ngủ tiện nghi:
    • Phòng Ngủ 01 (14.0m²)Phòng Ngủ 02 (12.5m²): Đặt ở góc sau, đảm bảo sự yên tĩnh và riêng tư tối đa.
    • Phòng Ngủ 03 (13.5m²): Đặt ở phía trước nhà.
  • Khu vực phụ trợ: Nhà vệ sinh chung (5.3m²) được bố trí tiện lợi ở vị trí trung tâm, dễ dàng tiếp cận từ các phòng chức năng.
  • Hệ thống sàn: Sàn nhà được lát bằng Gạch Granite màu theo chỉ định (KT 800×800), riêng khu vực vệ sinh lát Gạch Ceramic chống trơn (KT 300×300).

Sự sắp xếp này cho thấy sự tính toán kỹ lưỡng của Techhome nhằm mang lại sự tiện nghi, lưu thông hợp lý và tối ưu hóa diện tích sử dụng cho gia đình Anh Mưu.

Nhà Cấp 4 Mái Bằng Hiện Đại

🏗️ Đánh Giá về Kết Cấu và Vật Liệu Xây Dựng Tiêu Chuẩn

Dự án nhà cấp 4 mái bằng hiện đại của Anh Mưu sử dụng hệ kết cấu khung chịu lực phổ biến và ổn định.

  • Kết cấu: Công trình sử dụng Trần BTCT đổ tại chỗ (Bê tông cốt thép) đảm bảo độ bền vững và khả năng chống thấm cho phần mái bằng. Hệ thống cột và dầm được tính toán tải trọng kỹ lưỡng, đặc biệt là với kích thước nhà lớn 13m ngang.
  • Vật liệu hoàn thiện cao cấp:
    • Sàn: Lát Gạch Granite (800x800mm) cho khu vực chính, mang lại vẻ sang trọng và dễ vệ sinh.
    • Mặt tiền: Kết hợp Đá Granite ốp (theo chỉ định) tạo điểm nhấn thẩm mỹ và tăng tuổi thọ cho mặt đứng.
    • Hệ cửa: Sử dụng hệ nhôm kính dày 6.38mm – 8.38mm cao cấp, đảm bảo cách âm, cách nhiệt tốt. Chi tiết thép đặc bảo vệ (12x12mm hoặc 10x10mm) được thiết kế tham khảo, sơn tĩnh điện theo màu khung nhôm, vừa thẩm mỹ vừa tăng cường an ninh.
    • Nội thất WC: Trang bị Xí bệt men trắng, Lavabo men trắng, Sen tắm đứng, cùng Gạch Ceramic chống trơn (300x300mm) đáp ứng tiêu chuẩn vệ sinh, an toàn.

Việc lựa chọn các vật liệu xây dựng chất lượng cao, bền vững là cam kết của Techhome nhằm mang đến giá trị sử dụng lâu dài cho gia chủ.

Nhà Cấp 4 Mái Bằng Hiện Đại

🏆 Lợi Ích và Giá Trị Khi Tin Chọn TECHHOME

TECHHOME, với tên đầy đủ là Công ty Cổ phần Kiến trúc và Xây dựng Techhome, tự hào là đơn vị uy tín hàng đầu trong lĩnh vực thiết kế và thi công nhà ở gia đình. Khi chọn Techhome, khách hàng nhận được:

  • Thiết kế Tối ưu: Đội ngũ KTS và KS giàu kinh nghiệm, đảm bảo mỗi hồ sơ thiết kế kỹ thuật thi công là một giải pháp hoàn chỉnh, khoa học, phù hợp với nhu cầu sử dụng và ngân sách của gia chủ.
  • Minh bạch về Chi phí và Vật liệu: Mọi quy cách vật tư, từ kích thước cửa (D1: 2500x2700mm, D2: 900x2700mm, SW: 600x600mm) đến chi tiết lát sàn, đều được thể hiện rõ ràng trong hồ sơ, giúp gia chủ kiểm soát chất lượng và chi phí tuyệt đối.
  • Chất lượng Thi công Đảm bảo: Techhome cam kết quy trình thi công nghiêm ngặt, đúng kỹ thuật, sử dụng vật liệu chuẩn và đội ngũ thợ lành nghề, mang lại công trình bền vững, đẹp như bản vẽ 3D.
  • Hỗ trợ Kỹ thuật Toàn diện: Cung cấp dịch vụ hỗ trợ tư vấn kỹ thuật xây dựng qua Hotline 03640422220387603333, sẵn sàng giải đáp mọi thắc mắc trong suốt quá trình triển khai dự án.

💰 Nhà Cấp 4 Mái Bằng Hiện Đại có giá bao nhiêu?

Chi phí xây dựng nhà cấp 4 mái bằng hiện đại sẽ phụ thuộc vào nhiều yếu tố: thời điểm thi công, chất lượng vật liệu hoàn thiện, và hình thức khoán (khoán phần thô hay trọn gói).

Để có một ước tính chi phí chính xác cho căn nhà có diện tích xây dựng khoảng 138m² (13m x 10.6m) này, Techhome cần trao đổi chi tiết hơn về:

  • Vật liệu hoàn thiện: Lựa chọn gạch lát nền (Granite, Ceramic), thiết bị vệ sinh, hệ nhôm kính (hệ xingfa, Việt Pháp…), và các vật liệu ốp ngoại thất.
  • Địa chất công trình: Ảnh hưởng đến chi phí gia cố móng.
  • Yêu cầu nội thất: Nếu có thiết kế và thi công nội thất, chi phí sẽ được cộng thêm.

Tóm tắt các hạng mục chính ảnh hưởng đến chi phí:

Hạng Mục Chính Diện Tích (Mặt bằng Tầng 1) Vật Liệu Tham Chiếu
Tổng thể 13.0m x 10.6m = 137.8m² Bê tông cốt thép, tường gạch
Cửa Chính (D1) 2500x2700mm  Nhôm hệ Kính dày 8.38mm 
Cửa Sổ (S1) 1200x1800mm  Nhôm hệ Kính dày 6.38mm 
Sàn Hoàn Thiện Toàn bộ tầng 1 Gạch Granite 800×800 

Lưu ý: Đây chỉ là mức chi phí ước tính. Để nhận được báo giá chính xác và chi tiết nhất cho công trình của bạn, vui lòng liên hệ trực tiếp với chúng tôi. Hoặc để tìm hiểu rõ hơn về tiêu chuẩn vật liệu xây dựng và các yếu tố ảnh hưởng đến chi phí, bạn có thể tham khảo thêm tại các bài viết chuyên sâu về vật liệu xây dựng cao cấp trên Wikipedia.

Nhà Cấp 4 Mái Bằng Hiện Đại

📞 Kết Luận 

Nhà ở Gia đình Anh Mưu tại Ứng Hòa, Hà Nội, là minh chứng rõ ràng cho khả năng kiến tạo không gian sống lý tưởng, tối ưu công năng trên diện tích vừa phải của Techhome. Với vẻ đẹp hiện đại, tinh tế cùng mặt bằng bố trí 3 phòng ngủ, phòng thờ khoa học, đây chính là giải pháp nhà cấp 4 hoàn hảo cho nhiều gia đình Việt.

Đừng để ý tưởng về ngôi nhà mơ ước chỉ dừng lại trên bản vẽ! Hãy liên hệ ngay với CÔNG TY CỔ PHẦN KIẾN TRÚC VÀ XÂY DỰNG TECHHOME để được tư vấn miễn phí, nhận báo giá chi tiết và biến ngôi nhà mơ ước của bạn thành hiện thực.

Hotline Tư vấn 24/7: 0364042222 – 0387603333

Hãy để TECHHOME đồng hành cùng bạn trên hành trình xây dựng tổ ấm!

Xem thêm các dự án nổi bật khác của Techhome tại https://nhadeptechhome.vn/

Để lại một bình luận

Email của bạn sẽ không được hiển thị công khai. Các trường bắt buộc được đánh dấu *

    Vui lòng nhấn nút YÊU CẦU TƯ VẤN và đợi 1 - 2 giây đến khi thấy thông báo thành công

    YÊU CẦU TƯ VẤN