Có bao giờ bạn cảm thấy mệt mỏi giữa dòng người kẹt cứng ở thành phố, rồi chợt ước: “Giá mà có một mảnh đất ở quê, xây cái nhà nho nhỏ, trồng thêm rau, nuôi thêm gà”? Tôi tin là có. Đó không chỉ là ước mơ của riêng ai, mà là khát khao chung của cả một thế hệ đang tìm kiếm sự cân bằng. Và đó cũng chính là câu chuyện tôi muốn kể hôm nay về công trình mẫu nhà vườn mái Nhật của gia đình chị Thủy tại Hải Phòng.
Không cao tầng chót vót, không thang máy hiện đại, ngôi nhà này chỉ có 1 tầng thôi, nhưng nó gói ghém tất cả những gì bình yên nhất mà người ta gọi là “Nhà”.
1. Cơ Duyên Đến Với “Mẫu Nhà Vườn Mái Nhật” Của Chị Thủy
Ngày chị Thủy tìm đến Techhome, chị mang theo một nỗi băn khoăn mà tôi gặp ở rất nhiều khách hàng: “Em ơi, đất nhà chị ở Hải Phòng rộng đấy, nhưng chị sợ xây nhà 1 tầng thì nhìn nó… thấp bé quá, không sang. Mà xây 2 tầng thì gia đình ít người, leo cầu thang lại mỏi chân ông bà.”
Lúc đó, tôi đã cười và mở ngay cho chị xem bộ sưu tập mẫu nhà vườn mái Nhật mới nhất. Tôi bảo: “Chị ơi, xu hướng bây giờ là sống ngang, chứ không phải sống chồng tầng. Một ngôi nhà vườn trải dài, mái Nhật đua rộng, kết hợp sân vườn mới là đỉnh cao của sự hưởng thụ.”
Và thế là, bản thiết kế mã số 611HP ra đời. Một ngôi nhà không chỉ để ở, mà để sống từng khoảnh khắc.

2. Ngắm Nhìn Ngoại Thất: Vẻ Đẹp Của Sự Bình Yên
Nếu bạn đang hình dung mẫu nhà vườn mái Nhật là những ngôi nhà ngói đỏ truyền thống kiểu cũ, thì hãy nhìn vào ngôi nhà của chị Thủy. Nó mang một hơi thở hoàn toàn khác.
Màu Sắc Và Hình Khối
Điểm “ăn tiền” nhất của ngôi nhà này chính là hệ mái Nhật màu xanh than (Fuji) xếp lớp cực kỳ nghệ thuật. Mái Nhật có độ dốc vừa phải, không cao vút như mái Thái, nhưng lại mở rộng ra bốn phía, tạo cảm giác ngôi nhà như đang dang tay ôm lấy đất trời. Trên nền sơn trắng sứ tinh khôi, hệ mái xanh nổi bật lên như một nét chấm phá thanh lịch giữa vùng quê Hải Phòng.
Techhome đã khéo léo sử dụng các đường gờ phào chỉ lõm chạy dọc thân cột và tường. Nó không cầu kỳ như kiến trúc Pháp cổ, mà gãy gọn, hiện đại. Nhìn vào mặt tiền, bạn sẽ thấy sự vững chãi của hệ cột vuông, chân ốp đá thẻ màu xám ghi sạch sẽ. Đây là đặc trưng của mẫu nhà vườn mái Nhật hiện đại mang một chút tân cổ điển nhẹ nhàng: Đẹp nhưng phải Bền.
Sân Vườn – Linh Hồn Của Ngôi Nhà
Đã gọi là mẫu nhà vườn mái Nhật thì không thể thiếu… vườn. Dù diện tích xây dựng là 140m2, chúng tôi vẫn chừa lại những khoảng thở quý giá. Hệ thống bồn hoa được bố trí chạy dọc chân tường, ngay dưới khung cửa sổ. Hãy tưởng tượng mỗi sáng sớm, mở toang cửa sổ phòng ngủ, hương hoa nhài, hoa hồng xộc vào phòng, đánh thức bạn dậy thay vì tiếng còi xe inh ỏi. Đó là giá trị mà chung cư tiền tỷ cũng khó mà có được.

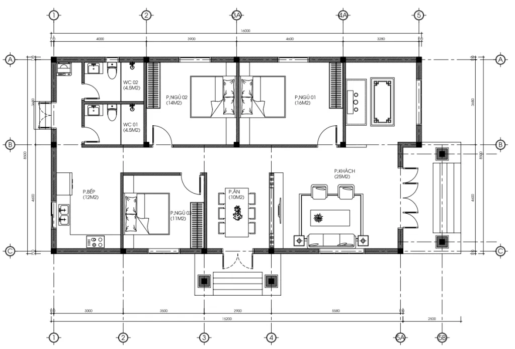
3. Khám Phá Công Năng: 140m2 Chứa Đựng Cả Thế Giới
Nhiều người hỏi tôi: “Nhà 1 tầng thì bố trí phòng ốc có bị bí không?”. Câu trả lời nằm ở bản vẽ mặt bằng của nhà chị Thủy. Với diện tích 140m2 (chiều ngang 8.5m, chiều sâu 16m), Techhome đã biến hóa mẫu nhà vườn mái Nhật này thành một không gian sống lý tưởng cho gia đình 4-6 thành viên.
Phòng Khách – Nơi Gắn Kết (25m2)
Bước qua sảnh chính với hệ cửa kính sang trọng, bạn sẽ lạc vào phòng khách rộng 25m2. Đây là trái tim của ngôi nhà. Trong thiết kế mẫu nhà vườn mái Nhật, phòng khách thường được đặt ở vị trí trung tâm, nhìn thẳng ra sân vườn để lấy view thoáng đãng nhất.
Phòng thờ được đặt cạnh phòng khách, hướng thẳng ra sân trước nhà, thiết kế chuẩn phong thuỷ. Trần nhà cao 4.1m giúp không khí đối lưu cực tốt, mùa hè vào nhà là thấy mát lịm tim gan.
Bếp Và Phòng Ăn – Giữ Lửa Yêu Thương (22m2)
Tôi cực kỳ tâm đắc cách xử lý không gian bếp của kiến trúc sư Techhome ở công trình này. Bếp nấu (12m2) và Phòng ăn (10m2) được đặt liên thông nhưng vẫn có sự phân tách nhẹ nhàng.
Đặc biệt, khu bếp có cửa phụ mở ra sảnh phụ bên hông. Chi tiết này nhỏ thôi nhưng cực kỳ tinh tế: Khi nhà có giỗ chạp hay đi chợ về, các mẹ có thể đi lối này vào bếp sơ chế, không cần xách túi lớn túi bé đi ngang qua mặt khách đang ngồi uống trà. Một mẫu nhà vườn mái Nhật chuẩn chỉnh là phải hiểu thói quen sinh hoạt của người Việt như thế.
03 Phòng Ngủ – Chốn Riêng Tư Ấm Áp
-
Phòng ngủ 01 (16m2): Rộng rãi nhất, thường dành cho ông bà hoặc vợ chồng gia chủ.
-
Phòng ngủ 02 (14m2): Vuông vắn, dễ kê giường tủ.
-
Phòng ngủ 03 (11m2): Nhỏ xinh, ấm cúng.
Tất cả các phòng ngủ trong mẫu nhà vườn mái Nhật này đều có cửa sổ lớn đón gió trời. Không còn cảnh phòng ngủ bí bách như những ngôi nhà ống phố thị. Ở đây, giấc ngủ của bạn được thiên nhiên vỗ về.
Khu Vệ Sinh
Hai nhà vệ sinh (4.5m2/phòng) được bố trí khéo léo ở cuối nhà, đảm bảo sự tiện lợi khi sử dụng, tế nhị, kín đáo.

4. Tại Sao “Mẫu Nhà Vườn Mái Nhật” Lại Là Khoản Đầu Tư Thông Minh?
Không phải ngẫu nhiên mà từ khóa mẫu nhà vườn mái Nhật lại hot rần rần trên các diễn đàn xây dựng. Dưới góc độ chuyên môn, tôi thấy có 3 lý do chính:
-
Tiết kiệm chi phí kết cấu: Xây nhà 1 tầng không cần ép cọc quá sâu hay làm móng quá khủng như nhà cao tầng. Điều này giúp gia chủ tiết kiệm được một khoản kha khá để đắp vào phần hoàn thiện nội thất.
-
Dễ dàng thi công: Thời gian thi công nhanh, ít rủi ro leo trèo cao. Nhà chị Thủy từ lúc động thổ đến lúc tân gia chỉ vỏn vẹn 3.5 tháng.
-
Không lỗi mốt: Vẻ đẹp của mẫu nhà vườn mái Nhật nằm ở sự tối giản và hài hòa. 10 năm hay 20 năm nữa, nhìn nó vẫn sang trọng, không bị “quê” như những kiểu nhà trang trí rườm rà.

5. Bảng Dự Toán Chi Phí Xây Dựng (Cập Nhật 2026)
Đây là phần các bạn mong chờ nhất đúng không? Để sở hữu một mẫu nhà vườn mái Nhật đẹp long lanh như nhà chị Thủy, bạn cần chuẩn bị ngân sách thế nào? Techhome xin đưa ra bảng bóc tách sơ bộ (mang tính tham khảo, giá thực tế tùy thuộc vào thời điểm và vật liệu bạn chọn):
| Hạng mục chi phí | Đơn giá tham khảo | Thành tiền (Dự kiến cho 140m2) |
| Thiết kế kiến trúc | 108.000đ/m2 | ~15.120.000đ |
| Thi công phần thô | 3.900.000đ/m2 | ~550.000.000đ |
| Nhân công hoàn thiện | 1.500.000đ/m2 | ~210.000.000đ |
| Vật tư hoàn thiện | (Gạch, sơn, thiết bị…) | ~250.000.000đ – 300.000.000đ |
| Phần mái ngói Nhật | (Khung kèo + Ngói) | ~130.000.000đ |
| Tổng cộng | ~ 1.1 tỷ – 1.2 tỷ đồng |
Với hơn 1 tỷ đồng, bạn có một cơ ngơi khang trang, sân vườn rộng rãi. So với việc mua một căn chung cư 70m2 ở thành phố, thì rõ ràng đầu tư vào mẫu nhà vườn mái Nhật ở quê là một lựa chọn “sướng” hơn nhiều về chất lượng sống.
Lưu ý: Đây chỉ là mức chi phí ước tính. Để nhận được báo giá chính xác và chi tiết nhất cho công trình của bạn, vui lòng liên hệ trực tiếp với chúng tôi. Hoặc để tìm hiểu rõ hơn về tiêu chuẩn vật liệu xây dựng và các yếu tố ảnh hưởng đến chi phí, bạn có thể tham khảo thêm tại các bài viết chuyên sâu về vật liệu xây dựng cao cấp trên Wikipedia.

6. Những Lưu Ý “Sống Còn” Khi Xây Nhà Vườn
Làm nghề lâu năm, tôi chứng kiến nhiều bác tự ý xây mẫu nhà vườn mái Nhật theo kiểu “nhìn ảnh rồi bảo thợ làm”, kết quả là… ối dời ơi. Tỷ lệ mái không chuẩn thì nhìn nhà bị lùn, tẹt. Chia phòng không chuẩn thì nhà bị nát vụn.
Vậy nên, lời khuyên chân thành của tôi:
-
Đừng tiếc tiền thiết kế: Bộ hồ sơ thiết kế của Techhome cho nhà chị Thủy dày cả trăm trang, chi tiết từng viên gạch, đường điện. Thợ chỉ việc làm theo, không bao giờ lo cãi nhau hay đập đi xây lại.
-
Chọn vật liệu mái chuẩn: Mái Nhật đẹp nhưng nếu chọn ngói kém chất lượng sẽ dễ bị bay màu hoặc thấm dột. Hãy ưu tiên ngói Fuji hoặc các dòng ngói tráng men cao cấp.
-
Chú trọng cốt nền: Vì là nhà 1 tầng, bạn nên tôn nền cao lên (như nhà chị Thủy làm ngũ cấp – 5 bậc) để ngôi nhà trông bề thế hơn và tránh nồm ẩm.

7. Phong Thủy Cho Gia Chủ Xây Nhà Vườn Mái Nhật
Người Việt ta xây nhà là chuyện hệ trọng cả đời. Với mẫu nhà vườn mái Nhật, yếu tố phong thủy càng được coi trọng.
-
Minh đường tụ thủy: Khoảng sân trước nhà rộng rãi chính là “Minh đường”, nơi tụ khí, đón tài lộc.
-
Tọa sơn hướng thủy: Nếu đất rộng, phía sau nhà nên trồng cây lớn làm điểm tựa, phía trước thấp thoáng.
-
Màu sắc: Màu mái ngói xanh than của nhà chị Thủy thuộc hành Thủy, rất hợp với gia chủ mệnh Thủy hoặc mệnh Mộc (Thủy sinh Mộc). Techhome luôn có chuyên gia phong thủy tư vấn màu sắc hợp mệnh cho từng gia chủ.
8. Tại Sao Chọn Techhome?
Giữa hàng ngàn công ty xây dựng, tại sao chị Thủy Hải Phòng lại “chốt đơn” với Techhome để gửi gắm mẫu nhà vườn mái Nhật tâm huyết này?
Đơn giản thôi: Chúng tôi làm thật.
-
Ảnh thiết kế sao, thi công lên y hệt vậy (thậm chí đẹp hơn).
-
Báo giá minh bạch, không cài cắm chi phí ẩn.
-
Đội ngũ kỹ sư giám sát “khó tính” hơn cả chủ nhà.
Chúng tôi hiểu rằng, mỗi viên gạch đặt xuống là mồ hôi công sức tích cóp cả đời của khách hàng. Vì thế, Techhome chăm chút cho từng mẫu nhà vườn mái Nhật như xây cho chính người thân của mình vậy.

9. Lời Kết
Bạn thấy đấy, hạnh phúc đôi khi không phải là sống trong tòa lâu đài dát vàng, mà là được trở về trong một ngôi mẫu nhà vườn mái Nhật bình yên, nơi có bữa cơm nóng hổi của mẹ, có tiếng cười của con thơ và có khoảng vườn xanh mát để tâm hồn được tưới tắm.
Nếu bạn cũng đang ấp ủ giấc mơ về một ngôi nhà như thế tại Hải Phòng hay bất cứ đâu, hãy để Techhome đồng hành cùng bạn.
Liên hệ ngay với chúng tôi để nhận tư vấn miễn phí:
-
CÔNG TY CỔ PHẦN KIẾN TRÚC VÀ XÂY DỰNG TECHHOME
-
Hotline 24/7: 0364.04.2222 / 0387.60.3333
-
Website: https://nhadeptechhome.vn/
Đừng chần chừ nữa, vì một mẫu nhà vườn mái Nhật đẹp như mơ đang chờ bạn hiện thực hóa!
