Chào các bác, các anh chị em bạn đọc của Nhà Đẹp Techhome!
Hôm nay, Techhome muốn kể cho mọi người nghe về một câu chuyện “làm nhà” rất đời, rất thực tại mảnh đất quan họ Bắc Ninh.
Đó là câu chuyện về ngôi nhà của chú Thời ở Hiệp Hòa. Một công trình mà khi hoàn thiện bản vẽ 3D và mặt bằng, cả đội ngũ Techhome và gia đình chú đều gật gù tâm đắc. Nếu các bác đang tìm kiếm một mẫu nhà 2 tầng mái Nhật vừa hiện đại, vừa ấm cúng lại chuẩn phong thủy cho gia đình 2-3 thế hệ, thì đây chính là bài viết dành cho các bác.
1. Cơ duyên với mảnh đất Hiệp Hòa và bài toán của Chú Thời
Chú Thời tìm đến Techhome vào một ngày trời đẹp. Chú bảo: “Đất nhà chú ở Hiệp Hòa, Bắc Ninh. Chú muốn làm cái nhà để an dưỡng, cũng là nơi con cháu đi xa về có chỗ quây quần. Đất thì rộng đấy, nhưng chú chỉ muốn xây vừa phải, tầm hơn 90m2 một sàn thôi, còn lại để sân vườn cho thoáng.”
Yêu cầu của chú rất rõ ràng nhưng cũng đầy trăn trở: Nhà phải sang nhưng không được phô trương, công năng phải tối ưu cho người lớn tuổi (có phòng ngủ tầng 1) và đặc biệt là phần mái phải đẹp, thoát nước tốt.
Sau khi khảo sát thực tế và lắng nghe tâm tư của chú, các kiến trúc sư (KTS) của Techhome đã chốt phương án: Mẫu nhà 2 tầng mái Nhật phong cách hiện đại. Tại sao lại là mái Nhật mà không phải mái Thái hay mái Bằng? Hãy cùng Techhome phân tích nhé.
| Thông tin công trình | Chi tiết |
| Chủ đầu tư |
Chú Thời |
| Địa điểm |
Hiệp Hòa – Bắc Ninh |
| Loại hình |
Nhà ở gia đình |
| Tổng diện tích thiết kế |
180 m2 |
| Diện tích tầng 1 |
94 m2 |
| Diện tích tầng 2 |
86 m2 |
| Đơn vị thiết kế |
Kiến trúc Techhome |

2. Vẻ đẹp ngoại thất: Sự cuốn hút của mẫu nhà 2 tầng mái Nhật
Nhìn vào phối cảnh 3D mặt tiền, các bác sẽ thấy ngay sự bề thế nhưng rất thanh thoát. Đây là đặc trưng lớn nhất của mẫu nhà 2 tầng mái Nhật.
Màu sắc và hình khối
Căn nhà khoác lên mình tông màu xanh ghi chủ đạo, kết hợp với màu trắng sứ ở các đường phào chỉ và cột trụ. Đây là gam màu cực kỳ bền dáng theo thời gian, không lo bị lỗi mốt hay ố màu như các tông màu nóng. Hệ cột vuông vức, khỏe khoắn ở sảnh chính tạo cảm giác vững chãi, nâng đỡ toàn bộ hệ mái hiên bên trên.
Điểm nhấn đắt giá nằm ở hệ cửa. Chúng tôi sử dụng cửa chính bằng gỗ tự nhiên pano đặc, chạm khắc hoa văn tròn đồng tâm tượng trưng cho sự sung túc, viên mãn. Trong khi đó, hệ thống cửa sổ và cửa ban công tầng 2 lại sử dụng nhôm kính xingfa cao cấp. Sự kết hợp này vừa giữ được nét truyền thống trang trọng, vừa lấy được tối đa ánh sáng tự nhiên vào nhà – một yếu tố sống còn của các mẫu nhà 2 tầng mái Nhật hiện đại.
Hệ mái Nhật “Quốc dân”
Nhìn từ trên cao xuống, hệ mái Nhật màu xanh than thực sự là “vương miện” của ngôi nhà. Mái Nhật có độ dốc vừa phải (thấp hơn mái Thái), mở rộng ra các hướng, giúp thoát nước mưa nhanh chóng, chống nóng hiệu quả vào mùa hè miền Bắc.
Với mẫu nhà 2 tầng mái Nhật của chú Thời, Techhome đã khéo léo thiết kế thêm phần giàn lam bê tông giả gỗ ở ban công tầng 2. Chỗ này sau này chú Thời có thể treo vài giỏ lan, đặt bộ bàn trà nhỏ, chiều chiều ra ngắm cảnh làng quê Hiệp Hòa thì còn gì bằng.

3. “Mổ xẻ” công năng: Đỉnh cao của sự bố trí khoa học
Một ngôi nhà đẹp không chỉ để ngắm, mà quan trọng nhất là phải ĐỂ Ở. Sự tiện dụng, luồng di chuyển (giao thông) trong nhà mới là thứ quyết định chất lượng cuộc sống. Techhome mời các bác cùng “soi” chi tiết mặt bằng công năng nhé.
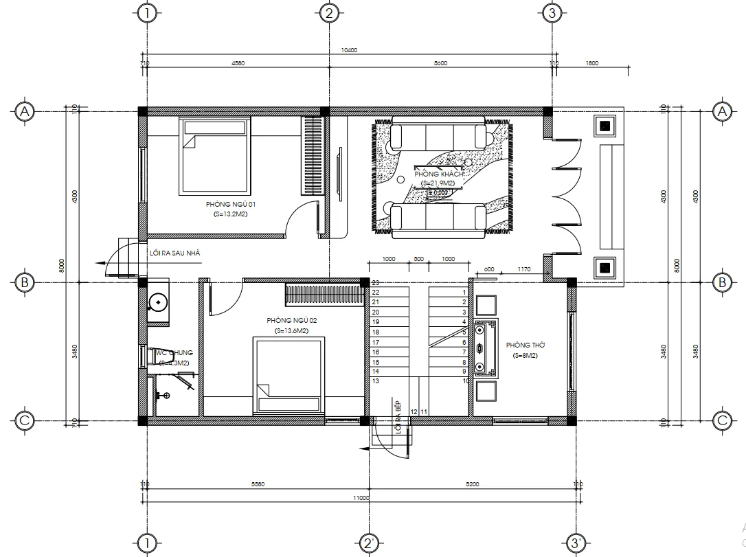
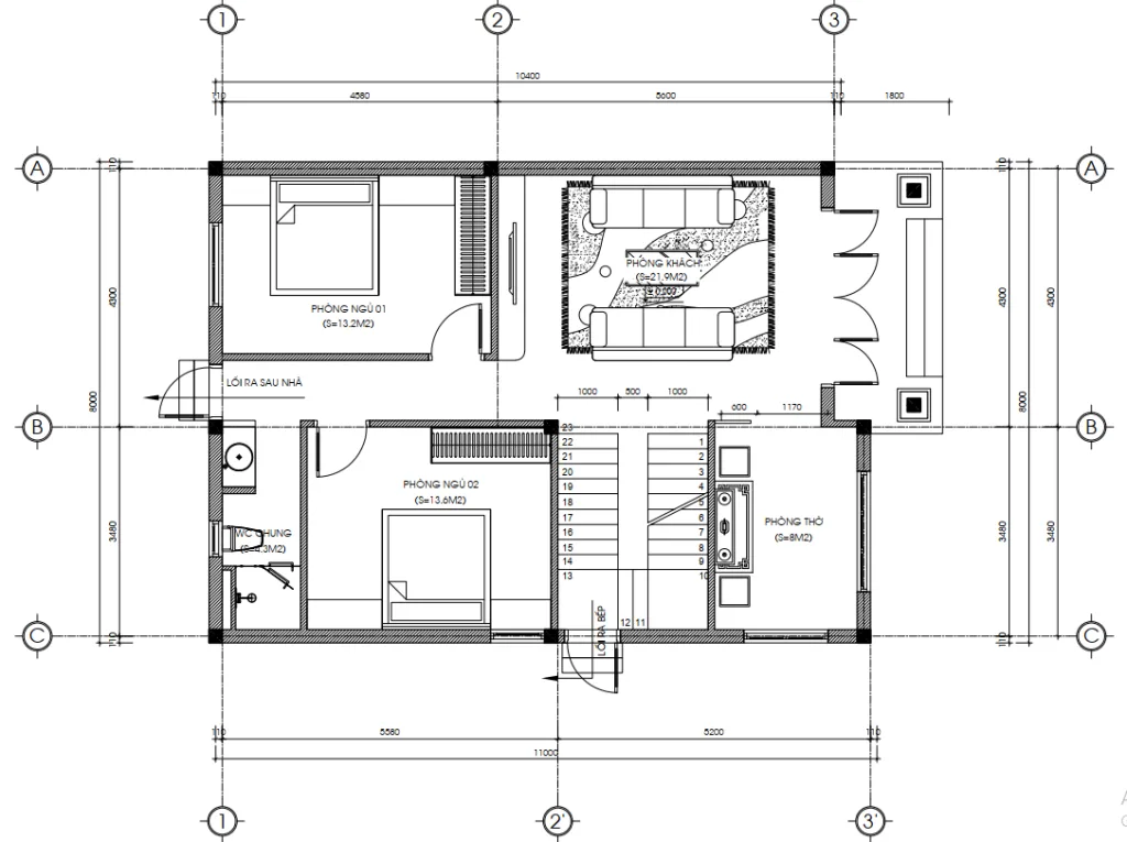
Tầng 1: Không gian kết nối và nghỉ ngơi cho người lớn tuổi
Tổng diện tích sàn tầng 1 là 94m2 , chiều cao tầng là 3,9m với 23 bậc cầu thang. Đây là chiều cao lý tưởng để nhà luôn thoáng mát.
-
Phòng khách (21.9m2): Ngay từ sảnh chính bước vào là phòng khách rộng rãi. Đây là bộ mặt của ngôi nhà, nơi chú Thời tiếp khách, uống trà.
-
Phòng thờ (8m2): Một điểm đặc biệt trong thiết kế này là phòng thờ được đặt ngay tầng 1, cạnh phòng khách. Với các gia đình ở nông thôn hoặc có người lớn tuổi, việc đặt bàn thờ ở tầng 1 cực kỳ thuận tiện cho việc hương khói, cúng giỗ, không phải leo trèo lên tầng cao. Đây là tư duy thiết kế rất nhân văn trong mẫu nhà 2 tầng mái Nhật này.
-
02 Phòng ngủ (13.2m2 và 13.6m2): Tầng 1 được bố trí tới 2 phòng ngủ. Điều này cực kỳ hợp lý với gia đình chú Thời. Ông bà lớn tuổi không tiện leo cầu thang sẽ sinh hoạt hoàn toàn ở tầng 1. Các phòng đều có cửa sổ thoáng khí.
-
Khu vực cầu thang và lối ra bếp: Cầu thang được đặt ở trung tâm, tận dụng gầm cầu thang làm kho hoặc trang trí. Có lối đi riêng ra khu vực bếp phụ phía sau, giúp mùi thức ăn không bay ngược lên phòng khách.
-
Vệ sinh chung (4.3m2): Nhỏ gọn, kín đáo, phục vụ chung cho cả tầng.

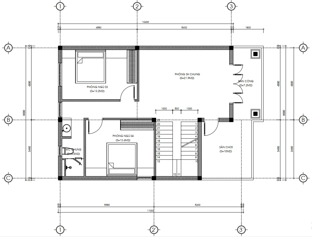
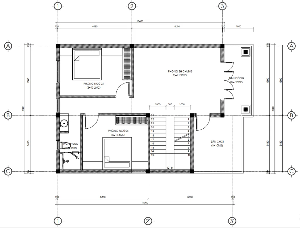
Tầng 2: Không gian riêng tư và thư giãn
Lên đến tầng 2 (diện tích 86m2 ), không gian mở ra sự thư thái hơn.
-
Phòng sinh hoạt chung (21.9m2): Nằm ngay vị trí trung tâm, đối diện cầu thang. Đây sẽ là nơi cả nhà hát karaoke, xem phim hoặc con cháu vui đùa mà không ảnh hưởng đến ông bà ở tầng 1. Một mẫu nhà 2 tầng mái Nhật lý tưởng luôn cần không gian đệm này để gắn kết thành viên.
-
02 Phòng ngủ (13.2m2 và 13.6m2): Kích thước tương đương tầng 1, dành cho con cháu hoặc khách đến chơi ngủ lại.
-
Sân chơi (10m2) và Ban công (7.2m2): Đây là khu vực “chill” nhất nhà. Sân chơi có mái che kính lấy sáng, bên dưới đặt bộ bàn ghế mây. Tưởng tượng sáng sớm mùa thu Bắc Ninh, ra đây hít thở không khí trong lành thì bao nhiêu mệt mỏi tan biến hết.

4. Tại sao Mẫu Nhà 2 Tầng Mái Nhật lại là xu hướng bền vững?
Nhiều bác hỏi Techhome: “Sao giờ đi đâu cũng thấy người ta xây mái Nhật?”. Với tư cách là chuyên gia trong nghề, tôi xin giải đáp mấy lý do khiến mẫu nhà 2 tầng mái Nhật trở thành “quốc dân”:
-
Tiết kiệm chi phí hơn mái Thái: Mái Nhật không yêu cầu độ dốc quá lớn, thi công đỡ tốn vật liệu ngói và nhân công hơn, mà vẫn đảm bảo thẩm mỹ sang trọng.
-
Phù hợp khí hậu Việt Nam: Hệ mái đua ra rộng giúp che nắng che mưa tốt cho tường nhà, hạn chế tình trạng thấm dột hay nứt tường do thời tiết khắc nghiệt.
-
Tối ưu không gian: Khác với biệt thự cổ điển cầu kỳ, mẫu nhà 2 tầng mái Nhật thiên về hình khối vuông vức, tận dụng tối đa diện tích đất để làm phòng ốc, không có góc chết.
-
Dễ phối cảnh quan: Dù các bác có mảnh đất rộng ở quê hay lô phố hẹp, mái Nhật vẫn dễ dàng “nhập gia tùy tục”, kết hợp sân vườn tiểu cảnh rất đẹp.

5. Góc chuyên gia: Những lưu ý “vàng” khi xây nhà mái Nhật
Là người trực tiếp tham gia tư vấn cho hàng trăm công trình, tôi muốn chia sẻ thêm vài kinh nghiệm xương máu để các bác có được một mẫu nhà 2 tầng mái Nhật ưng ý nhất:
-
Tỷ lệ độ dốc mái: Mái Nhật đẹp nhất ở độ dốc khoảng 25-30 độ. Nếu dốc quá nhìn sẽ giống mái Thái, còn bằng quá thì thoát nước kém. Cái này KTS của Techhome sẽ tính toán kỹ lưỡng trên bản vẽ kỹ thuật thi công.
-
Lựa chọn vật liệu ngói: Nên dùng ngói sóng tráng men cao cấp (như màu xanh than nhà chú Thời). Loại này bền màu, tự làm sạch khi mưa xuống, giúp mái nhà lúc nào cũng như mới.
-
Phong thủy phòng thờ: Như nhà chú Thời, phòng thờ tầng 1 cần chú ý hướng bàn thờ phải hợp mệnh gia chủ và đặc biệt là không được nằm dưới nhà vệ sinh của tầng 2. Trong bản vẽ này, Techhome đã tính toán để WC tầng 2 nằm lệch vị trí, đảm bảo sự tôn nghiêm.
-
Hệ thống điện nước: Với mẫu nhà 2 tầng mái Nhật, nên đi ghen điện âm tường và có sơ đồ hoàn công rõ ràng để sau này sửa chữa không phải đục phá.

6. Dự toán chi phí xây dựng (Tham khảo 2026)
Đây chắc chắn là phần các bác quan tâm nhất. Để xây dựng hoàn thiện một mẫu nhà 2 tầng mái Nhật như nhà chú Thời (Tổng diện tích sàn 180m2 ), mức đầu tư sẽ dao động tùy thuộc vào vật liệu hoàn thiện.
Lưu ý: Đây là bảng dự toán tham khảo dựa trên mức giá thị trường chung tại thời điểm hiện tại. Giá có thể thay đổi tùy khu vực và thời điểm khởi công.
| Hạng mục | Đơn giá tham khảo (VNĐ/m2) | Thành tiền ước tính (VNĐ) |
| Xây thô & Nhân công | 3.800.000 – 4.200.000 | ~ 680tr – 760tr |
| Gói hoàn thiện cơ bản | 5.500.000 – 6.000.000 | ~ 990tr – 1.1 tỷ |
| Gói hoàn thiện khá | 6.500.000 – 7.500.000 | ~ 1.2 tỷ – 1.35 tỷ |
Chi tiết gói hoàn thiện bao gồm:
-
Gạch ốp lát cao cấp.
-
Sơn nước chính hãng (Dulux/Jotun).
-
Hệ thống cửa (Gỗ Lim Nam Phi cửa chính, Xingfa cửa sổ).
-
Thiết bị vệ sinh (Inax/Toto).
-
Hệ thống điện chiếu sáng (Rạng Đông/Panasonic).
-
Ngói lợp khung kèo thép nhẹ.
Với mẫu nhà 2 tầng mái Nhật này, Techhome khuyên các bác nên chọn gói “Hoàn thiện khá” để đảm bảo ngôi nhà không chỉ đẹp mã bên ngoài mà còn bền bỉ, sang trọng từ bên trong. “Tiền nào của nấy”, làm nhà là việc cả đời, cố thêm một chút để dùng đồ tốt thì 10-20 năm sau vẫn yên tâm.
Để tìm hiểu rõ hơn về tiêu chuẩn vật liệu xây dựng và các yếu tố ảnh hưởng đến chi phí, bạn có thể tham khảo thêm tại các bài viết chuyên sâu về vật liệu xây dựng cao cấp trên Wikipedia.

7. Quy trình làm việc tại Techhome – Nơi gửi gắm niềm tin
Để ra được một bộ hồ sơ chất lượng như nhà chú Thời, Techhome áp dụng quy trình 6 bước chặt chẽ:
-
Tiếp nhận thông tin: Lắng nghe mong muốn, diện tích đất, tuổi gia chủ.
-
Khảo sát hiện trạng: KTS về tận nơi đo đạc, xem hướng gió, hướng nắng (Techhome đã về tận Hiệp Hòa, Bắc Ninh ).
-
Lên phương án mặt bằng: Bố trí công năng. Giai đoạn này chỉnh sửa đến khi khách ưng ý mới thôi.
-
Dựng phối cảnh 3D: Giúp gia chủ hình dung rõ nét ngôi nhà tương lai.
-
Triển khai hồ sơ kỹ thuật: Kết cấu, điện nước, dự toán chi tiết.
-
Giám sát tác giả: Hỗ trợ kỹ thuật từ xa hoặc trực tiếp trong quá trình thi công qua Hotline 0364042222.
Chúng tôi hiểu rằng, mỗi mẫu nhà 2 tầng mái Nhật được xây lên là bao nhiêu mồ hôi công sức tích cóp của gia chủ. Vì vậy, Techhome làm việc không chỉ bằng cái đầu của người làm kỹ thuật mà còn bằng cái tâm của người xây tổ ấm.

8. Lời kết
Ngôi nhà của chú Thời tại Bắc Ninh là minh chứng rõ nét cho xu hướng thiết kế nhà ở hiện đại: Đơn giản nhưng tinh tế, tối ưu công năng và đậm chất Á Đông. Nếu bạn đang sở hữu một mảnh đất tương tự và yêu thích mẫu nhà 2 tầng mái Nhật, đừng ngần ngại biến ý tưởng thành hiện thực.
Không có ngôi nhà nào là hoàn hảo nhất, chỉ có ngôi nhà phù hợp nhất với lối sống của gia đình bạn. Hãy để Techhome giúp bạn tìm ra mảnh ghép phù hợp đó.
Cảm ơn các bác đã chịu khó đọc đến những dòng cuối cùng này. Hy vọng bài viết đã mang lại những thông tin hữu ích và thực tế.
CÔNG TY CỔ PHẦN KIẾN TRÚC VÀ XÂY DỰNG TECHHOME
-
Địa chỉ: B1.1 LK18 Ô 3 – KĐT Thanh Hà – Cienco 5 – Thanh Oai- Hà Nội.
-
Hotline hỗ trợ kỹ thuật: 0364.04.2222 – 0387.60.3333
-
Website: https://nhadeptechhome.vn/
Bạn có muốn Techhome tư vấn miễn phí về phong thủy và dự toán chi phí cho mảnh đất của mình ngay hôm nay không? Hãy để lại bình luận hoặc gọi ngay cho chúng tôi nhé!
