Khi “đơn giản” là đỉnh cao của sự tinh tế
Chào mọi người, lại là Techhome đây!
Hôm nay, Techhome muốn kể cho các bạn nghe về một mẫu nhà 2 tầng đẹp, mộc mạc nhưng đầy khí chất tại mảnh đất nắng gió Nghi Xuân, Hà Tĩnh. Đây là “đứa con tinh thần” mà Techhome vừa bàn giao hồ sơ cho gia đình anh Huệ – một người anh rất kỹ tính nhưng cũng cực kỳ tình cảm.
Trong suốt hành trình làm nghề, câu hỏi Tôi nhận được nhiều nhất không phải là “làm nhà này hết bao nhiêu tỷ”, mà là “làm sao để có một mẫu nhà 2 tầng đẹp, vừa túi tiền mà 10 năm sau nhìn lại vẫn thấy sang?”. Câu trả lời nằm ngay trong chính ngôi nhà của anh Huệ mà Techhome sắp “bóc tách” dưới đây.
1. Câu chuyện đằng sau bản vẽ tại Nghi Xuân
Anh Huệ tìm đến Techhome vào một ngày trời khá oi ả. Anh bảo: “Đất nhà anh bề ngang tầm 6m, dài sâu, anh muốn xây cái nhà cho vợ con ở thoải mái, nhưng đừng rườm rà phào chỉ. Anh thích cái gì nó vuông vức, hiện đại, quan trọng là phải thoáng”.
Thực sự, đề bài này không khó, nhưng để tạo ra một mẫu nhà 2 tầng đẹp đúng nghĩa trên khuôn đất phố (kích thước xây dựng khoảng 6x12m cả sảnh) thì lại cần sự khéo léo trong bố trí không gian.
Các kiến trúc sư của Techhome đã phải họp để chốt phương án mặt tiền. Làm sao để với chi phí hợp lý nhất, anh Huệ vẫn sở hữu được một mẫu nhà 2 tầng đẹp lung linh nhất xóm? Và kết quả là bản phối cảnh 3D mà các bạn đang thấy: Hiện đại – Khoẻ khoắn – Và cực kỳ “Cuốn”.

2. “Soi” kỹ ngoại thất: Vẻ đẹp đến từ những khối hình
Nhìn vào phối cảnh mặt tiền, bạn sẽ thấy ngay lý do tại sao đây được gọi là mẫu nhà 2 tầng đẹp dẫn đầu xu hướng năm nay.
-
Màu sắc chủ đạo: Chúng tôi sử dụng tone màu trắng sứ làm nền, điểm xuyết bằng màu xám của đá ốp tầng 1 và màu nâu gỗ của trần ban công. Sự kết hợp này tạo nên cảm giác vừa sạch sẽ, vừa ấm cúng. Tôi hay nói vui với khách là màu này “bền dáng”, bụi bẩn một chút cũng khó thấy, mà nhìn vào là thấy sang ngay.
-
Hình khối kiến trúc: Tầng 2 được thiết kế đua ra nhẹ nhàng tạo thành một khối hộp chữ C ôm trọn ban công. Đây là thủ pháp kiến trúc giúp ngôi nhà trông rộng hơn so với kích thước thật. Lan can sắt sơn tĩnh điện thanh mảnh thay vì con tiện bê tông nặng nề giúp mặt tiền thanh thoát hơn hẳn.
-
Hệ thống cửa: Toàn bộ cửa sử dụng nhôm kính Xingfa Quảng Đông. Với một mẫu nhà 2 tầng đẹp theo phong cách hiện đại, cửa kính là “linh hồn”. Nó giúp lấy sáng tối đa cho phòng ngủ và phòng khách, đặc biệt là ở những vùng đất nhiều nắng như Hà Tĩnh.

3. Khám phá công năng: “Nhỏ nhưng có võ”
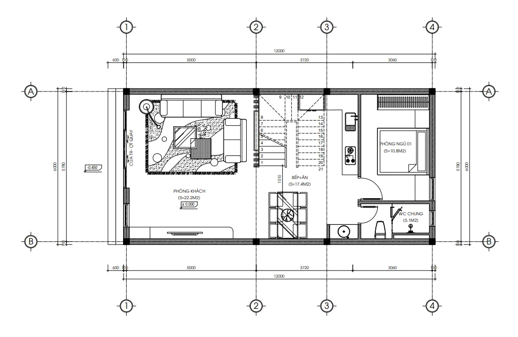
Nhiều người lầm tưởng muốn có mẫu nhà 2 tầng đẹp thì đất phải rộng mênh mông. Sai lầm nhé! Nhà anh Huệ có diện tích sàn tầng 1 khoảng 75m2 và tầng 2 là 80m2, nhưng công năng thì miễn bàn. Cùng Techhome đi tour một vòng nhé:
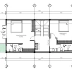
Tầng 1: Không gian kết nối (Cao 3,9m)
Bước qua sảnh chính ốp đá sang trọng là phòng khách rộng hơn 22m2. Đây là nơi “bộ mặt” của gia chủ được thể hiện. Techhome thiết kế phòng khách liên thông với khu vực cầu thang, tạo độ sâu hun hút cho ngôi nhà.
Kế đến là Bếp ăn (khoảng 17.4m2). Các bà nội trợ chắc chắn sẽ mê khu này vì nó kín đáo nhưng vẫn thoáng. Một phòng ngủ nhỏ (10.8m2) được bố trí cuối nhà dành cho người lớn tuổi , kế bên là WC chung tiện lợi. Cách bố trí này là tiêu chuẩn vàng cho một mẫu nhà 2 tầng đẹp và tiện dụng.

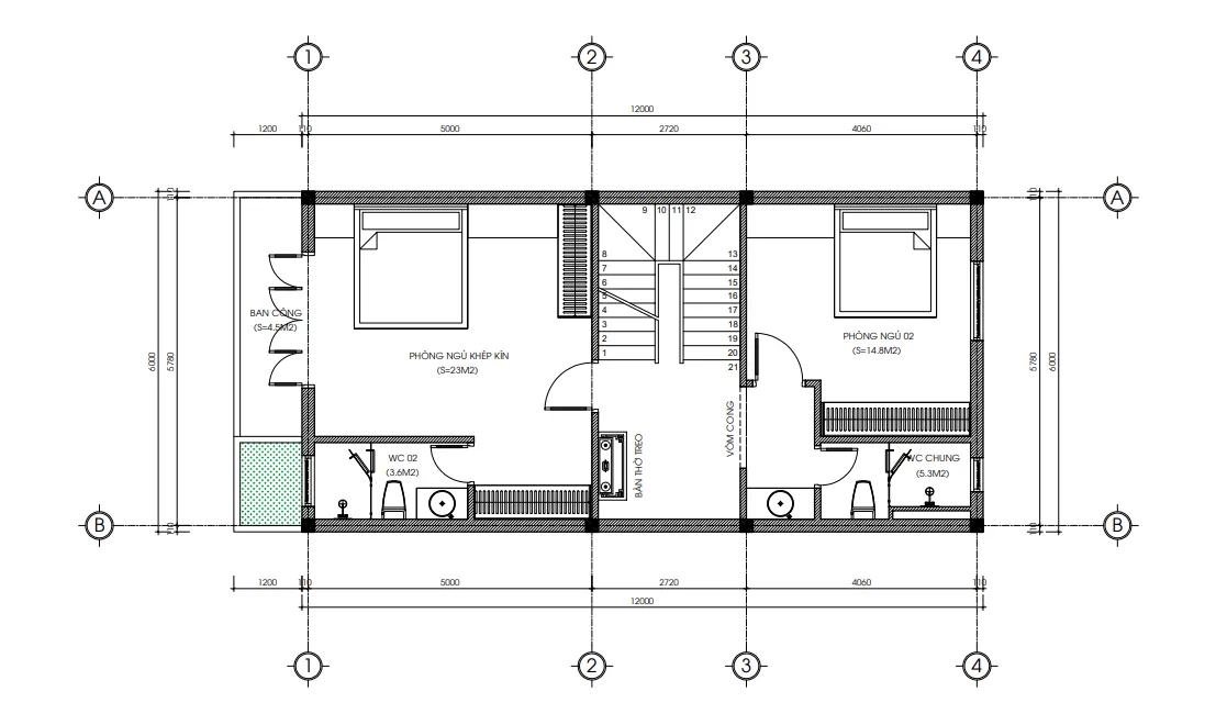
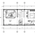
Tầng 2: Không gian riêng tư
Leo hết 23 bậc cầu thang chuẩn phong thuỷ (Sinh – Lão – Bệnh – Tử, rơi vào cung Sinh), chúng ta đến với tầng 2. Tại đây có 1 phòng ngủ Master khép kín rộng 23m2 (có WC riêng) dành cho vợ chồng anh Huệ. Một phòng ngủ cho con rộng 14.8m2 và 1 WC chung.
Đặc biệt, để tiết kiệm diện tích mà vẫn đảm bảo sự tôn nghiêm, Techhome tư vấn anh sử dụng “Bàn thờ treo” tại khu vực sảnh chung. Đây là giải pháp thông minh cho các mẫu nhà 2 tầng đẹp có diện tích khiêm tốn. Phía trước là ban công rộng, nơi anh Huệ có thể đặt vài chậu cây cảnh, chiều chiều ra hóng gió, thư giãn.

4. Tại sao đây là Mẫu Nhà 2 Tầng Đẹp đáng xây nhất 2026?
Tôi dám khẳng định, thiết kế này của anh Huệ sẽ còn hot trong ít nhất 5-10 năm tới. Tại sao ư?
-
Thứ nhất, tối ưu thông gió: Nhìn vào bản vẽ mái, các bạn sẽ thấy vị trí đặt téc nước và thái dương năng được tính toán kỹ. Mái bằng nhưng có xử lý chống nóng, giúp ngôi nhà mát mẻ vào mùa hè Hà Tĩnh khắc nghiệt. Một mẫu nhà 2 tầng đẹp không chỉ để ngắm, mà ở phải sướng!
-
Thứ hai, dễ thi công: Kết cấu tường vuông vức, không có các chi tiết phào chỉ uốn lượn cầu kỳ. Điều này giúp thợ địa phương dễ dàng thi công, rút ngắn thời gian xây dựng và giảm chi phí nhân công.
-
Thứ ba, chuẩn phong thủy: Từ số bậc cầu thang (23 bậc), hướng bếp, vị trí đặt giường đều được KTS Techhome tính toán dựa trên tuổi của anh Huệ.
5. Gợi ý nội thất để nâng tầm không gian
Để hoàn thiện một mẫu nhà 2 tầng đẹp như thế này, phần nội thất đóng vai trò 50%. Với kinh nghiệm của Techhome, các bạn nên:
-
Sử dụng gỗ công nghiệp MDF lõi xanh chống ẩm của An Cường cho tủ bếp và tủ quần áo.
-
Sàn tầng 2 nên lát gỗ để tạo cảm giác ấm chân vào mùa đông.
-
Hệ thống đèn: Dùng đèn downlight âm trần kết hợp đèn led dây hắt trần thạch cao. Ánh sáng vàng nhẹ sẽ làm cho không gian lung linh hơn rất nhiều.
Để tìm hiểu rõ hơn về tiêu chuẩn vật liệu xây dựng và các yếu tố ảnh hưởng đến chi phí, bạn có thể tham khảo thêm tại các bài viết chuyên sâu về vật liệu xây dựng cao cấp trên Wikipedia.

6. Báo giá xây dựng Mẫu Nhà 2 Tầng Đẹp (Cập nhật 2026)
Đây chắc chắn là phần mọi người mong chờ nhất. “Đẹp thì đẹp rồi, nhưng giá rổ thế nào?”. Lưu ý: Giá cả phụ thuộc vào vật liệu, địa điểm và thời điểm thi công. Nhưng Techhome sẽ đưa ra con số ước tính sát nhất cho công trình nhà anh Huệ (Tổng diện tích sàn khoảng 155m2 + móng mái) để mọi người tham khảo.
Để sở hữu một mẫu nhà 2 tầng đẹp tương tự, bạn cần chuẩn bị:
A. Chi phí xây dựng phần thô và nhân công hoàn thiện
-
Đơn giá: Dao động từ 3.800.000đ – 4.500.000đ/m2.
-
Các hạng mục: Móng, bể nước, bể phốt, cột, dầm, sàn bê tông, xây tường, trát tường, đi đường điện nước âm tường, nhân công ốp lát…
-
Tổng chi phí phần thô ước tính: Khoảng 800 – 900 triệu VNĐ.
B. Chi phí hoàn thiện trọn gói (Chìa khóa trao tay)
Nếu bạn muốn Techhome lo từ A-Z (gồm cả cửa, thiết bị vệ sinh, sơn bả, trần thạch cao, ốp lát…), đơn giá cho một mẫu nhà 2 tầng đẹp mức khá tốt sẽ rơi vào khoảng:
-
Đơn giá: 6.500.000đ – 7.500.000đ/m2.
-
Tổng chi phí hoàn thiện ước tính: Khoảng 1.2 tỷ – 1.4 tỷ VNĐ.
(Lưu ý: Giá trên chưa bao gồm đồ nội thất rời như giường, tủ, bàn ghế sofa…)
So với mặt bằng chung, đây là mức đầu tư cực kỳ hợp lý để sở hữu một mẫu nhà 2 tầng đẹp, kiên cố và thẩm mỹ cao.

7. Những điều cần lưu ý khi xây nhà tại Hà Tĩnh – Nghệ An
Là người làm việc nhiều ở miền Trung, Tôi hiểu rõ khí hậu khắc nghiệt của vùng này. Để mẫu nhà 2 tầng đẹp của bạn bền vững với thời gian, đừng quên:
-
Chống thấm kỹ: Mái và tường hướng Tây phải được xử lý chống thấm ngược và sử dụng sơn ngoại thất dòng cao cấp (như Dulux Weathershield hoặc Jotun).
-
Cửa chống ồn: Gió Lào thổi rất mạnh, hãy đầu tư hệ nhôm hệ có gioăng cao su kép để cách âm, cách nhiệt.
-
Giám sát thi công: Nếu không có thời gian, hãy thuê giám sát hoặc chọn dịch vụ trọn gói của Techhome. Một bản vẽ mẫu nhà 2 tầng đẹp đến mấy mà thợ làm ẩu thì cũng “vứt”.
8. Quy trình làm việc tại Kiến Trúc Techhome
Tại sao anh Huệ lại chọn Techhome giữa hàng trăm đơn vị khác? Đó là vì sự minh bạch và tận tâm. Để ra đời được mẫu nhà 2 tầng đẹp này, chúng tôi đã trải qua quy trình 6 bước:
-
Tiếp nhận thông tin: Lắng nghe mong muốn, diện tích đất, mức đầu tư.
-
Khảo sát hiện trạng: Đo đạc thực tế tại Nghi Xuân.
-
Lên phương án mặt bằng: Bố trí công năng .
-
Dựng phối cảnh 3D: Giúp anh Huệ hình dung rõ ngôi nhà tương lai.
-
Triển khai hồ sơ kỹ thuật: Kết cấu, điện nước (ME), dự toán.
-
Bàn giao & Giám sát tác quyền: Hỗ trợ kỹ thuật từ xa qua hotline 0364.04.2222.

9. Lời kết
Xây nhà là chuyện hệ trọng cả đời. Một mẫu nhà 2 tầng đẹp không chỉ là nơi che mưa che nắng, mà là tổ ấm, là nơi con cái lớn lên, là nơi ta tìm về bình yên sau giông bão.
Ngôi nhà của anh Huệ tại Hà Tĩnh là minh chứng cho việc: Không cần quá nhiều tiền mới xây được nhà đẹp. Chỉ cần bạn có một người đồng hành có tâm và một bản thiết kế “chuẩn chỉ”.
Nếu bạn đang ấp ủ dự định xây dựng một mẫu nhà 2 tầng đẹp cho riêng mình, dù ở nông thôn hay thành phố, đừng ngần ngại nhắn tin cho Techhome. Techhome không chỉ vẽ nhà, chúng tôi vẽ nên những giấc mơ!
Cảm ơn anh Huệ đã tin tưởng Kiến trúc Techhome. Chúc anh sớm hoàn thiện ngôi nhà mơ ước của mình!
Bạn thấy mẫu nhà 2 tầng đẹp này thế nào? Có đáng để đầu tư không? Để lại bình luận bên dưới cho Tôi biết nhé!
CÔNG TY CỔ PHẦN KIẾN TRÚC VÀ XÂY DỰNG TECHHOME
-
Địa chỉ: B1.1 LK18 Ô 3 – KĐT Thanh Hà – Cienco 5 – Thanh Oai- Hà Nội.
-
Hotline hỗ trợ kỹ thuật: 0364.04.2222 – 0387.60.3333.
-
Website: https://nhadeptechhome.vn/
