Xây nhà là chuyện cả đời. Có người thích sự hào nhoáng của những tòa lâu đài cao tầng, nhưng cũng có những người con thành đạt, sau bao năm bôn ba, chỉ mong muốn quay về với sự bình yên, gần gũi của đất trời. Công trình nhà vườn 1 tầng mái Nhật mà Techhome giới thiệu hôm nay chính là câu chuyện về tổ ấm mơ ước của gia đình anh Lượng tại mảnh đất Định Hóa, Thái Nguyên.
Không phô trương cầu kỳ, ngôi nhà hiện lên bề thế, vững chãi nhưng vẫn giữ được nét thanh thoát, thấm đượm tình cảm gia đình. Hãy cùng Techhome “mổ xẻ” chi tiết hồ sơ thiết kế này để thấy được sự tinh tế trong từng nét vẽ nhé!
1. Tổng quan dự án thiết kế nhà vườn 1 tầng mái Nhật tại Thái Nguyên
Trước khi đi vào chi tiết, mời quý vị điểm qua những thông số vàng của công trình này. Đây là cơ sở quan trọng để các bạn có thể ước lượng cho mảnh đất của chính mình:
-
Chủ đầu tư: Anh Lượng.
-
Địa điểm: Định Hóa, Thái Nguyên.
-
Đơn vị thiết kế & thi công: Công ty Cổ phần Kiến trúc và Xây dựng Techhome.
-
Loại hình: Nhà ở gia đình (Biệt thự vườn 1 tầng).
-
Kích thước xây dựng: Mặt tiền rộng 12.3m, chiều sâu 19.2m (Tính cả sảnh).
-
Công năng sử dụng: 1 Phòng khách, 1 Phòng thờ, 1 Bếp + Ăn, 4 Phòng ngủ, 2 WC, khu giặt phơi .
Đây là một kích thước “khủng” đối với các mẫu nhà vườn 1 tầng mái Nhật, cho phép kiến trúc sư thỏa sức bố trí công năng mà không lo sự chật chội, bí bách.

2. Vẻ đẹp ngoại thất: Sự giao thoa giữa hiện đại và truyền thống
Nhìn vào phối cảnh 3D, điều đầu tiên đập vào mắt chúng ta là hệ mái Nhật màu xanh than sang trọng. Khác với mái Thái cao vút, nhà vườn 1 tầng mái Nhật có độ dốc vừa phải (khoảng 30-35 độ), mở rộng ra các hướng khác nhau, tạo nên sự cân đối và bề thế.
Màu sắc và vật liệu – Cái hồn của ngôi nhà
Techhome đã khéo léo sử dụng tông màu trắng sứ làm chủ đạo. Màu trắng không bao giờ lỗi mốt, nó làm nền hoàn hảo để tôn lên các chi tiết trang trí khác. Điểm nhấn đắt giá nằm ở phần chân tường ốp đá chẻ và tường sơn giả đá màu ghi tại các vị trí cột sảnh. Việc ốp đá chân tường không chỉ mang lại vẻ vững chãi mà còn giúp bảo vệ công trình khỏi rêu mốc, bụi bẩn nơi miền đồi núi Định Hóa mưa nhiều.
Hệ thống cửa và sảnh đón
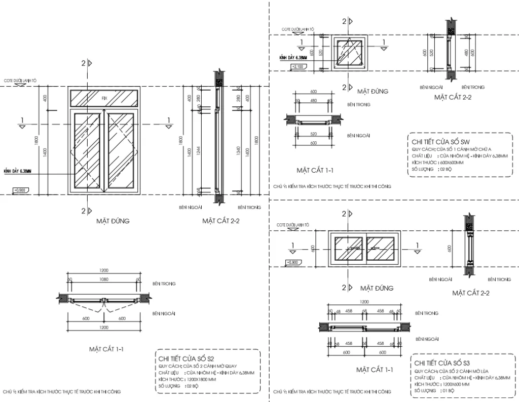
Cửa chính của ngôi nhà vườn 1 tầng mái Nhật này sử dụng chất liệu gỗ tự nhiên kết hợp pano kính, mang lại vẻ uy nghi cho mặt tiền. Trong khi đó, toàn bộ hệ thống cửa sổ lại sử dụng nhôm hệ kính cường lực (được ghi chú rõ là kính dày 6.38mm trong bản vẽ kỹ thuật). Lựa chọn này cực kỳ thông minh: cửa gỗ tạo sự sang trọng, còn cửa kính giúp lấy sáng tối đa, mở rộng tầm nhìn ra khu vườn xanh mát bên ngoài.
Hệ cột sảnh vuông vức với các đường phào chỉ chạy dọc thân cột, kết hợp với đèn treo tường cổ điển, tạo nên một không gian đón khách vừa trang trọng vừa ấm cúng.

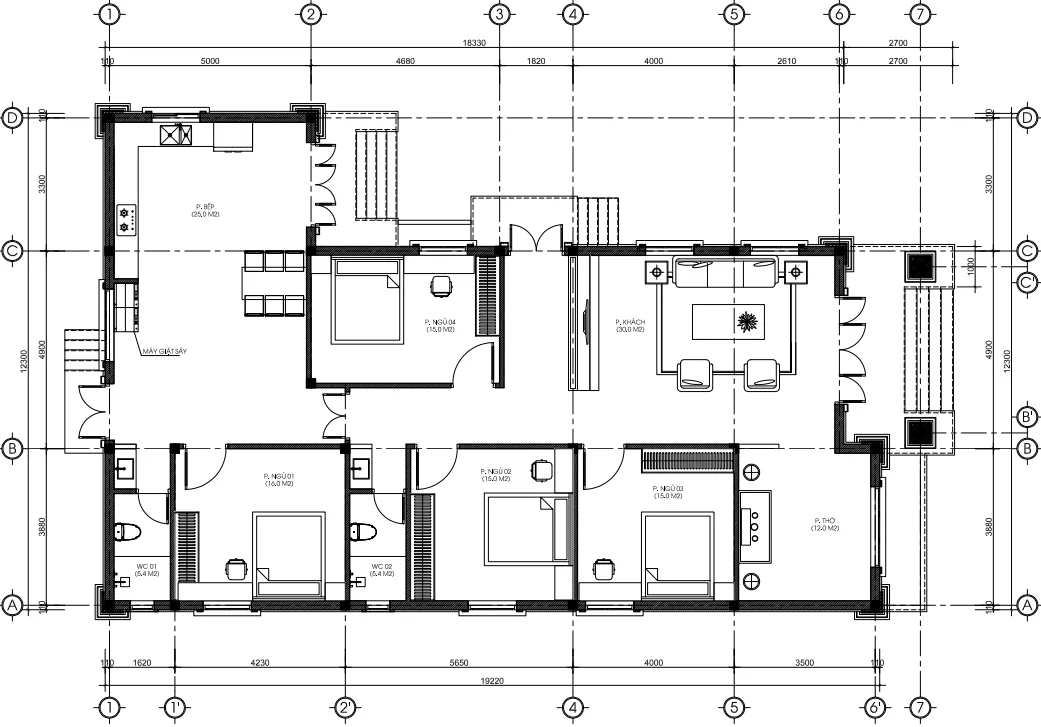
3. “Soi” bản vẽ mặt bằng: Đỉnh cao của sự bố trí công năng
Nhiều người nghĩ nhà vườn 1 tầng mái Nhật thì bố trí phòng ốc sẽ đơn giản. Nhưng không, với diện tích sàn lên đến hơn 180m2, bài toán đặt ra cho KTS Techhome là làm sao để kết nối các thành viên mà vẫn đảm bảo sự riêng tư.
Dựa trên bản vẽ mặt bằng bố trí nội thất tầng 1, chúng ta có thể thấy sự phân chia cực kỳ khoa học:
Không gian sinh hoạt chung
Từ sảnh chính bước vào là Phòng Khách rộng mênh mông với diện tích 30.0 m2. Đây là bộ mặt của gia chủ, nơi anh Lượng tiếp đón bạn bè, người thân. Bên cạnh phòng khách, trước nhà đón trọn nắng gió, thoáng mát là Phòng Thờ trang nghiêm diện tích 12.0 m2. Hướng bàn thờ nhìn thẳng ra cửa chính, đảm bảo phong thủy và sự tôn nghiêm.
Khu vực Bếp và Phòng Ăn rộng 25.0 m2. Thiết kế bếp lùi về sau nhà, có cửa phụ mở ra bên hông, giúp việc đi chợ, nấu nướng không ảnh hưởng đến không gian tiếp khách, đồng thời giúp thoát mùi hiệu quả. Đây là điểm cộng lớn cho thiết kế nhà vườn 1 tầng mái Nhật này.
Không gian nghỉ ngơi
Với yêu cầu công năng cho gia đình đa thế hệ, Techhome đã bố trí 4 phòng ngủ bao quanh không gian sinh hoạt chung:
-
Phòng ngủ 01: Diện tích 16.0 m2.
-
Phòng ngủ 02: Diện tích 15.0 m2.
-
Phòng ngủ 03: Diện tích 15.0 m2.
-
Phòng ngủ 04: Diện tích 15.0 m2.
Đặc biệt, khu vực vệ sinh được gom về một trục kỹ thuật gồm WC 01 và WC 02 (đều rộng 5.4 m2), đặt gần khu vực máy giặt sấy. Cách bố trí này giúp tiết kiệm đường ống nước và dễ dàng sửa chữa sau này.

4. Tại sao mẫu nhà vườn 1 tầng mái Nhật lại là xu hướng 2026?
Không phải ngẫu nhiên mà anh Lượng và hàng ngàn khách hàng của Techhome lại chọn nhà vườn 1 tầng mái Nhật. Dưới đây là những lý do “chí mạng”:
-
Tối ưu hóa chi phí: So với nhà cao tầng, nhà vườn 1 tầng mái Nhật tiết kiệm chi phí làm móng và nhân công vận chuyển vật liệu lên cao.
-
Gắn kết gia đình: Mọi hoạt động đều diễn ra trên một mặt sàn. Ông bà không phải leo cầu thang, con cháu dễ dàng chạy nhảy vui đùa. Tiếng cười nói luôn tràn ngập khắp nhà.
-
Gần gũi thiên nhiên: Với thiết kế nhiều cửa sổ và sảnh phụ, ngôi nhà như hòa vào khu vườn xung quanh. Gió và ánh sáng tự nhiên len lỏi vào từng ngóc ngách.
-
Thẩm mỹ vượt thời gian: Hệ mái Nhật với độ đua vừa phải, hình khối cân đối tạo nên vẻ đẹp thanh lịch, không bị lỗi thời theo năm tháng.

5. Phân tích kỹ thuật thi công: Điều làm nên chất lượng Techhome
Là người làm nghề, tôi muốn chia sẻ sâu hơn một chút về kỹ thuật để các bạn thấy sự tỉ mỉ của Techhome trong mẫu nhà vườn 1 tầng mái Nhật này.
-
Kết cấu mái: Bản vẽ mặt bằng xây dựng mái cho thấy hệ vì kèo thép được tính toán kỹ lưỡng. Techhome sử dụng ngói chất lượng cao, độ dốc được tính toán chính xác để thoát nước nhanh nhưng vẫn đảm bảo an toàn trong mùa mưa bão miền Bắc.
-
Hệ thống phào chỉ: Các chi tiết phào cửa sổ và phào cột không quá rườm rà như kiến trúc Pháp cổ, mà là những đường gờ chỉ lõm, phào nổi nhẹ nhàng. Điều này giúp việc thi công nhanh hơn, ít bám bụi và dễ vệ sinh.
-
Vật liệu hoàn thiện: Từ gạch lát nền Granite vân đá đến sơn Epoxy cho các khu vực đặc thù, tất cả đều được chỉ định rõ ràng trong hồ sơ, đảm bảo nhà thầu thi công không thể làm sai lệch.

6. Quy trình làm việc và cam kết của Techhome
Khi nhận thiết kế nhà vườn 1 tầng mái Nhật cho anh Lượng, chúng tôi không chỉ vẽ một ngôi nhà, chúng tôi vẽ nên một tổ ấm. Quy trình của Techhome luôn minh bạch:
-
Khảo sát hiện trạng thực tế tại Định Hóa, Thái Nguyên.
-
Lắng nghe tâm tư, nguyện vọng và mức đầu tư của gia chủ.
-
Lên phương án mặt bằng và phối cảnh 3D.
-
Triển khai hồ sơ kỹ thuật thi công chi tiết .
-
Giám sát tác giả và hỗ trợ kỹ thuật 24/7 qua hotline: 0364.04.2222.

7. Báo giá thiết kế và thi công nhà vườn 1 tầng mái Nhật (Cập nhật 2026)
Rất nhiều khách hàng thắc mắc: “Xây căn nhà đẹp như của anh Lượng hết bao nhiêu tiền?”. Dưới đây là bảng báo giá ước tính (tham khảo) áp dụng cho thị trường năm 2026 của Techhome. Lưu ý, giá thực tế có thể thay đổi tùy thuộc vào vật liệu và thời điểm thi công.
Bảng giá thiết kế kiến trúc & nội thất
| Hạng mục | Đơn giá (VNĐ/m2) | Ghi chú |
| Thiết kế kiến trúc | 108.000 | Bao gồm 3D, bản vẽ kỹ thuật điện nước, kết cấu. |
| Thiết kế nội thất | 150.000 | Phối cảnh 3D nội thất, bổ kỹ thuật đồ gỗ. |
Bảng dự toán chi phí xây dựng (Mẫu nhà anh Lượng ~185m2 sàn)
| Hạng mục | Đơn giá ước tính | Tổng chi phí (Dự kiến) |
| Xây dựng phần thô | 4.000.000 đ/m2 | ~ 740.000.000 đ |
| Nhân công hoàn thiện | 1.500.000 đ/m2 | ~ 277.500.000 đ |
| Vật tư hoàn thiện (Cửa, gạch, sơn…) | Tùy chọn mức khá/tốt | ~ 500.000.000 – 700.000.000 đ |
| Chi phí mái Nhật (Vì kèo + Ngói) | Tính theo m2 mái nghiêng | ~ 150.000.000 đ |
| TỔNG CỘNG (Chìa khóa trao tay) | Khoảng 1.7 tỷ – 1.9 tỷ VNĐ |
Với mẫu nhà vườn 1 tầng mái Nhật, chi phí phần mái sẽ cao hơn nhà mái bằng do diện tích mái đua ra lớn , nhưng bù lại khả năng chống nóng là tuyệt vời.
Lưu ý: Đây chỉ là mức chi phí ước tính. Để nhận được báo giá chính xác và chi tiết nhất cho công trình của bạn, vui lòng liên hệ trực tiếp với chúng tôi. Hoặc để tìm hiểu rõ hơn về tiêu chuẩn vật liệu xây dựng và các yếu tố ảnh hưởng đến chi phí, bạn có thể tham khảo thêm tại các bài viết chuyên sâu về vật liệu xây dựng cao cấp trên Wikipedia.

8. Những lưu ý “sống còn” khi xây nhà vườn 1 tầng mái Nhật
Là một người bạn đồng hành, Tôi muốn nhắc nhở các bạn một vài điểm quan trọng rút ra từ chính công trình này:
-
Đừng tiếc tiền cho phần móng: Với diện tích sàn rộng trải dài, nền đất đồi như ở Thái Nguyên cần được khảo sát kỹ để tránh sụt lún không đều.
-
Tỷ lệ độ dốc mái: Đừng làm mái quá cao sẽ thành mái Thái, cũng đừng quá thấp sẽ khó thoát nước. Độ dốc lý tưởng cho nhà vườn 1 tầng mái Nhật là khoảng 30 độ.
-
Cảnh quan sân vườn: Đừng chỉ chăm chăm vào ngôi nhà. Hãy dành ngân sách để quy hoạch sân vườn, hàng rào, cổng ngõ để tổng thể được hài hòa.

Kết luận
Ngôi nhà vườn 1 tầng mái Nhật của gia đình anh Lượng tại Thái Nguyên không chỉ là một công trình xây dựng, đó là minh chứng cho sự kết hợp hoàn hảo giữa tư duy thiết kế hiện đại của Techhome và mong ước về một tổ ấm bình yên của gia chủ.
Nếu bạn đang sở hữu một mảnh đất rộng và cũng mơ ước về một ngôi nhà vườn 1 tầng mái Nhật đẳng cấp, tiện nghi với 4 phòng ngủ như thế này, đừng ngần ngại liên hệ với chúng tôi. Techhome không chỉ xây nhà, chúng tôi xây dựng niềm tin và hạnh phúc.
Bạn có muốn Techhome phác thảo miễn phí phương án mặt bằng cho mảnh đất của bạn ngay hôm nay?
📞 Liên hệ ngay Hotline: 0364.04.2222 / 0387.60.3333 31
🌐 Xem thêm các dự án nổi bật khác của Techhome tại https://nhadeptechhome.vn/
📍 Văn phòng: B1.1 LK18 Ô 3 – KĐT Thanh Hà – Cienco 5 – Thanh Oai- Hà Nội.
