Bạn có bao giờ mơ ước về một ngôi nhà mà ở đó, mỗi buổi sáng thức dậy, chỉ cần mở rèm cửa là cả một khoảng không gian xanh mát ùa vào lòng? Đó chính là cảm hứng mà chúng tôi – đội ngũ Techhome – đã gửi gắm vào dự án mẫu nhà vườn 1 tầng mái Nhật của gia đình anh Thụ tại Phúc Sơn, Hà Nội.
1. Câu chuyện về một ngôi nhà “vừa đủ” giữa lòng Hà Nội
Trong nhịp sống hối hả ngày nay, xu hướng quay về với những giá trị nguyên bản, tìm kiếm sự bình yên trong những ngôi nhà vườn đang trở thành trào lưu. Không cần quá cao tầng hay phô trương, mẫu nhà vườn 1 tầng mái Nhật vẫn khẳng định được vị thế nhờ sự bề thế, vững chãi và cực kỳ tinh tế.
Khi anh Thụ tìm đến Techhome, anh chia sẻ: “Mình muốn một ngôi nhà mà cả gia đình có thể sinh hoạt tập trung trên một mặt sàn, vừa ấm cúng lại vừa sang trọng, quan trọng là phải có sự kết nối với sân vườn”. Và thế là, phương án thiết kế với diện tích 173m2 đã ra đời, đáp ứng trọn vẹn mong mỏi đó.

2. Đặc điểm kiến trúc ngoại thất: Sự chỉn chu trong từng đường nét
Nhìn vào phối cảnh 3D, bạn sẽ thấy mẫu nhà vườn 1 tầng mái Nhật này mang phong cách Tân cổ điển nhẹ nhàng. Tone màu trắng chủ đạo không chỉ giúp ngôi nhà trông rộng rãi hơn mà còn làm nổi bật hệ mái Nhật màu xanh đen thanh lịch.
Hệ mái Nhật – “Linh hồn” của công trình
Khác với mái Thái có độ dốc lớn, hệ mái Nhật trong mẫu nhà vườn 1 tầng mái Nhật có độ dốc vừa phải, mở ra các hướng, tạo nên vẻ ngoài cân đối và thanh thoát. Đặc biệt, chúng tôi đã bố trí thêm các ô cửa sổ mái nhỏ, vừa có tác dụng trang trí, vừa giúp tản nhiệt cho phần không gian phía dưới mái, cực kỳ phù hợp với khí hậu nóng ẩm tại Việt Nam.
Cột trụ và phào chỉ
Điểm nhấn của mặt tiền chính là hệ cột trụ vuông vắn, khỏe khoắn với những đường kẻ chỉ âm tường tinh tế. Phần chân tường được ốp đá tối màu không chỉ tạo cảm giác vững chãi mà còn giúp bảo vệ công trình khỏi rêu mốc, bụi bẩn theo thời gian. Đây là chi tiết nhỏ nhưng thể hiện sự am hiểu kỹ thuật sâu sắc của các kiến trúc sư Techhome khi kiến tạo mẫu nhà vườn 1 tầng mái Nhật.

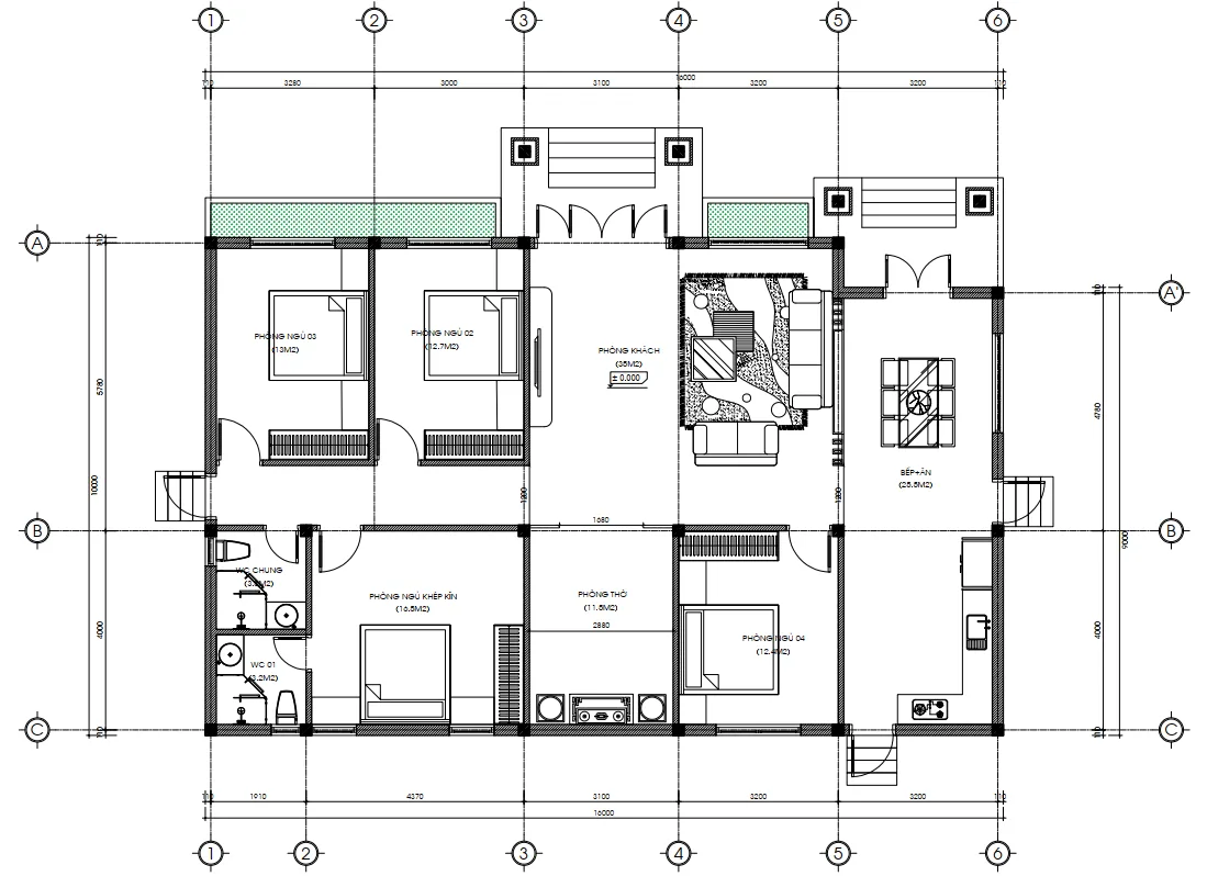
3. Giải pháp công năng: Khi diện tích 173m2 được tối ưu hóa
Một trong những ưu điểm lớn nhất của mẫu nhà vườn 1 tầng mái Nhật chính là sự tiện lợi trong sinh hoạt. Mọi không gian từ phòng khách, phòng thờ đến các phòng ngủ đều nằm trên một mặt bằng, giúp việc di chuyển giữa các thành viên, đặc biệt là người già và trẻ nhỏ, trở nên an toàn và gần gũi hơn.
Dưới đây là bảng phân bổ công năng chi tiết của ngôi nhà:
| Không gian | Đặc điểm nổi bật |
| Phòng khách |
Diện tích rộng, đặt tại vị trí trung tâm, đón ánh sáng tự nhiên từ cửa chính. |
| Phòng thờ |
Thiết kế trang nghiêm, tách biệt vừa đủ để giữ sự yên tĩnh (11.5m2). |
| Phòng ngủ 01 |
Có vệ sinh khép kín, đảm bảo sự riêng tư tuyệt đối cho gia chủ. |
| Phòng ngủ 02 & 03 $ 04 |
Diện tích hợp lý, có cửa sổ lớn nhìn ra sân vườn. |
| Phòng bếp & Ăn |
Kết nối trực tiếp với sảnh phụ, giúp lưu thông không khí và thuận tiện khi đi chợ về. |
Sự phân chia này trong mẫu nhà vườn 1 tầng mái Nhật đảm bảo luồng giao thông mạch lạc, không bị chồng chéo, tạo cảm giác thông thoáng tối đa.

4. Ánh sáng và sự kết nối thiên nhiên trong mẫu nhà vườn 1 tầng mái Nhật
Chúng tôi sử dụng hệ cửa nhôm kính cao cấp cho toàn bộ hệ thống cửa sổ và cửa đi. Điều này giúp mẫu nhà vườn 1 tầng mái Nhật luôn ngập tràn ánh sáng tự nhiên vào ban ngày, giảm thiểu điện năng tiêu thụ.
Đặc biệt, khu vực sảnh phụ được thiết kế thêm hệ lam kính phía trên, tạo nên một không gian đệm lý tưởng. Gia chủ có thể đặt tại đây vài chậu cây cảnh hoặc một bộ bàn trà nhỏ để tận hưởng không khí trong lành từ khu vực ao phía hông sảnh phụ.
5. Tại sao bạn nên chọn mẫu nhà vườn 1 tầng mái Nhật?
Nếu bạn còn đang phân vân, hãy xem qua những lý do khiến mẫu nhà vườn 1 tầng mái Nhật trở thành sự lựa chọn quốc dân:
-
Tiết kiệm chi phí vận hành: Việc làm mát hay sưởi ấm một mặt sàn luôn hiệu quả hơn nhà cao tầng.
-
Gắn kết thành viên: Mọi người dễ dàng gặp gỡ, trò chuyện trong không gian chung.
-
Vẻ đẹp bền vững: Kiến trúc mái Nhật và phong cách Tân cổ điển hiếm khi bị lỗi mốt.
-
Phù hợp phong thủy: Nhà vườn 1 tầng thường tạo thế “tọa sơn hướng thủy” rất tốt nếu có diện tích đất rộng như nhà anh Thụ.
Với mẫu nhà vườn 1 tầng mái Nhật 173m2 này, Techhome đã tính toán kỹ lưỡng từng thông số kỹ thuật để đảm bảo độ bền công trình trên 50 năm.

6. Báo giá tham khảo thiết kế và thi công
Để quý khách hàng dễ dàng hình dung về mức đầu tư cho một mẫu nhà vườn 1 tầng mái Nhật tương tự, Techhome xin đưa ra bảng giá tham khảo (Lưu ý: Giá có thể thay đổi tùy thời điểm và chủng loại vật tư vật liệu):
-
Đơn giá thiết kế kiến trúc: 108.000đ/m2.
-
Đơn giá thi công trọn gói (Chìa khóa trao tay): 6.500.000đ – 7.500.000đ/m2 sàn.
-
Chi phí dự toán cho công trình 173m2: Khoảng 1,1 tỷ – 1,3 tỷ VNĐ (Bao gồm phần thô, hoàn thiện cơ bản, chưa bao gồm nội thất rời).
Với mỗi mẫu nhà vườn 1 tầng mái Nhật, chúng tôi luôn cam kết không phát sinh chi phí ngoài hợp đồng và đảm bảo tiến độ thi công đúng hạn.
Lưu ý: Đây chỉ là mức chi phí ước tính. Để nhận được báo giá chính xác và chi tiết nhất cho công trình của bạn, vui lòng liên hệ trực tiếp với chúng tôi. Hoặc để tìm hiểu rõ hơn về tiêu chuẩn vật liệu xây dựng và các yếu tố ảnh hưởng đến chi phí, bạn có thể tham khảo thêm tại các bài viết chuyên sâu về vật liệu xây dựng cao cấp trên Wikipedia.

7. Góc nhìn chuyên gia: Lời khuyên để có mẫu nhà vườn 1 tầng mái Nhật hoàn hảo
Là người trực tiếp viết và tư vấn, tôi có vài lưu ý nhỏ cho bạn khi xây dựng mẫu nhà vườn 1 tầng mái Nhật:
-
Chú trọng cốt nền: Nhà 1 tầng nên làm cốt nền cao ráo (thường là 5 bậc tam cấp) để công trình trông bề thế và tránh nồm ẩm.
-
Quy hoạch sân vườn đồng bộ: Đừng chỉ tập trung vào ngôi nhà. Một mẫu nhà vườn 1 tầng mái Nhật chỉ đẹp khi có sự hài hòa với cây xanh, tiểu cảnh xung quanh.
-
Lựa chọn đơn vị uy tín: Hồ sơ kỹ thuật của Techhome luôn đầy đủ từ bản vẽ định vị đến chi tiết công năng, giúp thợ thi công không bị sai lệch.
Mẫu nhà vườn 1 tầng mái Nhật không chỉ là một công trình xây dựng, đó là tổ ấm, là nơi để về sau những giờ làm việc mệt mỏi. Nếu bạn yêu thích phong cách của gia đình anh Thụ tại Phúc Sơn, đừng ngần ngại liên hệ với chúng tôi.

Thông tin liên hệ:
CÔNG TY CỔ PHẦN KIẾN TRÚC VÀ XÂY DỰNG TECHHOME
-
Website: nhadeptechhome.vn
-
Hotline tư vấn: 0364042222 – 0387603333
-
Địa chỉ: B1.1 LK18 Ô 3 – KĐT Thanh Hà – Cienco 5 – Thanh Oai- Hà Nội.
