Bạn đang sở hữu một mảnh đất rộng ở quê và muốn xây dựng một không gian sống vừa hiện đại, vừa gần gũi với thiên nhiên? Mẫu nhà cấp 4 mái Nhật 4 phòng ngủ chính là từ khóa đang “làm mưa làm gió” trên các diễn đàn kiến trúc hiện nay. Hôm nay, TechHome xin giới thiệu đến bạn một dự án tâm huyết mà chúng tôi vừa bàn giao hồ sơ cho gia đình Anh Hoàng tại Thanh Hóa. Với diện tích 180 m2, đây không chỉ là một ngôi nhà, mà là một tổ ấm hoàn hảo cho gia đình đa thế hệ.
1. Tổng quan dự án mẫu nhà cấp 4 mái Nhật 4 phòng ngủ tại Thanh Hóa
Khi nhận được yêu cầu từ Anh Hoàng, đội ngũ kiến trúc sư của TechHome đã về trực tiếp Thanh Hóa để khảo sát địa hình. Yêu cầu của anh rất rõ ràng: một ngôi nhà một tầng nhưng phải đủ 4 phòng ngủ, không gian bếp phải riêng biệt để tránh mùi nhưng vẫn kết nối với nhà chính.
-
Chủ đầu tư: Anh Hoàng.
-
Địa điểm xây dựng: Thanh Hóa.
-
Đơn vị thiết kế: Công ty Cổ phần Kiến trúc và Xây dựng TechHome.
-
Loại hình: Nhà ở gia đình (Nhà cấp 4).
-
Diện tích sàn: 180 m2.
-
Chiều cao tầng: 4100 mm (4.1m).
-
Công năng: 1 Phòng khách, phòng thờ, 1 Phòng bếp & ăn, 4 Phòng ngủ, 2 WC.
Mẫu nhà cấp 4 mái Nhật 4 phòng ngủ này được thiết kế theo phong cách hiện đại, lược bỏ các chi tiết phào chỉ rườm rà, tập trung vào hình khối và sự phối hợp màu sắc tinh tế.

2. Phân tích kiến trúc ngoại thất: Sự giao thoa giữa hiện đại và truyền thống
Cái hay của mẫu nhà cấp 4 mái Nhật 4 phòng ngủ chính là hệ mái Nhật màu xanh thẫm cực kỳ sang trọng. Khác với mái Thái có độ dốc lớn, mái Nhật có độ dốc vừa phải, giúp thoát nước tốt nhưng vẫn giữ được nét thanh thoát, nhẹ nhàng.
Hệ mái và màu sắc chủ đạo
Nhìn từ bên ngoài, ngôi nhà toát lên vẻ kiên cố với tone màu trắng chủ đạo, nhấn thêm các đường kẻ chỉ âm tường chạy ngang nhà. Phần chân tường được ốp đá rối xám, không chỉ tạo điểm nhấn thẩm mỹ mà còn giúp bảo vệ công trình khỏi tác động của thời tiết, tránh rêu mốc – một vấn đề cực kỳ phổ biến tại vùng đất Thanh Hóa.
Hệ thống cửa và ánh sáng
Toàn bộ hệ thống cửa chính và cửa sổ đều sử dụng nhôm kính Xingfa cao cấp. Việc sử dụng kính cường lực giúp ngôi nhà tận dụng tối đa ánh sáng tự nhiên, giúp không gian bên trong luôn thông thoáng. Đặc biệt, tại sảnh chính và sảnh phụ, hệ cột vuông vững chãi được trang trí bằng đá granite đen vân mây ở chân cột, tạo nên sự bề thế cho mẫu nhà cấp 4 mái Nhật 4 phòng ngủ.

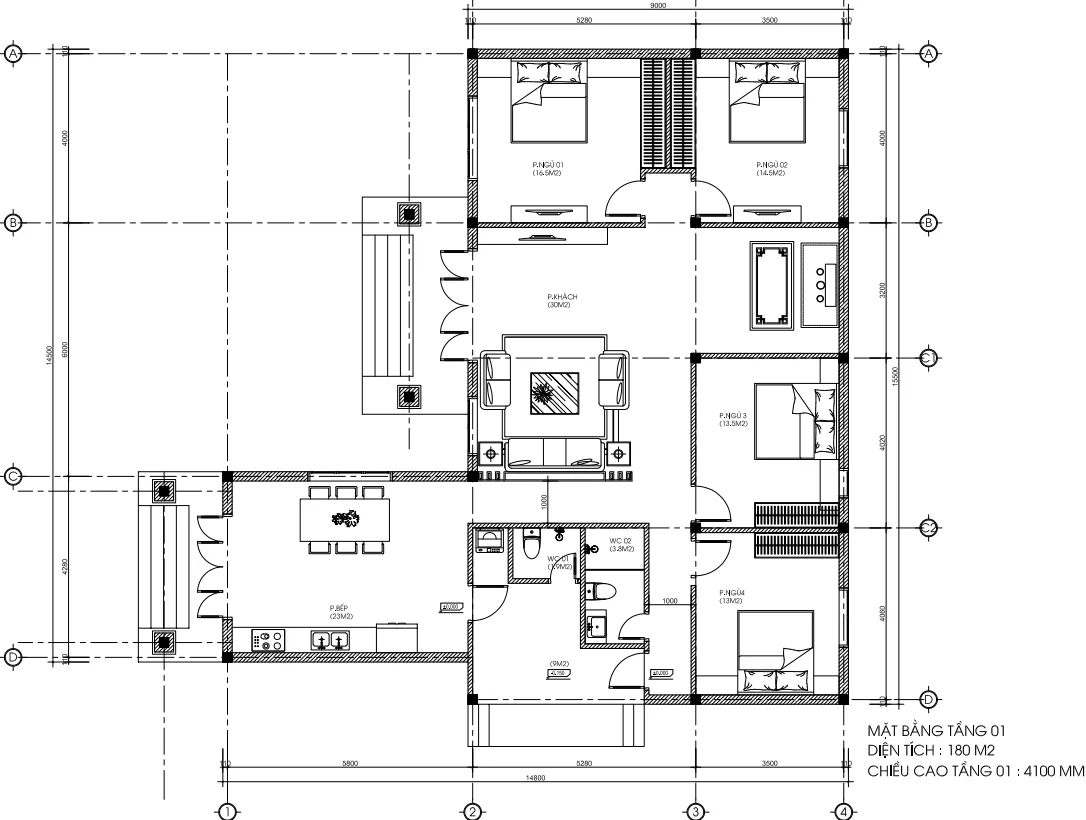
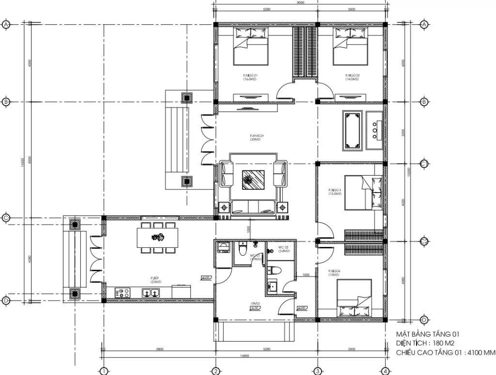
3. Bản vẽ mặt bằng công năng: Tối ưu đến từng milimet
Điều làm nên thương hiệu của TechHome chính là cách bố trí mặt bằng cực kỳ khoa học. Với diện tích 180 m2, chúng tôi đã chia không gian thành 2 khu vực rõ rệt.
Khu vực sinh hoạt chung
-
Phòng khách kết hợp phòng thờ (30 m2): Nằm ngay trung tâm sảnh chính đi vào, không gian rộng rãi đủ để gia đình Anh Hoàng bày trí những bộ sofa lớn hay sập gỗ theo sở thích địa phương.
-
Phòng bếp & ăn (23 m2): Được thiết kế thành một khối riêng biệt phía bên trái sảnh phụ. Cách bố trí này giúp việc nấu nướng không ảnh hưởng đến không gian tiếp khách, đồng thời tạo ra một lối đi riêng rất thuận tiện khi nhà có cỗ bàn.
Khu vực nghỉ ngơi riêng tư
Mẫu nhà cấp 4 mái Nhật 4 phòng ngủ này giải quyết triệt để bài toán cho gia đình đông thành viên:
-
Phòng ngủ 01 (16.5 m2): Phòng ngủ lớn nhất, dành cho ông bà hoặc gia chủ, có view nhìn ra mặt tiền.
-
Phòng ngủ 02 (14.5 m2): Không gian yên tĩnh, cửa sổ lớn đón gió.
-
Phòng ngủ 03 (13.5 m2): Thiết kế vuông vắn, dễ dàng kê tủ quần áo và bàn làm việc.
-
Phòng ngủ 04 (13 m2): Phù hợp cho con trẻ hoặc khách đến chơi nhà nghỉ lại.
Hệ thống 2 nhà vệ sinh (WC) được đặt ở vị trí trung gian, thuận tiện cho tất cả các thành viên sử dụng mà vẫn đảm bảo sự kín đáo.

4. Tại sao mẫu nhà cấp 4 mái Nhật 4 phòng ngủ lại trở thành xu hướng?
Không phải ngẫu nhiên mà nhiều gia chủ lại lựa chọn mẫu nhà cấp 4 mái Nhật 4 phòng ngủ. Dưới góc độ chuyên gia, TechHome nhận thấy những ưu điểm vượt trội sau:
-
Tính kết nối: Tất cả các thành viên đều sinh hoạt trên một mặt sàn, giúp ông bà gần gũi con cháu, tình cảm gia đình thêm gắn bó.
-
An toàn: Không có cầu thang nên cực kỳ an toàn cho người già và trẻ nhỏ, tránh được các tai nạn té ngã.
-
Tiết kiệm chi phí: So với nhà cao tầng, nhà 1 tầng tiết kiệm được chi phí đổ sàn bê tông và cầu thang, đồng thời giảm áp lực lên nền móng.
-
Phong thủy: Mẫu nhà cấp 4 mái Nhật 4 phòng ngủ thường có thiết kế vuông vắn, giúp dòng khí lưu thông tốt, mang lại sức khỏe và tài lộc cho gia chủ.

5. Báo giá thiết kế và thi công trọn gói tại TechHome (Tham khảo)
Chúng tôi hiểu rằng, bên cạnh vẻ đẹp, chi phí là yếu tố khách hàng quan tâm hàng đầu. TechHome luôn minh bạch trong báo giá để bạn dễ dàng dự toán cho mẫu nhà cấp 4 mái Nhật 4 phòng ngủ của mình.
Đơn giá thiết kế kiến trúc
-
Thiết kế kiến trúc : 108.000 đ/m2.
-
Thiết kế nội thất : 150.000 đ/m2.
Đơn giá thi công xây dựng (Khu vực Thanh Hóa)
| Hạng mục | Đơn giá ước tính | Ghi chú |
| Thi công phần thô | 3.500.000 – 4.000.000 đ/m2 | Bao gồm nhân công + vật tư thô |
| Thi công trọn gói (Chìa khóa trao tay) | 6.000.000 – 7.500.000 đ/m2 | Tùy thuộc vào mức độ vật liệu hoàn thiện |
Ví dụ: Với ngôi nhà 180 m2 của Anh Hoàng, tổng chi phí đầu tư phần thô và hoàn thiện cơ bản rơi vào khoảng 1.2 tỷ đến 1.4 tỷ đồng.
Lưu ý: Đây chỉ là mức chi phí ước tính. Để nhận được báo giá chính xác và chi tiết nhất cho công trình của bạn, vui lòng liên hệ trực tiếp với chúng tôi. Hoặc để tìm hiểu rõ hơn về tiêu chuẩn vật liệu xây dựng và các yếu tố ảnh hưởng đến chi phí, bạn có thể tham khảo thêm tại các bài viết chuyên sâu về vật liệu xây dựng cao cấp trên Wikipedia.

6. Những lưu ý “vàng” khi xây dựng mẫu nhà cấp 4 mái Nhật 4 phòng ngủ
Để có một mẫu nhà cấp 4 mái Nhật 4 phòng ngủ bền đẹp theo thời gian, bạn cần lưu ý:
-
Xử lý chống thấm mái: Mái Nhật có độ dốc thấp, nên việc sử dụng màng chống thấm và kỹ thuật lợp ngói chuẩn xác là bắt buộc.
-
Chiều cao trần: Với chiều cao 4100 mm như nhà Anh Hoàng, ngôi nhà sẽ rất thoáng. Tuy nhiên, nếu bạn muốn đóng trần thạch cao, hãy tính toán độ cao thả trần để không làm mất đi sự cân đối.
-
Lựa chọn đơn vị uy tín: Đừng ham rẻ mà chọn những đơn vị thiếu kinh nghiệm. Một bộ hồ sơ kỹ thuật chi tiết như của TechHome sẽ giúp bạn tránh được 90% các rủi ro phát sinh trong quá trình xây dựng.

7. TechHome – Người bạn đồng hành cùng tổ ấm Việt
Với kinh nghiệm thực chiến hàng trăm công trình tại Thanh Hóa và các tỉnh lân cận, TechHome tự tin mang đến cho bạn mẫu nhà cấp 4 mái Nhật 4 phòng ngủ đẹp nhất, chất lượng nhất. Chúng tôi cam kết:
-
Thiết kế độc bản, không sao chép.
-
Hỗ trợ tư vấn kỹ thuật 24/7 qua Hotline: 0364.042.222 hoặc 0387.603.333.
-
Giám sát tác giả chặt chẽ, đảm bảo thi công đúng bản vẽ 100%.
Mẫu nhà cấp 4 mái Nhật 4 phòng ngủ không chỉ là một công trình kiến trúc, đó là sự khẳng định phong cách sống của bạn. Nếu bạn yêu thích mẫu nhà của Anh Hoàng, đừng ngần ngại liên hệ với chúng tôi để được tư vấn miễn phí.
Xem thêm các dự án khác tại: https://nhadeptechhome.vn/
