Bạn đang sở hữu một mảnh đất phân lô phổ biến và đang loay hoay tìm kiếm một mẫu nhà phố 2 tầng 5x15m vừa đẹp, vừa khác biệt lại không quá tốn kém? Đừng bỏ qua bài viết này. Hôm nay, Kiến trúc Techhome sẽ đưa bạn tham quan thực tế hồ sơ thiết kế nhà anh Tuấn tại Quảng Ninh – một công trình hội tụ đủ các yếu tố: “Sáng – Sang – Sắc”.
1. Câu chuyện đằng sau bản thiết kế nhà anh Tuấn (Quảng Ninh)
Khi anh Tuấn tìm đến Techhome, anh chia sẻ rằng mình không thích những kiểu nhà phố “khối hộp” thô cứng, đại trà. Với quỹ đất 5x15m , anh mong muốn một tổ ấm có sự mềm mại, thoáng đãng nhưng vẫn phải đảm bảo đủ 3 phòng ngủ cho cả gia đình.
Sau nhiều lần trao đổi, đội ngũ kiến trúc sư (KTS) và kỹ sư đã cho ra đời phương án thiết kế khiến anh “gật đầu” ngay từ cái nhìn đầu tiên. Đây không chỉ là một mẫu nhà phố 2 tầng 5x15m thông thường, mà là một tác phẩm nghệ thuật về không gian.

2. Phân tích kiến trúc ngoại thất: Sự lên ngôi của những đường cong
Nhìn vào phối cảnh mặt tiền, bạn sẽ thấy sự khác biệt rõ rệt so với các mẫu nhà phố 2 tầng 5x15m hiện nay.
Đường nét kiến trúc độc bản
Thay vì những góc cạnh vuông vức, Techhome sử dụng các đường bo tròn mềm mại tại ban công và ô vòm cửa sổ. Những đường cong này giúp “giải nhiệt” thị giác, tạo cảm giác ngôi nhà thanh thoát và cao ráo hơn.
Sự kết hợp vật liệu thông minh
-
Gỗ ốp trần: Phần trần ban công được ốp gỗ nhựa ngoài trời màu nâu ấm, tạo điểm nhấn sang trọng khi kết hợp cùng hệ đèn downlight âm trần.
-
Kính cường lực: Lan can kính tràn viền giúp mở rộng tầm nhìn, khiến mặt tiền không bị chia cắt.
-
Màu sắc: Sự tương phản giữa màu trắng sứ của mảng tường chính và màu xám xi măng của các mảng khối tạo nên chiều sâu cực kỳ hút mắt.
Đây chính là lý do vì sao mẫu nhà phố 2 tầng 5x15m này lại nhận được sự quan tâm lớn đến vậy trên các hội nhóm yêu nhà đẹp.

3. Giải pháp mặt bằng công năng: Tối ưu đến từng centimet
Một ngôi nhà đẹp trước hết phải là một ngôi nhà tiện nghi. Với diện tích sàn khoảng 75m2/tầng, KTS Techhome đã bố trí các phòng chức năng vô cùng khoa học.
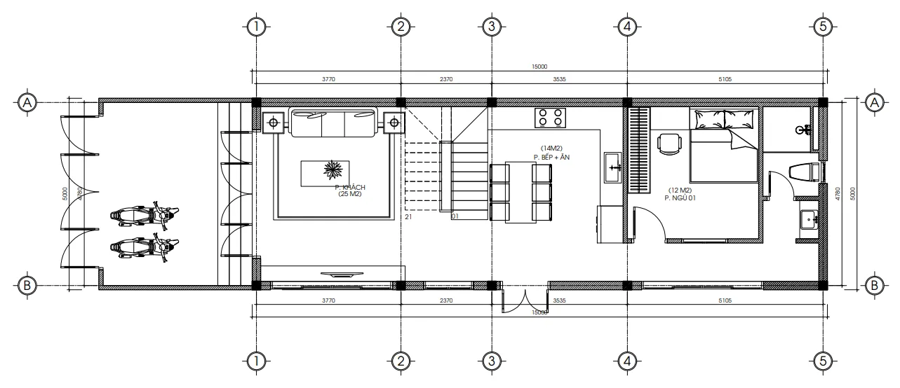
Chi tiết mặt bằng tầng 1
Tầng 1 là không gian sinh hoạt chung kết hợp nghỉ ngơi:
-
Khu vực sân trước: Khoảng lùi vừa đủ để làm nơi để xe máy và tạo bước đệm ngăn bụi, tiếng ồn từ đường lớn.
-
Phòng khách (25m2): Ngay sau cửa chính, rộng rãi và thoáng đãng, là bộ mặt của gia chủ.
-
Phòng bếp & Ăn: Được ngăn cách tinh tế với phòng khách bởi cầu thang, giúp không gian có sự riêng tư cần thiết.
-
Phòng ngủ 01 (12m2): Dành cho ông bà hoặc khách, đặt ở cuối nhà để đảm bảo sự yên tĩnh.
-
WC: Đảm bảo lưu thông không khí và đáp ứng nhu cầu vệ sinh chung.
Nhiều người lo lắng diện tích 5m ngang sẽ hẹp, nhưng qua bàn tay KTS, mẫu nhà phố 2 tầng 5x15m này vẫn sở hữu lối giao thông cực kỳ mạch lạc.

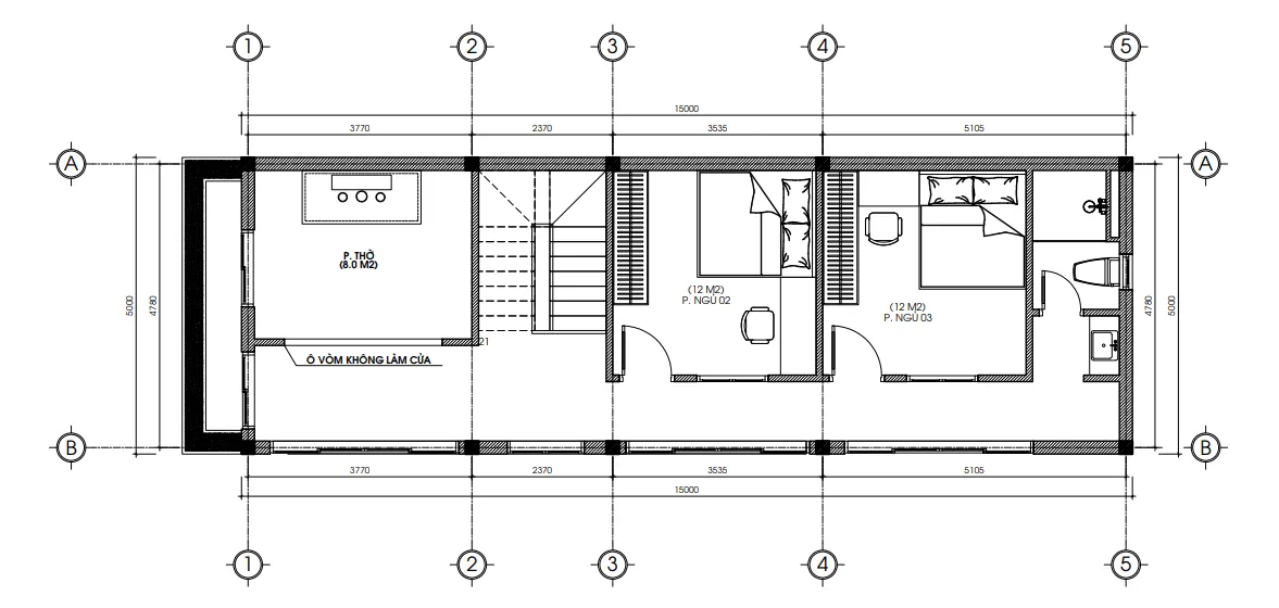
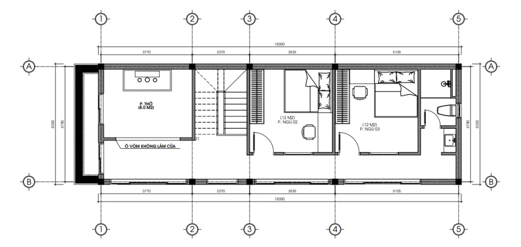
Chi tiết mặt bằng tầng 2
Tầng 2 tập trung vào sự riêng tư và tâm linh:
-
Phòng thờ : Được đặt ở vị trí trang trọng hướng ra mặt tiền, có ô vòm thông thoáng.
-
Phòng ngủ 02 & 03 (12m2 mỗi phòng): Dành cho các con và vợ chồng gia chủ, bố trí nội thất gọn gàng.
-
Phòng vệ sinh chung: Thiết kế đồng trục với tầng 1 để thuận tiện cho việc lắp đặt hệ thống điện nước.
Sự sắp xếp này giúp mẫu nhà phố 2 tầng 5x15m đáp ứng hoàn hảo cho gia đình có 4-5 thành viên cùng sinh sống.

4. Báo giá thi công trọn gói mẫu nhà phố 2 tầng 5x15m
Tại Techhome, chúng tôi luôn minh bạch về chi phí để gia chủ dễ dàng chuẩn bị tài chính. Dưới đây là bảng giá tham khảo cho mẫu nhà tương tự:
| Hạng mục | Đơn giá (VNĐ/m2) | Ước tính cho 150m2 sàn |
| Thiết kế kiến trúc | 108.000 | 16,2 triệu |
| Thi công phần thô | 3.800.000 – 4.200.000 | 570 – 630 triệu |
| Thi công trọn gói (Chìa khóa trao tay) | 6.000.000 – 7.000.000 | 900 triệu – 1.1 tỷ |
Lưu ý: Đơn giá thực tế sẽ phụ thuộc vào thời điểm xây dựng, đơn giá vật liệu tại địa phương và yêu cầu cụ thể về vật liệu hoàn thiện của gia chủ.
Rõ ràng, với ngân sách khoảng 1 tỷ đồng, bạn hoàn toàn có thể sở hữu một mẫu nhà phố 2 tầng 5x15m đẳng cấp như nhà anh Tuấn.
Để tìm hiểu rõ hơn về tiêu chuẩn vật liệu xây dựng và các yếu tố ảnh hưởng đến chi phí, bạn có thể tham khảo thêm tại các bài viết chuyên sâu về vật liệu xây dựng cao cấp trên Wikipedia.

5. Góc nhìn chuyên gia: Tại sao nên chọn mẫu nhà này?
Dưới góc độ là một người làm nghề lâu năm, tôi đánh giá cao mẫu nhà phố 2 tầng 5x15m của anh Tuấn ở 3 điểm:
-
Tính bền vững: Việc sử dụng mái tôn chống nóng kết hợp hệ thống năng lượng mặt trời phía trên là giải pháp cực kỳ thực tế cho khí hậu Việt Nam, giúp tiết kiệm điện năng đáng kể.
-
Khả năng thông gió: Dù là nhà ống nhưng nhờ cách bố trí ô vòm và khoảng lùi, ngôi nhà luôn có sự luân chuyển không khí tự nhiên, tránh được cảm giác bí bách thường thấy.
-
Giá trị thẩm mỹ vượt thời gian: Xu hướng tối giản với các đường cong đang là “mốt” của năm 2025-2026 và dự kiến sẽ không bao giờ lỗi mốt vì sự thanh lịch của nó.
Nếu bạn đang tìm kiếm mẫu nhà phố 2 tầng 5x15m, hãy ưu tiên những thiết kế có sự phá cách ở mặt tiền như thế này để khẳng định gu thẩm mỹ cá nhân.

6. Những lưu ý “sống còn” khi xây dựng mẫu nhà phố 2 tầng 5x15m
Đừng vội vàng thi công nếu bạn chưa nắm rõ các nguyên tắc sau:
-
Kiểm tra kỹ ranh giới đất: Như lưu ý trong bản vẽ, gia chủ cần xác nhận đúng ô đất thực tế trước khi chốt phương án để tránh tranh chấp về sau.
-
Lựa chọn nhà thầu uy tín: Đừng chỉ nhìn vào giá rẻ. Một mẫu nhà phố 2 tầng 5x15m bền đẹp cần một đội ngũ thợ có tay nghề cao, đặc biệt là ở những chi tiết bo góc phức tạp.
-
Chú trọng hệ thống ánh sáng: Hãy sử dụng đèn hắt khe trần và đèn tường như phối cảnh để ngôi nhà lung linh hơn vào ban đêm.
Sở hữu một mẫu nhà phố 2 tầng 5x15m đẹp không khó, cái khó là tìm được người hiện thực hóa bản vẽ đó một cách tâm huyết nhất.

7. Techhome – Đơn vị thiết kế thi công nhà phố hàng đầu
Với nhiều năm kinh nghiệm và hàng trăm công trình đã bàn giao, Techhome tự hào là người bạn đồng hành tin cậy của mọi gia đình. Khi chọn thiết kế mẫu nhà phố 2 tầng 5x15m tại chúng tôi, bạn sẽ nhận được:
-
Hồ sơ thiết kế kỹ thuật đầy đủ, chi tiết.
-
Tư vấn giải pháp vật liệu tối ưu ngân sách nhất.
-
Hỗ trợ kỹ thuật 24/7 trong suốt quá trình xây dựng.
Mọi thông tin chi tiết về mẫu nhà phố 2 tầng 5x15m, quý khách vui lòng liên hệ:
-
Hotline: 0364.042.222 – 0387.603.333
-
Website: nhadeptechhome.vn

8. Kết luận
Hy vọng mẫu nhà phố 2 tầng 5x15m của anh Tuấn tại Quảng Ninh đã mang lại cho bạn nguồn cảm hứng mới cho ngôi nhà tương lai của mình. Đừng gò bó tổ ấm trong những khuôn mẫu cũ kỹ, hãy để Techhome giúp bạn tạo nên sự khác biệt.
Bạn thấy sao về mẫu nhà phố 2 tầng 5x15m này? Hãy để lại ý kiến dưới phần bình luận hoặc liên hệ ngay với chúng tôi để được tư vấn miễn phí nhé! Một mẫu nhà phố 2 tầng 5x15m hoàn hảo đang chờ đợi bạn.
