Mẫu nhà phố tân cổ điển 5 tầng tại Bắc Ninh: Đỉnh cao sang trọng và tiện nghi

Bạn đang sở hữu một mảnh đất phân lô phố thị và mong muốn biến nó thành một “dinh thự” thu nhỏ? Bạn yêu thích vẻ đẹp vượt thời gian của những đường phào chỉ mềm mại nhưng vẫn cần sự tối ưu về công năng sử dụng? Hãy cùng Kiến trúc Techhome khám phá mẫu nhà phố tân cổ điển 5 tầng của gia đình anh Tuấn tại Bắc Ninh – một công trình hội tụ đủ các yếu tố: Thẩm mỹ – Đẳng cấp – Cá tính.

1. Câu chuyện về một ngôi nhà “vạn người mê” tại Kinh Bắc

Bắc Ninh vốn nổi tiếng với nét văn hóa truyền thống, và những gia chủ ở đây luôn có gu thẩm mỹ rất cao. Khi tìm đến Techhome, anh Tuấn chia sẻ: “Tôi muốn một ngôi nhà mà ai đi ngang qua cũng phải ngoái nhìn, nhưng bên trong phải thật sự thoải mái cho đại gia đình nhiều thế hệ”.

Sau nhiều ngày trăn trở, đội ngũ kiến trúc sư đã kiến tạo nên một mẫu nhà phố tân cổ điển 5 tầng với mặt tiền 7m đầy ấn tượng. Đây không chỉ là một ngôi nhà, mà là thành quả của sự lao động, là niềm tự hào của gia chủ với bà con lối xóm.

Phối cảnh mặt tiền chính diện mẫu nhà phố tân cổ điển 5 tầng sang trọng tại Bắc Ninh.
Phối cảnh mặt tiền chính diện mẫu nhà phố tân cổ điển 5 tầng sang trọng tại Bắc Ninh.

2. Phân tích kiến trúc ngoại thất: Sự giao thoa giữa cổ điển và hiện đại

Nhìn vào phối cảnh 3D, điểm nhấn đầu tiên chính là sự bề thế. Khác với những ngôi nhà hiện đại vuông vức đôi khi có phần khô khan, mẫu nhà phố tân cổ điển 5 tầng này sử dụng hệ thống cột trụ iconic, các vòm cửa cong mềm mại và họa tiết đắp nổi tinh xảo.

  • Tầng 1 và tầng 2: Được tạo điểm nhấn bằng khối đế vững chãi với tông màu vàng đá sang trọng. Hệ cửa kính lớn hình vòm không chỉ lấy sáng mà còn tạo nên chiều sâu không gian, giúp ngôi nhà trông như một sảnh khách sạn cao cấp.

  • Tầng 3 đến tầng 5: Sử dụng tông màu trắng sứ chủ đạo – “màu sắc quốc dân” của kiến trúc tân cổ điển. Sắc trắng giúp các chi tiết phào chỉ nổi bật hơn dưới ánh nắng mặt trời.

  • Hệ mái và ban công: Ban công nhôm đúc nghệ thuật màu vàng đồng kết hợp với các ô cửa sổ đen tuyền tạo nên sự tương phản đẳng cấp. Đây chính là đặc trưng giúp mẫu nhà phố tân cổ điển 5 tầng luôn giữ được vẻ đẹp quý tộc theo năm tháng.

Góc nghiêng mẫu nhà phố tân cổ điển 5 tầng

3. Giải pháp công năng “may đo” cho gia đình anh Tuấn

Một ngôi nhà đẹp mà không tiện thì chỉ là “bức tranh”. Với diện tích sàn khoảng 91m2 mỗi tầng, Techhome đã tối ưu từng centimet vuông để phục vụ sinh hoạt.

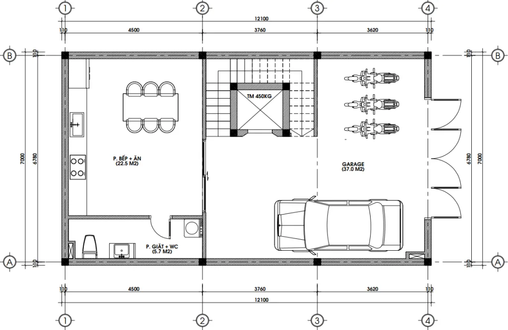
Tầng 1: Không gian tiện ích và bếp ấm cúng

Bước vào tầng 1 là khu vực Garage rộng 37m2, đủ sức chứa ô tô và nhiều xe máy. Tiếp nối là khu vực thang máy trung tâm – một trang bị không thể thiếu cho các mẫu nhà phố tân cổ điển 5 tầng để thuận tiện di chuyển. Phía trong cùng là phòng bếp và bàn ăn (22.5m2), nơi giữ lửa cho gia đình với thiết kế thoáng đãng.

Bản vẽ bố trí công năng tầng 1 mẫu nhà phố tân cổ điển 5 tầng diện tích 91m2 có gara.
Bản vẽ bố trí công năng tầng 1 mẫu nhà phố tân cổ điển 5 tầng diện tích 91m2 có gara.

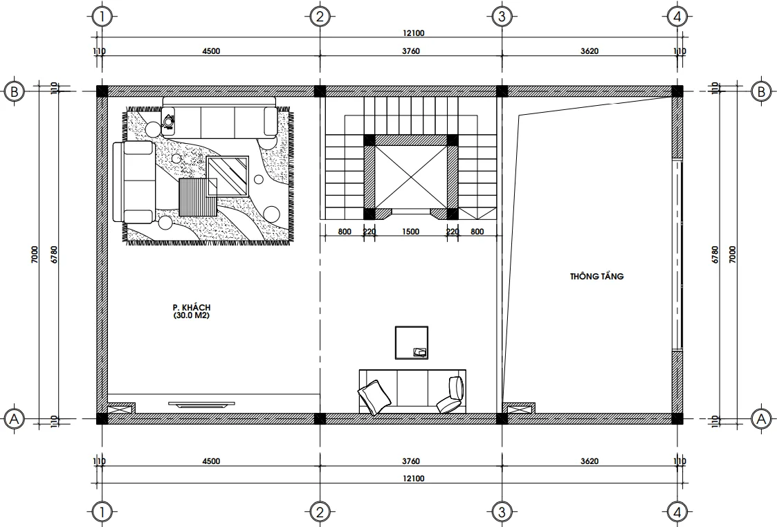
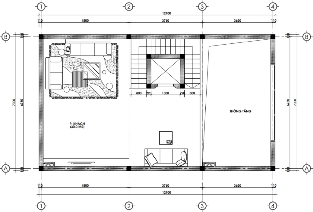
Tầng 2: Phòng khách thông tầng – Đẳng cấp đại gia

Điểm đắt giá nhất của công trình chính là phòng khách rộng 30m2 kết hợp với khoảng thông tầng lớn. Thiết kế này thường chỉ thấy ở các căn biệt thự đơn lập, nhưng đã được khéo léo đưa vào mẫu nhà phố tân cổ điển 5 tầng này. Khoảng thông tầng giúp không gian phòng khách trở nên cao vút, sang trọng và cực kỳ thoáng khí.

Bản vẽ bố trí công năng tầng 2 mẫu nhà phố tân cổ điển 5 tầng diện tích 85m2 có phòng khách.
Bản vẽ bố trí công năng tầng 2 mẫu nhà phố tân cổ điển 5 tầng diện tích 85m2 có phòng khách.

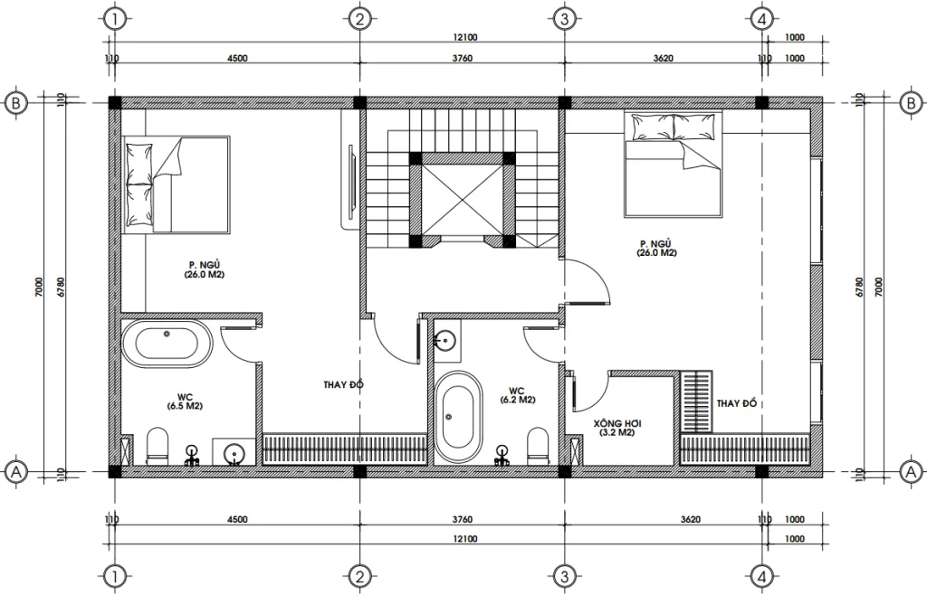
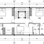
Tầng 3: Không gian nghỉ dưỡng Master

Tầng 3 dành trọn cho 2 phòng ngủ lớn (26m2 mỗi phòng). Đặc biệt, gia chủ rất chú trọng sức khỏe nên Techhome đã bố trí thêm phòng xông hơi (3.2m2). Sau một ngày làm việc mệt mỏi, được trở về căn phòng của mình trong mẫu nhà phố tân cổ điển 5 tầng, thư giãn trong phòng xông hơi thì còn gì tuyệt vời bằng.

Bản vẽ bố trí công năng tầng 3 mẫu nhà phố tân cổ điển 5 tầng diện tích 91m2
Bản vẽ bố trí công năng tầng 3 mẫu nhà phố tân cổ điển 5 tầng diện tích 91m2

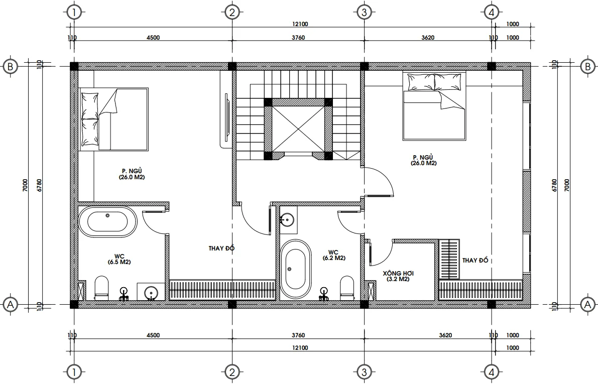
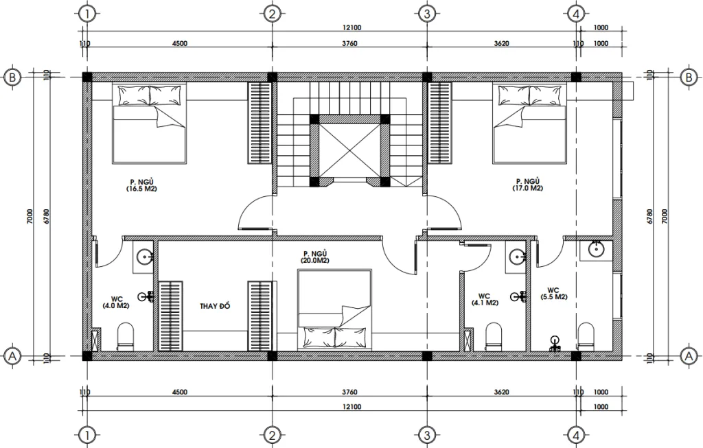
Tầng 4: Sự riêng tư cho các thành viên

Tầng này gồm 3 phòng ngủ với diện tích linh hoạt từ 16.5m2 đến 20m2. Mỗi phòng đều có nhà vệ sinh riêng, đảm bảo sự riêng tư tuyệt đối cho các con hoặc khách đến chơi nhà. Việc bố trí nhiều phòng ngủ khiến mẫu nhà phố tân cổ điển 5 tầng trở thành lựa chọn hoàn hảo cho gia đình “tam đại đồng đường”.

Bản vẽ bố trí công năng tầng 4 mẫu nhà phố tân cổ điển 5 tầng diện tích 91m2
Bản vẽ bố trí công năng tầng 4 mẫu nhà phố tân cổ điển 5 tầng diện tích 91m2

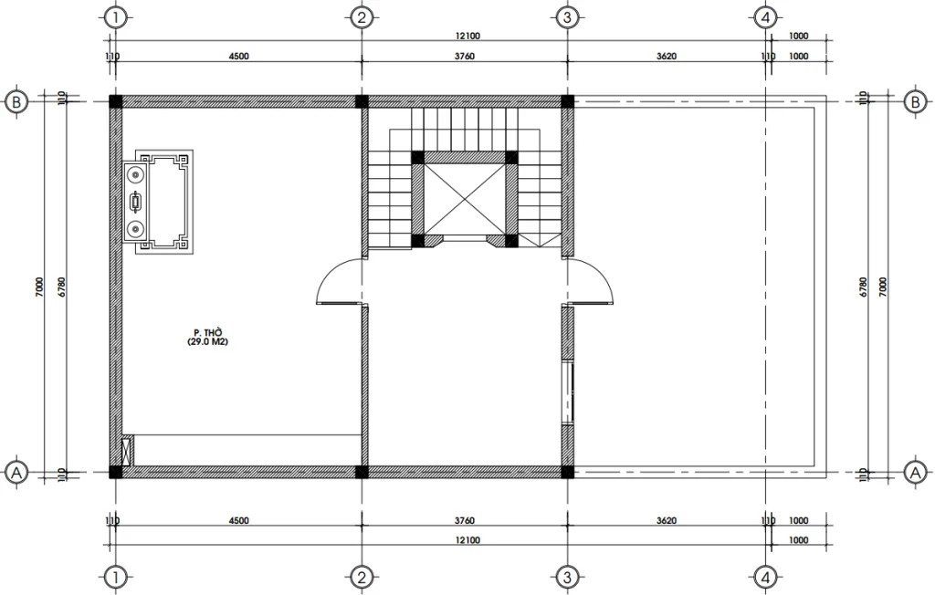
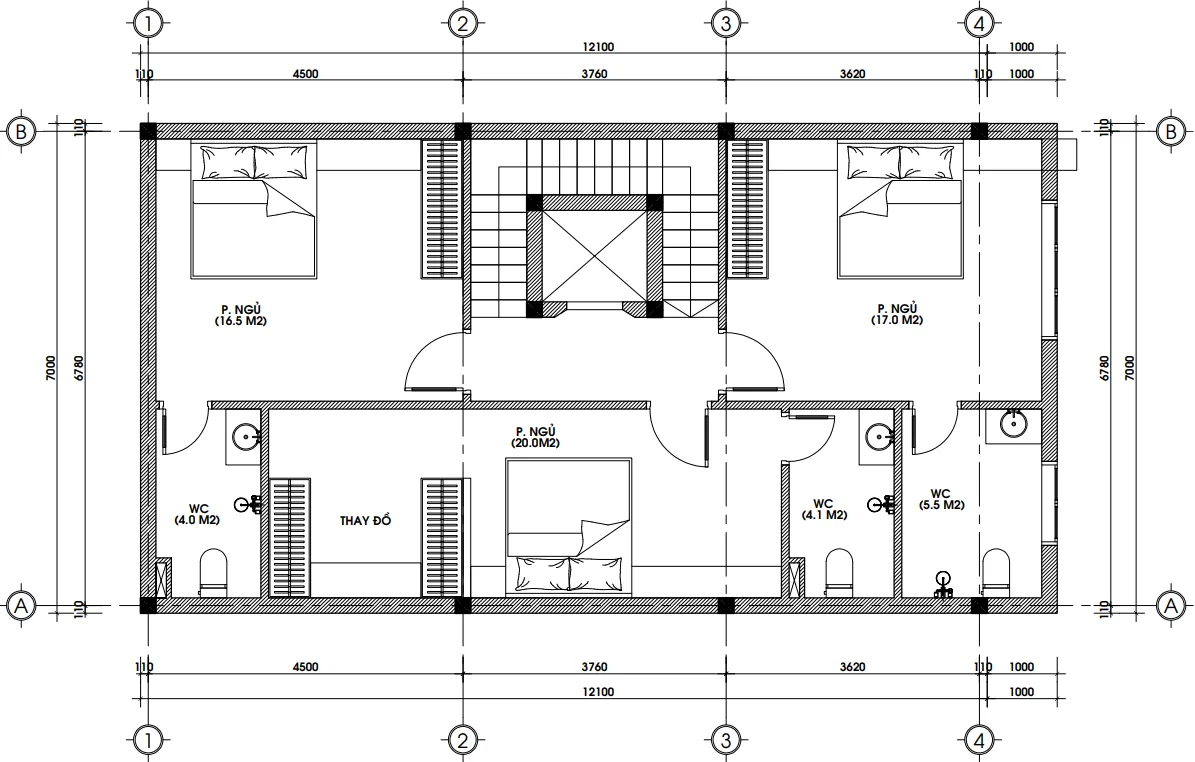
Tầng Tum: Nơi thờ tự và thư giãn

Tầng cao nhất được dành cho phòng thờ (29m2) – không gian trang nghiêm, tách biệt với sự ồn ào. Phần diện tích còn lại là sân thượng, nơi gia chủ có thể trồng cây, thưởng trà và ngắm nhìn toàn cảnh thành phố Bắc Ninh từ trên cao.

Bản vẽ bố trí công năng tầng tum mẫu nhà phố tân cổ điển 5 tầng diện tích 35m2
Bản vẽ bố trí công năng tầng tum mẫu nhà phố tân cổ điển 5 tầng diện tích 35m2

4. Tại sao mẫu nhà phố tân cổ điển 5 tầng lại lên ngôi trong năm 2026?

Không phải ngẫu nhiên mà nhiều khách hàng tại Techhome lại lựa chọn phong cách này.

  1. Vẻ đẹp bền bỉ: Kiến trúc tân cổ điển không bị lỗi mốt như các xu hướng “trend” ngắn hạn.

  2. Khẳng định vị thế: Nhìn vào một mẫu nhà phố tân cổ điển 5 tầng, người ta thấy được sự chỉn chu và điều kiện kinh tế của gia chủ.

  3. Giá trị bất động sản: Những ngôi nhà có thiết kế kiến trúc bài bản luôn có giá trị chuyển nhượng cao hơn.

Góc nghiêng mẫu nhà phố tân cổ điển 5 tầng

5. Báo giá thiết kế và thi công (Tham khảo 2026)

Techhome luôn minh bạch trong vấn đề tài chính để gia chủ yên tâm chuẩn bị. Dưới đây là mức giá tham khảo cho một mẫu nhà phố tân cổ điển 5 tầng tương tự:

Hạng mục Đơn giá (VNĐ) Ghi chú
Thiết kế kiến trúc  130.000 /m2 Hồ sơ thi công đầy đủ
Thi công phần thô 4.000.000 – 5.000.000 /m2 Bao gồm nhân công & vật tư thô
Thi công hoàn thiện 3.500.000 – 5.500.000 /m2 Tùy vào mức độ cao cấp của vật liệu
Gói chìa khóa trao tay Từ 9.000.000 /m2 Bao gồm cả phào chỉ, đá mặt tiền

Lưu ý: Đây chỉ là mức chi phí ước tính. Để nhận được báo giá chính xác và chi tiết nhất cho công trình của bạn, vui lòng liên hệ trực tiếp với chúng tôi. Hoặc để tìm hiểu rõ hơn về tiêu chuẩn vật liệu xây dựng và các yếu tố ảnh hưởng đến chi phí, bạn có thể tham khảo thêm tại các bài viết chuyên sâu về vật liệu xây dựng cao cấp trên Wikipedia.

Phối cảnh tổng thể từ trên cao mẫu nhà phố tân cổ điển 5 tầng có tầng tum và sân thượng.
Phối cảnh tổng thể từ trên cao mẫu nhà phố tân cổ điển 5 tầng có tầng tum và sân thượng.

6. Những lưu ý “sống còn” khi xây nhà phố tân cổ điển

Với tư cách là chuyên gia tại Techhome, tôi có vài lời khuyên chân thành cho bạn khi làm mẫu nhà phố tân cổ điển 5 tầng:

  • Đừng quá tham chi tiết: Tân cổ điển là sự tinh tế, không phải là “đắp” thật nhiều hoa văn. Nếu làm quá đà, ngôi nhà sẽ trở nên nặng nề và sến súa.

  • Chú trọng hệ thống ánh sáng: Đèn hắt tường và đèn chùm phòng khách phải được chọn lọc kỹ để tôn lên các đường cong kiến trúc vào ban đêm.

  • Chọn đơn vị thi công có tay nghề: Phào chỉ và phù điêu trong mẫu nhà phố tân cổ điển 5 tầng đòi hỏi thợ phải có tay nghề rất cao, nếu không sẽ bị thô và méo mó.

Tổng thể mẫu nhà phố tân cổ điển 5 tầng

7. Kết luận

Mẫu nhà của anh Tuấn tại Bắc Ninh là minh chứng cho việc: nếu có sự đầu tư đúng chỗ và một đơn vị thiết kế tâm huyết, bạn hoàn toàn có thể sở hữu một tác phẩm nghệ thuật giữa lòng phố thị. Mẫu nhà phố tân cổ điển 5 tầng không chỉ đáp ứng nhu cầu ở, mà còn là nơi lưu giữ những khoảnh khắc hạnh phúc của gia đình.

Nếu bạn đang nung nấu ý định xây dựng một mẫu nhà phố tân cổ điển 5 tầng, đừng ngần ngại liên hệ với Kiến trúc Techhome. chúng tôi không chỉ vẽ ra những ngôi nhà, chúng tôi cùng bạn xây dựng ước mơ.

Kiến trúc Techhome – Kiến tạo không gian, dựng xây hạnh phúc.

  • Hotline: 036.273.2222

  • Website: https://nhadeptechhome.vn/

  • Địa chỉ: B1.1 LK18 Ô 3 – KĐT Thanh Hà – Cienco 5 – Thanh Oai- Hà Nội.

Để lại một bình luận

Email của bạn sẽ không được hiển thị công khai. Các trường bắt buộc được đánh dấu *

    Vui lòng nhấn nút YÊU CẦU TƯ VẤN và đợi 1 - 2 giây đến khi thấy thông báo thành công

    YÊU CẦU TƯ VẤN