Xây nhà là việc cả đời. Với nhiều người, đó không chỉ là gạch đá, xi măng mà là nơi “an cư lạc nghiệp”, là nơi bão dừng sau cánh cửa. Vừa qua, đội ngũ TechHome có cơ hội thực hiện dự án cho gia đình chị Yên tại Hòa Xá, Hà Nội. Đây là một mẫu nhà phố 3 tầng hiện đại điển hình, giải quyết bài toán diện tích phố phổ biến nhưng vẫn đảm bảo sự sang trọng và tiện nghi tối đa.
Nếu bạn đang sở hữu mảnh đất có mặt tiền khoảng 5m và đang loay hoay tìm ý tưởng, hãy cùng mình “soi” kỹ thiết kế này để thấy tại sao nó lại được lòng gia chủ đến vậy.

1. Phối cảnh ngoại thất: Sự kết hợp giữa tối giản và đẳng cấp
Nhìn vào mặt tiền của mẫu nhà phố 3 tầng hiện đại này, ấn tượng đầu tiên chính là sự thanh lịch. Không rườm rà hoa văn cổ điển, ngôi nhà đi theo lối kiến trúc phẳng, sử dụng các hình khối vuông vức để tạo chiều sâu.
-
Màu sắc: Sự kết hợp giữa tông trắng chủ đạo, điểm xuyết màu xám đậm và các mảng ốp gỗ nhựa ở trần ban công tạo cảm giác ấm áp nhưng vẫn rất “tây”.
-
Vật liệu: Hệ thống cửa kính khung nhôm Xingfa bản lớn giúp lấy sáng tối đa cho không gian bên trong. Ban công sử dụng kính cường lực, vừa an toàn vừa không che chắn tầm nhìn, giúp ngôi nhà trông rộng hơn thực tế.
-
Điểm nhấn: Phần đèn hắt tường và đèn downlight âm trần được bố trí tinh tế, giúp ngôi nhà lung linh như một “resort phố” khi màn đêm buông xuống.

2. Chi tiết công năng: Tối ưu đến từng centimet
Một mẫu nhà phố 3 tầng hiện đại đẹp thôi chưa đủ, nó phải “sướng” khi ở. Với diện tích sàn tầng 1 là 70m2 và các tầng trên là 75m2, TechHome đã tính toán kỹ lưỡng lộ trình di chuyển của các thành viên.
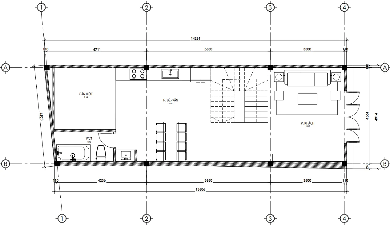
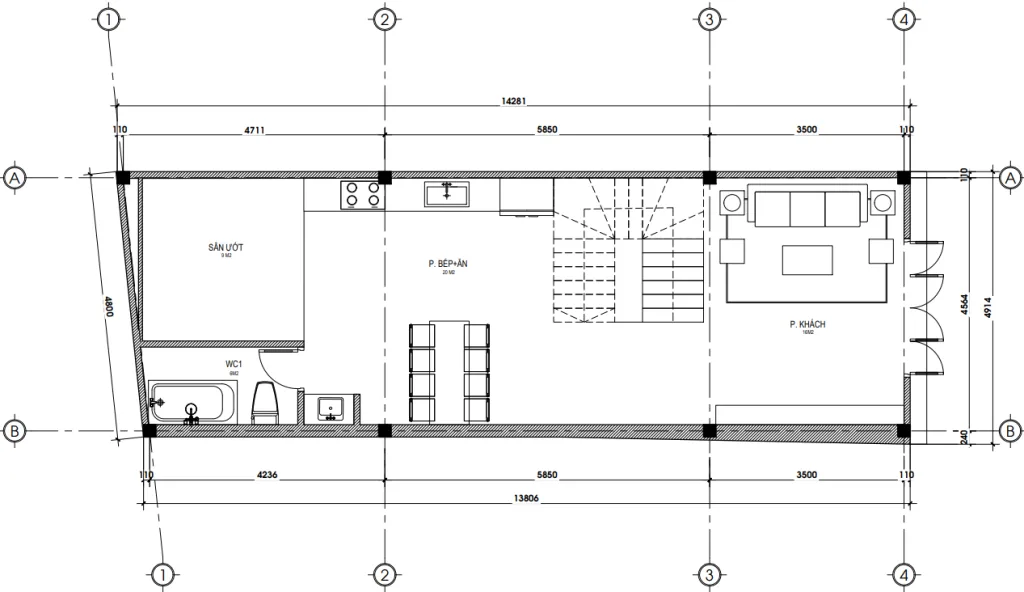
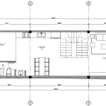
Tầng 1: Không gian kết nối gia đình
Bước vào từ cổng chính là phòng khách rộng rãi (3.5m chiều sâu). Ngay sau đó là hệ thống cầu thang 21 bậc. Điểm mình rất ưng ở thiết kế này là khu vực bếp và bàn ăn (P. Bếp+Ăn) được đặt phía sau, có sân ướt riêng biệt.
-
Chiều cao tầng 1: 3.6m. Con số này cực kỳ quan trọng, nó giúp phòng khách thoáng đạt, không bị cảm giác đè nén.
-
Sân ướt: Đây là khu vực cực kỳ thực tế cho các gia đình Việt khi có giỗ chạp hoặc cần sơ chế đồ tươi sống mà không làm bẩn sàn bếp chính.

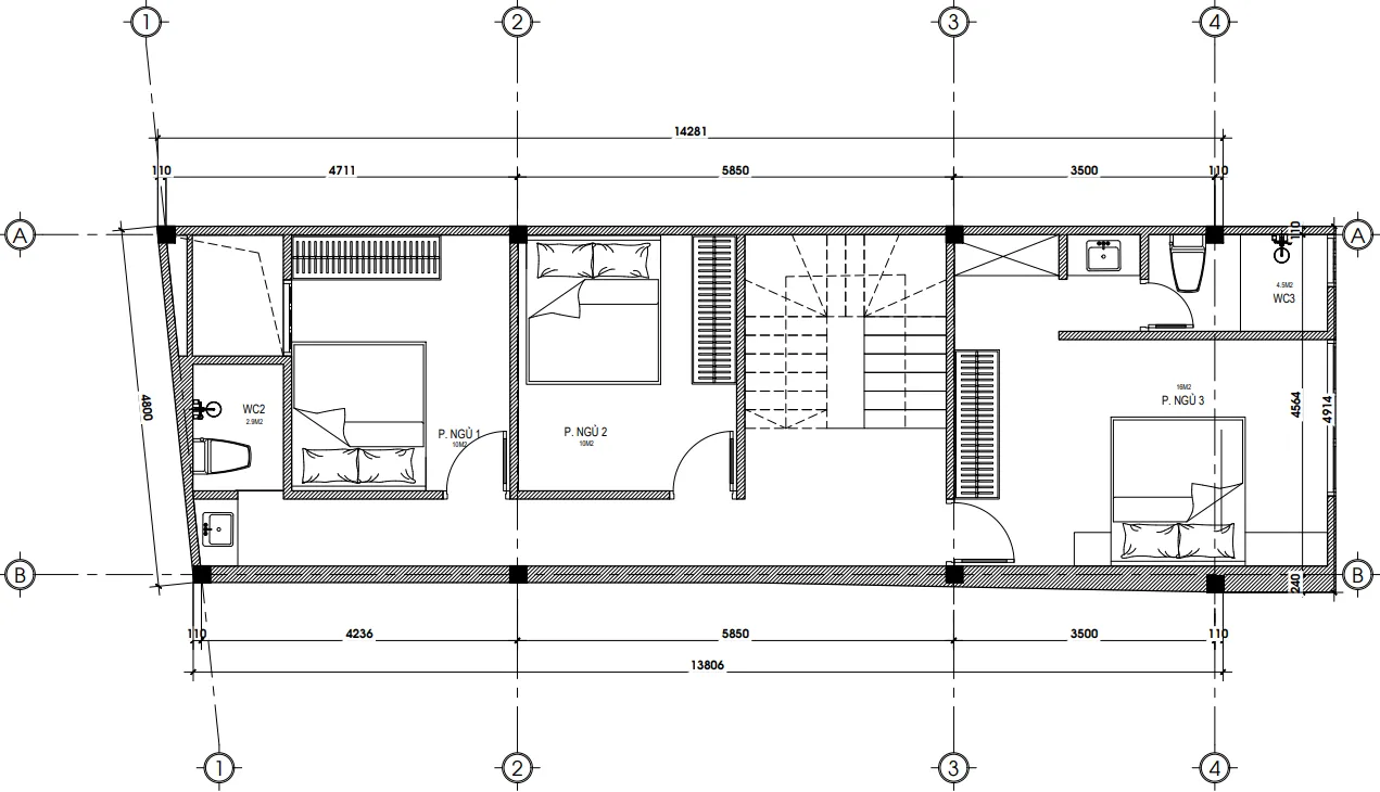
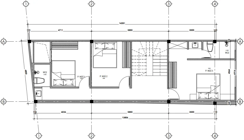
Tầng 2: “Lãnh địa” nghỉ ngơi
Tầng này được dành trọn vẹn cho việc nghỉ ngơi với 3 phòng ngủ.
-
Phòng ngủ master: Có ban công riêng, hướng ra mặt tiền.
-
Hệ thống vệ sinh: Bố trí 2 WC (WC2 và WC3) đảm bảo tính riêng tư và thuận tiện, nhất là vào buổi sáng khi cả nhà cùng chuẩn bị đi làm, đi học.

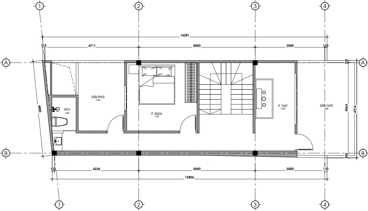
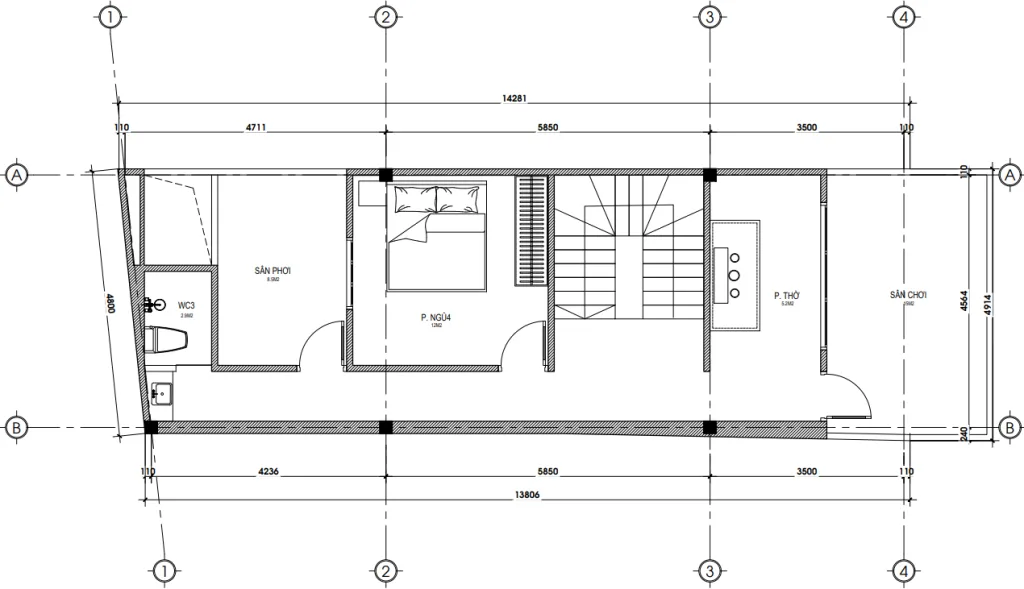
Tầng 3: Tâm linh và thư giãn
Tầng 3 bao gồm 1 phòng ngủ phụ (P. Ngủ 4), phòng thờ, sân phơi và sân chơi.
-
Phòng thờ: Đặt ở vị trí trang trọng, yên tĩnh.
-
Sân chơi: Đây là khoảng hở đắt giá của mẫu nhà phố 3 tầng hiện đại. Bạn có thể trồng cây, đặt một bộ bàn trà nhỏ để “chill” mỗi tối.
-
Chiều cao tầng 3: 3.3m, vừa đủ ấm cúng và tiết kiệm chi phí xây dựng.

3. Hệ thống kỹ thuật và mái
Quan sát từ trên cao, ngôi nhà sử dụng hệ mái bằng bê tông cốt thép chắc chắn. Trên mái được bố trí téc nước inox và hệ thống máy nước nóng năng lượng mặt trời – một lựa chọn thông minh để tiết kiệm điện và bảo vệ môi trường. Các ô giếng trời (skylight) cũng được lắp đặt ngay trên khu vực cầu thang để lấy sáng tự nhiên cho toàn bộ lõi nhà.

4. Tại sao bạn nên chọn mẫu nhà phố 3 tầng hiện đại của TechHome?
Thiết kế của chị Yên không chỉ là một bản vẽ đẹp mà là sự kết tinh của kinh nghiệm thi công thực chiến. Đội ngũ kiến trúc sư đã kiểm duyệt kỹ lưỡng từng thông số từ chiều cao bậc thang (171mm) đến độ dày tường, đảm bảo công trình bền vững theo thời gian.
Mỗi mẫu nhà phố 3 tầng hiện đại tại TechHome đều được cá nhân hóa. Chúng tôi không copy-paste bản vẽ, chúng tôi lắng nghe thói quen sinh hoạt của bạn để “may đo” không gian sống phù hợp nhất.

5. Báo giá xây dựng trọn gói (Tham khảo năm 2026)
Để anh em dễ hình dung về tài chính khi muốn xây dựng một mẫu nhà phố 3 tầng hiện đại tương tự tại khu vực Hà Nội, TechHome xin đưa ra mức giá dự toán như sau:
| Hạng mục | Đơn giá (VNĐ/m2) | Ghi chú |
| Xây dựng phần thô | 3.800.000 – 4.200.000 | Bao gồm nhân công, vật tư xây thô (gạch, cát, đá, xi măng, thép…) |
| Xây nhà trọn gói (Gói khá) | 6.500.000 – 7.500.000 | Chìa khóa trao tay, vật liệu hoàn thiện cao cấp (nhôm kính, sơn, thiết bị vệ sinh…) |
| Thiết kế kiến trúc | 108.000 | Full hồ sơ thi công, phối cảnh 3D nội ngoại thất |
Ước tính tổng chi phí cho căn nhà chị Yên (Tổng diện tích xây dựng ~220m2):
-
Phần thô: Khoảng 900 triệu.
-
Trọn gói hoàn thiện: Khoảng 1,5 tỷ – 1,7 tỷ VNĐ (Tùy thuộc vào mức độ đầu tư nội thất của gia chủ).
Lưu ý: Đây chỉ là mức chi phí ước tính. Để nhận được báo giá chính xác và chi tiết nhất cho công trình của bạn, vui lòng liên hệ trực tiếp với chúng tôi. Hoặc để tìm hiểu rõ hơn về tiêu chuẩn vật liệu xây dựng và các yếu tố ảnh hưởng đến chi phí, bạn có thể tham khảo thêm tại các bài viết chuyên sâu về vật liệu xây dựng cao cấp trên Wikipedia.

6. Góc nhìn chuyên gia: Những lưu ý “sống còn” khi xây nhà phố
Là người trực tiếp tham gia tư vấn nhiều công trình, mình có vài lời khuyên chân thành cho anh em đang có ý định chọn mẫu nhà phố 3 tầng hiện đại:
-
Đừng bỏ qua giếng trời: Với nhà phố dài trên 12m như nhà chị Yên, giếng trời là “lá phổi”. Thiếu nó, nhà sẽ bí bách và u ám.
-
Chú trọng chống thấm: Với thiết kế mái bằng, việc xử lý chống thấm và thoát nước sàn mái phải được giám sát cực kỳ chặt chẽ. Đừng để “tiền mất tật mang” sau vài mùa mưa.
-
Lựa chọn vật liệu bền vững: Xu hướng của mẫu nhà phố 3 tầng hiện đại năm 2026 là sử dụng vật liệu xanh, gỗ nhựa ngoài trời thay cho gỗ tự nhiên để tránh cong vênh, mối mọt mà vẫn giữ được thẩm mỹ.
-
Phong thủy khoa học: Đừng quá sa đà vào bói toán, hãy tập trung vào hướng gió, hướng sáng và sự lưu thông không khí. Đó chính là phong thủy tốt nhất cho sức khỏe gia đình.
Mẫu nhà phố 3 tầng hiện đại của chị Yên tại Hòa Xá thực sự là một bài toán mẫu mực cho sự cân bằng giữa chi phí, thẩm mỹ và công năng. Nếu bạn yêu thích phong cách này, đừng ngần ngại nhấc máy gọi cho TechHome. Chúng tôi luôn sẵn sàng lắng nghe và cùng bạn xây dựng tổ ấm trong mơ.

TechHome – Kiến tạo không gian, dựng xây hạnh phúc.
🏠 Website: https://nhadeptechhome.vn/
☎️ Hotline: 036.273.2222
📍 Địa chỉ: B1.1 LK18 Ô 3 – KĐT Thanh Hà – Cienco 5 – Thanh Oai- Hà Nội.
