Khám phá mẫu thiết kế nhà phố hiện đại 2 tầng 1 tum của gia đình Anh Hoàng An tại An Dương, Hải Phòng. Tổng diện tích sàn 202m², kiến trúc tối giản, công năng khoa học với 3 phòng ngủ, phòng khách, bếp, phòng thờ. Liên hệ Techhome để nhận tư vấn thiết kế và báo giá trọn gói tối ưu chi phí!
🌟 Biến Tấu Không Gian Sống Chuẩn Phong Cách Hiện Đại
Dự án Nhà ở Gia đình Anh Hoàng An tại An Dương, Hải Phòng là một minh chứng rõ nét cho sự kết hợp hoàn hảo giữa thẩm mỹ đương đại và công năng sử dụng tối ưu. Được phát triển và thiết kế bởi đội ngũ kiến trúc sư hàng đầu của Techhome, công trình đã giải quyết bài toán về nhà phố có diện tích đất hẹp ngang, sâu, mang lại không gian sống thoáng đãng, tiện nghi.
Tóm tắt dự án:
- Chủ đầu tư: Anh Hoàng An
- Địa điểm: An Dương, Hải Phòng
- Loại hình: Nhà phố 3 tầng (Bao gồm tầng 1, tầng 2 và tầng Tum)
- Phong cách: Kiến trúc hiện đại, tối giản với điểm nhấn đường cong mềm mại.
- Tổng diện tích thiết kế: 202 m²
Phong cách thiết kế nhà phố hiện đại 2 tầng 1 tum được lựa chọn, nhấn mạnh vào hình khối đơn giản, các mảng đặc rỗng đối xứng và đặc biệt là việc sử dụng các đường cong mềm mại ở ban công, cửa sổ để phá vỡ sự khô cứng, tạo nên một vẻ đẹp tinh tế và khác biệt. Đây là một giải pháp kiến trúc lý tưởng cho những gia đình mong muốn một không gian sống sang trọng, bền vững và hợp xu hướng.

🖼️ Phối Cảnh Ngoại Thất Ấn Tượng Của Nhà Phố Hiện Đại 2 Tầng 1 Tum
Ngoại thất của ngôi nhà Anh An là sự pha trộn khéo léo giữa chủ nghĩa tối giản và xu hướng thiết kế lấy cảm hứng từ thiên nhiên.
- Hình khối và Màu sắc: Kiến trúc sử dụng khối hộp chữ nhật đặc trưng của nhà phố, nhưng được điểm xuyết bởi các đường cong bo tròn tinh tế ở ban công và khu vực sảnh tầng 1. Màu sắc chủ đạo là tone trắng sứ, kết hợp với màu gạch đỏ trần thạch cao/ốp tường tạo nên sự tương phản sang trọng, hiện đại .
- Vật liệu và Điểm nhấn: Điểm nhấn đặc biệt nằm ở khu vực ban công tầng 2 và tầng tum, nơi sử dụng hệ lam che nắng giả gỗ màu nâu trầm, vừa có tác dụng chắn sáng, vừa tăng tính thẩm mỹ cao cấp . Lan can kính cường lực được ưu tiên sử dụng để mở rộng tầm nhìn và tăng vẻ đẹp hiện đại, thông thoáng cho mặt tiền. Các mảng tường ốp gạch thẻ giả đá/gạch đỏ ở tầng trệt và ban công tạo chiều sâu và sự khác biệt cho tổng thể.
- Ánh sáng và Cảnh quan: Hệ thống cửa kính lớn (cửa vòm và cửa chữ nhật) được bố trí khoa học giúp tận dụng tối đa ánh sáng tự nhiên cho không gian bên trong. Cây xanh được bố trí trên ban công và sân thượng, tạo nên một “lá phổi xanh” điều hòa không khí và tăng cường sự kết nối giữa con người và thiên nhiên, điều này đặc biệt quan trọng đối với các công trình nhà phố tại Hải Phòng vốn chật hẹp.
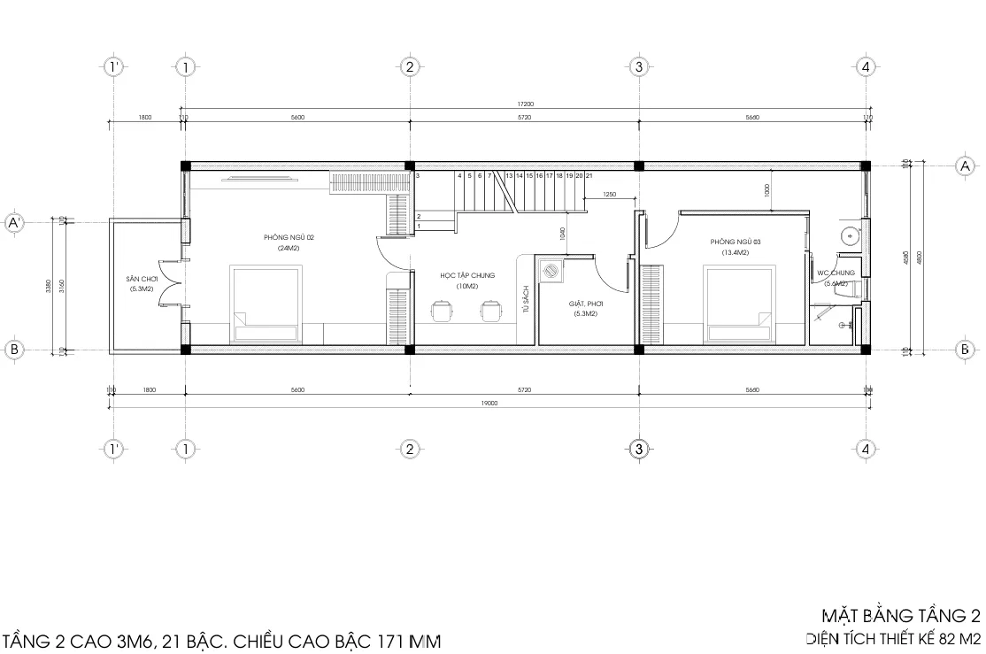
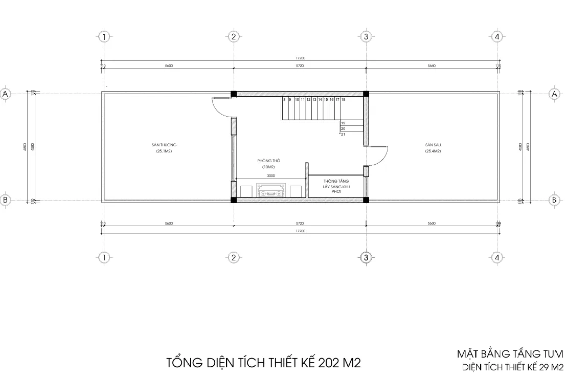
📐 Phân Tích Mặt Bằng Công Năng Tối Ưu: Khoa Học Trên Tổng Diện Tích 202 M²
Mặt bằng công năng nhà phố hiện đại 2 tầng 1 tum được bố trí dựa trên kích thước thực tế của khu đất (4,8m x 19m) và nhu cầu sinh hoạt của gia đình Anh An. Thiết kế đảm bảo sự thông thoáng, liên kết chặt chẽ giữa các không gian, tối ưu hóa 202m2 diện tích sàn xây dựng.
| Tầng | Diện tích thiết kế | Chiều cao | Bố trí Công năng |
| Tầng 1 | 91m2 | 3m7 | Tiền sảnh (4,6m2), Phòng Khách (24,4m2), Bếp + Ăn (22m2), 1 Phòng Ngủ (13,4m2), WC chung |
| Tầng 2 | 82m2 | 3m6 | 2 Phòng Ngủ (24m2 và 13,4m2), Phòng Học Tập Chung (10m2), Sân Chơi (5,3m2), Giặt Phơi (5,3m2), WC Chung. |
| Tầng Tum | 29m2 | Phòng Thờ (10m2), Sân Thượng và sân sau thông thoáng , khu vực thông tầng lấy sáng. |
Sự khoa học thể hiện qua:
Tận dụng tối đa: Việc bố trí phòng ngủ ngay tại Tầng 1 (kề WC chung) rất tiện nghi cho người lớn tuổi hoặc khách đến chơi.
Liên kết không gian: Khu vực cầu thang và giếng trời (thông tầng) được đặt ở giữa nhà, giúp đối lưu không khí và chiếu sáng tự nhiên cho toàn bộ không gian nội thất.
Phân chia hợp lý: Tầng 2 là không gian nghỉ ngơi và học tập, tách biệt hoàn toàn với không gian tiếp khách và bếp tầng 1, đảm bảo sự riêng tư tuyệt đối.
🏗️ Đánh Giá về Kết cấu và Vật liệu Xây dựng
Đối với công trình nhà phố hiện đại 2 tầng 1 tum như nhà Anh An, Techhome luôn đề xuất và áp dụng giải pháp kết cấu chịu lực tối ưu để đảm bảo tính bền vững và an toàn trong quá trình sử dụng.
Kết cấu: Sử dụng kết cấu khung bê tông cốt thép toàn khối, là giải pháp tối ưu nhất cho nhà ở gia đình Việt Nam, đặc biệt tại khu vực có nền đất tương đối ổn định như An Dương, Hải Phòng. Giải pháp này cho phép không gian linh hoạt, dễ dàng thay đổi công năng sau này.
Vật liệu hoàn thiện:
Mặt tiền: Ưu tiên vật liệu hiện đại, bền màu như sơn ngoại thất cao cấp (có khả năng chống nấm mốc, chống thấm), kết hợp với gạch ốp, đá tự nhiên hoặc gạch giả gỗ cho các mảng tường trang trí.
Hệ mái/Sân Thượng: Sử dụng mái bằng chống thấm ngược với hệ thống thoát nước khoa học (mương thoát nước ), đảm bảo tuổi thọ công trình. Khu vực sân thượng được lát gạch chống trơn trượt, chịu nhiệt tốt.
Nội thất: Các vật liệu như cửa kính cường lực khung nhôm xingfa (chịu lực, cách âm), sàn gỗ công nghiệp/gạch lát cao cấp được cân nhắc sử dụng để đảm bảo tính thẩm mỹ, độ bền và chi phí đầu tư hợp lý.

🤝 Lợi Ích và Giá Trị Khi Chọn Techhome
Techhome tự hào là đơn vị tiên phong trong lĩnh vực thiết kế và thi công trọn gói, mang lại những giá trị vượt trội cho khách hàng:
Kinh nghiệm và Năng lực: Techhome có đội ngũ Kiến trúc sư, Kỹ sư giàu kinh nghiệm, chuyên môn cao, đã thực hiện hàng trăm dự án từ nhà phố, biệt thự đến công trình thương mại tại Hải Phòng và các tỉnh lân cận.
Quy trình làm việc Chuyên nghiệp: Từ khâu khảo sát thực địa, lên phương án mặt bằng công năng , đến triển khai chi tiết kiến trúc, kết cấu và thi công đều được thực hiện theo tiêu chuẩn nghiêm ngặt, đảm bảo chất lượng và tiến độ.
Cam kết Chất lượng và Bảo hành: Techhome cam kết vật liệu xây dựng chính hãng, đúng chủng loại, đảm bảo sự minh bạch về chi phí. Công trình được bảo hành kết cấu dài hạn, giúp chủ đầu tư an tâm tuyệt đối.
Tối ưu Chi phí: Với sự am hiểu thị trường, chúng tôi luôn đưa ra các giải pháp thiết kế và thi công tối ưu, giúp khách hàng tiết kiệm chi phí nhưng vẫn đảm bảo chất lượng và thẩm mỹ công trình.
💰 Nhà Phố Hiện Đại 2 Tầng 1 Tum có giá bao nhiêu?
Chi phí xây dựng luôn là yếu tố quan trọng hàng đầu. Đối với dự án Nhà phố hiện đại 2 tầng 1 tum với tổng diện tích sàn 202m2 như nhà Anh An, mức chi phí sẽ phụ thuộc vào nhiều yếu tố:
Mức đầu tư: Gói vật liệu (Trung bình, Khá, Cao cấp).
Thời điểm thi công: Giá vật liệu xây dựng và nhân công tại khu vực Hải Phòng.
Phạm vi công việc: Thiết kế kiến trúc, thiết kế nội thất, hay thi công trọn gói (Chìa khóa trao tay).
Lưu ý: Đây chỉ là mức chi phí ước tính. Để nhận được báo giá chính xác và chi tiết nhất cho công trình của bạn, vui lòng liên hệ trực tiếp với chúng tôi. Hoặc để tìm hiểu rõ hơn về tiêu chuẩn vật liệu xây dựng và các yếu tố ảnh hưởng đến chi phí, bạn có thể tham khảo thêm tại các bài viết chuyên sâu về vật liệu xây dựng cao cấp trên Wikipedia.
📞 Kết Luận
Mẫu nhà phố hiện đại 2 tầng 1 tum của Anh Hoàng An tại An Dương, Hải Phòng là một ví dụ điển hình cho không gian sống tiện nghi, thẩm mỹ và khoa học.
Bạn đang tìm kiếm một đơn vị thiết kế và thi công nhà phố trọn gói uy tín tại Hải Phòng hoặc các tỉnh lân cận?
Hãy để Techhome biến ước mơ về ngôi nhà hoàn hảo của bạn thành hiện thực!
Liên hệ ngay với Techhome để được tư vấn miễn phí và nhận báo giá chi tiết:
Hotline Hỗ trợ : 0364042222 – 0387603333
Xem thêm các dự án nổi bật khác của Techhome tại https://nhadeptechhome.vn/







