1. Ngôi nhà, nơi bắt đầu câu chuyện hạnh phúc
Mỗi ngôi nhà không chỉ là nơi che nắng che mưa, mà còn là khởi đầu của những hành trình hạnh phúc. Trong vô vàn lựa chọn kiến trúc hiện nay, mẫu nhà vườn mái bằng 1 tầng hiện đại nổi lên như một “người bạn đồng hành” hoàn hảo cho các gia đình trẻ.
Không quá cầu kỳ, không cần đến diện tích đồ sộ, mẫu nhà này vừa mãn nhãn về thẩm mỹ, vừa có mức đầu tư cực kỳ hợp lý. Dự án thực tế của anh Nam tại Đồng Nai là minh chứng rõ ràng nhất – một tổ ấm giản dị nhưng tràn đầy tinh tế.
2. Mẫu nhà vườn mái bằng 1 tầng hiện đại – Đơn giản nhưng không hề đơn điệu
Điểm thu hút của kiểu nhà này nằm ở sự vuông vắn, khỏe khoắn và phóng khoáng. Mái bằng bê tông cốt thép tưởng chừng khô khan, nhưng khi kết hợp cùng mảng kính, lam gỗ và màu sắc hiện đại, lại tạo nên một diện mạo trẻ trung, thời thượng.
Đặc biệt, mái bằng còn được tận dụng để:
-
Trồng cây xanh, làm vườn nhỏ.
-
Tạo không gian BBQ cuối tuần.
-
Biến thành sân thượng thư giãn.
👉 Đây chính là “vũ khí bí mật” khiến nhiều gia chủ trẻ mê mẩn.
3. Những ưu điểm khiến gia chủ phải thốt lên “bất ngờ”
🎨 3.1. Thẩm mỹ hiện đại – Hợp gu thế hệ mới
Đường nét gãy gọn, mặt tiền tinh tế với kính cường lực và gạch ốp giúp mẫu nhà vườn mái bằng 1 tầng hiện đại trở thành tác phẩm nghệ thuật nhỏ gọn giữa phố thị.
💰 3.2. Giá cực hợp lý – Đầu tư thông minh
Chi phí xây dựng mái bằng tiết kiệm hơn 10–15% so với mái thái hay mái Nhật. Với ngân sách chưa tới 1,2 tỷ, gia đình đã có thể sở hữu một tổ ấm hiện đại, tiện nghi.
🌬️ 3.3. Thông thoáng và tiện nghi
Thiết kế mở, nhiều cửa kính giúp không gian ngập tràn ánh sáng và gió trời, hạn chế sự ngột ngạt thường thấy ở nhà phố.
🛠️ 3.4. Linh hoạt công năng
Dù chỉ một tầng, nhưng vẫn đủ để bố trí:
-
Phòng khách liên thông bếp.
-
2–3 phòng ngủ tiện nghi.
-
Sân trước để xe, sân sau làm giếng trời.
🧱 3.5. Bền vững theo thời gian
Mái bằng bê tông kiên cố, dễ sửa chữa và đặc biệt dễ nâng thêm tầng trong tương lai.
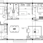
4. Dự án thực tế của anh Nam tại Đồng Nai – Minh chứng cho sự lựa chọn thông minh
Chủ đầu tư: Anh Nam
Địa điểm: Đồng Nai
🏠 Bố trí công năng
-
Phòng khách rộng kết nối với bếp – ăn, tạo không gian sinh hoạt chung ấm cúng.
-
03 phòng ngủ: 1 phòng master + 2 phòng con, đảm bảo sự riêng tư.
-
Phòng thờ nhỏ đặt cạnh phòng khách, hợp phong thủy.
-
Sân trước vừa để xe, vừa làm tiểu cảnh xanh.
-
Sân sau thông thoáng, lấy sáng tự nhiên.
👉 Tổng thể mẫu nhà vườn mái bằng 1 tầng hiện đại vừa gọn gàng, vừa tiện nghi, đáp ứng hoàn hảo nhu cầu sống của gia đình trẻ.
5. Chi phí xây dựng – “Hợp lý đến bất ngờ”
-
Xây thô: 4,5 – 5 triệu/m².
-
Hoàn thiện trọn gói: 6 – 7,5 triệu/m².
-
Tổng chi phí công trình anh Nam: khoảng 950 triệu – 1,2 tỷ đồng.
So với mặt bằng chung, đây là một khoản đầu tư cực kỳ hợp lý để sở hữu một ngôi nhà hiện đại, tiện nghi, bền vững.
Lưu ý: Đây chỉ là mức chi phí ước tính. Để nhận được báo giá chính xác và chi tiết nhất cho công trình của bạn, vui lòng liên hệ trực tiếp với chúng tôi. Hoặc để tìm hiểu rõ hơn về tiêu chuẩn vật liệu xây dựng và các yếu tố ảnh hưởng đến chi phí, bạn có thể tham khảo thêm tại các bài viết chuyên sâu về vật liệu xây dựng cao cấp trên Wikipedia.
6. Xu hướng thiết kế mẫu nhà vườn mái bằng 1 tầng hiện đại năm 2025
-
Phong cách tối giản: trắng – xám – gỗ, phù hợp gu thẩm mỹ trẻ.
-
Không gian xanh: sân vườn mini, vườn đứng, giếng trời.
-
Nhà phố nghỉ dưỡng: nhiều kính, thiết kế mở, gần gũi thiên nhiên.
-
Smart home: tích hợp công nghệ chiếu sáng, camera, khóa cửa thông minh.
7. Techhome – Đơn vị kiến tạo giá trị sống bền vững
Với kinh nghiệm nhiều năm trong lĩnh vực thiết kế & thi công trọn gói, Techhome cam kết:
-
Bản vẽ khoa học, tối ưu công năng – thẩm mỹ – phong thủy.
-
Thi công chuẩn, chất lượng bền vững.
-
Chi phí minh bạch, rõ ràng, không phát sinh.
-
Đồng hành cùng gia chủ từ bản vẽ trên giấy đến mái ấm hoàn thiện.
8. Mẫu nhà vườn mái bằng 1 tầng hiện đại: Lựa chọn thông minh của thế hệ trẻ
Mẫu nhà vườn mái bằng 1 tầng hiện đại không chỉ là một thiết kế kiến trúc, mà còn là giải pháp sống bền vững, hợp lý và đầy cảm xúc.
Dự án của anh Nam tại Đồng Nai là minh chứng cho sự lựa chọn sáng suốt – một tổ ấm vừa đẹp, vừa tiện nghi, vừa tiết kiệm.
Nếu bạn đang tìm kiếm một ngôi nhà phố đơn giản nhưng sang trọng, giá hợp lý nhưng vẫn bền vững, thì mẫu nhà vườn mái bằng 1 tầng hiện đại chính là câu trả lời.
Xem thêm các dự án nổi bật khác của Techhome tại https://nhadeptechhome.vn/



