Tại sao nhà phố mái Nhật 2 tầng lại được săn đón nhiều nhất hiện nay?

Trong những năm gần đây, mẫu nhà phố mái Nhật 2 tầng đã trở thành “ngôi sao sáng” trong lĩnh vực thiết kế và thi công nhà ở. Không chỉ mang đến vẻ đẹp sang trọng – tinh tế – gần gũi, kiểu nhà này còn khẳng định vị thế dẫn đầu khi ngày càng được các gia chủ trẻ và trung niên lựa chọn. Vậy đâu là lý do khiến mẫu nhà này “được lòng” đến thế? Hãy cùng Techhome khám phá qua công trình thực tế của chủ đầu tư anh Đông tại Hưng Yên.

Nhà phố mái Nhật 2 tầng

1. Vẻ đẹp cân đối – chuẩn phong thủy Á Đông

Điểm nhấn lớn nhất của nhà phố mái Nhật 2 tầng chính là hệ mái dốc thoải, vươn rộng ra bốn phía. Kiểu mái này không chỉ đẹp mắt mà còn:

  • Giúp thoát nước mưa nhanh, chống dột, chống nóng hiệu quả.

  • Mang tính phong thủy cao, tượng trưng cho sự che chở, vững bền và ấm no.

  • Tạo dáng nhà cân đối, sang trọng, mang hơi thở kiến trúc Nhật Bản hòa quyện cùng sự hiện đại.

Chính nhờ sự hài hòa ấy mà công trình của anh Đông ở Hưng Yên trở thành “điểm nhấn” trong khu phố, ai đi ngang cũng phải ngước nhìn.


2. Công năng tối ưu cho gia đình Việt

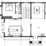
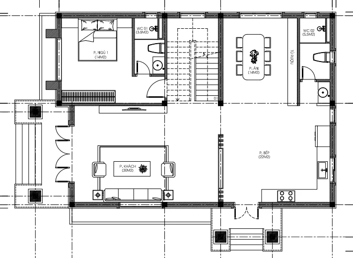
Một trong những lý do khiến mẫu Nhà phố mái Nhật 2 tầng được ưa chuộng chính là công năng sử dụng thông minh. Với diện tích rộng rãi, kiến trúc sư Techhome đã bố trí khoa học:

  • Tầng 1: Phòng khách rộng thoáng, phòng bếp – ăn kết hợp, 1 phòng ngủ cho ông bà, WC tiện lợi.

  • Tầng 2: 3 phòng ngủ riêng tư cho vợ chồng và các con, phòng thờ trang nghiêm, ban công thoáng đón nắng gió.

Thiết kế này không chỉ đáp ứng nhu cầu sinh hoạt hiện đại mà còn giữ trọn sự kết nối ấm cúng của gia đình nhiều thế hệ.


3. Phong cách hiện đại nhưng gần gũi thiên nhiên

 

Nhà phố mái Nhật không đơn thuần là nơi ở mà còn mang đến không gian sống xanh. Tại công trình Nhà phố mái Nhật 2 tầng của gia đình anh Đông, kiến trúc sư đã:

  • Khéo léo bố trí nhiều cửa sổ kính lớn, tận dụng ánh sáng tự nhiên.

  • Thiết kế ban công rộng rãi, trồng cây xanh để tạo cảm giác thư giãn.

  • Sử dụng tone màu trắng – xanh than làm chủ đạo, vừa hiện đại vừa thanh lịch.

Đây cũng là lý do khiến kiểu nhà này trở thành “trend” được các gia đình trẻ tại Hưng Yên, Hà Nội, Đồng Nai… ưa chuộng.


4. Chi phí hợp lý – giá trị vượt trội

So với biệt thự 3 tầng hay các mẫu lâu đài tân cổ điển, nhà mái Nhật 2 tầng mang lại sự cân bằng tuyệt vời giữa chi phí và thẩm mỹ.

  • Chi phí xây dựng vừa tầm, phù hợp với điều kiện tài chính của nhiều gia đình.

  • Thời gian thi công nhanh chóng, tiết kiệm.

  • Đảm bảo giá trị sử dụng lâu dài, ít xuống cấp.

Với mức đầu tư hợp lý, gia chủ đã sở hữu một không gian sống sang trọng, tiện nghi và bền vững theo năm tháng.

Để tìm hiểu rõ hơn về tiêu chuẩn vật liệu xây dựng và các yếu tố ảnh hưởng đến chi phí, bạn có thể tham khảo thêm tại các bài viết chuyên sâu về vật liệu xây dựng cao cấp trên Wikipedia.


5. Xu hướng dẫn đầu trong năm nay

Không ngẫu nhiên mà 99% gia chủ khi tìm hiểu đều bị thuyết phục bởi mẫu nhà mái Nhật 2 tầng. Đây không chỉ là ngôi nhà mơ ước, mà còn là xu hướng thiết kế bền vững trong nhiều năm tới.

  • Phù hợp với cả nông thôn lẫn thành thị.

  • Mang lại sự khác biệt giữa vô vàn mẫu nhà phố hiện đại.

  • Đáp ứng đồng thời 3 tiêu chí: đẹp – bền – tiện nghi.


Kết luận

Công trình nhà phố mái Nhật 2 tầng của anh Đông tại Hưng Yên chính là minh chứng rõ nét cho sức hút của mẫu nhà này. Techhome tự hào đã đồng hành và kiến tạo nên một không gian sống đẳng cấp, tinh tế và chuẩn xu hướng.

 Nếu bạn cũng đang tìm kiếm mẫu nhà phố mái Nhật 2 tầng hiện đại, hãy liên hệ Techhome để được tư vấn chi tiết và nhận bản vẽ thiết kế độc quyền.

Xem thêm các dự án nổi bật khác của Techhome tại https://nhadeptechhome.vn/

Để lại một bình luận

Email của bạn sẽ không được hiển thị công khai. Các trường bắt buộc được đánh dấu *

    Vui lòng nhấn nút YÊU CẦU TƯ VẤN và đợi 1 - 2 giây đến khi thấy thông báo thành công

    YÊU CẦU TƯ VẤN