Xây nhà là chuyện cả đời. Ai trong chúng ta cũng mong muốn có một tổ ấm không chỉ để che mưa che nắng mà còn phải là nơi thể hiện cá tính, sự thành đạt và là chốn đi về bình yên nhất. Vừa qua, Techhome đã hoàn thiện hồ sơ thiết kế kỹ thuật thi công cho công trình nhà phố hiện đại 5 tầng tại Sóc Sơn của gia đình anh Sức. Đây là một công trình điển hình cho xu hướng nhà phố hiện đại, tối ưu công năng trên diện tích đất 80m2.
1. Câu chuyện về ngôi nhà phố hiện đại 5 tầng tại Sóc Sơn
Khi tìm đến Techhome, anh Sức chia sẻ về mong muốn có một ngôi nhà vừa có thể kinh doanh ở tầng 1, vừa đảm bảo không gian sinh hoạt riêng tư, thông thoáng cho các thành viên trong gia đình ở các tầng trên. Sóc Sơn những năm gần đây đang chuyển mình mạnh mẽ, những ngôi nhà ống san sát nhau mọc lên, nên thách thức đặt ra cho đội ngũ KTS và các cộng sự là phải tạo ra một diện mạo khác biệt, hiện đại nhưng không được tách rời khỏi bối cảnh chung.
Mẫu nhà phố hiện đại 5 tầng tại Sóc Sơn này chính là câu trả lời hoàn hảo. Nó không quá phô trương nhưng lại cực kỳ thu hút bởi những đường nét hình khối dứt khoát, sự phối hợp nhịp nhàng giữa kính, gạch ốp và những khoảng xanh ban công.

2. Chi tiết mặt bằng công năng nhà phố hiện đại 5 tầng tại Sóc Sơn
Để hiểu rõ tại sao mẫu thiết kế này lại được gia đình anh Sức ưng ý đến vậy, mời các bạn cùng soi qua bản vẽ công năng chi tiết từng tầng do Techhome thực hiện.
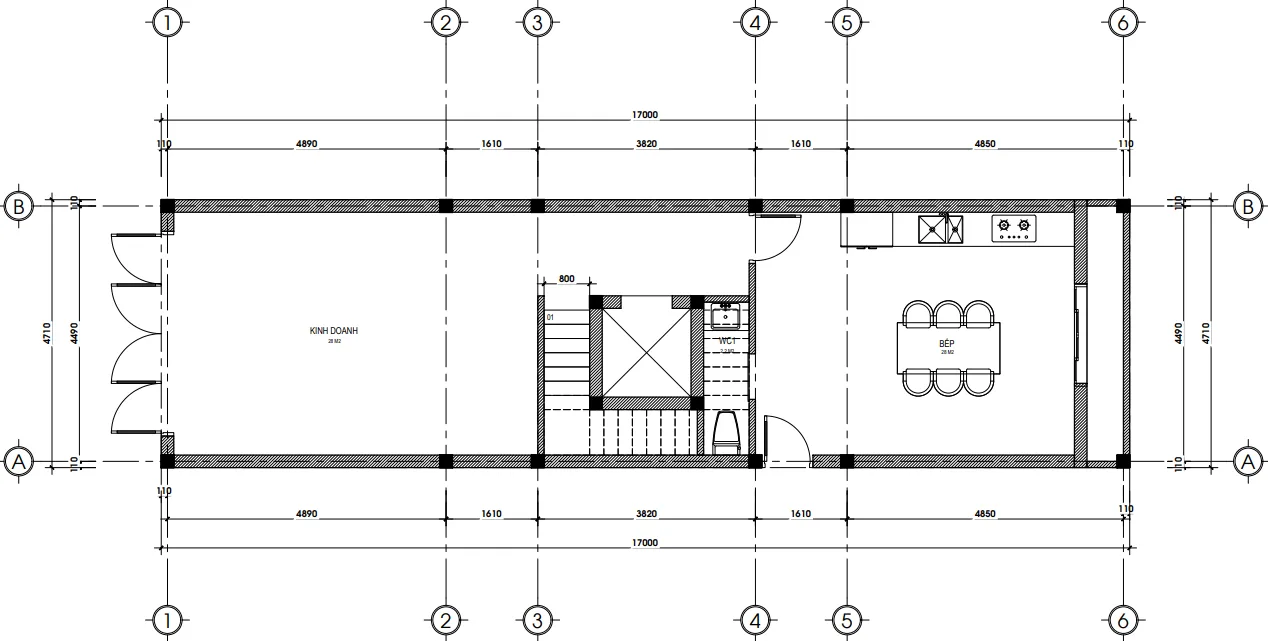
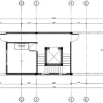
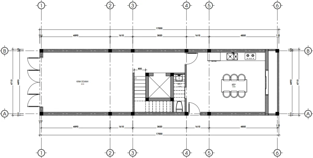
Tầng 1: Không gian kinh doanh và bếp ấm cúng
Với lợi thế mặt tiền, tầng 1 của mẫu nhà phố hiện đại 5 tầng tại Sóc Sơn được dành phần lớn diện tích (khoảng 80m2) cho mục đích kinh doanh.
-
Khu vực kinh doanh: Thiết kế mở, rộng rãi để anh Sức có thể linh hoạt loại hình mặt hàng.
-
Phòng bếp: Phía sau là khu vực bếp ăn tiện nghi. Đây là nơi giữ lửa cho gia đình, được ngăn cách khéo léo để không ảnh hưởng đến việc kinh doanh phía trước.
-
Giao thông: Cầu thang bộ 25 bậc với chiều cao mỗi bậc 156mm, đảm bảo độ dốc vừa phải, dễ đi lại.

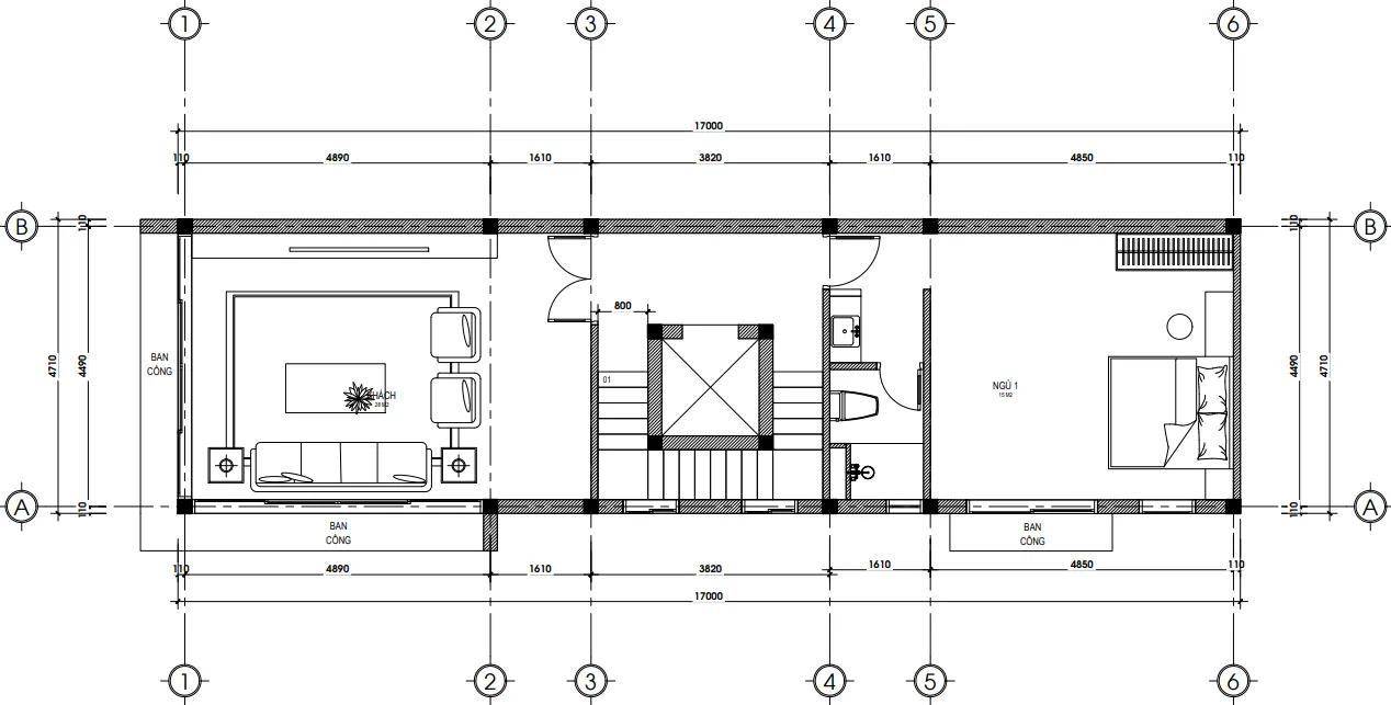
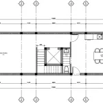
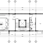
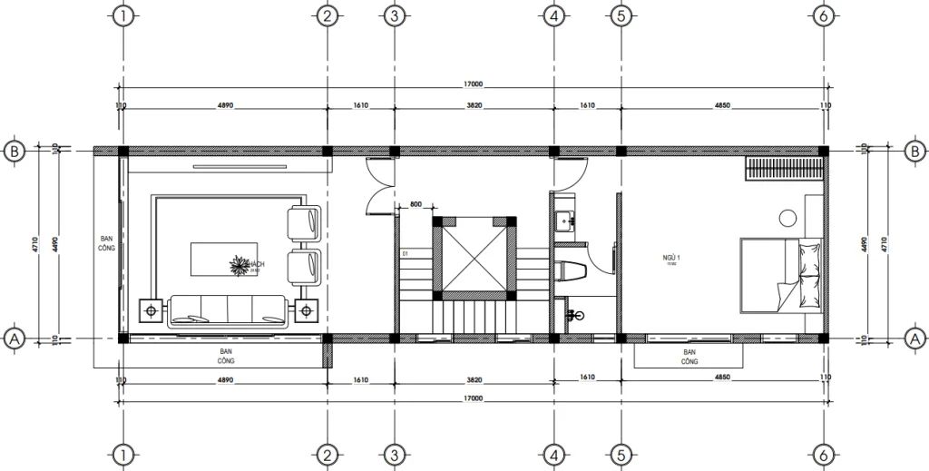
Tầng 2: Phòng khách và phòng ngủ Master
Lên đến tầng 2, không gian sống thực sự bắt đầu mở ra. Techhome thiết kế tầng này với chiều cao 3.3m, tạo cảm giác thông thoáng.
-
Phòng khách: Nơi tiếp khách sang trọng với ban công rộng đón ánh sáng tự nhiên.
-
Phòng ngủ 1: Một không gian riêng tư được bố trí phía sau, yên tĩnh và thoải mái.

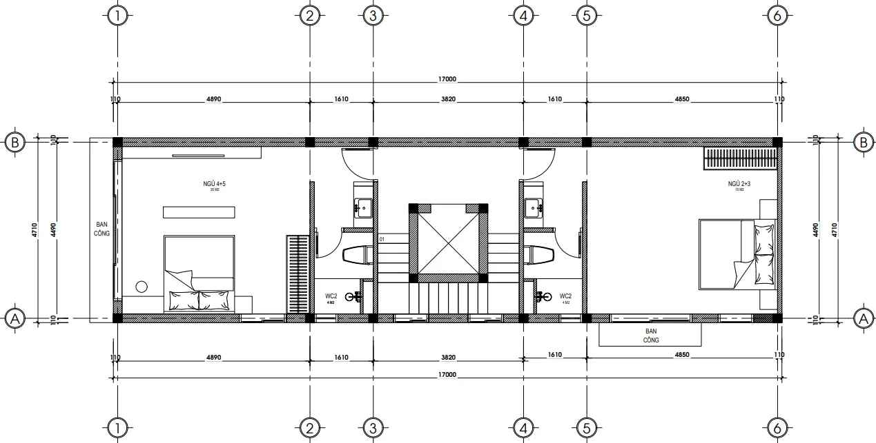
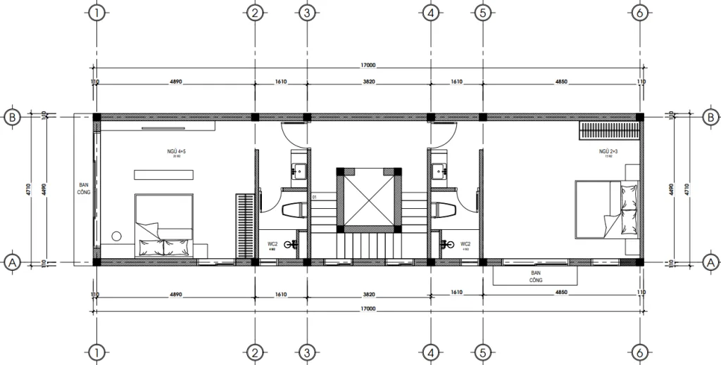
Tầng 3 và 4: Không gian nghỉ ngơi riêng tư
Ở các tầng này, mẫu nhà phố hiện đại 5 tầng tại Sóc Sơn tập trung tối đa cho việc nghỉ ngơi. Mỗi tầng có diện tích khoảng 82m2.
-
Phòng ngủ 2, 3, 4, 5: Được bố trí hợp lý để mỗi thành viên đều có không gian riêng.
-
Hệ thống WC: Mỗi phòng đều có nhà vệ sinh riêng biệt, đảm bảo tính tiện dụng.
-
Ban công: Techhome luôn chú trọng các khoảng hở ban công để ngôi nhà luôn được “thở”, tránh cảm giác bí bách của nhà ống.

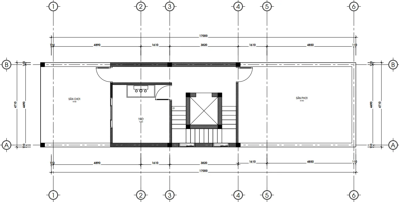
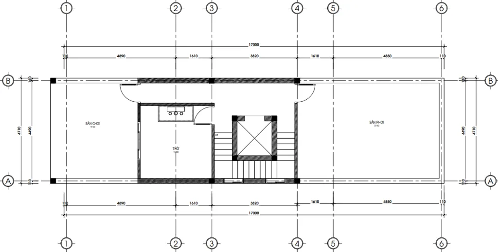
Tầng 5: Nơi thờ tự và thư giãn
Tầng cao nhất của căn nhà phố hiện đại 5 tầng tại Sóc Sơn được dành cho những mục đích đặc biệt:
-
Phòng thờ: Đặt ở vị trí trang nghiêm nhất, hướng ra sân chơi.
-
Sân chơi & Sân phơi: Khu vực này rất rộng, là nơi cả gia đình có thể lên hóng gió, trồng thêm cây xanh hoặc tổ chức những bữa tiệc BBQ nhỏ cuối tuần.

3. Điểm nhấn kiến trúc của nhà phố hiện đại 5 tầng tại Sóc Sơn
Nếu chỉ nhìn qua hình ảnh 3D, bạn sẽ thấy ngôi nhà này có một sức hút rất “Tây”. Sự kết hợp giữa tông màu trắng chủ đạo, các mảng gạch thẻ ốp tường màu xám và trần ban công ốp gỗ tạo nên một tổng thể vừa sang trọng vừa ấm áp.
Hệ cửa kính lớn là một lựa chọn thông minh cho mẫu nhà phố hiện đại 5 tầng tại Sóc Sơn. Nó giúp xóa nhòa ranh giới giữa bên trong và bên ngoài, tận dụng tối đa ánh sáng mặt trời Sóc Sơn, giúp gia chủ tiết kiệm điện năng đáng kể. Những bồn hoa nhỏ chạy dọc ban công không chỉ làm đẹp mà còn giúp lọc bụi, điều hòa không khí cho các phòng ngủ.
Mẫu nhà phố hiện đại 5 tầng tại Sóc Sơn của anh Sức còn gây ấn tượng bởi hệ mái kính trên tầng thượng, giúp khu vực cầu thang và giếng trời luôn ngập tràn ánh sáng. Đây là giải pháp kiến trúc mà Techhome luôn tư vấn cho khách hàng để giải quyết bài toán thiếu sáng trong nhà phố.

4. Tại sao nên chọn thiết kế nhà phố hiện đại 5 tầng tại Sóc Sơn của Techhome?
Thực tế, có rất nhiều đơn vị thiết kế, nhưng để tìm được một nơi “hiểu” được cái bụng của chủ nhà thì không dễ. Tại Techhome, chúng tôi không chỉ vẽ ra những bức tranh đẹp mà chúng tôi thực hiện các hồ sơ kỹ thuật thi công cực kỳ chi tiết.
Dự án nhà phố hiện đại 5 tầng tại Sóc Sơn này là minh chứng cho sự chuyên nghiệp đó. Từ việc tính toán bậc thang cao bao nhiêu cho dễ bước , đến việc bố trí hộp kỹ thuật sao cho gọn gàng, tất cả đều được KS và đội ngũ tính toán kỹ lưỡng.
Xây một căn nhà phố hiện đại 5 tầng tại Sóc Sơn là một khoản đầu tư lớn. Anh em kiến trúc sư chúng tôi luôn tâm niệm phải làm sao để chủ nhà chi tiền xứng đáng nhất, từ gạch lát sàn đến cái công tắc điện cũng phải được tư vấn chân tình như làm cho chính nhà mình vậy.

5. Báo giá tham khảo xây dựng nhà phố hiện đại 5 tầng tại Sóc Sơn (Năm 2026)
Để các bạn dễ dàng hình dung và chuẩn bị tài chính, Techhome xin đưa ra bảng báo giá tham khảo cho mẫu nhà phố hiện đại 5 tầng tại Sóc Sơn này. Lưu ý: Giá có thể thay đổi tùy vào thời điểm và loại vật liệu hoàn thiện mà gia chủ lựa chọn.
| Hạng mục | Đơn giá tham khảo (VNĐ/m2) | Ghi chú |
| Thiết kế kiến trúc | 108.000 | Tùy gói cơ bản hay chuyên sâu |
| Thi công phần thô | 3.800.000 – 4.200.000 | Bao gồm vật tư thô và nhân công |
| Thi công trọn gói (Chìa khóa trao tay) | 6.500.000 – 8.500.000 | Tùy vào mức độ cao cấp của vật liệu |
Dự toán cho nhà phố hiện đại 5 tầng tại Sóc Sơn diện tích ~80m2/sàn:
-
Tổng diện tích sàn xây dựng (tạm tính): 340m2.
-
Chi phí xây dựng trọn gói mức khá: 340m2 x 7.000.000 VNĐ = ~2,4 tỷ VNĐ.
Lưu ý: Đây chỉ là mức chi phí ước tính. Để nhận được báo giá chính xác và chi tiết nhất cho công trình của bạn, vui lòng liên hệ trực tiếp với chúng tôi. Hoặc để tìm hiểu rõ hơn về tiêu chuẩn vật liệu xây dựng và các yếu tố ảnh hưởng đến chi phí, bạn có thể tham khảo thêm tại các bài viết chuyên sâu về vật liệu xây dựng cao cấp trên Wikipedia.

6. Lời kết cho mẫu nhà phố hiện đại 5 tầng tại Sóc Sơn
Ngôi nhà của anh Sức không chỉ là một công trình xây dựng, nó là kết quả của sự thấu hiểu giữa gia chủ và kiến trúc sư. Nếu bạn cũng đang ấp ủ ý tưởng về một căn nhà phố hiện đại 5 tầng tại Sóc Sơn hay bất cứ đâu, đừng ngần ngại nhắn tin cho Techhome.
Chúng tôi sẽ cùng bạn vẽ nên những giấc mơ thật sự, nơi mà mỗi góc nhỏ đều mang đậm dấu ấn cá nhân của bạn. Nhà phố hiện đại 5 tầng tại Sóc Sơn không chỉ là xu hướng, đó là một không gian sống tiện nghi và bền vững cho tương lai.
Hy vọng qua bài viết này, bạn đã có thêm ý tưởng và sự tin tưởng để bắt tay vào xây dựng tổ ấm của mình. Techhome luôn sẵn sàng đồng hành cùng bạn trên mọi nẻo đường dựng xây hạnh phúc!

CÔNG TY CỔ PHẦN KIẾN TRÚC VÀ XÂY DỰNG TECHHOME
🏠 Website: https://nhadeptechhome.vn/
☎️ Hotline: 036.273.2222
📍 Địa chỉ: B1.1 LK18 Ô 3 – KĐT Thanh Hà – Cienco 5 – Thanh Oai- Hà Nội.
