Xây nhà là việc đại sự cả đời. Với những người đã đi qua thăng trầm như chú Thìn tại Hải Phòng, ngôi nhà không chỉ là nơi che mưa che nắng, mà là thành quả của bao năm vất vả, là tổ ấm sum vầy của con cháu mỗi dịp cuối tuần. Nhận được sự tin tưởng của chú, đội ngũ kiến trúc sư (KTS) Techhome đã dồn hết tâm huyết để kiến tạo nên một mẫu nhà phố 3 tầng hiện đại tại Hải Phòng vừa đáp ứng được công năng sử dụng, vừa mang đậm dấu ấn cá nhân giữa phố cảng nhộn nhịp.
1. Câu chuyện về sự tin tưởng và cái “gật đầu” của chú Thìn
Hải Phòng những ngày đầu năm 2026, chúng tôi gặp chú Thìn trong một buổi chiều nắng nhẹ. Chú bảo: “Các cháu làm sao thì làm, nhà phố bây giờ họ xây giống nhau quá, chú muốn cái gì đó hiện đại nhưng nhìn vào phải thấy dễ chịu, có chút gì đó mềm mại chứ đừng cứng nhắc toàn khối hộp”.
Lắng nghe mong muốn đó, KTS cùng cộng sự tại Techhome đã phác thảo những nét vẽ đầu tiên. Và thế là, một mẫu nhà phố 3 tầng hiện đại tại Hải Phòng với những đường bo cong mềm mại, ô cửa tròn duyên dáng đã ra đời, chinh phục chú Thìn ngay từ bản phối cảnh đầu tiên.

2. Phân tích ngoại thất: Khi đường thẳng và đường cong hòa quyện
Nhìn vào mặt tiền của ngôi nhà, bạn sẽ thấy sự khác biệt rõ nét so với những căn nhà ống thông thường. Điểm nhấn đắt giá nhất chính là sự kết hợp giữa các mảng tường phẳng trắng tinh khôi và phần ốp nhựa giả gỗ màu trầm ấm áp.
-
Ô cửa sổ tròn – Điểm xuyết đầy nghệ thuật: Tại tầng 2, một ô cửa sổ tròn nhỏ được đặt tinh tế trên nền gỗ. Nó giống như một “con mắt” của ngôi nhà, phá tan sự đơn điệu của những bức tường đứng.
-
Mảng kính bo cong: Tầng 3 sở hữu một mảng kính lớn được cắt vát cong mềm mại. Điều này không chỉ giúp tối đa hóa ánh sáng tự nhiên vào phòng mà còn tạo nên hiệu ứng thị giác cực kỳ sang trọng.
-
Hệ thống cổng cuốn hiện đại: Để đảm bảo an toàn và tối ưu diện tích, Techhome đã tư vấn chú Thìn sử dụng cửa cuốn nan nhôm. Phía dưới là lớp đá ốp xám vân đá tự nhiên, tạo cảm giác vững chãi cho cả công trình.
Đây chính là lý do khiến mẫu nhà phố 3 tầng hiện đại tại Hải Phòng này trở thành tâm điểm chú ý của cả khu phố ngay khi vừa hoàn thiện bản vẽ.

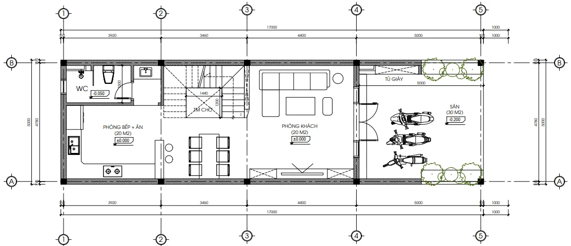
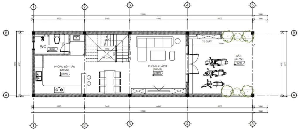
3. Giải pháp mặt bằng tầng 1: Ưu tiên không gian sinh hoạt chung
Với diện tích sàn tầng 1 là 60m2, Techhome đã khéo léo phân chia để mỗi mét vuông đều mang lại giá trị sử dụng cao nhất.
Khoảng sân trước 30m2 – Tiện ích không thể thiếu
Sống ở phố, nỗi lo lớn nhất là chỗ để xe. Chú Thìn rất ưng ý với thiết kế khoảng sân rộng 30m2 phía trước. Không gian này đủ sức chứa 1 ô tô và vài chiếc xe máy của con cháu khi về chơi. Bên cạnh đó, khu vực tủ giày được bố trí gọn gàng ngay lối vào, giúp không gian bên trong luôn sạch sẽ.
Phòng khách và Bếp – Kết nối yêu thương
Bước vào bên trong là phòng khách rộng 20m2. Với chiều cao tầng lên tới 3900mm, không gian mang lại cảm giác cực kỳ thoáng đãng, không hề bị bí bách như những ngôi nhà phố trần thấp.
Tiếp nối là khu vực phòng bếp và ăn cũng rộng 20m2. Điểm đặc biệt ở đây là hệ thống cầu thang với khoảng thang máy chờ. Đây là giải pháp thông minh của Techhome để đón ánh sáng tự nhiên và thông gió từ trên xuống, giúp căn bếp luôn khô ráo và không bị ám mùi thức ăn. Một nhà vệ sinh nhỏ (WC) được đặt kín đáo phía cuối nhà để phục vụ sinh hoạt chung.
Thực tế, mẫu nhà phố 3 tầng hiện đại tại Hải Phòng này đã giải quyết triệt để bài toán thiếu sáng – căn bệnh nan y của nhà ống Việt Nam.

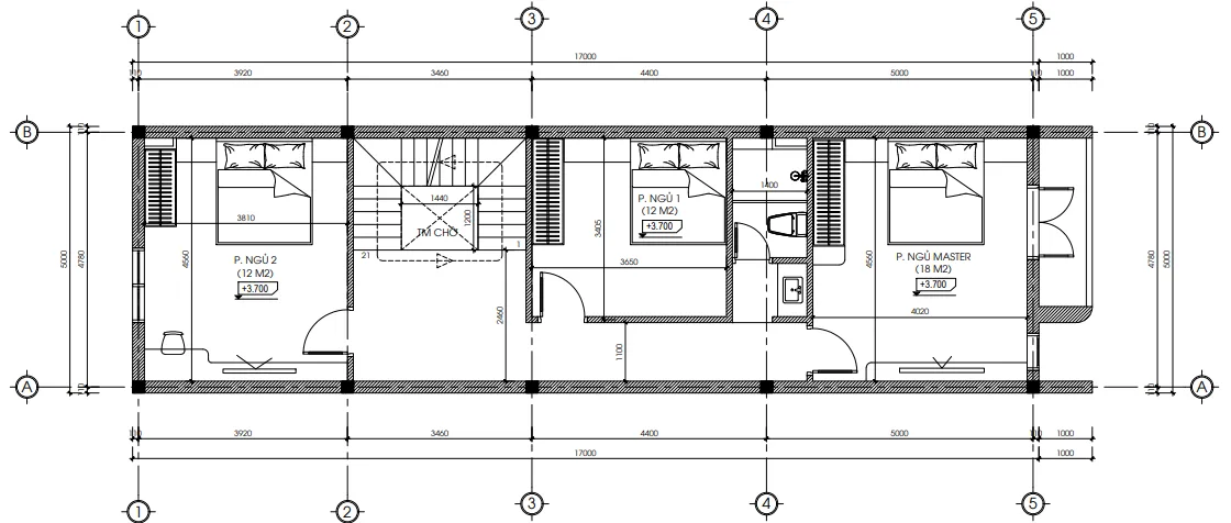
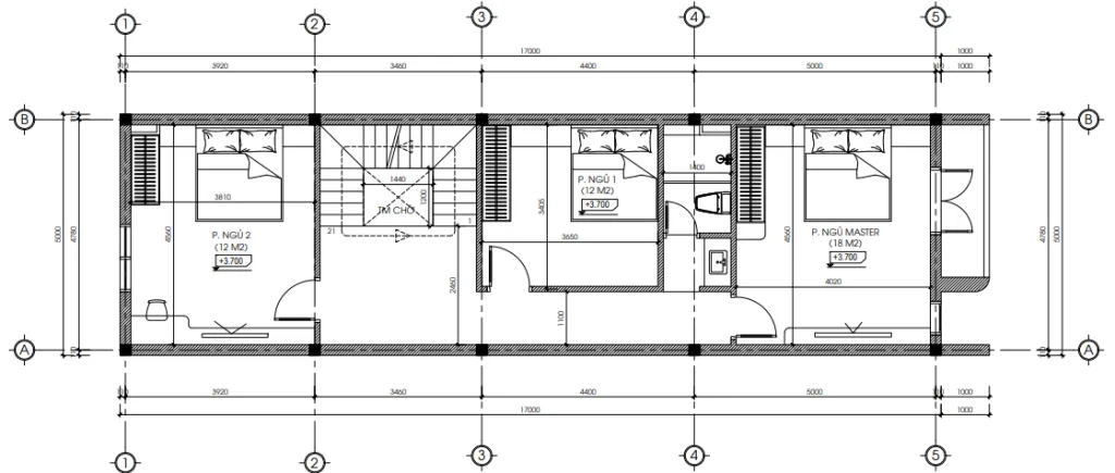
4. Mặt bằng tầng 2: Chốn nghỉ ngơi yên bình
Tầng 2 có diện tích sàn mở rộng hơn lên đến 90m2. Đây là không gian dành riêng cho việc nghỉ ngơi của các thành viên trong gia đình.
-
Phòng ngủ Master (18m2): Dành cho vợ chồng chú Thìn, nằm ở phía mặt tiền với ban công rộng. Từ đây, chú có thể đón gió biển Hải Phòng mỗi sớm mai.
-
Phòng ngủ 2 và 3 (12m2 mỗi phòng): Được bố trí phía sau, dành cho con cái . Các phòng đều đảm bảo có cửa sổ thông thoáng.
Chiều cao tầng 2 được điều chỉnh xuống 3500mm để tạo cảm giác ấm cúng, riêng tư hơn so với tầng 1. Cách bố trí này biến căn nhà thành một mẫu nhà phố 3 tầng hiện đại tại Hải Phòng lý tưởng cho gia đình đa thế hệ.

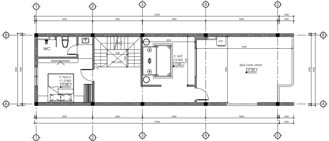
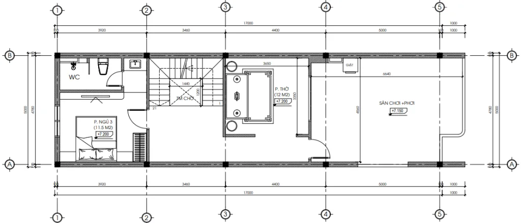
5. Mặt bằng tầng 3: Tâm linh và thư giãn
Tầng 3 là nơi thể hiện lòng thành kính với tổ tiên và cũng là không gian “chill” nhất của ngôi nhà.
-
Phòng thờ (12m2): Được đặt ở vị trí trang trọng nhất, hướng ra phía trước.
-
Phòng ngủ 3 (11.5m2): Thêm một lựa chọn phòng ngủ cho gia đình, kết hợp WC khép kín.
-
Sân chơi và sân phơi (30m2): Đây là khu vực chú Thìn thích nhất. Một khoảng sân rộng rãi để trồng cây cảnh, nuôi chim hoặc đơn giản là ngồi nhâm nhi chén trà chiều.
Tổng diện tích sử dụng của toàn bộ công trình lên tới 215m2, một con số ấn tượng cho một mẫu nhà phố 3 tầng hiện đại tại Hải Phòng trên mảnh đất phố.

6. Tại sao bạn nên chọn Techhome để thiết kế nhà tại Hải Phòng?
Giữa hàng trăm đơn vị kiến trúc, tại sao chú Thìn lại chọn Techhome? Câu trả lời nằm ở sự tận tâm và chuyên nghiệp.
-
Hồ sơ kỹ thuật chi tiết: Như bạn thấy trong ảnh, từ danh mục bản vẽ đến các thông số kích thước nhỏ nhất đều được thể hiện rõ ràng. Điều này giúp đội thợ thi công dễ dàng, tránh sai sót.
-
Đội ngũ KTS giàu kinh nghiệm: KTS không chỉ có bằng cấp mà còn có “cái tâm” với nghề.
-
Hỗ trợ kỹ thuật 24/7: Techhome luôn cung cấp Hotline hỗ trợ trực tiếp tại công trình: 0364042222 – 0387603333. Chúng tôi không chỉ bán bản vẽ, chúng tôi đồng hành cùng ngôi nhà của bạn.
Đó là lý do Techhome luôn tự hào về mỗi mẫu nhà phố 3 tầng hiện đại tại Hải Phòng mà mình tạo ra.

7. Báo giá tham khảo dịch vụ thiết kế và thi công tại Techhome
Để quý khách hàng dễ dàng hình dung và chuẩn bị ngân sách, Techhome xin đưa ra bảng báo giá tham khảo (áp dụng cho năm 2026):
A. Đơn giá thiết kế kiến trúc
| Hạng mục | Đơn giá (VNĐ/m2) | Ghi chú |
| Gói kiến trúc hiện đại | 108.000 | Bản vẽ kiến trúc, kết cấu, điện nước |
| Gói kiến trúc tân cổ | 130.000 | Bản vẽ kiến trúc, kết cấu, điện nước |
B. Đơn giá thi công trọn gói (Chìa khóa trao tay)
| Loại hình | Đơn giá (VNĐ/m2) | Đặc điểm vật tư |
| Gói phổ thông | 6.500.000 – 6.800.000 | Vật tư tiêu chuẩn, chất lượng tốt |
| Gói khá | 7.000.000 – 7.500.000 | Vật tư cao cấp, cửa nhôm Xingfa, thiết bị vệ sinh Inax |
| Gói cao cấp | > 8.000.000 | Vật tư nhập khẩu, gỗ tự nhiên, đá Marble |
Lưu ý: Đơn giá có thể thay đổi tùy thuộc vào thời điểm xây dựng, vị trí địa lý và yêu cầu cụ thể của gia chủ. Để có báo giá chính xác cho mẫu nhà phố 3 tầng hiện đại tại Hải Phòng của riêng mình, hãy liên hệ trực tiếp với Techhome. Để tìm hiểu rõ hơn về tiêu chuẩn vật liệu xây dựng và các yếu tố ảnh hưởng đến chi phí, bạn có thể tham khảo thêm tại các bài viết chuyên sâu về vật liệu xây dựng cao cấp trên Wikipedia.

8. Những lưu ý khi xây dựng mẫu nhà phố 3 tầng hiện đại tại Hải Phòng
Hải Phòng là vùng đất gần biển, có độ ẩm cao và gió muối. Vì vậy, khi thiết kế mẫu nhà phố 3 tầng hiện đại tại Hải Phòng, Techhome luôn chú trọng:
-
Sử dụng vật liệu chống ăn mòn: Ưu tiên nhôm kính cao cấp, sơn ngoại thất chống thấm và chống kiềm hóa tốt.
-
Giải pháp chống nóng: Hướng nhà phố thường cố định, nên việc sử dụng các mảng lam gỗ trang trí vừa tăng thẩm mỹ vừa giúp cản bớt nắng gắt.
-
Hệ thống thoát nước: Với những cơn mưa rào đặc trưng của miền Bắc, hệ thống thoát nước mái và sân thượng phải được tính toán kỹ lưỡng, tránh tình trạng đọng nước gây thấm dột.
Mỗi chi tiết nhỏ đều được chúng tôi chăm chút để mẫu nhà phố 3 tầng hiện đại tại Hải Phòng không chỉ đẹp lúc mới xây mà còn bền vững theo thời gian.
9. Đánh giá của gia chủ – Niềm vui của người làm nghề
Chú Thìn chia sẻ sau khi nhận hồ sơ thiết kế: “Ban đầu chú cũng lo, không biết đưa ý tưởng ‘đường cong’ vào nhà phố có ổn không. Nhưng xem bản 3D xong là chú chốt luôn. Các cháu ở Techhome làm việc rất chuyên nghiệp, bản vẽ chi tiết đến mức bác thợ xây già ở quê xem cũng hiểu ngay”.
Sự hài lòng của khách hàng đối với mẫu nhà phố 3 tầng hiện đại tại Hải Phòng chính là động lực lớn nhất để Techhome tiếp tục sáng tạo.

10. Kết luận: Ngôi nhà là nơi bắt đầu của hạnh phúc
Một ngôi nhà đẹp không nhất thiết phải quá cầu kỳ, đắt đỏ. Nó đẹp khi nó phản ánh đúng tính cách của chủ nhân và mang lại sự tiện nghi trong sinh hoạt hàng ngày. Mẫu nhà phố 3 tầng hiện đại tại Hải Phòng của gia đình chú Thìn là minh chứng cho sự kết hợp hoàn hảo giữa công năng và thẩm mỹ.
Nếu bạn đang sở hữu một mảnh đất tại Hải Phòng và đang loay hoay tìm kiếm ý tưởng, đừng ngần ngại liên hệ với Techhome. Chúng tôi không chỉ thiết kế nhà, chúng tôi cùng bạn xây dựng tổ ấm. Hãy để chúng tôi biến giấc mơ về một mẫu nhà phố 3 tầng hiện đại tại Hải Phòng của bạn thành hiện thực.
Thông tin liên hệ:
-
Công ty Cổ phần Kiến trúc và Xây dựng Techhome
-
Website: nhadeptechhome.vn
-
Hotline: 036.273.2222
-
Địa chỉ: B1.1 LK18 Ô 3 – KĐT Thanh Hà – Cienco 5 – Thanh Oai- Hà Nội.
