Hôm nay, em sẽ cùng các bác “mổ xẻ” một bộ hồ sơ thiết kế cực kỳ tâm huyết của đội ngũ kiến trúc sư TechHome dành cho gia đình anh Đức tại Đông Anh, Hà Nội.
Nếu bác nào đang sở hữu một mảnh đất phố tầm 5m ngang mà muốn xây nhà vừa ở, vừa kinh doanh hoặc đơn giản là muốn không gian sống thật sang và thoáng, thì mẫu nhà phố 4 tầng có gác lửng hiện đại này chính là “chân ái” đấy ạ.
1. Tổng quan dự án: Khi sự tối ưu lên ngôi
Dự án này được TechHome thực hiện cho chủ đầu tư là anh Đức. Với diện tích sàn tầng 1 khoảng 58m2, bài toán đặt ra là làm sao để ngôi nhà vừa đủ công năng cho gia đình đông thành viên, vừa phải có những khoảng “thở” đắt giá giữa phố thị chật hẹp.
Sau nhiều vòng thảo luận, phương án mẫu nhà phố 4 tầng có gác lửng hiện đại đã được lựa chọn. Tại sao lại là gác lửng? Vì nó giúp “ăn gian” chiều cao, tạo ra sự thông thoáng tuyệt vời cho khu vực phòng khách và bếp.
| Thông số | Chi tiết |
| Chủ đầu tư |
Anh Đức |
| Địa điểm |
Đông Anh, Hà Nội |
| Đơn vị thiết kế |
TechHome |
| Quy mô |
4 tầng (bao gồm gác lửng và tum) |
| Phong cách | Hiện đại, tối ưu hóa ánh sáng |

2. Phân tích công năng: Tỉ mỉ đến từng bậc cầu thang
Để có một mẫu nhà phố 4 tầng có gác lửng hiện đại hoàn hảo, việc phân bổ mặt bằng là quan trọng nhất. Hãy cùng em đi sâu vào từng tầng nhé.
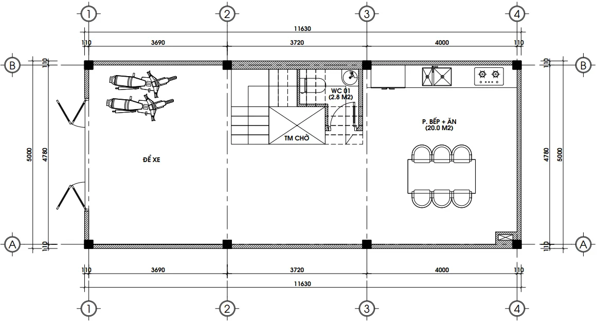
Tầng 1: Không gian đa năng (58.0m2)
Tầng 1 được thiết kế với hai mục đích rõ rệt:
-
Khu vực để xe: Rộng rãi, đáp ứng nhu cầu sử dụng của gia đình.
-
Phòng Bếp + Ăn (20.0m2): Đây là nơi “giữ lửa” cho tổ ấm. Việc đặt bếp ở cuối nhà giúp tránh mùi bay ngược lên các phòng trên.
-
WC 01 (2.8m2): Tận dụng không gian dưới gầm thang, rất gọn gàng.
-
Thông số kỹ thuật: Tầng này cao 2m9 với 17 bậc thang, mỗi bậc cao 170mm. Đây là kích thước bậc thang rất vừa tầm chân, người già hay trẻ nhỏ đi đều không bị mỏi.

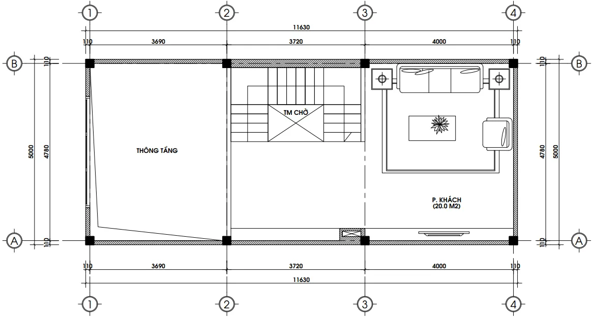
Tầng lửng: Điểm nhấn “thông tầng” đắt giá (43.0m2)
Đây chính là linh hồn của mẫu nhà phố 4 tầng có gác lửng hiện đại.
-
Phòng khách (20.0m2): Được đặt trên gác lửng, tạo sự riêng tư khi nhà có khách mà vẫn quan sát được khu vực để xe bên dưới.
-
Khoảng thông tầng: Giúp không khí lưu thông cực tốt, ánh sáng tự nhiên từ cửa sổ lớn phía trước tràn ngập khắp nhà.
-
Chiều cao tầng: Vẫn đảm bảo 2m9, giúp không gian không bị bí bách.

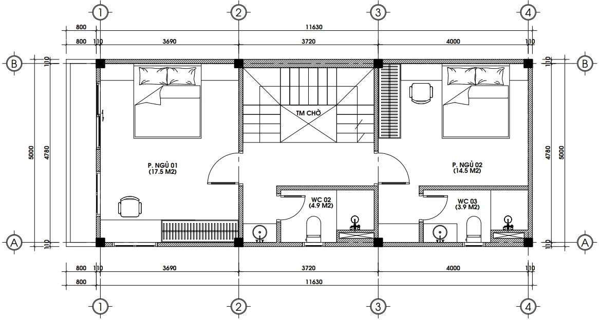
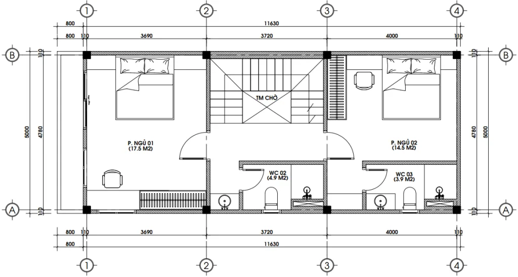
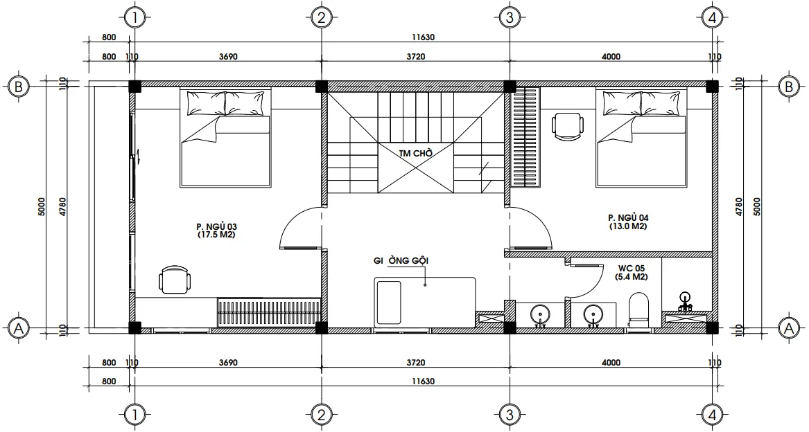
Tầng 2 & 3: Khu vực nghỉ ngơi riêng tư (62.0m2 mỗi tầng)
Cả hai tầng này đều có diện tích sử dụng tăng lên 62m2 nhờ phần ban công/đua ra phía trước.
-
Tầng 2: Gồm 2 phòng ngủ (P. Ngủ 01: 17.5m2, P. Ngủ 02: 14.5m2 kết hợp WC khép kín) và 1 vệ sinh chung. Cách thiết kế này cực kỳ chiều chuộng sự riêng tư của các thành viên.
-
Tầng 3: Gồm 2 phòng ngủ và 1 vệ sinh chung. Đặc biệt có khu vực “Giường gội”. Có vẻ chủ nhà rất biết cách tận hưởng cuộc sống ngay tại gia đúng không các bác?
-
Lưu ý kỹ thuật: Tầng 2 và 3 có chiều cao 3m3, số bậc thang tăng lên 19 bậc để đảm bảo độ dốc hợp lý.
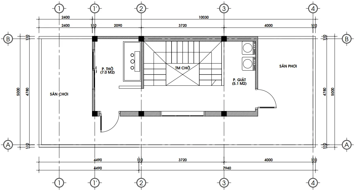
Tầng Tum: Nơi giao hòa với thiên nhiên (28.0m2)
Dù diện tích xây dựng chỉ 28m2 nhưng đây là tầng đa năng nhất:
-
Phòng thờ (7.0m2): Đặt ở vị trí trang trọng nhất, yên tĩnh nhất.
-
Phòng giặt (5.1m2): Bố trí khoa học cạnh sân phơi.
-
Sân chơi & Sân phơi: Nơi các bác có thể trồng rau hoặc tổ chức những bữa tiệc BBQ cuối tuần.

3. Ngoại thất: Hiện đại, tối giản nhưng không đơn điệu
Nhìn vào phối cảnh 3D của mẫu nhà phố 4 tầng có gác lửng hiện đại này, các bác sẽ thấy một sự kết hợp màu sắc rất tinh tế: trắng, xám và những mảng nhấn giả gỗ.
-
Hệ thống cửa: Sử dụng kính cường lực khung nhôm xingfa đen. Kính lớn không chỉ làm ngôi nhà trông “sang” hơn mà còn giúp tận dụng tối đa ánh sáng mặt trời.
-
Điểm nhấn mặt tiền: Những mảng tường được ốp gạch trang trí màu vàng gỗ và xám đậm tạo chiều sâu cho kiến trúc.
-
Hệ mái: Mái bằng, có bố trí hệ thống bồn nước và năng lượng mặt trời giúp tiết kiệm điện năng cho gia đình anh Đức.
Sở hữu một mẫu nhà phố 4 tầng có gác lửng hiện đại như thế này, các bác không bao giờ phải lo lắng về việc lỗi mốt theo thời gian.

4. Tại sao nên chọn mẫu nhà phố 4 tầng có gác lửng hiện đại tại TechHome?
Trên thị trường có rất nhiều đơn vị thiết kế, nhưng ở TechHome, chúng em làm việc bằng cái “tâm”. Một mẫu nhà phố 4 tầng có gác lửng hiện đại được ra đời phải trải qua quá trình kiểm duyệt khắt khe từ KTS và các cộng sự.
Chúng em không chỉ vẽ ra một ngôi nhà đẹp trên giấy, mà còn tính toán đến độ bền, tính khả thi khi thi công và cảm giác thoải mái nhất khi các bác dọn vào ở. Việc hỗ trợ tư vấn kỹ thuật qua Hotline 0364.04.2222 luôn sẵn sàng để giải đáp mọi thắc mắc của chủ nhà.

5. Bảng báo giá tham khảo (Cập nhật 2026)
Để các bác dễ hình dung và chuẩn bị tài chính cho mẫu nhà phố 4 tầng có gác lửng hiện đại, em xin đưa ra bảng báo giá sơ bộ:
A. Chi phí thiết kế
| Hạng mục | Đơn giá (VNĐ/m2) | Ghi chú |
| Thiết kế kiến trúc | 108.000 | Phối cảnh 3D, mặt bằng công năng |
| Thiết kế nội thất | 150.000 | Chi tiết vật liệu, đồ rời |
| Trọn gói (KT + NT) | 250.000 |
B. Chi phí thi công
-
Thi công phần thô: 3.800.000 – 4.200.000 VNĐ/m2.
-
Thi công hoàn thiện (Chìa khóa trao tay): 6.500.000 – 8.500.000 VNĐ/m2 (tùy vật liệu).
Lưu ý: Đây chỉ là mức chi phí ước tính. Để nhận được báo giá chính xác và chi tiết nhất cho công trình của bạn, vui lòng liên hệ trực tiếp với chúng tôi. Hoặc để tìm hiểu rõ hơn về tiêu chuẩn vật liệu xây dựng và các yếu tố ảnh hưởng đến chi phí, bạn có thể tham khảo thêm tại các bài viết chuyên sâu về vật liệu xây dựng cao cấp trên Wikipedia.

6. Góc nhìn chuyên gia: Gợi ý để ngôi nhà hoàn hảo hơn
Là một người làm nghề lâu năm, ngoài việc chọn mẫu nhà phố 4 tầng có gác lửng hiện đại, em có vài lời khuyên nhỏ cho các bác:
-
Đừng tiếc tiền cho hệ thống chống thấm: Với đặc thù khí hậu miền Bắc như ở Đông Anh, việc chống thấm sân thượng và nhà vệ sinh là sống còn. Một mẫu nhà phố 4 tầng có gác lửng hiện đại đẹp đến mấy mà bị thấm dột thì cũng vứt.
-
Thông gió tự nhiên: Hãy tận dụng giếng trời. Trong hồ sơ anh Đức, chúng em đã bố trí khu vực thang và thông tầng rất thoáng. Điều này giúp ngôi nhà luôn mát mẻ mà không cần lạm dụng điều hòa.
-
Lựa chọn vật liệu bền vững: Xu hướng 2026 là vật liệu xanh. Các bác có thể cân nhắc gạch không nung hoặc sơn phủ sinh học để bảo vệ sức khỏe gia đình.
-
Phong thủy: Dù là mẫu nhà phố 4 tầng có gác lửng hiện đại, yếu tố hướng bếp, hướng bàn thờ vẫn cần được đặt lên hàng đầu để mang lại tài lộc và bình an.

7. Kết luận
Mẫu nhà phố 4 tầng có gác lửng hiện đại của gia đình anh Đức tại Đông Anh là một minh chứng cho sự kết hợp hài hòa giữa thẩm mỹ và công năng. Nếu các bác đang tìm kiếm một đơn vị có thể biến ý tưởng thành hiện thực, đừng ngần ngại ghé thăm nhadeptechhome.vn.
Chúng em luôn tin rằng, mỗi ngôi nhà là một câu chuyện. Hãy để TechHome cùng bác viết nên câu chuyện hạnh phúc cho gia đình mình thông qua một mẫu nhà phố 4 tầng có gác lửng hiện đại thật đẳng cấp.
Hy vọng bài viết này đã cung cấp đủ thông tin hữu ích cho các bác. Một mẫu nhà phố 4 tầng có gác lửng hiện đại không chỉ là nơi để che nắng che mưa, mà là nơi khẳng định vị thế của gia chủ.
Đừng quên, sự đầu tư cho thiết kế hôm nay là sự tiết kiệm cho thi công ngày mai. Mẫu nhà phố 4 tầng có gác lửng hiện đại – Lựa chọn thông minh cho cuộc sống hiện đại.
CÔNG TY CỔ PHẦN KIẾN TRÚC VÀ XÂY DỰNG TECHHOME
☎️ Hotline: 036.273.2222
📍 Địa chỉ: B1.1 LK18 Ô 3 – KĐT Thanh Hà – Cienco 5 – Thanh Oai- Hà Nội.


