Nếu bạn đang tìm kiếm một không gian sống vừa mang nét quý tộc châu Âu, vừa tối ưu hóa được công năng trên diện tích phố thị, thì mẫu nhà phố tân cổ điển 2 tầng 1 tum của gia đình anh Quang tại Ninh Bình chính là một hình mẫu lý tưởng. Tại TechHome, chúng mình không chỉ xây nhà, mà là cùng gia chủ kể lại câu chuyện về phong cách sống và niềm tự hào của riêng họ.
1. Cảm hứng thiết kế: Khi nét cổ điển giao thoa cùng hơi thở đương đại
Anh Quang tìm đến TechHome với một mong muốn rõ ràng: “Tôi muốn một ngôi nhà nhìn vào phải thấy được sự bề thế, sang trọng nhưng bên trong phải thực sự ấm cúng và tiện nghi cho cả gia đình”. Sau nhiều buổi trao đổi, phương án mẫu nhà phố tân cổ điển 2 tầng 1 tum đã ra đời, chinh phục hoàn toàn gia chủ ngay từ bản phối cảnh đầu tiên.
Điểm nhấn đắt giá nhất của công trình chính là hệ mái vòm quyền quý kết hợp cùng các chi tiết phù điêu đắp nổi tinh xảo. Nhìn từ xa, ngôi nhà như một tòa lâu đài thu nhỏ giữa lòng phố thị Ninh Bình, thể hiện rõ gu thẩm mỹ đẳng cấp của chủ nhân.

2. Chi tiết ngoại thất: Sự kỳ công trong từng đường nét
Một mẫu nhà phố tân cổ điển 2 tầng 1 tum đúng chuẩn không thể thiếu đi sự cân xứng và các thức cột cổ điển. Ở công trình này, TechHome đã sử dụng hệ cột Corinthian với những họa tiết hoa văn đầu cột cầu kỳ, tạo cảm giác thanh thoát nhưng vẫn vô cùng vững chãi.
-
Tầng 1: Toàn bộ mặt tiền tầng một được ốp đá Granite màu vàng hoàng gia, tạo cảm giác kiên cố và sang trọng. Hệ cửa chính bằng gỗ tự nhiên đục chạm tinh xảo là lời chào đón nồng hậu nhất của gia chủ dành cho khách đến chơi nhà.
-
Tầng 2 và Tum: Gam màu trắng sứ chủ đạo làm nổi bật hệ ban công sắt nghệ thuật sơn tĩnh điện màu vàng kim. Sự tương phản nhẹ nhàng này giúp mẫu nhà phố tân cổ điển 2 tầng 1 tum trở nên nổi bật dù ở bất kỳ góc nhìn nào.
-
Hệ mái vòm: Đây là linh hồn của công trình. Phần mái được thiết kế như một vương miện, không chỉ có tác dụng thẩm mỹ mà còn giúp điều hòa không khí, tạo sự mát mẻ thoáng đãng cho khu vực bên dưới.

3. Giải pháp mặt bằng công năng: Tối ưu đến từng milimet
Nhiều khách hàng lo lắng rằng phong cách tân cổ điển sẽ làm không gian bị tù túng, nhưng với bản vẽ chi tiết của TechHome, bạn sẽ thấy sự khác biệt trong mẫu nhà phố tân cổ điển 2 tầng 1 tum này.
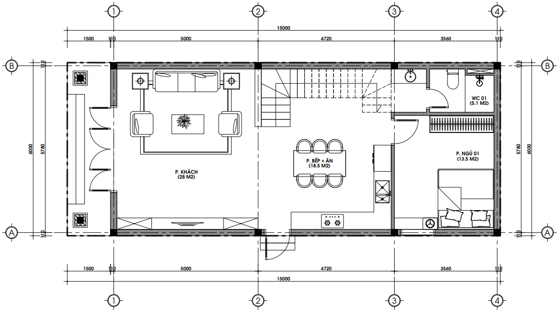
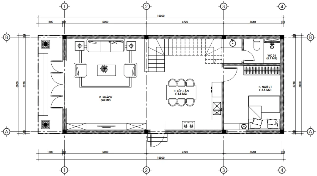
Tầng 1: Không gian kết nối gia đình (Diện tích 93m²)
Mặt bằng tầng 1 được bố trí cực kỳ khoa học để tận dụng tối đa ánh sáng tự nhiên:
-
Phòng khách (28m²): Nằm ngay sau sảnh chính, đây là không gian rộng rãi nhất để gia chủ phô diễn nội thất đẳng cấp.
-
Phòng bếp + ăn (18.5m²): Được ngăn cách tinh tế, tạo sự thông thoáng nhưng vẫn giữ được sự riêng tư cần thiết.
-
Phòng ngủ 01 (13.5m²): Dành cho người lớn tuổi, hạn chế việc phải leo cầu thang.
-
WC 01 (5.1m²): Bố trí gọn gàng, đảm bảo phong thủy.

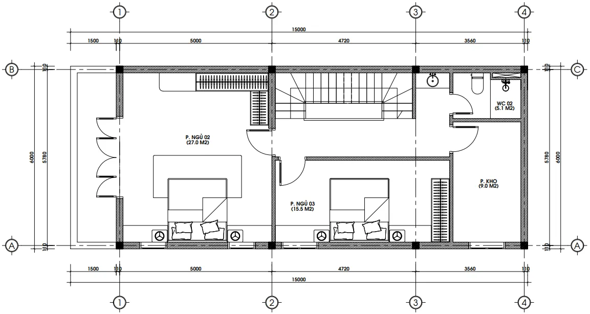
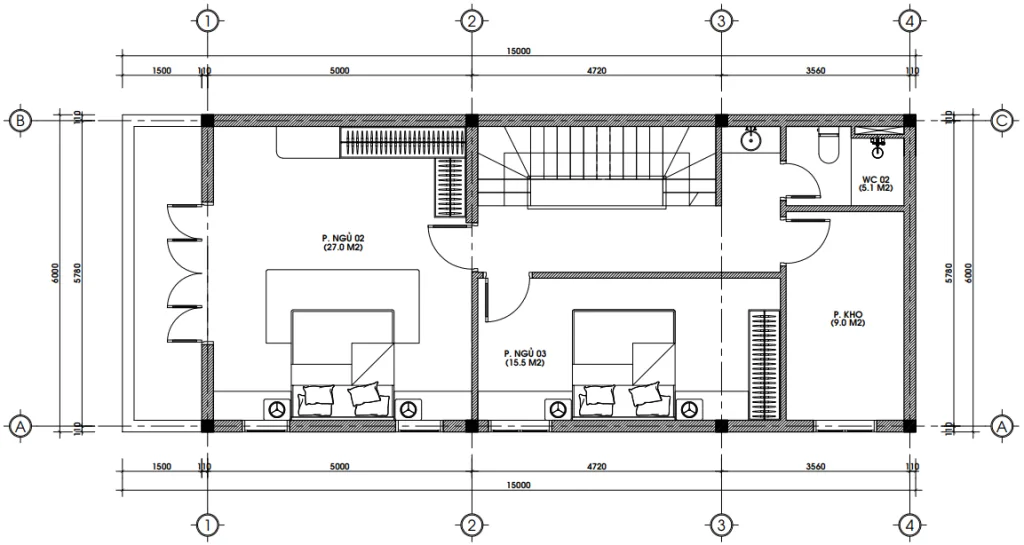
Tầng 2: Nơi nghỉ ngơi riêng tư (Diện tích 91m²)
Tầng 2 của mẫu nhà phố tân cổ điển 2 tầng 1 tum tập trung vào sự tĩnh lặng và thư giãn:
-
Phòng ngủ 02 (27m²): Đây là phòng ngủ Master với diện tích cực lớn, có ban công rộng mở ra mặt tiền.
-
Phòng ngủ 03 (15.5m²): Dành cho con cái, được thiết kế cửa sổ lớn lấy sáng.
-
Phòng kho (9m²): Một chi tiết rất thực tế mà TechHome tư vấn cho anh Quang để giữ nhà cửa luôn gọn gàng.
-
WC 02 (5.1m²): Đồng trục với tầng 1 để thuận tiện cho việc lắp đặt kỹ thuật.

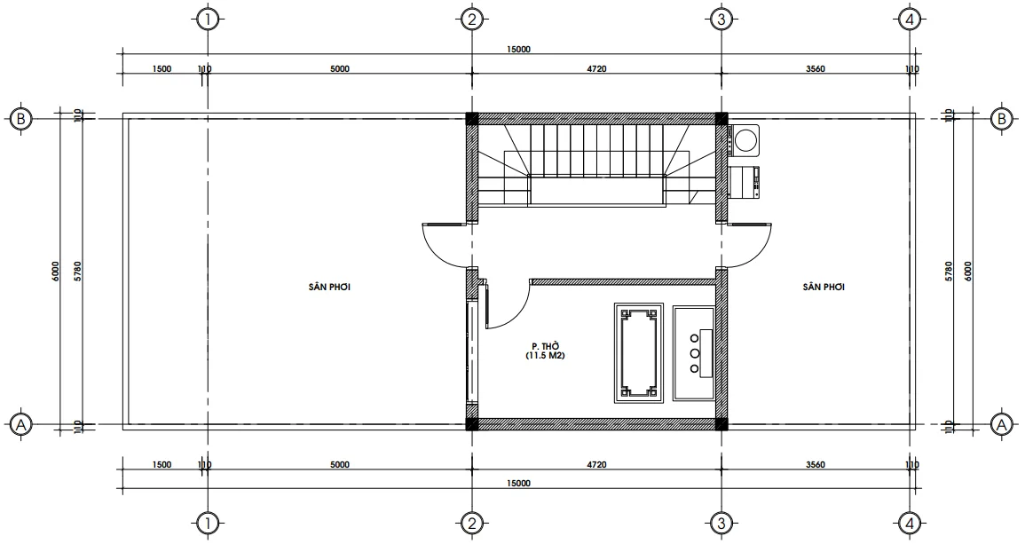
Tầng Tum: Khoảng lặng tâm linh và tiện ích (Diện tích 32m²)
Phần “tum” trong mẫu nhà phố tân cổ điển 2 tầng 1 tum đóng vai trò cực kỳ quan trọng:
-
Phòng thờ (11.5m²): Đặt ở vị trí cao nhất, trang trọng và yên tĩnh nhất.
-
Sân phơi & Sân chơi: Hai khoảng sân trước và sau rộng rãi giúp gia chủ có thể trồng cây, thưởng trà hoặc làm khu vực giặt phơi tiện lợi.

4. Tại sao mẫu nhà phố tân cổ điển 2 tầng 1 tum lại lên ngôi trong năm 2026?
Không phải ngẫu nhiên mà anh Quang và nhiều khách hàng khác tại TechHome lại ưu tiên lựa chọn mẫu nhà phố tân cổ điển 2 tầng 1 tum. Có 3 lý do chính:
-
Vẻ đẹp trường tồn: Kiến trúc tân cổ điển không bao giờ lỗi mốt. Sau 10 hay 20 năm, ngôi nhà của bạn vẫn giữ nguyên giá trị thẩm mỹ.
-
Tối ưu chi phí: So với việc xây 3-4 tầng thật, việc làm 2 tầng và 1 tum giúp giảm đáng kể chi phí xây dựng nhưng vẫn đảm bảo đủ công năng sử dụng.
-
Sự thông thoáng: Tầng tum giúp chống nóng cho các tầng dưới cực tốt, đặc biệt là với khí hậu nắng nóng tại miền Bắc.

5. Báo giá tham khảo xây dựng mẫu nhà phố tân cổ điển 2 tầng 1 tum
Tại TechHome, chúng mình luôn minh bạch về tài chính để khách hàng yên tâm nhất. Dưới đây là mức đầu tư dự kiến cho một công trình tương tự nhà anh Quang:
| Hạng mục | Đơn giá dự kiến (VND/m²) | Tổng diện tích (Tạm tính) | Thành tiền (Ước tính) |
| Gói thiết kế kiến trúc | 108.000 | 216 m² | 23.328.000 |
| Xây dựng phần thô & Nhân công | 4.000.000 – 5.000.000 | 216 m² | 864.000.000 – 1.080.000.000 |
| Hoàn thiện trọn gói (Chìa khóa trao tay) | 7.500.000 – 10.000.000 | 216 m² | 1.620.000.000 – 2.160.000.000 |
Lưu ý: Đây chỉ là mức chi phí ước tính. Để nhận được báo giá chính xác và chi tiết nhất cho công trình của bạn, vui lòng liên hệ trực tiếp với chúng tôi. Hoặc để tìm hiểu rõ hơn về tiêu chuẩn vật liệu xây dựng và các yếu tố ảnh hưởng đến chi phí, bạn có thể tham khảo thêm tại các bài viết chuyên sâu về vật liệu xây dựng cao cấp trên Wikipedia.

6. Chia sẻ từ chuyên gia TechHome: Làm sao để có ngôi nhà đẹp?
Để sở hữu một mẫu nhà phố tân cổ điển 2 tầng 1 tum hoàn hảo, mình có vài lời khuyên chân thành dành cho bạn:
-
Đừng quá tham chi tiết: Tân cổ điển là sự tinh tế, không phải là đắp thật nhiều hoa văn. Sự tiết chế đúng chỗ sẽ tạo nên vẻ sang trọng thực sự.
-
Ưu tiên ánh sáng: Hãy sử dụng hệ cửa nhôm kính Xingfa hoặc cửa gỗ có pano kính để ánh sáng tự nhiên len lỏi vào từng ngóc ngách.
-
Chọn đơn vị uy tín: Một bản vẽ đẹp chỉ là khởi đầu, việc thi công thực tế đòi hỏi tay nghề thợ rất cao, đặc biệt là các phần phù điêu và mái vòm.
Mẫu nhà phố tân cổ điển 2 tầng 1 tum không chỉ là một công trình xây dựng, đó là tâm huyết của đội ngũ kiến trúc sư TechHome và ước mơ của gia đình anh Quang. Chúng mình rất tự hào khi được đồng hành cùng anh để tạo nên một dấu ấn kiến trúc riêng biệt tại Ninh Bình.
Nếu bạn cũng đang ấp ủ về một mẫu nhà phố tân cổ điển 2 tầng 1 tum đẳng cấp như thế này, đừng ngần ngại nhắn tin cho TechHome hoặc gọi ngay vào số hotline bên dưới nhé. Chúng mình luôn sẵn sàng lắng nghe và tư vấn miễn phí!

CÔNG TY CỔ PHẦN KIẾN TRÚC VÀ XÂY DỰNG TECHHOME
-
Website: https://nhadeptechhome.vn/
-
Hotline: 036.273.2222
-
Địa chỉ: B1.1 LK18 Ô 3 – KĐT Thanh Hà – Cienco 5 – Thanh Oai- Hà Nội.
