Hôm nay, Techhome muốn giới thiệu đến các bạn một công trình mà đội ngũ KTS tại Techhome vừa mới hoàn thiện hồ sơ thiết kế kỹ thuật thi công. Đó là căn nhà phố của anh Thế Anh tại Ngọc Hồi, Hà Nội. Nếu bạn đang tìm kiếm một mẫu nhà phố tân cổ điển 3 tầng vừa thể hiện được cái “tầm” của gia chủ, vừa tối ưu được diện tích phân lô phố thị, thì đừng bỏ qua bài viết này nhé!
1. Cái “duyên” giữa Techhome và anh Thế Anh
Xây nhà là chuyện cả đời. Anh Thế Anh tìm đến Techhome với một trăn trở rất đời thường: “Anh muốn một ngôi nhà nhìn vào là thấy sự vững chãi, sang trọng nhưng không được quá rườm rà, quan trọng là công năng phải thật tiện cho vợ con.” Sau nhiều lần thảo luận, phương án mẫu nhà phố tân cổ điển 3 tầng với hệ mái Mansard quyền quý đã hoàn toàn thuyết phục được anh.
Công trình được thiết kế trên khu đất có mặt tiền 5m – một kích thước chuẩn mực cho nhà phố hiện nay. Với tổng diện tích sàn mỗi tầng là 65m2, các KTS đã khéo léo sắp đặt để không gian không chỉ là nơi để ở, mà còn là nơi để tận hưởng.

2. Phân tích ngoại thất: Khi sự xa hoa lên tiếng
Điểm nhấn đầu tiên của mẫu nhà phố tân cổ điển 3 tầng này chính là sự kết hợp màu sắc cực kỳ tinh tế. Tầng 1 được ốp đá Granite màu vàng hoàng gia, tạo cảm giác như một khối đế vững chắc và sang trọng. Hai tầng phía trên sử dụng tông màu trắng tinh khôi làm chủ đạo, giúp tôn lên các đường phào chỉ và hoa văn phù điêu được đắp nổi tỉ mỉ.
Hệ cột và ban công điệu đà
Bạn có để ý hai cột Corinthian thông tầng từ tầng 2 lên tầng 3 không? Đây chính là “linh hồn” của phong cách tân cổ điển. Nó tạo ra sự thanh thoát, cao ráo cho ngôi nhà. Kết hợp với đó là hệ ban công uốn lượn bằng sắt nghệ thuật mạ vàng, mang đến một vẻ đẹp vừa mềm mại, vừa kiêu sa cho mẫu nhà phố tân cổ điển 3 tầng.
Mái Mansard – Dấu ấn kiến trúc Pháp
Không sử dụng mái bằng hay mái Thái thông thường, Techhome đã tư vấn cho anh Thế Anh sử dụng mái Mansard màu xanh than lịch lãm. Loại mái này không chỉ giúp chống nóng tốt mà còn tạo ra một tầng tum giả, giúp tổng thể công trình nhìn bề thế hơn hẳn. Đây là lựa chọn thường thấy trong các mẫu nhà phố tân cổ điển 3 tầng cao cấp hiện nay.
3. Chi tiết mặt bằng công năng: Tối ưu đến từng milimet
Một ngôi nhà đẹp mà không tiện thì cũng chỉ là “vỏ rỗng”. Hãy cùng mình soi kỹ bản vẽ kỹ thuật mà các kỹ sư Techhome đã dày công thực hiện.
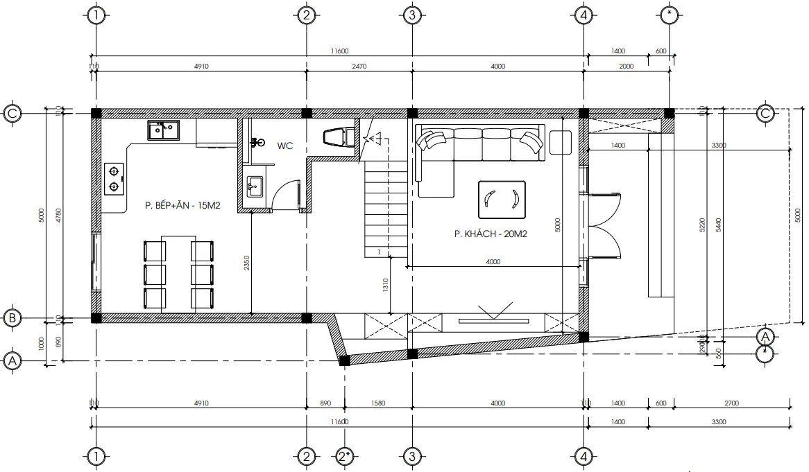
Tầng 1: Không gian kết nối gia đình
Mặt bằng tầng 1 có chiều cao thông thủy lên tới 3700mm, cực kỳ thoáng đãng.
-
Phòng khách (20m2): Được đặt ngay sau cửa chính, là nơi tiếp đón khách khứa với tầm nhìn rộng mở.
-
Phòng bếp + ăn (15m2): Nằm ở phía cuối nhà, ngăn cách nhẹ nhàng với phòng khách bằng khu vực cầu thang.
-
WC: Được bố trí kín đáo dưới gầm thang để tiết kiệm diện tích.
Trong thiết kế mẫu nhà phố tân cổ điển 3 tầng, việc bố trí cầu thang 21 bậc với chiều cao mỗi bậc 157mm là một sự tính toán cực kỳ khoa học, vừa chuẩn phong thủy vừa giúp bước chân đi lại không bị mỏi.

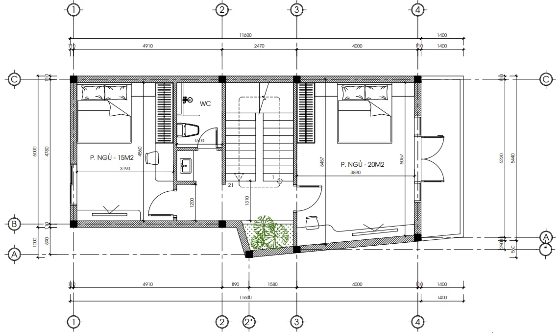
Tầng 2: Chốn riêng tư yên bình
Tầng 2 là không gian dành hoàn toàn cho việc nghỉ ngơi với chiều cao tầng là 3500mm.
-
Phòng ngủ 1 (20m2): Đây thường là phòng Master dành cho vợ chồng anh Thế Anh, có cửa ra ban công lớn để đón gió trời.
-
Phòng ngủ 2 (15m2): Dành cho con cái, được bố trí cửa sổ lớn để đảm bảo ánh sáng tự nhiên.
-
WC chung: Nằm giữa hai phòng ngủ, thuận tiện cho sinh hoạt.
Việc tối ưu hóa diện tích trong mẫu nhà phố tân cổ điển 3 tầng giúp mỗi thành viên đều có không gian riêng thoải mái dù tổng diện tích sàn chỉ 65m2.

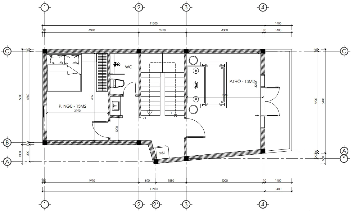
Tầng 3: Tâm linh và tiện ích
Tầng 3 tiếp nối sự mạch lạc trong thiết kế:
-
Phòng thờ (13m2): Được đặt ở vị trí trang trọng nhất phía trước nhà, hướng ra mặt tiền.
-
Phòng ngủ 3 (15m2): Thêm một không gian nghỉ ngơi cho khách hoặc thành viên mới trong gia đình.
Có thể nói, mẫu nhà phố tân cổ điển 3 tầng này đã giải quyết triệt để bài toán về không gian cho gia đình 2-3 thế hệ.

4. Tại sao mẫu nhà phố tân cổ điển 3 tầng lại không bao giờ lỗi mốt?
Nhiều người cho rằng: ” giờ người ta xây nhà hiện đại nhiều, sao anh Thế Anh vẫn chọn tân cổ điển?”. Câu trả lời là: “Cái đẹp có tính kế thừa thì luôn bền vững”.
-
Vẻ đẹp vượt thời gian: Sự cân đối trong tỷ lệ, những đường nét phào chỉ không quá cầu kỳ nhưng đủ sang trọng khiến ngôi nhà luôn mới mẻ sau hàng chục năm.
-
Khẳng định vị thế: Nhìn vào một mẫu nhà phố tân cổ điển 3 tầng, người ta thấy được gu thẩm mỹ tinh tế và sự chỉn chu của gia chủ.
-
Phù hợp với khí hậu: Hệ mái Mansard và tường dày giúp ngôi nhà “mát mùa hè, ấm mùa đông”.
Nếu bạn đang sở hữu một lô đất phố, việc lựa chọn mẫu nhà phố tân cổ điển 3 tầng chính là một khoản đầu tư cho tương lai.

5. Báo giá thi công trọn gói tham khảo (Năm 2026)
Để các bạn dễ hình dung và chuẩn bị tài chính, Techhome xin đưa ra mức giá tham khảo cho dòng mẫu nhà phố tân cổ điển 3 tầng này. Lưu ý, giá thực tế sẽ phụ thuộc vào thời điểm, vật liệu hoàn thiện và điều kiện thi công cụ thể.
| Hạng mục | Đơn giá (VNĐ/m2) | Ghi chú |
| Thiết kế kiến trúc | 108.000 |
Bao gồm hồ sơ kỹ thuật, 3D |
| Thi công phần thô | 3.800.000 – 4.200.000 | Vật liệu xây dựng cơ bản |
| Thi công hoàn thiện (Gói khá) | 6.500.000 – 7.500.000 | Phào chỉ, đá Granite, thiết bị vệ sinh |
| Thi công trọn gói (Chìa khóa trao tay) | 8.000.000 – 10.000.000 | Dành cho mẫu nhà phố tân cổ điển 3 tầng |
Ví dụ: Với tổng diện tích xây dựng khoảng 220m2 (tính cả mái và móng), chi phí đầu tư cho một mẫu nhà phố tân cổ điển 3 tầng như của anh Thế Anh sẽ rơi vào khoảng 1,8 tỷ đến 2,2 tỷ đồng.
Lưu ý: Đây chỉ là mức chi phí ước tính. Để nhận được báo giá chính xác và chi tiết nhất cho công trình của bạn, vui lòng liên hệ trực tiếp với chúng tôi. Hoặc để tìm hiểu rõ hơn về tiêu chuẩn vật liệu xây dựng và các yếu tố ảnh hưởng đến chi phí, bạn có thể tham khảo thêm tại các bài viết chuyên sâu về vật liệu xây dựng cao cấp trên Wikipedia.

6. Lời khuyên từ chuyên gia Techhome
Dưới góc độ là một người đồng hành cùng nhiều khách hàng, mình có vài lời khuyên “xương máu” khi bạn chọn xây mẫu nhà phố tân cổ điển 3 tầng:
-
Đừng tham chi tiết: Tân cổ điển là sự tiết chế. Đừng đắp quá nhiều phù điêu khiến ngôi nhà trở nên nặng nề và “sến”.
-
Chú trọng ánh sáng: Hệ thống đèn ngoại thất (đèn tường cổ điển) đóng vai trò cực lớn trong việc làm nổi bật các khối kiến trúc vào ban đêm.
-
Chọn đơn vị uy tín: Những đường phào chỉ đòi hỏi thợ có tay nghề rất cao. Một sai sót nhỏ cũng làm mất đi cái “thần” của mẫu nhà phố tân cổ điển 3 tầng.

Hy vọng bài viết này đã tiếp thêm động lực cho bạn trên hành trình xây dựng tổ ấm. Nếu bạn yêu thích phong cách này, đừng ngần ngại liên hệ với Techhome để được tư vấn miễn phí nhé!
Mẫu nhà phố tân cổ điển 3 tầng không chỉ là một ngôi nhà, đó là một tác phẩm nghệ thuật dành riêng cho bạn.
CÔNG TY CỔ PHẦN KIẾN TRÚC VÀ XÂY DỰNG TECHHOME
🏠 Website: https://nhadeptechhome.vn/
☎️ Hotline: 036.273.2222
📍 Địa chỉ: B1.1 LK18 Ô 3 – KĐT Thanh Hà – Cienco 5 – Thanh Oai- Hà Nội.


