Hôm nay, Tôi muốn dẫn các bạn về thăm một công trình cực kỳ tâm đắc mà đội ngũ Kiến trúc Techhome vừa hoàn thiện hồ sơ thiết kế kỹ thuật thi công. Đó là tổ ấm của gia đình anh Trường tại mảnh đất Hưng Yên.
Nếu bạn đang sở hữu một lô đất phân lô với mặt tiền khoảng 4.5m và đang loay hoay tìm kiếm một mẫu nhà ống 3 tầng hiện đại vừa đẹp, vừa thoáng, lại tối ưu được từng mét vuông diện tích, thì bài viết này đích thị dành cho bạn. Hãy cùng tôi “mổ xẻ” xem tại sao bản thiết kế này lại khiến chủ đầu tư ưng ý đến vậy nhé!
1. Phối cảnh ngoại thất: Khi những đường cong lên tiếng
Nhìn vào những tấm ảnh 3D đầu tiên, bạn sẽ thấy ngay sự khác biệt. Không còn là những khối hộp vuông vức, khô cứng thường thấy, mẫu nhà ống 3 tầng hiện đại này gây ấn tượng mạnh bởi những đường bo góc mềm mại ở ban công tầng 2 và tầng 3.
-
Sự kết hợp màu sắc: Techhome đã khéo léo sử dụng tông màu trắng sứ chủ đạo, kết hợp với các mảng nhấn màu nâu gỗ từ nhựa kiến trúc ốp trần ban công. Sự kết hợp này tạo nên cảm giác ấm cúng nhưng không kém phần sang trọng.
-
Vật liệu hiện đại: Hệ cửa nhôm kính xingfa màu nâu cà phê đồng điệu với tone màu nhấn, giúp lấy sáng tối đa cho không gian bên trong.
-
Điểm nhấn xanh: Việc bố trí bồn hoa nhỏ tại ban công tầng 3 không chỉ làm dịu mắt mà còn giúp căn nhà trở nên tràn đầy sức sống giữa lòng phố thị.
Đây chính là xu hướng của mẫu nhà ống 3 tầng hiện đại năm 2026: Đẹp ở sự tối giản nhưng tinh tế trong từng chi tiết nhỏ.

2. Giải pháp công năng: Tối ưu đến từng milimet
Với một người làm nghề, tôi luôn quan niệm: “Một ngôi nhà đẹp trước hết phải là một ngôi nhà tiện dụng”. Tại công trình nhà ở gia đình của anh Trường, Techhome đã đưa ra bài toán bố trí mặt bằng cực kỳ khoa học.
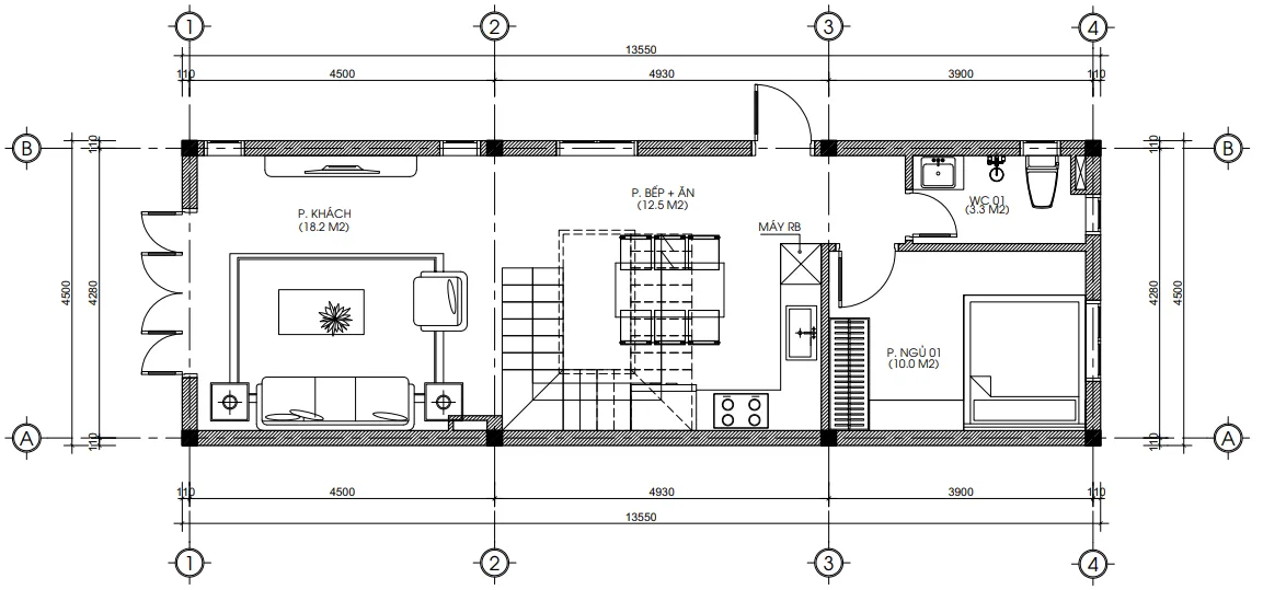
Tầng 1: Không gian kết nối gia đình
Diện tích sàn tầng 1 là 61.0m2 , với chiều cao tầng lý tưởng là 3.9m.
-
Phòng khách (18.2 m2): Ngay sau cửa chính là không gian đón khách rộng rãi. Với diện tích này, gia chủ hoàn toàn có thể thoải mái bố trí một bộ sofa lớn và kệ tivi hiện đại.
-
Phòng Bếp + Ăn (12.5 m2): Được ngăn cách nhẹ nhàng với phòng khách bởi cầu thang 23 bậc. Khu bếp được thiết kế theo lối mở, giúp không gian trở nên thông thoáng, tránh ám mùi thức ăn.
-
Phòng ngủ 01 (10.0 m2): Việc đặt một phòng ngủ nhỏ tại tầng 1 là lựa chọn cực kỳ tâm lý dành cho gia đình có người lớn tuổi, giúp việc di chuyển sinh hoạt thuận tiện hơn.
-
WC 01 (3.3 m2): Được đặt khéo léo phía cuối nhà để đảm bảo sự riêng tư và sạch sẽ.
Mặt bằng tầng 1 của mẫu nhà ống 3 tầng hiện đại này cho thấy sự tính toán kỹ lưỡng về luồng giao thông trong nhà.

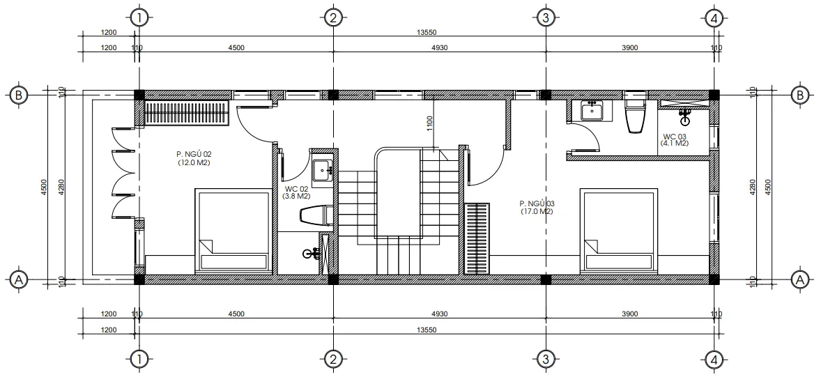
Tầng 2: Sự riêng tư lên ngôi
Lên đến tầng 2, diện tích sàn được mở rộng lên 66.0m2 nhờ phần ban công đua ra. Đây là không gian nghỉ ngơi chính của cả gia đình.
-
Phòng ngủ 03 (Phòng Master – 17.0 m2): Đây là “vương quốc” riêng của vợ chồng anh Trường với diện tích cực kỳ rộng rãi, có vệ sinh khép kín tiện lợi.
-
Phòng ngủ 02 (12.0 m2): Dành cho con cái, đảm bảo đủ không gian học tập và nghỉ ngơi. Có cửa lớn hướng ra ban công mặt tiền.
-
Hệ thống vệ sinh: Tầng 2 được bố trí 2 nhà vệ sinh gồm WC 02 (3.8 m2) và WC 03 (4.1 m2), giúp việc sinh hoạt của các thành viên không bị chồng chéo.
Việc ưu tiên diện tích cho phòng ngủ trong mẫu nhà ống 3 tầng hiện đại giúp nâng cao chất lượng sống và sự nghỉ ngơi sau một ngày làm việc mệt mỏi.

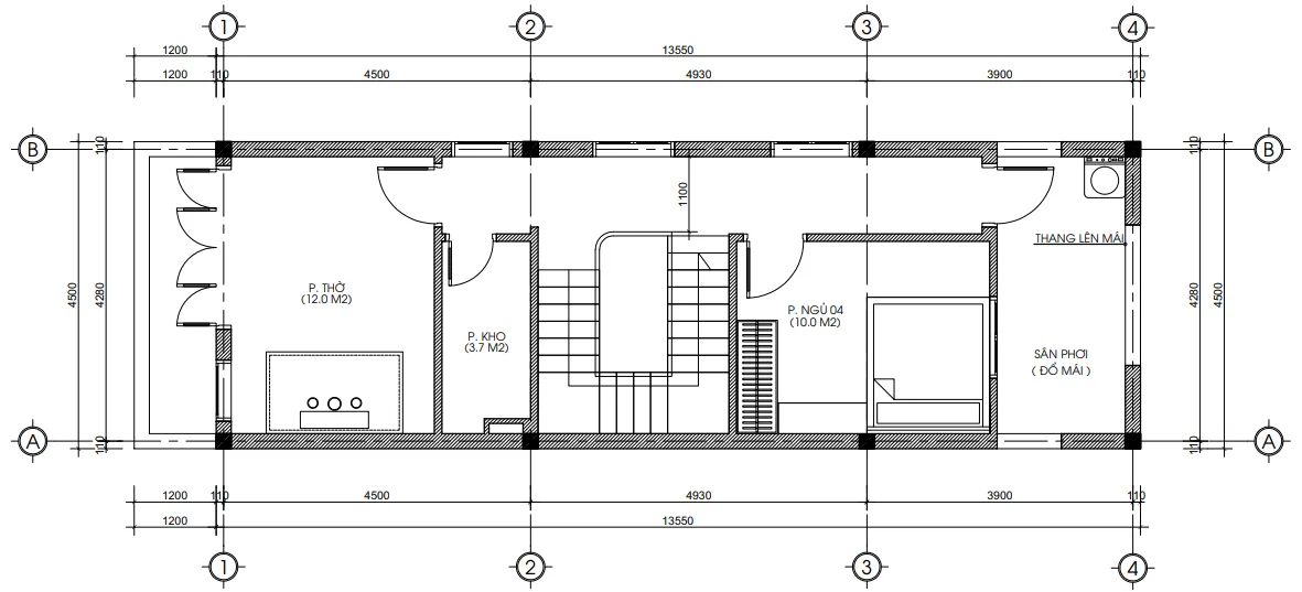
Tầng 3: Đa năng và thoáng đãng
Tầng 3 tiếp tục duy trì diện tích 66.0m2, tập trung vào các không gian phụ trợ và tâm linh.
-
Phòng thờ (12.0 m2): Được đặt ở vị trí cao nhất, trang trọng nhất, hướng ra mặt tiền theo đúng phong thủy.
-
Phòng ngủ 04 (10.0 m2): Dự phòng cho khách hoặc thành viên mới trong tương lai.
-
Phòng kho (3.7 m2): Nơi chứa đựng những vật dụng ít dùng, giúp nhà cửa luôn gọn gàng.
-
Sân phơi (đổ mái): Khu vực này rất rộng, gia chủ có thể kết hợp làm sân vườn trên cao, trồng rau sạch hoặc đặt một bộ bàn trà nhỏ chill mỗi tối.
Mặt bằng công năng tầng 3 hoàn thiện mảnh ghép cuối cùng cho một mẫu nhà ống 3 tầng hiện đại đầy đủ tiện nghi.

3. Tại sao chọn mẫu nhà ống 3 tầng hiện đại của Techhome?
Thị trường có rất nhiều đơn vị thiết kế, nhưng tại sao anh Trường lại tin tưởng giao phó tổ ấm cho Techhome?
-
Hồ sơ kỹ thuật minh bạch: Mọi bản vẽ từ mặt bằng định vị đến chi tiết bậc thang đều được các kiến trúc sư kiểm duyệt khắt khe.
-
Sáng tạo thực tế: Techhome không thiết kế “trên mây”. Mỗi mẫu nhà ống 3 tầng hiện đại đều dựa trên nhu cầu thực tế, ngân sách và đặc điểm khí hậu địa phương.
-
Hỗ trợ kỹ thuật 24/7: Với hotline 0364042222 – 0387603333, Techhome luôn đồng hành cùng gia chủ trong suốt quá trình xây dựng, đảm bảo công trình thực tế giống 99% bản vẽ.
Sở hữu một mẫu nhà ống 3 tầng hiện đại không khó, cái khó là tìm được người kiến trúc sư hiểu được tâm ý của mình.
4. Báo giá thiết kế và thi công tham khảo
Để các bạn có cái nhìn thực tế hơn về chi phí đầu tư cho một mẫu nhà ống 3 tầng hiện đại, Techhome xin đưa ra bảng giá tham khảo (Lưu ý: Giá có thể thay đổi tùy vào thời điểm và vật liệu lựa chọn).
Bảng giá dịch vụ Techhome 2026
| Hạng mục | Đơn giá (VNĐ) | Ghi chú |
| Thiết kế kiến trúc | 108.000 / m2 | Đầy đủ hồ sơ kỹ thuật, 3D ngoại thất |
| Thiết kế nội thất | 150.000 / m2 | Phối cảnh 3D chi tiết từng phòng |
| Thi công phần thô | 3.800.000 – 4.200.000 / m2 | Bao gồm nhân công và vật tư thô |
| Xây nhà trọn gói | 6.500.000 – 7.500.000 / m2 | Chìa khóa trao tay (Tùy gói vật liệu) |
Đối với mẫu nhà ống 3 tầng hiện đại diện tích khoảng 60-70m2 sàn như nhà anh Trường, tổng chi phí đầu tư hoàn thiện thường rơi vào khoảng 1.3 tỷ đến 1.5 tỷ đồng. Đây là mức giá cực kỳ cạnh tranh cho một không gian sống đẳng cấp.
Lưu ý: Đây chỉ là mức chi phí ước tính. Để nhận được báo giá chính xác và chi tiết nhất cho công trình của bạn, vui lòng liên hệ trực tiếp với chúng tôi. Hoặc để tìm hiểu rõ hơn về tiêu chuẩn vật liệu xây dựng và các yếu tố ảnh hưởng đến chi phí, bạn có thể tham khảo thêm tại các bài viết chuyên sâu về vật liệu xây dựng cao cấp trên Wikipedia.

5. Góc chuyên gia: Gợi ý để mẫu nhà ống 3 tầng hiện đại thêm hoàn mỹ
Ngoài những thông tin trong hồ sơ thiết kế, mình xin chia sẻ thêm một vài “mẹo” nhỏ để mẫu nhà ống 3 tầng hiện đại của bạn không chỉ đẹp mà còn bền vững:
-
Chú trọng giếng trời: Với nhà ống, giếng trời là “lá phổi”. Dù bản vẽ đã tối ưu, bạn vẫn nên thảo luận với KTS về vị trí đặt giếng trời sao cho gió có thể đối lưu tốt nhất từ tầng 1 lên tầng 3.
-
Lựa chọn vật liệu ốp trần: Việc sử dụng nhựa kiến trúc vân gỗ như trong mẫu nhà ống 3 tầng hiện đại này là rất thông minh. Nó vừa chịu được nắng mưa, không cong vênh như gỗ tự nhiên, lại tạo vẻ sang trọng bền màu.
-
Hệ thống đèn ngoại thất: Đừng quên bố trí các đèn led âm trần ở ban công và đèn hắt tường. Khi đêm xuống, ánh sáng sẽ biến mẫu nhà ống 3 tầng hiện đại của bạn thành một tác phẩm nghệ thuật lung linh nhất phố.
-
Chống thấm: Đây là vấn đề “sống còn”. Hãy yêu cầu nhà thầu thực hiện kỹ quy trình chống thấm cho sàn mái và ban công trước khi lát gạch.
Một mẫu nhà ống 3 tầng hiện đại thực thụ phải là sự kết hợp của thiết kế giỏi và thi công chuẩn.

Kết luận
Ngôi nhà không chỉ là nơi để che mưa che nắng, nó là nơi lưu giữ những khoảnh khắc hạnh phúc của cả gia đình. Qua dự án của anh Trường tại Hưng Yên, chúng ta thấy được rằng, dù diện tích đất phố có hạn chế, nhưng với sự sáng tạo của đội ngũ Techhome, một mẫu nhà ống 3 tầng hiện đại sang trọng và tiện nghi hoàn toàn nằm trong tầm tay bạn.
Nếu bạn cũng đang ấp ủ về một mẫu nhà ống 3 tầng hiện đại cho riêng mình, đừng ngần ngại ghé thăm Website của chúng tôi tại: https://nhadeptechhome.vn/ để cập nhật thêm hàng trăm mẫu nhà đẹp khác nhé.
Đội ngũ Techhome luôn sẵn sàng lắng nghe và biến ý tưởng của bạn thành hiện thực. Đừng để ước mơ về một mẫu nhà ống 3 tầng hiện đại chỉ nằm trên bản vẽ. Hãy liên hệ ngay hôm nay để nhận tư vấn miễn phí!
Cảm ơn các bạn đã theo dõi bài viết của mình. Chúc các bạn sớm xây dựng được ngôi nhà mơ ước với mẫu nhà ống 3 tầng hiện đại ưng ý nhất!


