Mẫu nhà phố 4 tầng 4x15m hiện đại: Giải pháp không gian hoàn hảo cho phố thị Hà Nội

Xây nhà là chuyện cả đời. Với những mảnh đất đặc trưng tại Hà Nội – dài sâu và ngang hẹp – thì việc tìm kiếm một mẫu nhà phố 4 tầng 4x15m hiện đại vừa đảm bảo công năng, vừa chuẩn phong thủy lại không lỗi mốt là bài toán khiến nhiều gia chủ đau đầu.

Hôm nay, Techhome xin giới thiệu đến các bác hồ sơ thiết kế kỹ thuật thi công của gia đình Anh Hai tại Hà Nội. Đây là một công trình tiêu biểu, hội tụ đủ các yếu tố: Thẩm mỹ tinh tế, tối ưu diện tích và chi phí xây dựng hợp lý. Hãy cùng chúng tôi khám phá chi tiết nhé!


1. Thông tin chung về dự án

  • Chủ đầu tư: Anh Hai.

  • Địa điểm xây dựng: Hà Nội.

  • Đơn vị thiết kế & thi công: Công ty Cổ phần Kiến trúc và Xây dựng Techhome.

  • Loại hình: Nhà phố hiện đại.

  • Diện tích khu đất: 3.95m x 15m .

  • Quy mô: 4 tầng (3 tầng + 1 tum).

  • Tổng diện tích sàn: Khoảng 212m².

Phối cảnh mặt tiền mẫu nhà phố 4 tầng 4x15m hiện đại, sang trọng tại Hà Nội
Phối cảnh mặt tiền mẫu nhà phố 4 tầng 4x15m hiện đại, sang trọng tại Hà Nội

2. Phân tích kiến trúc ngoại thất: Sự sang trọng đến từ sự tối giản

Nhìn vào phối cảnh 3D, các bác có thể thấy mẫu nhà phố 4 tầng 4x15m hiện đại này mang một vẻ đẹp rất “tây”. Không rườm rà phào chỉ, Techhome tập trung vào các khối hình học vuông vức và vật liệu hiện đại.

Tông màu và chất liệu

Mặt tiền sử dụng tông màu ghi xám trung tính làm chủ đạo, kết hợp với các mảng tường ốp gạch trang trí màu kem tạo điểm nhấn ấm cúng. Điểm đặc biệt nhất chính là hệ thống nan gỗ nhựa ngoài trời ở phần cổng và trần ban công. Chất liệu gỗ này không chỉ giúp căn nhà trông sang trọng hơn mà còn chịu được thời tiết khắc nghiệt, nắng mưa của miền Bắc mà không lo cong vênh hay mối mọt.

Giải pháp ánh sáng và thông tầng

Với chiều ngang chỉ gần 4m, việc lấy sáng là cực kỳ quan trọng. Techhome đã bố trí hệ cửa nhôm kính Xingfa bản lớn ở toàn bộ mặt tiền. Đặc biệt, nhìn từ góc phối cảnh chim bay, các bác sẽ thấy một ô giếng trời lớn ngay giữa nhà. Đây chính là “lá phổi” giúp lưu thông không khí, đảm bảo mọi ngóc ngách trong nhà đều ngập tràn ánh sáng tự nhiên.

Góc nghiêng mẫu nhà phố 4 tầng 4x15m hiện đại


3. Bản vẽ mặt bằng công năng: Tối ưu đến từng centimet

Một mẫu nhà phố 4 tầng 4x15m hiện đại đẹp thôi chưa đủ, quan trọng là phải “dễ ở”. Dưới đây là cách Techhome chia công năng cho nhà Anh Hai:

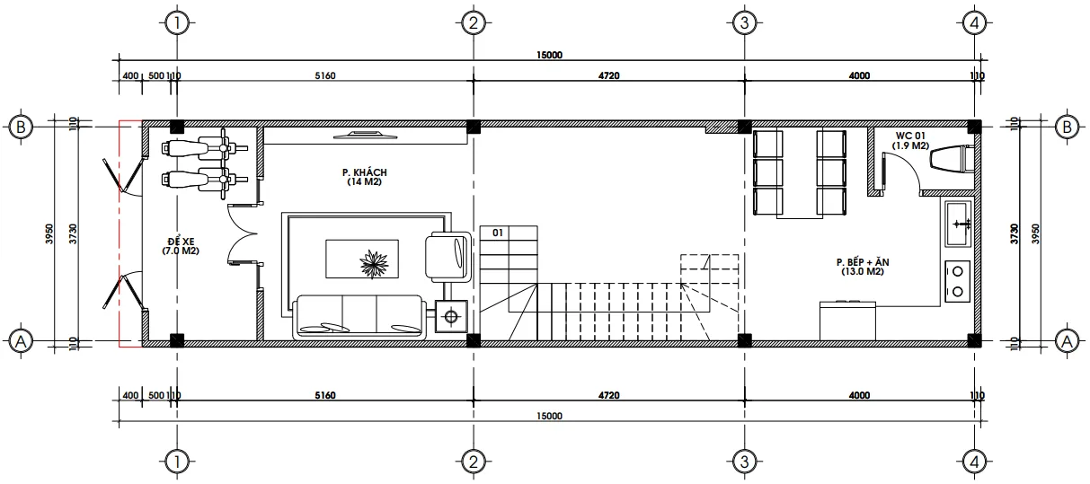
Tầng 1: Không gian sinh hoạt chung (58m²)

  • Khu vực để xe (7.0m²): Được thiết kế tách biệt phía trước, đủ chỗ cho 3-4 xe máy mà không làm ảnh hưởng đến phòng khách.

  • Phòng khách (14m²): Không gian đón khách sang trọng, được liên kết trực tiếp với cầu thang.

  • Phòng bếp + ăn (13.0m²): Đặt ở phía cuối nhà để đảm bảo sự riêng tư và tránh mùi thức ăn bay ra phòng khách.

Bản vẽ mặt bằng tầng 1 mẫu nhà phố 4x15m gồm khu để xe, phòng khách và bếp ăn hiện đại.
Bản vẽ mặt bằng tầng 1 mẫu nhà phố 4x15m gồm khu để xe, phòng khách và bếp ăn hiện đại.

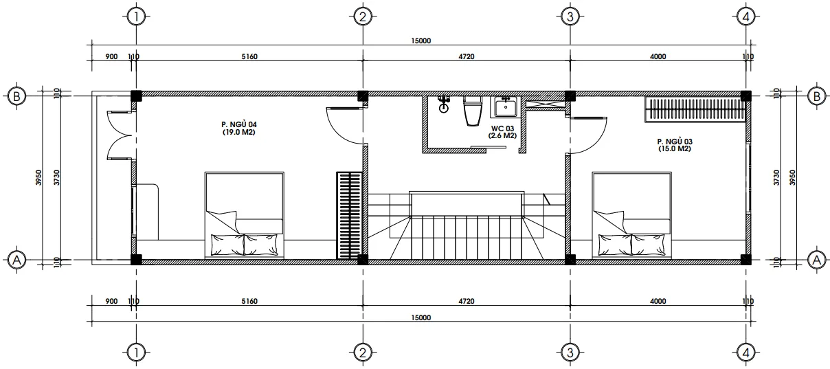
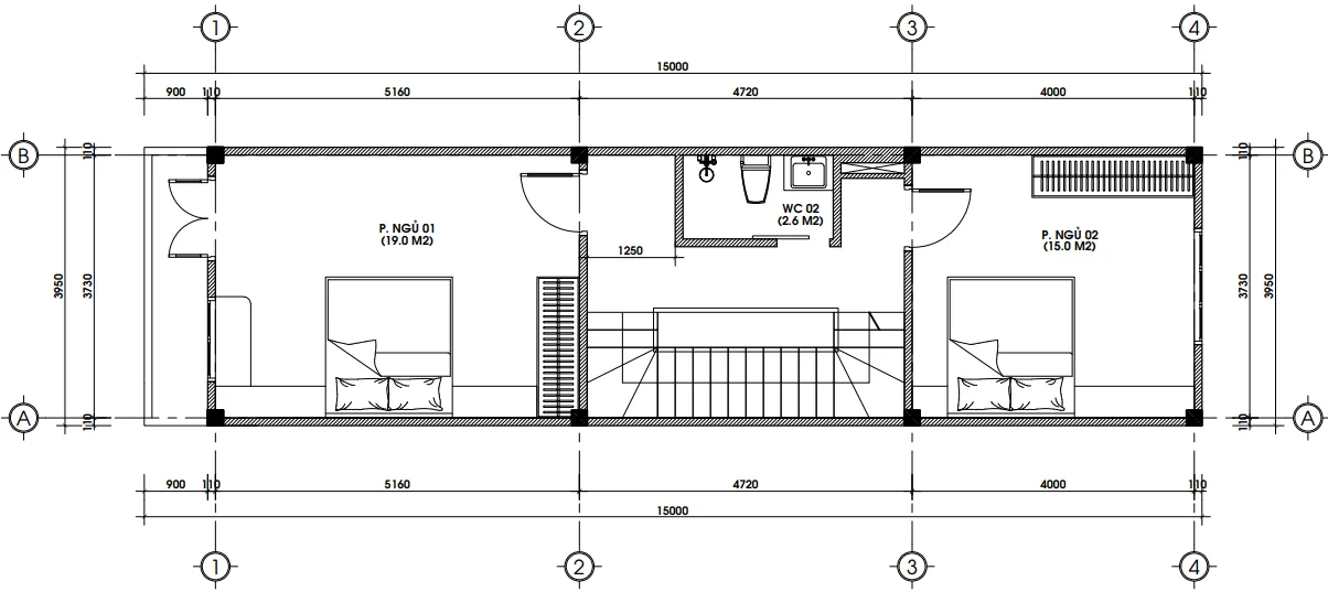
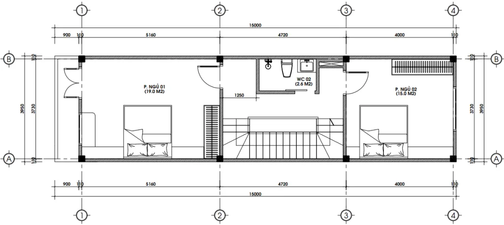
Tầng 2 & 3: Không gian nghỉ ngơi (Mỗi tầng 58m²)

Hai tầng này có thiết kế tương đồng để tối ưu hóa diện tích sử dụng:

  • Phòng ngủ 01 & 04 (19.0m²): Hướng ra mặt tiền, có ban công rộng rãi, thích hợp làm phòng ngủ Master cho gia chủ.

  • Phòng ngủ 02 & 03 (15.0m²): Nằm phía sau, yên tĩnh, phù hợp cho con cái hoặc khách đến chơi nhà.

  • WC 02 & 03 (2.6m²): Mỗi tầng trang bị một nhà vệ sinh chung rộng rãi, đầy đủ tiện nghi.

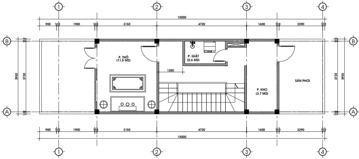
Tầng 4 (Tầng tum): Tâm linh và tiện ích (38m²)

  • Phòng thờ (11.5m²): Đặt ở vị trí cao nhất, trang trọng và yên tĩnh nhất của căn nhà.

  • Phòng giặt (2.6m²) & Kho (3.7m²): Giúp việc sinh hoạt hàng ngày trở nên ngăn nắp.

  • Sân phơi: Khoảng sân rộng rãi phía trước và sau để phơi đồ, kết hợp trồng cây xanh làm không gian thư giãn.

Bản vẽ mặt bằng tầng 4 mẫu nhà phố 4x15m gồm phòng thờ, kho và sân phơi
Bản vẽ mặt bằng tầng 4 mẫu nhà phố 4x15m gồm phòng thờ, kho và sân phơi

4. Tại sao mẫu nhà phố 4 tầng 4x15m hiện đại lại là xu hướng tại Hà Nội?

Hà Nội đất chật người đông, việc sở hữu một mảnh đất 60m² là tài sản lớn. Tuy nhiên, nếu không biết cách thiết kế, căn nhà sẽ dễ rơi vào tình trạng bí bách, thiếu sáng. Mẫu nhà phố 4 tầng 4x15m hiện đại của Techhome giải quyết được 3 vấn đề cốt lõi:

  1. Tính thẩm mỹ bền vững: Kiến trúc hiện đại không bao giờ lỗi mốt. Sau 10-20 năm, căn nhà của các bác trông vẫn rất hợp thời.

  2. Tối ưu công năng: 4 phòng ngủ là con số lý tưởng cho gia đình 3 thế hệ (ông bà, bố mẹ và 2 con). Mỗi thành viên đều có không gian riêng tư cần thiết.

  3. Chi phí xây dựng: Với thiết kế vuông vức, việc thi công diễn ra nhanh chóng, ít sai sót, từ đó tiết kiệm được nhân công và vật tư dư thừa.

Góc nghiêng mẫu nhà phố 4 tầng 4x15m hiện đại


5. Báo giá thi công mẫu nhà phố 4 tầng 4x15m hiện đại (Cập nhật 2026)

Techhome luôn minh bạch trong giá cả để các bác dễ dàng dự trù tài chính. Dưới đây là đơn giá tham khảo cho khu vực Hà Nội:

Hạng mục Đơn giá (VNĐ/m²) Ghi chú
Thiết kế kiến trúc  108.000 Bao gồm kiến trúc, kết cấu, điện nước.
Thi công phần thô 3.500.000 – 4.200.000 Đã bao gồm nhân công và vật tư thô
Xây nhà trọn gói (Chìa khóa trao tay) 6.500.000 – 7.500.000 Vật liệu hoàn thiện khá – tốt

Dự toán sơ bộ cho mẫu nhà phố 4 tầng 4x15m hiện đại (Tổng sàn ~212m²):

  • Phần thô: ~800 – 900 triệu VNĐ.

  • Trọn gói: ~1,4 – 1,6 tỷ VNĐ (Tùy thuộc vào gói vật liệu hoàn thiện mà gia chủ lựa chọn).

Lưu ý: Đây chỉ là mức chi phí ước tính. Để nhận được báo giá chính xác và chi tiết nhất cho công trình của bạn, vui lòng liên hệ trực tiếp với chúng tôi. Hoặc để tìm hiểu rõ hơn về tiêu chuẩn vật liệu xây dựng và các yếu tố ảnh hưởng đến chi phí, bạn có thể tham khảo thêm tại các bài viết chuyên sâu về vật liệu xây dựng cao cấp trên Wikipedia.

Tổng thể mẫu nhà phố 4 tầng 4x15m hiện đại với hệ mái bằng và giếng trời lấy sáng từ trên cao.
Tổng thể mẫu nhà phố 4 tầng 4x15m hiện đại với hệ mái bằng và giếng trời lấy sáng từ trên cao.

6. Chia sẻ thật lòng từ chuyên gia Techhome khi xây nhà phố

Với tư cách là người trực tiếp tư vấn hàng trăm công trình, tôi muốn nhắn nhủ các bác một vài điều khi chọn mẫu nhà phố 4 tầng 4x15m hiện đại:

  • Đừng tiết kiệm tiền thiết kế: Nhiều bác nghĩ thuê thợ tay ngang vẽ sơ sài là xong. Nhưng thực tế, một bộ hồ sơ kỹ thuật chuẩn như của Techhome giúp thợ thi công đúng 100%, tránh việc đập đi xây lại – cái đó mới tốn kém thật sự.

  • Chú ý hệ thống điện nước: Với nhà 4 tầng, áp lực nước và sơ đồ điện rất phức tạp. Hãy đảm bảo đơn vị thi công có bản vẽ kỹ thuật chi tiết để sau này hỏng hóc còn biết đường mà sửa.

  • Vấn đề chống thấm: Nhà phố ở Hà Nội thường xây sát vách nhau. Việc xử lý chống thấm giáp lai là cực kỳ quan trọng để căn nhà bền đẹp theo thời gian.

Tổng thể mẫu nhà phố 4 tầng 4x15m hiện đại


7. Techhome – Đơn vị đồng hành tin cậy cho ngôi nhà của bạn

Nếu các bác đang yêu thích mẫu nhà phố 4 tầng 4x15m hiện đại này hoặc có những ý tưởng riêng cho tổ ấm của mình, hãy liên hệ ngay với Techhome. Chúng tôi không chỉ bán bản vẽ, chúng tôi mang đến giải pháp sống.

  • Cam kết: Thi công đúng tiến độ, không phát sinh chi phí ngoài hợp đồng.

  • website: https://nhadeptechhome.vn/

  • Hotline : 036.273.2222

Hãy để Techhome biến ngôi nhà trong mơ của các bác thành hiện thực. Mẫu nhà phố 4 tầng 4x15m hiện đại chính là minh chứng cho sự tận tâm và chuyên nghiệp của đội ngũ kiến trúc sư chúng tôi.

Để lại một bình luận

Email của bạn sẽ không được hiển thị công khai. Các trường bắt buộc được đánh dấu *

    Vui lòng nhấn nút YÊU CẦU TƯ VẤN và đợi 1 - 2 giây đến khi thấy thông báo thành công

    YÊU CẦU TƯ VẤN