Xây nhà ở Hà Nội, nhất là trong những con ngõ nhỏ với diện tích chỉ tầm 40m², quả thực là một “cuộc chiến” cân não. Làm sao để vừa đủ công năng cho gia đình 3 thế hệ, vừa phải thoáng, lại vừa phải đẹp mà không lỗi mốt? Hôm nay, TechHome sẽ giới thiệu tới các bạn một công trình thực tế của chị Luyên tại Hà Nội. Đây là mẫu nhà phố 3 tầng 1 tum điển hình, xử lý cực “ngọt” bài toán diện tích nhỏ mà vẫn sang trọng.
1. Thông tin tổng quan dự án
Trước khi đi sâu vào phân tích, mời các bạn điểm qua thông số kỹ thuật của công trình:
-
Chủ đầu tư: Chị Luyên
-
Địa điểm: Hà Nội
-
Diện tích xây dựng: ~4m x 9.8m
-
Tổng diện tích thiết kế: 145 m²
-
Quy mô: 3 tầng + 1 tum
-
Đơn vị thiết kế: Công ty Cổ phần Kiến trúc và Xây dựng TechHome

2. Phân tích ngoại thất: Hiện đại, tối giản và bền bỉ
Nhìn vào phối cảnh 3D, bạn sẽ thấy mẫu nhà phố 3 tầng 1 tum này mang phong cách hiện đại rõ nét. Với mặt tiền chỉ 4m, các kiến trúc sư TechHome đã sử dụng thủ pháp hình khối “thò thụt” để tạo chiều sâu, tránh cảm giác nhà bị “mỏng” và cao lêu nghêu.
-
Tông màu: Sự kết hợp giữa trắng sứ, xám trung tính và màu gỗ ấm áp tạo nên vẻ ngoài thanh lịch. Đây là bảng màu không bao giờ lỗi mốt trong kiến trúc đô thị.
-
Vật liệu: Tầng 1 được ốp đá giả vân mây sang trọng, vừa sạch sẽ lại dễ lau chùi. Các tầng trên sử dụng kính cường lực khung nhôm Xingfa bản lớn để lấy sáng tối đa cho không gian bên trong.
-
Điểm nhấn xanh: Ban công tầng tum được bố trí bồn hoa và cây xanh, giúp giảm bức xạ nhiệt và mang lại cảm giác thư thái giữa lòng thủ đô ồn ào.

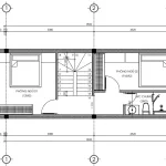
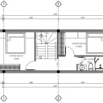
3. Giải pháp mặt bằng công năng: Tối ưu đến từng centimet
Điều làm nên giá trị của mẫu nhà phố 3 tầng 1 tum chính là cách sắp xếp không gian bên trong. Với diện tích sàn chỉ 40m², mọi mét vuông đều được tính toán kỹ lưỡng.
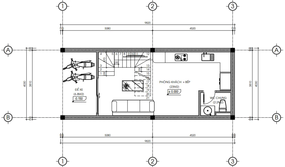
Tầng 1: Không gian sinh hoạt chung ấm cúng
Mặt bằng tầng 1 được chia làm 3 khu vực chính:
-
Khu để xe (6.8m²): Cao độ thấp hơn sàn chính 15cm (-0.150) để ngăn bụi và bùn đất tràn vào nhà.
-
Phòng khách kết hợp bếp (23m²): Đây là thiết kế mở thường thấy trong các căn nhà phố diện tích nhỏ. Việc lược bỏ vách ngăn giúp không gian thoáng đãng hơn hẳn.
-
WC chung (2.2m²): Được đặt góc cuối nhà để tiết kiệm diện tích.
Cầu thang tầng 1 có 21 bậc, chiều cao mỗi bậc là 164mm. Đây là con số “vàng” trong phong thủy (cung Sinh) và đảm bảo bước chân đi thoải mái, không bị mỏi.

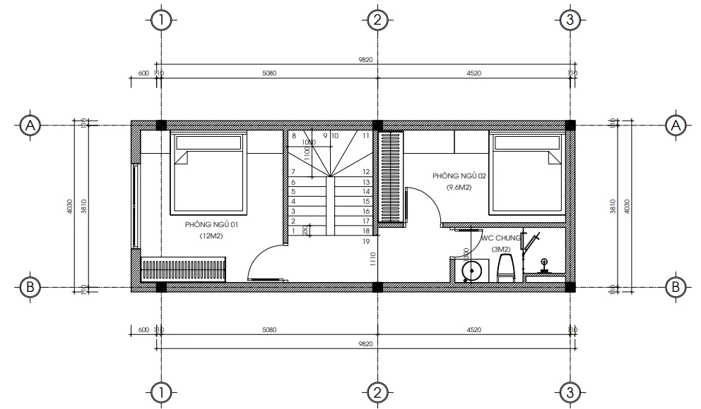
Tầng 2 & 3: Không gian nghỉ ngơi riêng tư
Cả hai tầng này đều có thiết kế tương đồng để tối ưu hóa công năng cho gia đình đông thành viên:
-
Phòng ngủ 01 (12m²): Có cửa sổ lớn hướng ra mặt tiền, đón nắng gió tự nhiên.
-
Phòng ngủ 02 (9.6m²): Yên tĩnh hơn, phù hợp cho con cái hoặc khách.
-
WC chung (3m²): Đủ rộng để bố trí thiết bị vệ sinh hiện đại.
Điểm khác biệt nhỏ là cầu thang từ tầng 2 lên các tầng trên có 19 bậc với chiều cao bậc 173mm. Việc điều chỉnh này giúp cân bằng tổng chiều cao nhà mà vẫn đảm bảo an toàn.
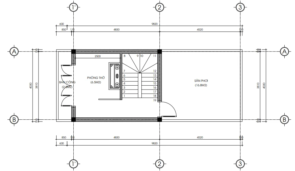
Tầng tum: Nơi kết nối tâm linh và tiện ích
Trong mẫu nhà phố 3 tầng 1 tum, tầng này đóng vai trò cực kỳ quan trọng:
-
Phòng thờ (6.5m²): Đặt ở vị trí cao nhất, trang nghiêm và thông thoáng.
-
Sân phơi (16.8m²): Diện tích khá rộng rãi cho việc giặt giũ, phơi phóng hoặc trồng rau sạch.
-
Ban công: Một góc nhỏ để gia chủ nhâm nhi cafe vào mỗi buổi sáng.

4. Tại sao bạn nên chọn mẫu nhà phố 3 tầng 1 tum của TechHome?
Là một chuyên gia trong lĩnh vực kiến trúc, mình có vài lời khuyên chân thành cho các bác đang định xây nhà tầm 40-50m² tại Hà Nội:
-
Thông tầng là bắt buộc: Với nhà ống dài và hẹp, nếu không có giếng trời hoặc khoảng thông tầng ở cầu thang, không khí sẽ bị quẩn, cực kỳ bí bách. Mẫu nhà phố 3 tầng 1 tum này đã xử lý rất tốt việc lấy sáng từ trên xuống.
-
Ưu tiên nội thất thông minh: Đừng mua những bộ sofa gỗ đồ sộ. Hãy chọn những món đồ chân mảnh, đa năng để tạo cảm giác không gian rộng hơn.
-
Chọn đơn vị có tâm: Bản vẽ của chị Luyên được kiểm duyệt cực kỳ kỹ càng bởi đội ngũ KTS dày dạn kinh nghiệm. Điều này đảm bảo ngôi nhà khi xây xong không bị nứt, thấm hay hỏng hóc vặt.

5. Báo giá tham khảo thiết kế và thi công (Cập nhật 2026)
Để các bạn có cái nhìn thực tế về chi phí, TechHome xin đưa ra bảng báo giá dự toán cho mẫu nhà phố 3 tầng 1 tum diện tích 145m²:
| Hạng mục | Đơn giá (VNĐ/m²) | Thành tiền (Ước tính) |
| Thiết kế kiến trúc | 108.000 | ~16.000.000 |
| Thi công phần thô | 3.800.000 – 4.200.000 | 550.000.000 – 610.000.000 |
| Thi công hoàn thiện (Gói khá) | 6.000.000 – 7.500.000 | 870.000.000 – 1.087.000.000 |
| Trọn gói “Chìa khóa trao tay” | Từ 1,1 Tỷ VNĐ | (Tùy thuộc vật liệu hoàn thiện) |
Lưu ý: Đây chỉ là mức chi phí ước tính. Để nhận được báo giá chính xác và chi tiết nhất cho công trình của bạn, vui lòng liên hệ trực tiếp với chúng tôi. Hoặc để tìm hiểu rõ hơn về tiêu chuẩn vật liệu xây dựng và các yếu tố ảnh hưởng đến chi phí, bạn có thể tham khảo thêm tại các bài viết chuyên sâu về vật liệu xây dựng cao cấp trên Wikipedia.

6. Góc nhìn chuyên gia: Đừng tiết kiệm tiền thiết kế!
Nhiều bác thường nghĩ: “Nhà 40m² thì cần gì thuê thiết kế, cứ nhìn nhà hàng xóm mà làm”. Đây là một sai lầm .
-
Về kết cấu: Đất Hà Nội nhiều khu vực nền móng yếu. Không có kỹ sư tính toán tải trọng, nhà rất dễ bị lún nghiêng.
-
Về công năng: Một kiến trúc sư giỏi sẽ giúp bạn tận dụng được cả những “góc chết” để biến chúng thành kho chứa đồ hoặc góc decor xinh xắn.
-
Về pháp lý: Khi có bản vẽ chuẩn như mẫu nhà phố 3 tầng 1 tum này, việc xin giấy phép xây dựng và hoàn công sẽ nhanh chóng hơn nhiều.
Xây nhà là việc cả đời. Đừng để sau khi xây xong lại phải thốt lên từ “giá như”. Hãy để TechHome đồng hành cùng bạn tạo nên một tổ ấm thực sự, nơi mà sau mỗi giờ làm việc mệt mỏi, bạn chỉ muốn trở về ngay lập tức.
Nếu bạn đang sở hữu một mảnh đất tương tự và yêu thích mẫu nhà phố 3 tầng 1 tum của chị Luyên, đừng ngần ngại nhấc máy gọi ngay cho chúng tôi.

CÔNG TY CỔ PHẦN KIẾN TRÚC VÀ XÂY DỰNG TECHHOME
-
Hotline: 036.273.2222
-
Website: nhadeptechhome.vn
-
Địa chỉ: B1.1 LK18 Ô 3 – KĐT Thanh Hà – Cienco 5 – Thanh Oai- Hà Nội.
