Bạn đang sở hữu một mảnh đất tại vùng quê đang phát triển như Hà Nam và muốn xây dựng một tổ ấm vừa sang trọng, vừa tối ưu công năng? Mẫu nhà 2 tầng hiện đại của gia đình anh Trường mà Techhome vừa hoàn thiện hồ sơ thiết kế chính là câu trả lời hoàn hảo. Với diện tích sàn gần 100m2, đây không chỉ là nơi để che mưa che nắng, mà là một tác phẩm nghệ thuật kiến trúc đầy hơi thở đương đại.
1. Câu chuyện về mẫu nhà 2 tầng hiện đại tại mảnh đất Hà Nam
Khi tìm đến Techhome, anh Trường chia sẻ: “Anh muốn một ngôi nhà nhìn vào phải thấy sự phóng khoáng, không thích kiểu mái Thái truyền thống rườm rà. Quan trọng nhất là nhà đông người nên phải có ít nhất 4 phòng ngủ nhưng vẫn phải thông thoáng.”
Thấu hiểu tâm tư đó, đội ngũ kiến trúc sư (KTS) Techhome đã phác thảo nên mẫu nhà 2 tầng hiện đại với đường nét hình khối vuông vức, khỏe khoắn. Ngôi nhà tọa lạc tại một vị trí khá đẹp, phía trước giáp sông, cạnh bên là ngõ xóm bình yên. Chính đặc điểm địa hình này đã giúp chúng tôi tận dụng tối đa view nhìn và luồng gió tự nhiên từ phía sông thổi vào, tạo nên một không gian “cực chill” cho gia chủ.

2. Phân tích kiến trúc ngoại thất: Sự lên ngôi của vật liệu bền vững
Nhìn từ bên ngoài, mẫu nhà 2 tầng hiện đại này gây ấn tượng mạnh bởi sự phối hợp màu sắc tinh tế. Tông màu trắng chủ đạo kết hợp cùng các mảng tường ốp gỗ nhựa (Conwood) màu nâu ấm tạo nên sự tương phản sang trọng.
-
Hệ mái bằng phá cách: Không chọn mái dốc, KTS sử dụng mái bằng với hệ sê-nô thu nước giấu kín, giúp ngôi nhà trông gọn gàng và trẻ trung hơn hẳn các mẫu nhà truyền thống.
-
Vật liệu kính cường lực: Toàn bộ hệ cửa sổ và cửa chính sử dụng nhôm kính xingfa cao cấp. Điều này giúp mẫu nhà 2 tầng hiện đại luôn tràn ngập ánh sáng tự nhiên, xóa nhòa ranh giới giữa bên trong và bên ngoài.
-
Điểm nhấn đá Marble: Tầng 1 được tạo điểm nhấn bằng mảng tường ốp đá tự nhiên tối màu tại khu vực sảnh chính, tạo cảm giác vững chãi và quyền lực cho mặt tiền.

3. Giải pháp mặt bằng công năng: Tối ưu đến từng centimet
Một mẫu nhà 2 tầng hiện đại đẹp thôi chưa đủ, nó phải sướng khi ở. Với diện tích sàn 95m2 tại tầng 1 và 90m2 tại tầng 2, chúng tôi đã bố trí công năng cực kỳ khoa học.
Tầng 1: Không gian kết nối và tâm linh
-
Phòng khách (21.5m2): Ngay sau cửa chính là phòng khách rộng rãi. Đây là nơi tiếp khách và cũng là không gian sinh hoạt chung quan trọng của gia đình.
-
Phòng thờ (10.0m2): Một điểm đặc trưng trong văn hóa người miền Bắc là đặt phòng thờ tại tầng 1 để thuận tiện cho việc nhang khói và gần gũi với ông bà. KTS đã khéo léo đặt phòng thờ ở vị trí trang trọng, yên tĩnh.
-
Phòng bếp + ăn (16.5m2): Thiết kế mở liên thông với phòng khách, tạo cảm giác không gian rộng mênh mông.
-
Phòng ngủ 01 (13.0m2): Dành cho người lớn tuổi trong nhà để tránh việc phải leo cầu thang, có vệ sinh riêng biệt cạnh bên.

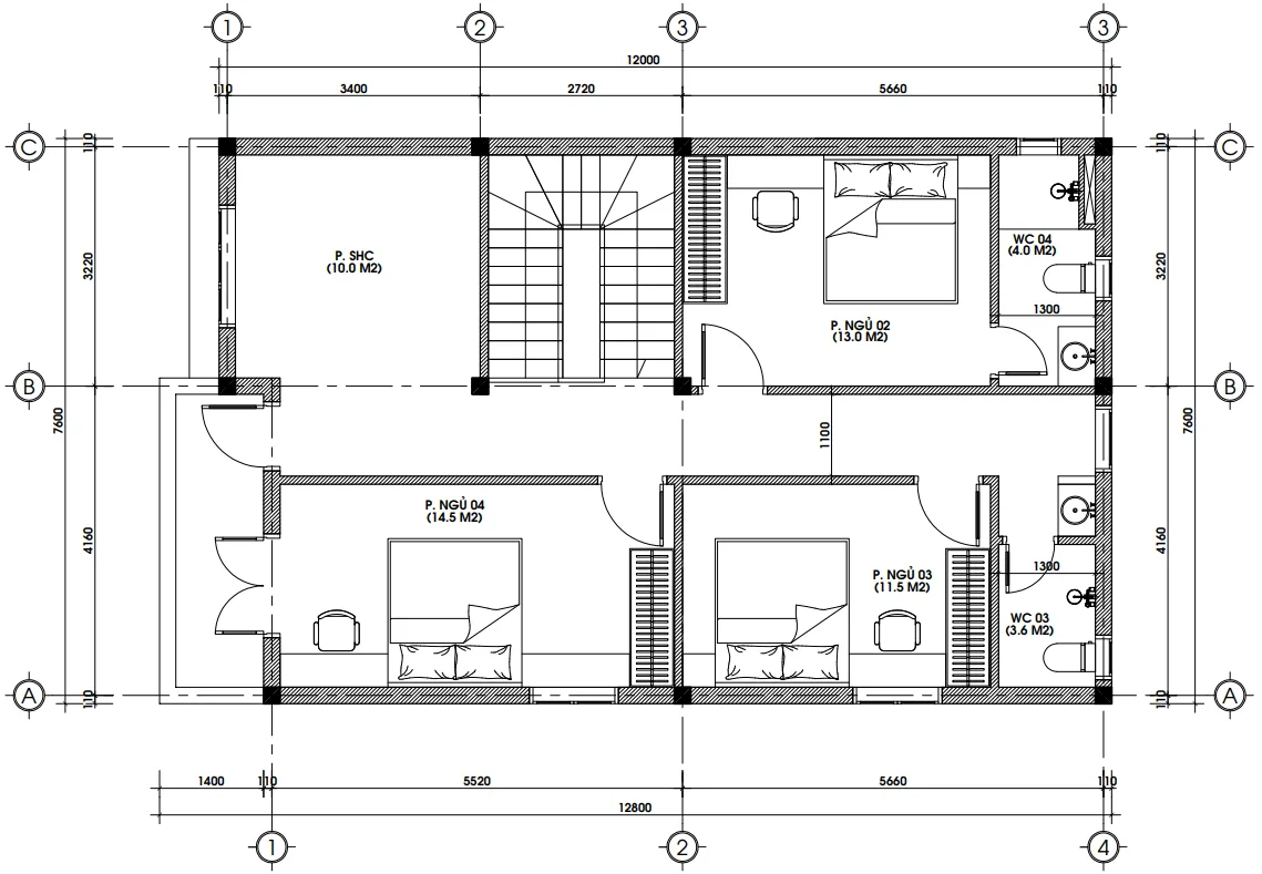
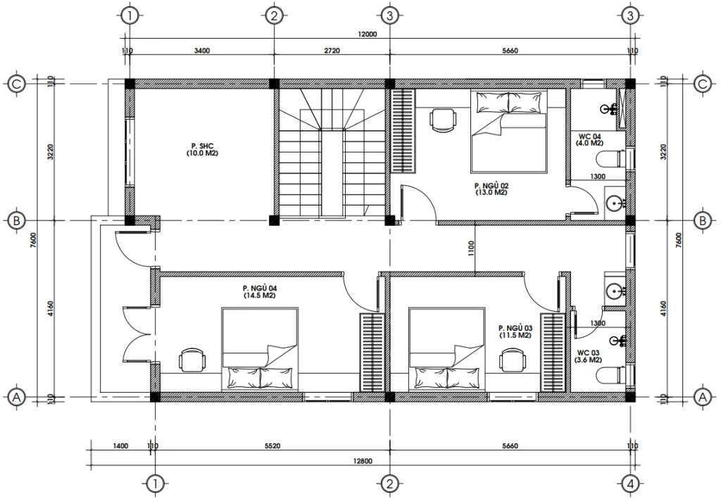
Tầng 2: Không gian nghỉ ngơi riêng tư
Bước lên cầu thang 25 bậc (chiều cao bậc 156mm cực kỳ dễ đi), bạn sẽ lạc vào không gian nghỉ dưỡng thực thụ của mẫu nhà 2 tầng hiện đại này:
-
Phòng sinh hoạt chung (10.0m2): Nơi cả nhà quây quần xem phim hoặc đọc sách trước khi đi ngủ.
-
3 Phòng ngủ (Diện tích từ 11.5m2 – 14.5m2): Các phòng ngủ đều có cửa sổ lớn hướng ra ngoài, đảm bảo không có phòng nào bị bí bách.
-
Ban công kính: Khu vực ban công tầng 2 là nơi anh Trường có thể đặt một bộ bàn trà nhỏ, ngắm nhìn dòng sông phía trước vào mỗi buổi chiều tà.

4. Tại sao mẫu nhà 2 tầng hiện đại này lại trở thành xu hướng năm 2026?
Không phải ngẫu nhiên mà nhiều khách hàng khi đến với website nhadeptechhome.vn đều dừng lại rất lâu ở hồ sơ thiết kế này. Mẫu nhà 2 tầng hiện đại hội tụ đủ 3 yếu tố: Thẩm mỹ – Công năng – Kinh phí.
Với kiểu thiết kế này, gia chủ sẽ tiết kiệm được khá nhiều chi phí so với các kiểu nhà tân cổ điển cầu kỳ. Các đường nét phẳng, thẳng giúp việc thi công nhanh hơn, ít sai sót hơn. Đồng thời, vật liệu hiện đại như kính và gỗ nhựa có độ bền cực cao, chịu được thời tiết khắc nghiệt tại Việt Nam mà không lo lỗi thời.

5. Báo giá tham khảo thi công mẫu nhà 2 tầng hiện đại
Techhome luôn minh bạch trong vấn đề tài chính để khách hàng dễ dàng chuẩn bị nguồn lực. Dưới đây là bảng dự toán sơ bộ cho mẫu nhà 2 tầng hiện đại diện tích ~185m2 sàn (tổng 2 tầng):
| Hạng mục | Đơn giá (VNĐ/m2) | Thành tiền (Ước tính) |
| Thiết kế kiến trúc | 108.000 | ~20.000.000 |
| Thi công phần thô & Nhân công | 3.800.000 – 4.200.000 | ~ 750.000.000 |
| Thi công hoàn thiện (Gói khá) | 6.500.000 – 7.500.000 | ~ 1.200.000.000 – 1.400.000.000 |
Lưu ý: Đây chỉ là mức chi phí ước tính. Để nhận được báo giá chính xác và chi tiết nhất cho công trình của bạn, vui lòng liên hệ trực tiếp với chúng tôi. Hoặc để tìm hiểu rõ hơn về tiêu chuẩn vật liệu xây dựng và các yếu tố ảnh hưởng đến chi phí, bạn có thể tham khảo thêm tại các bài viết chuyên sâu về vật liệu xây dựng cao cấp trên Wikipedia.

6. Góc chuyên gia: Lời khuyên để có một mẫu nhà 2 tầng hiện đại hoàn hảo
Dưới góc độ là người tư vấn chuyên sâu, mình có vài “mẹo” nhỏ cho các bạn đang có ý định xây mẫu nhà 2 tầng hiện đại:
-
Đừng tiếc tiền cho hệ cửa: Với nhà hiện đại, hệ cửa nhôm kính là “linh hồn”. Hãy chọn loại nhôm dày và kính dán an toàn để cách âm, cách nhiệt tốt nhất. Ngôi nhà sẽ sang lên trông thấy.
-
Ánh sáng nhân tạo: Đừng chỉ dùng đèn tuýp. Hãy kết hợp đèn led âm trần, đèn hắt khe rèm và đèn trang trí ở ban công. Buổi đêm, mẫu nhà 2 tầng hiện đại của bạn sẽ lung linh như một resort thu nhỏ.
-
Chống thấm mái: Với nhà mái bằng, việc xử lý chống thấm và thoát nước cực kỳ quan trọng. Hãy yêu cầu đơn vị thi công xử lý kỹ lớp sàn mái và sử dụng sơn chống thấm loại tốt nhất.
-
Cây xanh: Kiến trúc hiện đại sẽ rất khô cứng nếu thiếu cây xanh. Một vài bồn hoa nhỏ ở ban công hay một cây mộc hương trước sảnh như trong bản thiết kế của anh Trường sẽ làm ngôi nhà mềm mại hơn rất nhiều.

7. Techhome – Đơn vị thiết kế và thi công mẫu nhà 2 tầng hiện đại uy tín
Tại Techhome, chúng tôi không bán bản vẽ, chúng tôi bán giải pháp sống. Mỗi mẫu nhà 2 tầng hiện đại ra đời là kết quả của hàng chục giờ làm việc nghiêm túc giữa chủ đầu tư và KTS. Chúng tôi cam kết:
-
Hồ sơ thiết kế chi tiết, dễ hiểu, thợ vườn cũng xây được.
-
Hỗ trợ giám sát tác giả trong suốt quá trình thi công.
-
Tối ưu chi phí, nói không với lãng phí vật tư.
Nếu bạn cũng đang ấp ủ một mẫu nhà 2 tầng hiện đại mang đậm dấu ấn cá nhân như gia đình anh Trường tại Hà Nam, đừng ngần ngại truy cập nhadeptechhome.vn hoặc gọi ngay cho chúng tôi. Đội ngũ Techhome luôn sẵn sàng lắng nghe và biến ngôi nhà trong mơ của bạn thành hiện thực.
Mẫu nhà 2 tầng hiện đại – Lựa chọn thông minh cho cuộc sống tiện nghi!
CÔNG TY CỔ PHẦN KIẾN TRÚC VÀ XÂY DỰNG TECHHOME
☎️ Hotline: 036.273.2222
📍 Địa chỉ: B1.1 LK18 Ô 3 – KĐT Thanh Hà – Cienco 5 – Thanh Oai- Hà Nội.
