Bạn biết không, có những ngôi nhà mà chỉ cần nhìn qua ảnh thôi, người ta đã thấy toát lên cái vẻ “vừa vặn”. Vừa vặn ở đây không phải là diện tích nhỏ, mà là sự hài hòa giữa nhu cầu ở thực tế và cái gu thẩm mỹ tinh tế của gia chủ. Dự án thiết kế nhà cho anh Tâm tại Bắc Ninh mà Techhome vừa hoàn thiện chính là một ví dụ điển hình cho mẫu nhà mái Nhật 1 tầng 4 phòng ngủ đầy sức hút đó.
Xây nhà là chuyện cả đời. Với anh Tâm, ngôi nhà không chỉ là nơi che nắng che mưa, mà là nơi ba thế hệ cùng chung sống, là niềm tự hào với xóm giềng. Hãy cùng mình “đột nhập” vào bản thiết kế này để xem tại sao nó lại khiến hội yêu nhà phát sốt nhé!
1. Tại sao mẫu nhà mái Nhật 1 tầng 4 phòng ngủ lại trở thành “quốc dân”?
Nếu lướt các hội nhóm kiến trúc, bạn sẽ thấy mẫu nhà mái Nhật 1 tầng 4 phòng ngủ xuất hiện dày đặc. Tại sao vậy?
Thứ nhất, nó giải quyết được bài toán giao tiếp. Thay vì mỗi người một tầng, leo cầu thang mệt nghỉ, thì việc tất cả sinh hoạt trên một mặt sàn giúp ông bà gần gũi con cháu, không khí gia đình lúc nào cũng ấm cúng. Thứ hai, hệ mái Nhật với độ dốc vừa phải giúp thoát nước cực tốt, lại cực kỳ mát mẻ với khí hậu khắc nghiệt tại miền Bắc.
Với diện tích sàn lên tới 195m2, Techhome đã tối ưu hóa từng mét vuông để tạo nên một không gian sống không góc chết.

2. Phân tích kiến trúc ngoại thất: Sang trọng từ sự tối giản
Nhìn vào phối cảnh, bạn sẽ thấy mẫu nhà mái Nhật 1 tầng 4 phòng ngủ của anh Tâm mang một tone màu trắng chủ đạo, tinh khôi và trường tồn với thời gian.
-
Hệ mái Nhật xanh than: Đây là điểm nhấn quan trọng nhất. Màu xanh than phối cùng tường trắng tạo nên sự tương phản mạnh mẽ nhưng vẫn rất nhã nhặn. Các lớp mái chồng xếp lên nhau tạo cảm giác bề thế như một căn biệt thự vườn thực thụ.
-
Cột trụ vững chãi: Hệ cột vuông được phào chỉ nhẹ nhàng ở đầu và chân cột, mang hơi hướng tân cổ điển nhưng đã được lược bỏ những chi tiết rườm rà. Nó giúp ngôi nhà trông thanh thoát nhưng vẫn đầy sự uy nghi.
-
Ánh sáng tự nhiên: Hệ thống cửa kính khung nhôm xingfa đen cao cấp được bố trí dày đặc quanh nhà. Điều này không chỉ giúp mẫu nhà mái Nhật 1 tầng 4 phòng ngủ này luôn tràn ngập ánh sáng mà còn giúp gia chủ tiết kiệm kha khá tiền điện mỗi tháng đấy!

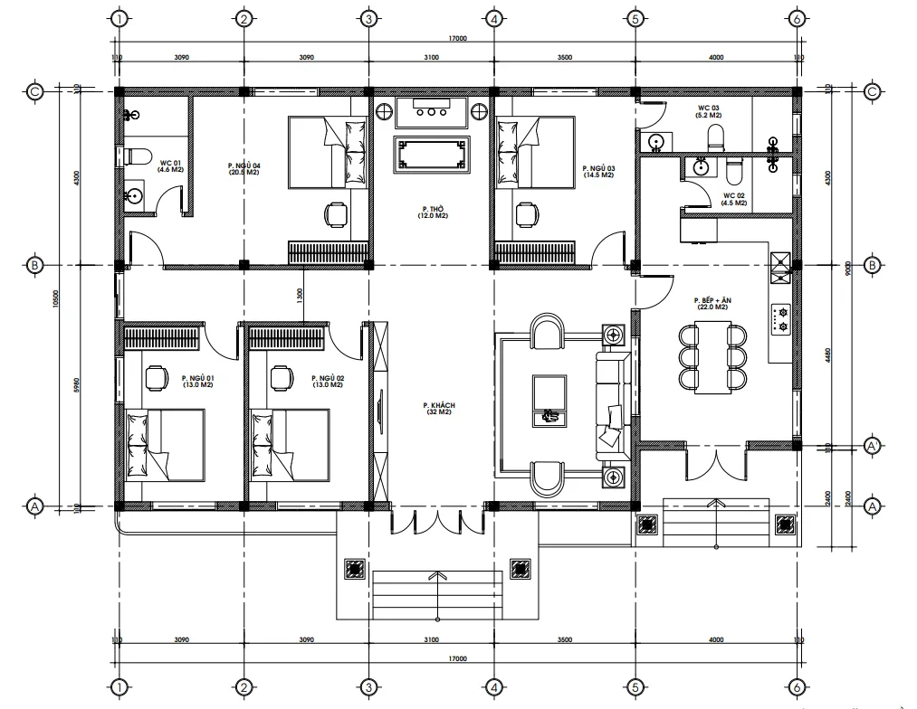
3. Bản vẽ công năng: Khi diện tích 195m2 được tính toán đến từng centimet
Nhiều người hỏi mình: ” Em ơi, 195m2 mà chia 4 phòng ngủ liệu có chật không?”. Câu trả lời nằm ở bản vẽ mặt bằng kỹ thuật của Techhome.
-
Phòng khách (32m2): Nằm ngay chính diện sảnh chính, đây là “trái tim” của ngôi nhà. Không gian đủ rộng để anh Tâm bày biện những bộ sofa lớn đón khách quý.
-
Phòng thờ (12m2): Được đặt ở vị trí trang trọng nhất, thẳng trục sảnh chính nhìn vào, thể hiện sự hiếu kính của gia chủ.
-
4 Phòng ngủ riêng biệt: * Phòng ngủ 01 và 02 (13m2 mỗi phòng) dành cho con cái với thiết kế hiện đại.
-
Phòng ngủ 03 (14.5m2) rộng rãi kết hợp với WC khép kín tiện lợi.
-
Đặc biệt là Phòng ngủ 04 (20.5m2) – đây là phòng Master dành cho vợ chồng anh Tâm với không gian cực kỳ riêng tư và thoáng đạt.
-
-
Khu vực bếp và ăn (22m2): Được tách biệt vừa đủ để tránh mùi thức ăn ám vào phòng khách nhưng vẫn đảm bảo sự liên thông, thuận tiện cho người nội trợ.
-
3 Phòng vệ sinh: Được bố trí thông minh, trong đó có WC riêng trong phòng Master và phòng ngủ 03, đảm bảo tính thẩm mỹ và phong thủy.
Bạn thấy đấy, mẫu nhà mái Nhật 1 tầng 4 phòng ngủ này không hề chật chội mà lại cực kỳ khoa học, đáp ứng trọn vẹn nhu cầu của một gia đình đông thành viên.

4. Chi tiết kỹ thuật và sự hỗ trợ từ Techhome
Xây một cái nhà đẹp trên giấy thì dễ, nhưng để thi công ra đúng cái “thần” của nó thì lại là chuyện khác. Với chiều cao tầng là 4,1 m, ngôi nhà trông cao ráo và cực kỳ thoáng khí. Techhome không chỉ cung cấp hồ sơ thiết kế kỹ thuật thi công mà còn hỗ trợ tư vấn kỹ thuật xây dựng xuyên suốt quá trình qua hotline: 0364042222.
Đội ngũ kiến trúc sư đã dành rất nhiều tâm huyết để hiệu chỉnh từng chi tiết nhỏ nhất trong mẫu nhà mái Nhật 1 tầng 4 phòng ngủ tại Bắc Ninh này.

5. Báo giá dự kiến cho mẫu nhà mái Nhật 1 tầng 4 phòng ngủ
Mình hiểu, ngoài vẻ đẹp thì chi phí là điều bạn quan tâm nhất. Dưới đây là bảng dự toán chi phí mang tính chất tham khảo cho một ngôi nhà có quy mô tương tự dự án anh Tâm (Diện tích 195m2) tại thời điểm năm 2026.
| Hạng mục | Đơn giá dự kiến (VNĐ/m2) | Thành tiền (VNĐ) |
| Thiết kế kiến trúc | 108.000 | 21.060.000 |
| Thi công phần thô | 3.800.000 – 4.200.000 | 741.000.000 – 819.000.000 |
| Hoàn thiện trọn gói (Tiêu chuẩn) | 6.000.000 – 7.000.000 | 1.170.000.000 – 1.365.000.000 |
| Hoàn thiện trọn gói (Khá, cao cấp) | 7.500.000 – 8.500.000 | 1.462.500.000 – 1.657.500.000 |
Lưu ý: Đây chỉ là mức chi phí ước tính. Để nhận được báo giá chính xác và chi tiết nhất cho công trình của bạn, vui lòng liên hệ trực tiếp với chúng tôi. Hoặc để tìm hiểu rõ hơn về tiêu chuẩn vật liệu xây dựng và các yếu tố ảnh hưởng đến chi phí, bạn có thể tham khảo thêm tại các bài viết chuyên sâu về vật liệu xây dựng cao cấp trên Wikipedia.

6. Góc chuyên gia: 3 Lưu ý “vàng” khi xây mẫu nhà mái Nhật 1 tầng 4 phòng ngủ
Dưới góc độ là người làm nghề lâu năm, mình muốn chia sẻ thêm với bạn 3 bí quyết để ngôi nhà không chỉ đẹp mà còn “sướng” khi ở:
-
Đừng tiết kiệm diện tích sảnh: Bạn thấy sảnh chính của anh Tâm không? Nó rất rộng và có bậc tam cấp ốp đá sang trọng. Sảnh chính là “bộ mặt” và cũng là nơi đón khí vào nhà. Một cái sảnh hẹp sẽ làm giảm giá trị của cả mẫu nhà mái Nhật 1 tầng 4 phòng ngủ.
-
Chú trọng hệ thống thoát nước mái: Mái Nhật có độ dốc thấp hơn mái Thái. Do đó, việc xử lý chống thấm và hệ thống máng thu nước phải được làm cực kỳ cẩn thận để tránh tình trạng thấm ngược hoặc nước chảy tràn lan khi mưa lớn.
-
Bố trí sân vườn đồng bộ: Một mẫu nhà mái Nhật 1 tầng 4 phòng ngủ sẽ mất đi 50% vẻ đẹp nếu thiếu khoảng sân vườn. Hãy dành một phần kinh phí để làm tiểu cảnh, trồng cây xanh xung quanh. Nó giúp điều hòa không khí và tạo view nhìn thư giãn từ các ô cửa sổ kính.

7. Techhome – Người bạn đồng hành tin cậy
Tại Công ty Cổ phần Kiến trúc và Xây dựng Techhome, chúng tôi không bán bản vẽ, chúng tôi bán giải pháp sống. Mỗi mẫu nhà mái Nhật 1 tầng 4 phòng ngủ ra đời là kết quả của những buổi thảo luận thâu đêm giữa KTS và gia chủ. Chúng tôi hiểu rằng, trong mỗi viên gạch là những mồ hôi, công sức tích góp cả đời của bạn.
Nếu bạn đang sở hữu một mảnh đất ở quê và muốn xây dựng một tổ ấm hiện đại, tiện nghi như gia đình anh Tâm tại Bắc Ninh, hãy để Techhome hiện thực hóa giấc mơ đó. Mẫu nhà mái Nhật 1 tầng 4 phòng ngủ chính là chìa khóa để bạn tận hưởng cuộc sống an yên bên những người thân yêu.

Thông tin liên hệ:
-
Website: nhadeptechhome.vn
-
Hotline: 0364042222 – 0387603333
-
Địa chỉ: B1.1 LK18 Ô 3 – KĐT Thanh Hà – Cienco 5 – Thanh Oai- Hà Nội.
Mẫu nhà mái Nhật 1 tầng 4 phòng ngủ không chỉ là một trào lưu, đó là sự khẳng định về một lối sống thông minh, thực tế và đầy thẩm mỹ. Đừng để ước mơ về ngôi nhà đẹp chỉ dừng lại ở việc xem ảnh. Nhấc máy lên và gọi cho chúng tôi ngay hôm nay!
