Chào các bạn.
Hôm nay, Techhome muốn dẫn các bạn ghé thăm một công trình mà đội ngũ KTS Tech Home vừa hoàn thiện phương án thiết kế cho chị Thúy tại vùng đất mỏ Quảng Ninh. Nếu bạn đang sở hữu một mảnh đất phân lô phố thị và muốn tìm kiếm một mẫu nhà ống 2 tầng hiện đại, thì đây chính là bài viết dành riêng cho bạn.
Dự án này không chỉ đơn thuần là một bản vẽ, mà là lời giải cho bài toán: “Làm sao để nhà phố 5m ngang vẫn thoáng đãng, đủ 4 phòng ngủ cho gia đình nhiều thế hệ mà nhìn từ ngoài vào vẫn phải cực ‘chill’?”
1. Thông tin tổng quan dự án chị Thúy – Quảng Ninh
Trước khi đi sâu vào phân tích vẻ đẹp của căn nhà, mời các bạn xem qua “profile” cực chất của công trình này:
-
Chủ đầu tư: Chị Thúy.
-
Địa điểm: Quảng Ninh.
-
Đơn vị tư vấn & thiết kế: Công ty Cổ phần Kiến trúc và Xây dựng Tech Home.
-
Diện tích thiết kế: 5x18m.
-
Tổng diện tích thiết kế: 192m² (Tầng 1: 90m², Tầng 2: 102m²).
-
Công năng: 4 Phòng ngủ, Phòng khách, Bếp & Ăn, Phòng thờ, Sân phơi.

2. Kiến trúc ngoại thất: Sự giao thoa giữa nét hiện đại và đường cong mềm mại
Nhìn vào phối cảnh mặt tiền, bạn sẽ thấy ngay sự khác biệt. Đa số các nhà phố hiện nay thường đi theo lối hình khối vuông vức, đôi khi cảm thấy hơi cứng nhắc. Tuy nhiên, ở mẫu nhà ống 2 tầng hiện đại này, KTS đã khéo léo đưa vào các đường vòm ở phần ban công và cửa sổ.
Tông màu trắng chủ đạo – “Vũ khí” đánh lừa thị giác
Căn nhà sử dụng tông màu trắng sứ làm chủ đạo. Trong kiến trúc, màu trắng không bao giờ lỗi mốt và đặc biệt có tác dụng làm căn nhà trông rộng hơn thực tế. Kết hợp với hệ cửa nhôm kính Xingfa màu đen tuyền, sự tương phản này tạo nên một diện mạo cực kỳ sang trọng và sạch sẽ.
Điểm nhấn từ những đường cong
Điểm “đắt giá” nhất chính là mảng tường vòm lớn ôm trọn ban công tầng 2. Nó xóa tan sự thô cứng của những khối bê tông. Phía dưới, một chiếc cửa sổ hình vòm nhỏ nhắn ở tầng 1 tạo nên sự đồng điệu. Đây là xu hướng thiết kế đang rất được ưa chuộng vì nó mang lại cảm giác bình yên, nhẹ nhàng cho gia chủ mỗi khi trở về nhà.
Ánh sáng và cây xanh
Hệ thống đèn hắt tường và đèn downlight được bố trí âm trần ban công giúp căn nhà lung linh hơn vào ban đêm. Đừng quên dải cây xanh ngay ban công – một chi tiết nhỏ nhưng giúp “giải nhiệt” cho nhà phố cực kỳ hiệu quả.

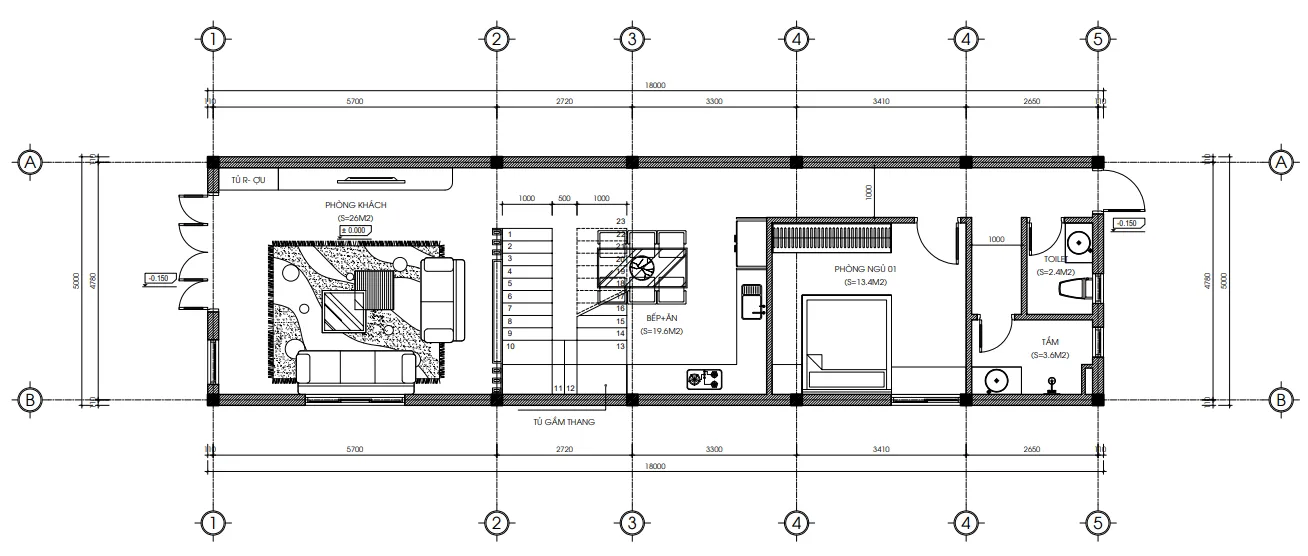
3. Phân tích mặt bằng công năng: Tối ưu đến từng centimet
Nhiều người hỏi mình: “Nhà 5x18m mà làm 4 phòng ngủ thì có bị bí không?” Câu trả lời nằm ở cách bố trí thông minh của Tech Home.
Mặt bằng Tầng 1 (90m²): Không gian sinh hoạt chung ấm cúng
Bước từ sảnh vào là Phòng khách rộng rãi (diện tích thiết kế khoảng 26m²). Điểm mình thích nhất ở đây là trần cao tới 3.9m, tạo cảm giác cực kỳ thoáng.
-
Cầu thang: Được đặt ở giữa nhà với 23 bậc chuẩn phong thủy. Dưới gầm thang, KTS đã tận dụng tối đa để làm kho hoặc trang trí tiểu cảnh.
-
Bếp & Phòng ăn: Kết nối liên thông với phòng khách, tạo không gian mở.
-
Phòng ngủ 01: Nằm phía cuối nhà, đảm bảo sự yên tĩnh cho người già hoặc gia chủ.
-
Sân sau & WC: Tech Home luôn chừa lại một khoảng sân nhỏ phía sau để lấy sáng và thông gió tự nhiên cho toàn bộ tầng 1.

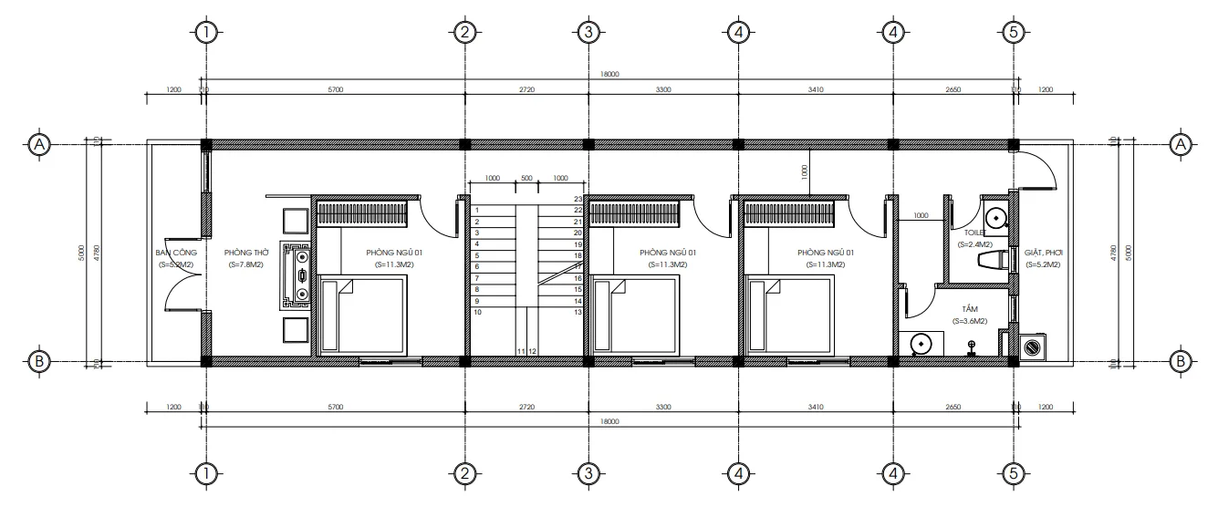
Mặt bằng Tầng 2 (102m²): Không gian riêng tư lý tưởng
Tầng 2 là nơi nghỉ ngơi chính của gia đình với 3 phòng ngủ còn lại:
-
Phòng thờ: Đặt ở vị trí trang trọng nhất phía trước, hướng ra ban công thoáng đãng.
-
3 Phòng ngủ: Được sắp xếp khoa học, mỗi phòng đều có cửa sổ lấy sáng. Với tổng diện tích tầng 2 lên tới 102m², các phòng ngủ đều đạt kích thước tiêu chuẩn, không hề có cảm giác chật chội.
-
Khu giặt phơi: Được tách biệt phía sau để đảm bảo thẩm mỹ chung cho mặt tiền căn nhà.

4. Tại sao mẫu nhà ống 2 tầng hiện đại này lại “hot” tại Quảng Ninh?
Quảng Ninh là khu vực có khí hậu biển, độ ẩm cao. Việc lựa chọn mẫu nhà ống 2 tầng hiện đại với hệ mái tôn chống nóng và bình nước năng lượng mặt trời phía trên là một sự lựa chọn cực kỳ kinh tế và bền bỉ.
Hệ mái tôn được thiết kế có độ dốc hợp lý, giúp thoát nước mưa cực nhanh – điều này rất quan trọng với những cơn mưa rào đặc trưng của miền Bắc. Hơn nữa, chi phí thi công mái tôn rẻ hơn so với mái Thái hay mái Nhật, giúp chị Thúy tiết kiệm được một khoản kha khá để đầu tư vào nội thất.

5. Báo giá thiết kế và thi công tham khảo (Năm 2026)
Để các bạn dễ hình dung và chuẩn bị ngân sách, Tech Home xin đưa ra bảng báo giá sơ bộ cho mẫu nhà ống 2 tầng hiện đại diện tích tương tự:
| Hạng mục | Đơn giá tham khảo | Ghi chú |
| Thiết kế kiến trúc | 108.000 đ/m² | Bao gồm bản vẽ 3D, điện nước, kết cấu. |
| Thi công phần thô | 3.800.000 – 4.200.000 đ/m² | Tùy vào thời điểm giá vật tư. |
| Thi công trọn gói (Chìa khóa trao tay) | 6.000.000 – 7.500.000 đ/m² | Vật tư từ trung bình khá đến cao cấp. |
Ước tính cho nhà chị Thúy (192m²):
-
Phí thiết kế: Khoảng 21 triệu đồng.
-
Thi công trọn gói: Khoảng 1.2 tỷ – 1.4 tỷ đồng (Tùy thuộc vào mức độ hoàn thiện vật liệu).
Lưu ý: Đây chỉ là mức chi phí ước tính. Để nhận được báo giá chính xác và chi tiết nhất cho công trình của bạn, vui lòng liên hệ trực tiếp với chúng tôi. Hoặc để tìm hiểu rõ hơn về tiêu chuẩn vật liệu xây dựng và các yếu tố ảnh hưởng đến chi phí, bạn có thể tham khảo thêm tại các bài viết chuyên sâu về vật liệu xây dựng cao cấp trên Wikipedia.
6. Góc chuyên gia: Lời khuyên khi xây nhà ống 2 tầng
Với kinh nghiệm xây dựng hàng trăm căn nhà, mình có vài lời khuyên chân thành cho các bạn đang có ý định xây mẫu nhà ống 2 tầng hiện đại:
-
Đừng “tham” diện tích xây dựng: Hãy chừa lại một chút khoảng lùi hoặc giếng trời. Một căn nhà biết “thở” sẽ tốt cho sức khỏe hơn một căn nhà xây kín mít nhưng ngột ngạt.
-
Đầu tư vào hệ cửa: Nhà phố thường chỉ có một mặt tiền. Hãy dùng cửa kính cường lực loại tốt để đón sáng tối đa. Như căn nhà này, việc dùng cửa vòm không chỉ đẹp mà còn tạo cảm giác trần nhà cao hơn.
-
Lựa chọn đơn vị uy tín: “Tiền nào của nấy”. Một bản vẽ kỹ thuật chuẩn chỉnh sẽ giúp bạn tránh được những chi phí phát sinh không đáng có khi thi công. Tech Home luôn tự hào có hotline hỗ trợ kỹ thuật 24/7: 0364042222 – 0387603333.
-
Chú trọng chống thấm: Với nhà mái tôn, hãy kiểm tra kỹ các vị trí giáp lai và máng xối. Đội ngũ giám sát của Tech Home luôn cực kỳ khắt khe ở công đoạn này.

7. Kết luận
Mẫu nhà ống 2 tầng hiện đại của chị Thúy tại Quảng Ninh là minh chứng cho việc: Không cần quá cầu kỳ, chỉ cần sự tinh tế trong đường nét và khoa học trong bố trí, bạn hoàn toàn có thể sở hữu một không gian sống đẳng cấp.
Nếu bạn yêu thích phong cách này và muốn biến mảnh đất của mình thành một tác phẩm nghệ thuật tương tự, đừng ngần ngại liên hệ với chúng tôi. Tại Tech Home, chúng tôi không chỉ xây nhà, chúng mình xây tổ ấm.
Mẫu nhà ống 2 tầng hiện đại này chắc chắn sẽ là nguồn cảm hứng cho rất nhiều gia chủ trong năm nay. Cảm ơn chị Thúy đã tin tưởng giao phó dự án này cho TechHome!
Thông tin liên hệ:
-
Website: nhadeptechhome.vn
-
Hotline: 0364042222 / 0387603333
-
Địa chỉ: B1.1 LK18 Ô 3 – KĐT Thanh Hà – Cienco 5 – Thanh Oai- Hà Nội.


