Chào các bạn, lại là Techhome đây! Hôm nay, mình muốn dẫn các bạn về thăm mảnh đất Mê Linh, Hà Nội. Đây là nơi Techhome vừa hoàn thiện phương án thiết kế cho một vị khách rất đặc biệt – chú Hùng.
Khi tìm đến Techhome, chú Hùng chia sẻ rằng chú muốn một không gian sống không chỉ để ở, mà phải là nơi để hưởng thụ tuổi già, có chỗ tập gym, có khoảng sân trồng rau và đặc biệt là phải thật sáng thoáng. Sau nhiều ngày “ăn ngủ” cùng bản vẽ, đội ngũ kiến trúc sư đã cho ra đời một mẫu nhà phố 3 tầng hiện đại khiến chú ưng ý ngay từ cái nhìn đầu tiên.
1. Thông Tin Tổng Quan Dự Án
Trước khi đi sâu vào vẻ đẹp kiến trúc, hãy cùng Techhome điểm qua những “con số biết nói” của công trình này nhé:
| Đặc điểm | Thông tin chi tiết |
| Chủ đầu tư |
Chú Hùng |
| Địa điểm |
Mê Linh, Hà Nội |
| Đơn vị thiết kế |
Công ty Cổ phần Kiến trúc và Xây dựng Techhome |
| Tổng diện tích thiết kế |
257 m2 |
| Phong cách | Hiện đại, tối giản, không gian mở |
| Số tầng | 3 tầng |

2. Phân Tích Kiến Trúc Ngoại Thất: Đẳng Cấp Từ Sự Tối Giản
Một mẫu nhà phố 3 tầng hiện đại thành công là khi nó tách biệt hẳn khỏi những ngôi nhà xung quanh nhưng vẫn giữ được nét tinh tế, không phô trương.
Phối cảnh mặt tiền
Nhìn vào phối cảnh, bạn sẽ thấy sự kết hợp nhuần nhuyễn giữa các hình khối vuông vức. Điểm nhấn lớn nhất chính là mảng đá ốp vân mây tối màu ở tầng 1 và cổng, tạo cảm giác cực kỳ vững chãi và sang trọng. Phía trên, các mảng tường trắng và xám trung tính giúp ngôi nhà trông thanh thoát hơn.
Giải pháp ánh sáng và thông tầng
Chú Hùng rất chú trọng ánh sáng tự nhiên. Vì vậy, Techhome đã sử dụng hệ kính cường lực khổ lớn xuyên suốt các tầng. Đặc biệt, phần mái hiên bằng kính ở tầng 3 không chỉ bảo vệ cây xanh phía dưới mà còn giúp ánh sáng len lỏi vào sâu bên trong nhà.

3. Giải Pháp Bố Trí Công Năng “May Đo” Cho Gia Đình
Điều làm nên giá trị của mẫu nhà phố 3 tầng hiện đại này không chỉ là vẻ ngoài, mà là cách chúng tôi sắp xếp từng mét vuông diện tích sao cho khoa học nhất.
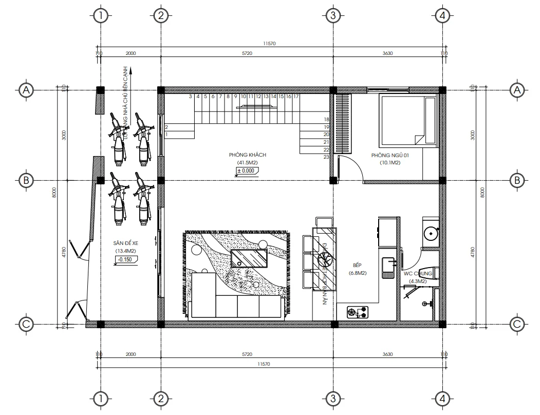
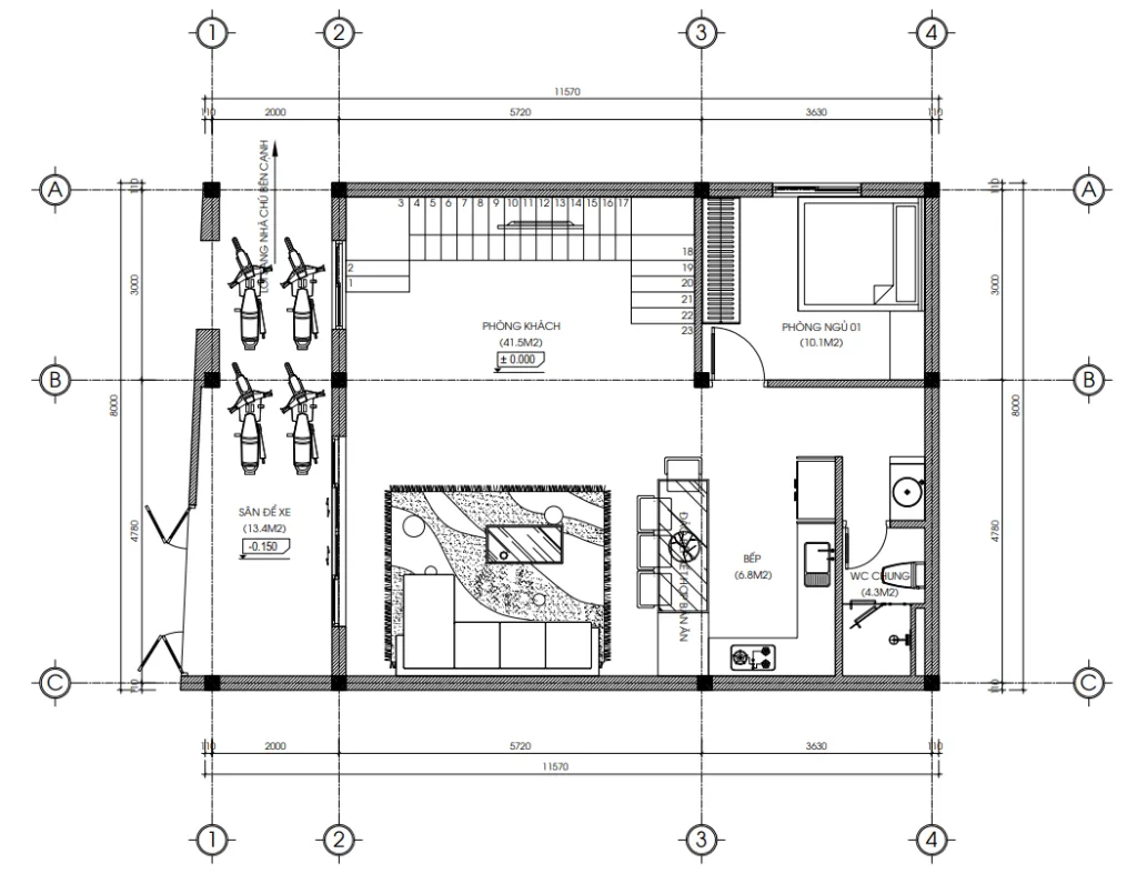
Tầng 1: Không gian kết nối (Diện tích 92 m2)
Tầng 1 được thiết kế với độ cao trần 3.9 m, tạo cảm giác cực kỳ thoáng đãng ngay khi bước vào nhà.
-
Sân để xe (13.4 m2): Rộng rãi, đủ cho nhiều xe máy và phương tiện di chuyển.
-
Phòng khách (41.5 m2): Đây là “trái tim” của ngôi nhà. Với diện tích lớn, chú Hùng có thể thoải mái tiếp đón bạn bè, người thân.
-
Bếp và bàn ăn (6.8 m2): Được bố trí gọn gàng, tách biệt nhẹ nhàng với phòng khách để tránh mùi thức ăn nhưng vẫn đảm bảo sự thông suốt.
-
Phòng ngủ 01 (10.1 m2): Dành riêng cho người lớn tuổi hoặc khách đến chơi nhà, hạn chế việc phải leo cầu thang.
-
WC chung (4.3 m2): Thiết kế kín đáo, thuận tiện sử dụng.

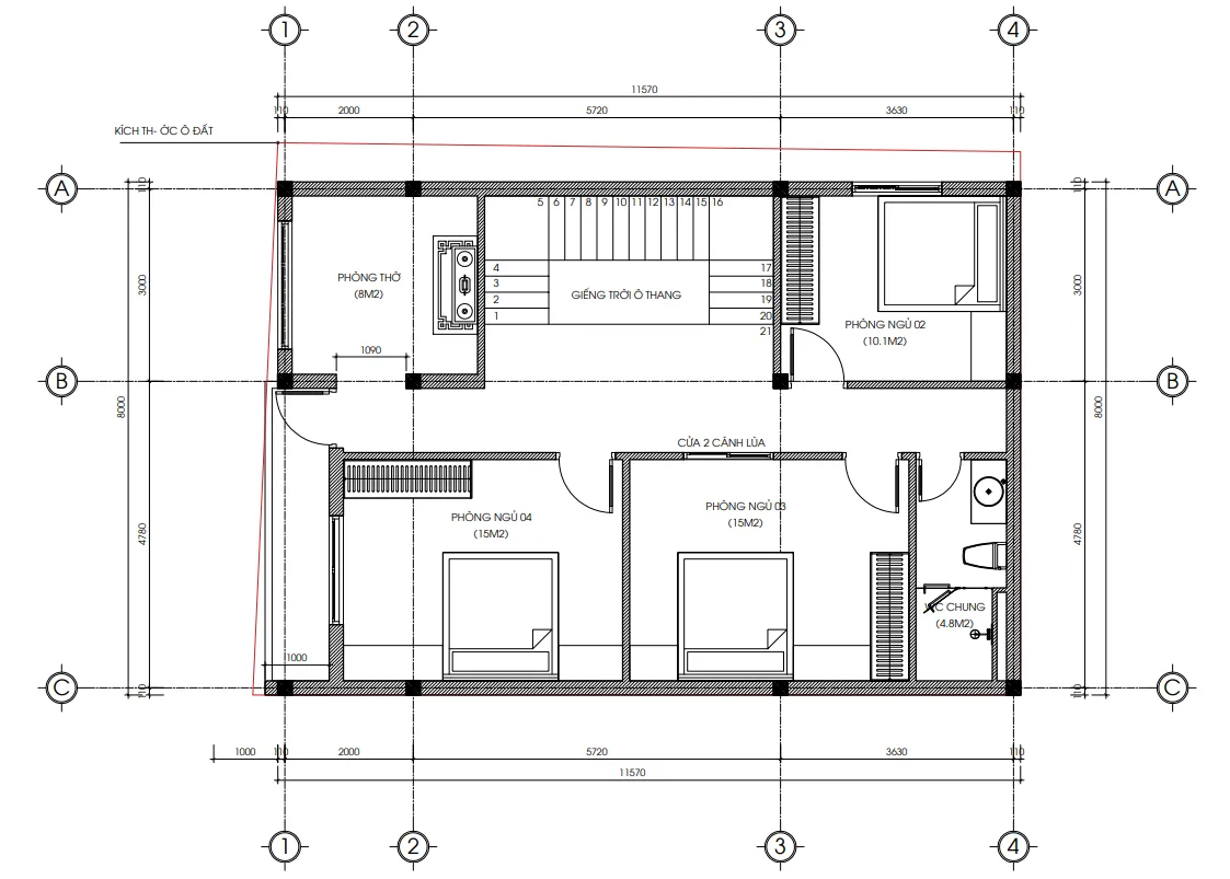
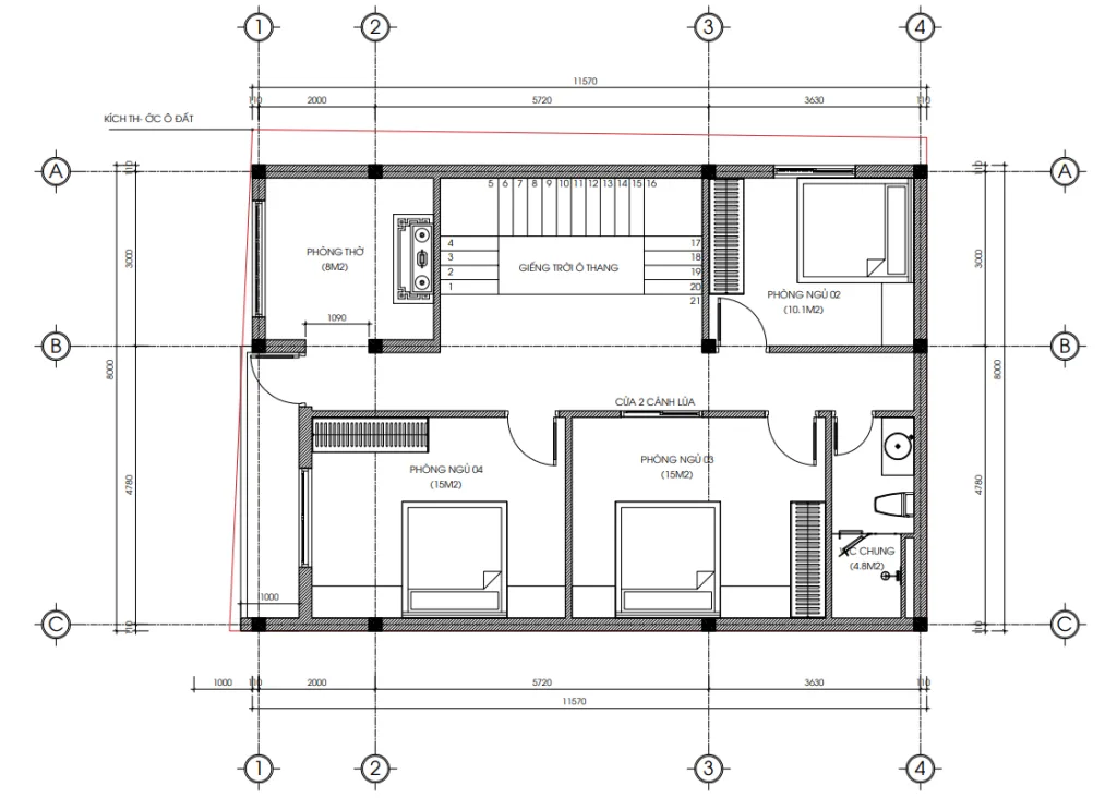
Tầng 2: Không gian nghỉ ngơi và tâm linh (Diện tích 93 m2)
Tầng 2 có chiều cao 3.6 m, tập trung vào sự riêng tư.
-
Phòng thờ (8 m2): Đặt ở vị trí trang trọng, yên tĩnh hướng ra mặt tiền.
-
Hệ thống 3 phòng ngủ: Bao gồm phòng ngủ 02 (10.1 m2), phòng ngủ 03 (15 m2) và phòng ngủ 04 (15 m2). Các phòng đều có cửa sổ lớn đón gió.
-
Giếng trời cầu thang: Đây là “lá phổi” giúp lưu thông không khí giữa các tầng.

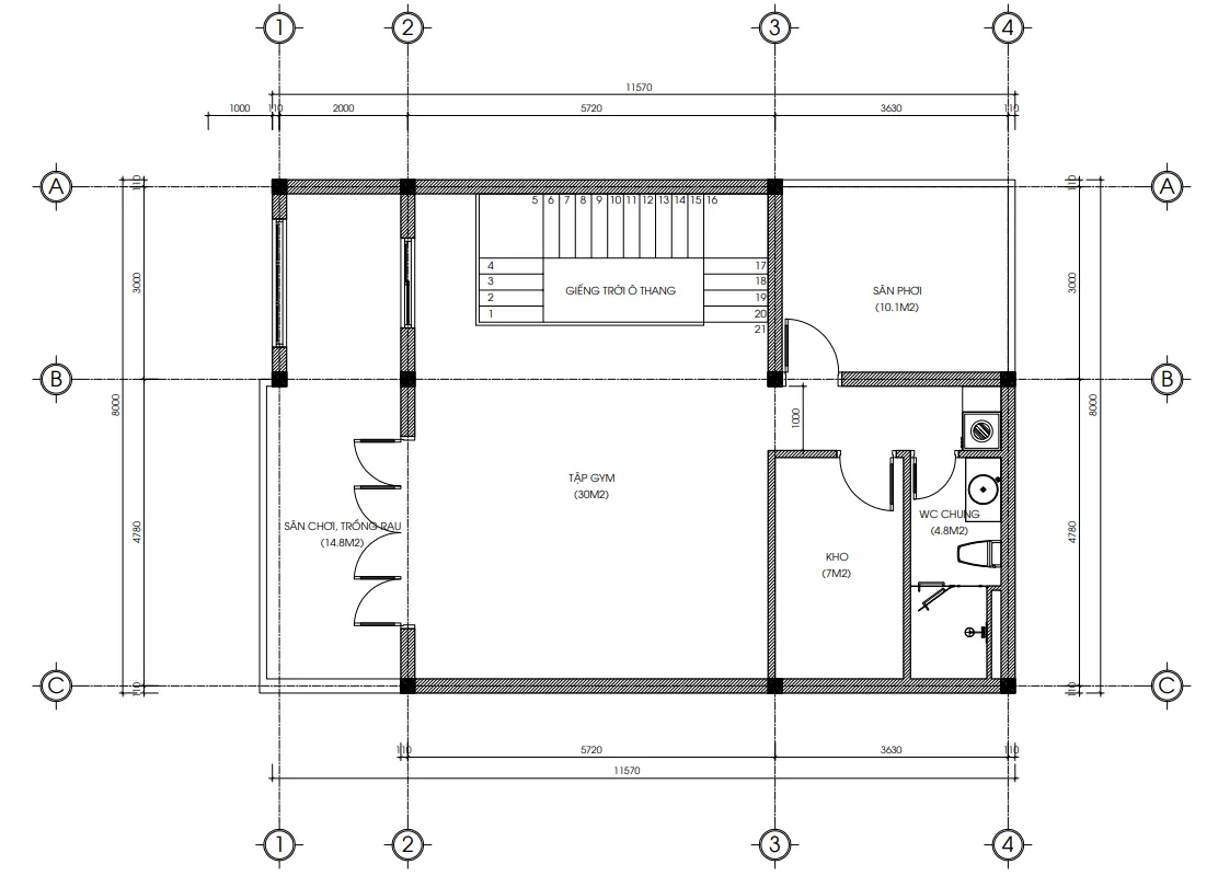
Tầng 3: Không gian tận hưởng (Diện tích 72 m2)
Đây là tầng mà chú Hùng thích nhất trong mẫu nhà phố 3 tầng hiện đại này.
-
Phòng tập Gym (30 m2): Một không gian rộng lớn để cả nhà rèn luyện sức khỏe.
-
Sân chơi & Trồng rau (14.8 m2): Đáp ứng sở thích làm vườn của chú Hùng, tạo mảng xanh cho ngôi nhà.
-
Sân phơi (10.1 m2): Bố trí phía sau đảm bảo mỹ quan cho mặt tiền.
-
Kho (7 m2): Nơi cất giữ đồ đạc ít dùng tới, giúp nhà luôn gọn gàng.

4. Báo Giá Tham Khảo Xây Dựng Mẫu Nhà Phố 3 Tầng Hiện Đại
Techhome biết, ngoài vẻ đẹp thì chi phí là điều các bạn quan tâm nhất. Dưới đây là bảng dự toán sơ bộ dựa trên diện tích thiết kế 257 m2 để bạn dễ hình dung:
| Hạng mục | Đơn giá tham khảo (VNĐ/m2) | Tổng chi phí ước tính (VNĐ) |
| Thiết kế kiến trúc | 108.000 | 27.756.000 |
| Thi công phần thô | 3.800.000 – 4.200.000 | 976.600.000 – 1.079.400.000 |
| Thi công hoàn thiện (Gói khá) | 6.500.000 – 7.500.000 | 1.670.500.000 – 1.927.500.000 |
Lưu ý: Đơn giá trên mang tính chất tham khảo tại thời điểm viết bài. Chi phí thực tế sẽ phụ thuộc vào vị trí thi công, giá nhân công địa phương và chất lượng vật liệu hoàn thiện mà bạn lựa chọn. Để có báo giá chính xác cho mẫu nhà phố 3 tầng hiện đại của riêng mình, hãy gọi ngay hotline: 0364042222 hoặc 0387603333.
Để tìm hiểu rõ hơn về tiêu chuẩn vật liệu xây dựng và các yếu tố ảnh hưởng đến chi phí, bạn có thể tham khảo thêm tại các bài viết chuyên sâu về vật liệu xây dựng cao cấp trên Wikipedia.

5. Tại Sao Mẫu Nhà Phố 3 Tầng Hiện Đại Lại Là Xu Hướng Năm 2026?
Không phải ngẫu nhiên mà chú Hùng và nhiều khách hàng của Techhome lại chọn mẫu nhà phố 3 tầng hiện đại. Dưới đây là những lý do thuyết phục:
-
Tối ưu diện tích: Với những khu đất phố hẹp, việc phát triển theo chiều cao là giải pháp duy nhất để đảm bảo đủ phòng chức năng cho gia đình nhiều thế hệ.
-
Tính thẩm mỹ bền vững: Phong cách hiện đại với những đường nét thẳng, phẳng sẽ không bao giờ lỗi mốt. Nó mang lại vẻ ngoài trẻ trung, năng động.
-
Không gian sống thông minh: Mẫu nhà phố 3 tầng hiện đại thường tích hợp các giải pháp thông minh như cảm biến ánh sáng, hệ thống tưới cây tự động trên sân thượng, giúp cuộc sống tiện nghi hơn.
-
Chi phí hợp lý: So với phong cách cổ điển hay tân cổ điển với nhiều phào chỉ cầu kỳ, mẫu nhà phố 3 tầng hiện đại tiết kiệm được đáng kể chi phí nhân công và vật liệu hoàn thiện.

6. Góc Chuyên Gia: Những Lưu Ý “Vàng” Khi Xây Nhà
Là một người làm nghề lâu năm, Tôi có vài lời khuyên nhỏ dành cho các bạn đang có ý định xây mẫu nhà phố 3 tầng hiện đại:
-
Đừng tiết kiệm diện tích giếng trời: Nhiều người tiếc vài mét vuông đất mà bỏ qua giếng trời. Tuy nhiên, ở nhà phố, nếu không có giếng trời, ngôi nhà sẽ rất bí bách và u tối.
-
Chú trọng chống thấm cho mái bằng: Với mẫu nhà phố 3 tầng hiện đại mái bằng, việc xử lý chống thấm và thoát nước sân thượng là cực kỳ quan trọng để tránh tình trạng thấm dột sau vài năm sử dụng.
-
Chọn đơn vị thiết kế uy tín: Một bản vẽ tốt sẽ giúp bạn quản lý được dòng tiền, tránh phát sinh không đáng có và đảm bảo kết cấu an toàn. Techhome luôn tự hào là người bạn đồng hành tin cậy của mọi gia đình.

7. Kết Luận
Mẫu nhà phố 3 tầng hiện đại của chú Hùng tại Mê Linh không chỉ là một công trình xây dựng, mà là tâm huyết của đội ngũ Techhome trong việc kiến tạo không gian sống hạnh phúc. Nếu bạn đang sở hữu một mảnh đất và muốn biến nó thành “tổ ấm” trong mơ như thế này, đừng ngần ngại liên hệ với chúng tôi.
Mỗi mẫu nhà phố 3 tầng hiện đại chúng tôi tạo ra đều là duy nhất, mang đậm cá tính của gia chủ. Hãy để Techhome giúp bạn kể câu chuyện của mình thông qua ngôn ngữ kiến trúc nhé!
Kiến trúc Techhome – Xây giá trị, dựng niềm tin.
-
Website: nhadeptechhome.vn
-
Hotline: 0364042222 / 0387603333
-
Địa chỉ: B1.1 LK18 Ô 3 – KĐT Thanh Hà – Cienco 5 – Thanh Oai- Hà Nội.
